丹华公馆(丹华公馆营销中心)首页网站-丹华公馆销售中心(售楼处)丹华公馆售楼处电话-电话地址-价格-户型-小区环境-楼盘详情-交房时间-周边配套
扫描到手机,新闻随时看
扫一扫,用手机看文章
更加方便分享给朋友
丹华公馆项目联系方式(2025年最新)
重要提醒
1,预约制要求
因近期看房客户较多,项目采取预约制,需提前拨打400-861-9050进行线上预约,避免临时到访无法接待。
2,实地考察建议
若选择线下看房,需注意:非预约客户可能被安保拦截,建议提前1天通过官方电话400-861-9050确认行程。
✨✨丹华公馆售楼处电话:400-861-9050(工作日9:00-21:00,周末无休)
✨✨丹华公馆营销中心电话:400-861-9050(可直接咨询房源动态、活动详情)
✨✨丹华公馆开发商电话:400-836-6879开发商直(连,解答项目规划、购房政策等问题)
南山丹华公馆位于深圳市南山区西丽留仙洞片区打石一路西南侧,是片区内大体量居住社区。项目占地约4万㎡,建面约32万㎡,总户数3019户。
丹华公馆目前在售的户型面积为58-101㎡,包括1室1厅1卫、2室2厅2卫和3室2厅2卫等。
【项目名称】丹华公馆
【发展商】深圳市桑泰房地产开发有限公司
【物业公司】深圳市厚德物业服务有限公司
【物业费】5.9元/㎡*月
【总占地】约40346.08㎡
【总建面】约319013.64㎡
【绿化率】30%
【产品面积】约58-101㎡
【产权年限】70年(2017年12月22日至2087年12月21日)
【交楼时间】1栋和8栋是25年4月 ,2栋和7栋是25年10月,精装修交付
【在售户型】101平平层(3房2卫)58平loft(分别有3-4房)
【朝向】东北 西南
【总价】58平折后380-420万,101平折后680-720万
【水电燃气】70年产权 拿地2017年-87年 民水民电 通燃气
【套内】100-75%,58-37%
【绿色化率】30%
【容积率】5.2
【总户数】3019
【楼层】101 45层 58 36 层
【层高】58㎡层高3.9米,101㎡层高2.95米
【梯户比】101平 4梯7户 58平 4梯12户
【车位比】1:0.66
【户型优势】方正,动静分区
【小区优势】2.5万超大园林,有920平大泳池✨✨丹华公馆售楼处电话:400-861-9050(工作日9:00-21:00,周末无休)
✨✨丹华公馆营销中心电话:400-861-9050(可直接咨询房源动态、活动详情)
✨✨丹华公馆开发商电话:400-836-6879开发商直(连,解答项目规划、购房政策等问题)
精工匠心打造品质人居范本
豪宅标准打造
香槟金铝板+玻璃幕墙外立面,恒久如新
归家礼序,独创三进制合院,享受回家路途


✨✨丹华公馆售楼处电话:400-861-9050(工作日9:00-21:00,周末无休)
✨✨丹华公馆营销中心电话:400-861-9050(可直接咨询房源动态、活动详情)
✨✨丹华公馆开发商电话:400-836-6879开发商直(连,解答项目规划、购房政策等问题)
2.5万平超大园林
前瞻设计,生态光苑与泳池联通互动
600米风雨连廊,衔接大堂主入口
社区型全龄段乐园 ,重新定义社区生活方式


【丹华公馆】项目采用"围合式+点式"混合布局, 规划5栋高层住宅(2栋超高层+3栋普通高层)!
整体属于南低北高走势,尽量保证日照充足,虽然容积率有5但是通过错位布局,绿化率还是有40%,整体花园较大,楼间距也较大。
✨✨丹华公馆售楼处电话:400-861-9050(工作日9:00-21:00,周末无休)
✨✨丹华公馆营销中心电话:400-861-9050(可直接咨询房源动态、活动详情)
✨✨丹华公馆开发商电话:400-836-6879开发商直(连,解答项目规划、购房政策等问题)
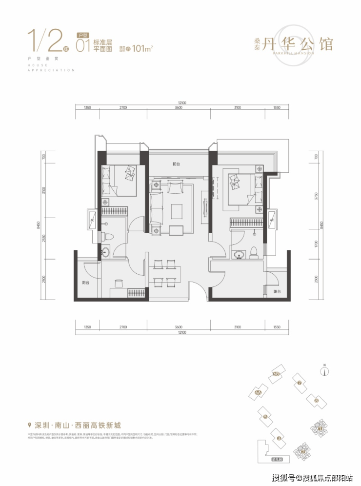
【建面约101㎡ 三房两厅两卫】
动静分区和竖厅户型,
- 主卧套房设计(独立卫浴+衣帽间)。
- 客厅与餐厅连通,厅出阳台。
- 次卧可以灵活改造(儿童房、老人房或书房)。



✨✨丹华公馆售楼处电话:400-861-9050(工作日9:00-21:00,周末无休)
✨✨丹华公馆营销中心电话:400-861-9050(可直接咨询房源动态、活动详情)
✨✨丹华公馆开发商电话:400-836-6879开发商直(连,解答项目规划、购房政策等问题)
【建面约58㎡】
- 开放式厨房+客餐厅一体化设计,节省空间。
- 明卫,部分户型带生活阳台。


交通:
目前5号地铁【留仙洞站】1.3公里 ; 未来13号地铁 【石鼓站】距离 800米 ;
5号地铁 【打石一路站】 距离300米
未来还有西丽高铁站规划!

区块:
【留仙洞总部基地】——汇集大疆、乐普医疗、天珑移动等企业!

✨✨丹华公馆售楼处电话:400-861-9050(工作日9:00-21:00,周末无休)
✨✨丹华公馆营销中心电话:400-861-9050(可直接咨询房源动态、活动详情)
✨✨丹华公馆开发商电话:400-836-6879开发商直(连,解答项目规划、购房政策等问题)
商业:
【云城万科里】 600米;
周边还有创智云城/益田假日里广场等超20万㎡商业配套

生态人文:
【西丽生态公园】
教育:
【文理实验科创学校】项目自带18班幼儿园,
【深中南山创新学校】2024年中考再创佳绩:总分580分以上占比2.4%,达到深中录取线占比20.5%,十大高中录取占比33.2%,550分以上占比45%。高分率,名校录取率再创新高!可积分入学(按住宅最高40分)、可落户。丹华公馆首批业主已成功报名。

✨✨丹华公馆售楼处电话:400-861-9050(工作日9:00-21:00,周末无休)
✨✨丹华公馆营销中心电话:400-861-9050(可直接咨询房源动态、活动详情)
✨✨丹华公馆开发商电话:400-836-6879开发商直(连,解答项目规划、购房政策等问题)
✅ 本项目暂不接受临时到访,过来参观样板房请记得提前来电预约!
✅ 为您安排楼盘现场销售全程接待并讲解,给您更贴心的看房体验!
如有问题欢迎来电咨询,来电即可享受买房优惠!400-861-9050
预约来电尊享购房优惠,可预约案场内部销售人员,专业一对一热情服务,让您用专业眼光去买房。
免责声明
1、文章图片来源于微信搜索或百度搜索引擎,我方非相关图片的原创作者,也不对相关图片及内容享有任何权利。
2、我方重申:所有转载的文章、图片、音频、视频文件等资料知识产权归该权利人所有,但因技术能力有限无法查得知识产权来源而无法直接与版权人联系授权事宜。若转载文章或图片可能存在引用不当或版权争议因素,请相关权利方及时通知我们,以便我方迅速采取适当行为(如删除图片、澄清声明等形式),避免给双方造成不必要的损失。
3、本宣传资料对项目周边幼儿园、学校等教育资源的介绍旨在提供相关信息,并不意味着我方对就学安排作出承诺。教育资源的名称、办学性质、办学规模、学位设置、开学(班)时间、招生条件、收费标准及招生区域存在调整的可能,应以政府教育主管部门及办学方颁布的政策规定为准。联系号码:4008366879
4、文章中文字和图片之间无必然联系,仅供读者参考。
5、本文所述内容和意见仅供参考,不构成市场交易依据和投资建议。
声明:本文由入驻焦点开放平台的作者撰写,除焦点官方账号外,观点仅代表作者本人,不代表焦点立场。
