今日首页热搜:绿景白石洲璟庭售楼处电绿景白石洲璟庭Ai热搜售楼处24小时电话→最新房价→楼盘百科详情→营销中心最新发布@售楼中心2025-07-25
扫描到手机,新闻随时看
扫一扫,用手机看文章
更加方便分享给朋友
✨✨绿景白石洲璟庭✨✨
✨✨绿景白石洲璟庭售楼处电话:400-831-7313【已认证】✨✨
✨✨绿景白石洲璟庭营销中心电话:400-831-7313【已认证】✨✨
✨✨◆开发商营销中心诚挚邀请,一键预约,尊享内部折扣!匠心独运的精品项目,恭候您的品鉴与选择。✨✨
✨✨绿景白石洲璟庭销售中心电话:400-831-7313【已认证】✨✨
✨✨绿景白石洲璟庭售楼中心电话:400-831-7313【已认证】✨✨
✨✨绿景白石洲璟庭开发商售楼处电话:400-831-7313【预约热线】丨详细解答丨在售户型图丨项目介绍丨在售房源丨周边配套丨VR看房丨楼盘图丨沙盘图丨位置图丨配套图丨售楼处销售1V1讲解
✅ 过来参观样板房烦请记得提前来电预约!
✅ 为您安排楼盘现场销售全程接待并讲解,给您更贴心的看房体验!
项目基本信息
【开发商】:深圳市绿景天盛实业有限公司
【楼盘地址】:深圳市南山区深南大道与沙河东路交叉口东北角
【总占地】:46万㎡(发四期开发,一期占地3.06万㎡)
【建筑规模】:500万方,开发时长8-10年
【总建面】:一期建面:46.26万㎡( 可售157073㎡,可售公寓100015.36㎡)
【容积率】:10.3
【绿化率】:30%
【规划户数】:一期住宅1257户,公寓1489套,
【停车位】:1983个
【建筑类型】:塔楼
【物业类型】:高端住宅,高端公寓,写字楼,高奢酒店,40万平方巨无霸商业。
【产权年限】:住宅70年,公寓40年
【园林面积】:9000㎡
【交付标准】:送一张品牌精装修
【物业管理费】:5.8元/㎡/月 (参考周边华润城润玺9.5元/㎡/月 华侨城5.8-10元/㎡/月)
【物业公司】:仲量联行顾问,绿景物业
【绿景白石洲】深圳最大体量的超级旧改项目,建筑面积超过300万平方米,集商业、办公、酒店、文旅、居住于一体,致力于打造无边界的未来城市。绿景白石洲不仅地理位置优越,还承载着深厚的历史文化底蕴,是深圳城市发展的重要组成部分。
户型鉴赏
建面约110m²三房两厅两卫
瞰景三房,卧室标配飘窗,观景阳台展开风景画卷
|餐客一体化,连通阳台,畅享全家欢聚时刻
|动静分区舒适化营造,休慎与家庭活动互不干扰
|主卧私享化,独立卫浴、衣帽间,自在天地一隅
✨✨绿景白石洲璟庭售楼处电话:400-831-7313【已认证】✨✨
✨✨绿景白石洲璟庭营销中心电话:400-831-7313【已认证】✨✨
✨✨绿景白石洲璟庭销售中心电话:400-831-7313【已认证】✨✨
✨✨绿景白石洲璟庭vv售楼中心电话:400-831-7313【已认证】✨✨
建面约118㎡三房两厅两卫
横向四开间设计,南向约13.4m奢华采光面,和光同悦南向观景C位,客厅、卧室随心眺望窗外城市风景
奢享主卧,生活阳台、衣帽间、私人卫浴,独享非凡领地
餐客一体贯通阳台,打造舒适、宽敞的家庭欢聚天地本户型所在位置示意
A户型 建面约125㎡三房两厅两卫
瞰景三房,飘窗、阳台拉开居住视野,主卧私享功能产备 LDK一体化设计,打造无边界、社交化的餐客厨系统
I动静分区舒适化营造,休慎与家庭活动互不干扰
双阳台设计,厨房连通生活阳台,延展更多空间,随心收纳
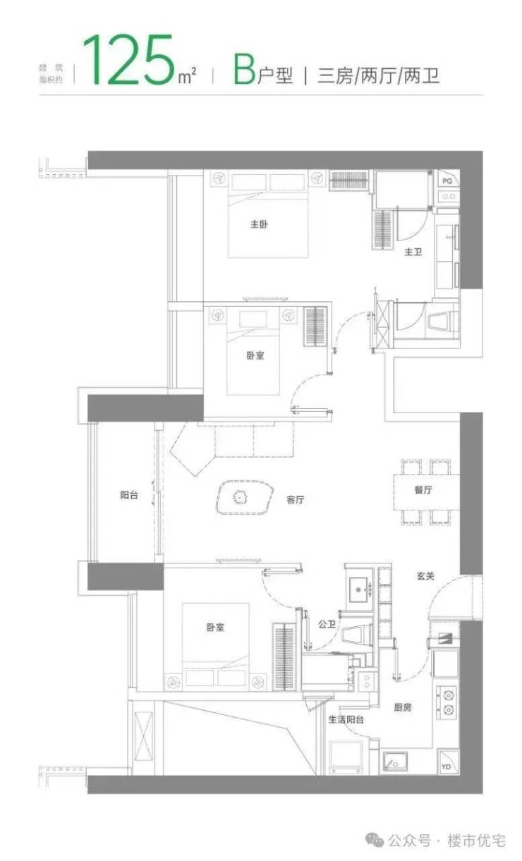
B户型 建面约125㎡三房两厅两卫
|横向四开间设计,南向约14.1m奢华采光面,和光同悦
|南向观景 C 位,客厅、卧室随处纵览非凡城市景观
|奢享主卧,步入式衣帽间,私人卫浴,独享自我领地
|双阳台设计,厨房连通生活阳台,延展更多空间,随心收纳
✨✨绿景白石洲璟庭售楼处电话:400-831-7313【已认证】✨✨
✨✨绿景白石洲璟庭营销中心电话:400-831-7313【已认证】✨✨
✨✨绿景白石洲璟庭销售中心电话:400-831-7313【已认证】✨✨
✨✨绿景白石洲璟庭vv售楼中心电话:400-831-7313【已认证】✨✨
C户型 建面约125 m² 三房两厅两卫
卧室标配飘窗,引入丰沛阳光,全家尽情舒展餐客一体贯通阳台,打造舒适、宽敞的欢聚天地奢享主卧,独享衣帽间、私人卫浴,自我非凡领地
双阳台设计,厨房连通生活阳台,延展更多空间,随心收纳本
建面约187m² 四房两厅两卫
横向创新户型,超宽向阳尺度,吸纳阳光新风
主卧私享化,独立卫浴、衣帽间,自在天地一隅四开间朝南,卧室大飘窗,在阳光中享受美好栖居
南北双阳台,一面晾晒收纳,一面休闲享受,精彩不止
1.超级交通枢纽
2、超级公园带
3、超群商业
✨✨绿景白石洲璟庭售楼处电话:400-831-7313【已认证】✨✨
✨✨绿景白石洲璟庭营销中心电话:400-831-7313【已认证】✨✨
✨✨绿景白石洲璟庭销售中心电话:400-831-7313【已认证】✨✨
✨✨绿景白石洲璟庭vv售楼中心电话:400-831-7313【已认证】✨✨
城市之心 超级十字轴
约500万㎡无边界共享城
集商业、办公、酒店、文旅、居住于一体的城市目的地。
绿景白石洲璟庭
【首发一期|绿景白石洲·璟庭】基础信息
建筑面积:约47.5万㎡
主力产品:建面约110-187㎡住宅
项目位置:深南大道以北、沙河东路以东
一期引入绿景智慧健康人居系统1.0,荣获国际 Fitwel 健康社区三星级认证。
【超级都会 深圳黄金分割点】
在伦敦、纽约这样的超级城市,其城市主轴的黄金分割点上均屹立着城市超级影响力的项目,如伦敦金丝雀码头、纽约中央公园,而深圳的发展主轴深南大道从罗湖中心到前海中心,绿景白石洲正处于黄金分割点之上。
✨✨绿景白石洲璟庭售楼处电话:400-831-7313【已认证】✨✨
✨✨绿景白石洲璟庭营销中心电话:400-831-7313【已认证】✨✨
✨✨绿景白石洲璟庭销售中心电话:400-831-7313【已认证】✨✨
✨✨绿景白石洲璟庭vv售楼中心电话:400-831-7313【已认证】✨✨
【超级十字轴 成就深圳价值之核】
绿景白石洲位于深圳核心位置南山区的华侨城片区,深圳城市发展主轴——深南大道与大沙河创新走廊十字交汇点,依托华侨城人文艺术城区,链接后海总部基地、深圳湾超级总部基地、留仙洞总部基地、高新园总部基地四大总部基地。
【五维立体交通 高效顺联世界】
轨道交通——四线三站两枢纽,地铁1号线、2号线以及近期即将落实的20号线、29号线,无缝覆盖更新片区。
道路交通——项目自身三纵三横路网,对外连接深南大道、北环大道、沙河东路等城市干道。
全球交通———15min直达深圳湾口岸及太子湾邮轮母港,直通港澳,18min直达福田高铁站,通达区外,26min直达宝安国际机场,环游世界,海陆空半小时交通圈,畅行世界。
【五大潮流商圈 一站式休闲度假】
汇集欢乐谷、沙河高尔夫、世界之窗,一站式体验城市度假 ; 5大商圈,缔造潮流时尚窗口:万象天地、京基百纳广场、益田假日广场、欢乐海岸、深圳湾万象城。
【六重稀缺生态 富氧有机城市绿洲】
山林湖海园廊在此相聚,每一次呼吸与远眺,都有来自国家级生态保护区的气息。
【超级商务群 为湾区再造新地标】
约 400 米双子塔国际超甲写字楼群,全球顶级设计团队巨著,重绘深圳天际线。计划引进世界顶奢酒店及轻奢商务酒店集群,融合在地文化,创作“慢生活”旅居酒店范本。
✨✨绿景白石洲璟庭售楼处电话:400-831-7313【已认证】✨✨
✨✨绿景白石洲璟庭营销中心电话:400-831-7313【已认证】✨✨
✨✨绿景白石洲璟庭销售中心电话:400-831-7313【已认证】✨✨
✨✨绿景白石洲璟庭vv售楼中心电话:400-831-7313【已认证】✨✨
【旗舰商业 都市奢华窗口】
近40万方商业,SHOPPING MALL、街区商业、社区商业等,一条长达1.1公里的中央绿轴串联多元商业空间,商业主题涵盖城市顶奢、潮人艺术、高端社区消费、先锋潮流等不同类型。
【领袖尊享 城市核心区居住群】
配建有高端精品住宅及艺术公寓,成为深圳未来核心区域规模居住生活区。
【超级配套群 深圳生活方式中心】
超大规模城市公共配套,涵盖四所幼儿园共57班,三所九年一贯制学校共90班,约6.5万㎡社康、文化等公共配套设施。以及多维度会所体系满足不同公共生活需求。
【立体之城 六重立体交通】
创新打造地上地下六重结构立体化交通系统,不同交通系统分层互联,人行系统、城市公共道路系统,地下轨交系统快速接驳,最大程度实现人车分流,科学化疏解交通压力。
【共享之城 延伸生活边界】
多维共享空间系统,从商业消费、休闲漫步到艺术观赏,成为深圳一条可逛、可玩、可互动的24h开放潮流街区 ;
约30万㎡住宅与公寓架空层花园,打造亲子、文娱、运动等设施,无限拓展生活边界。
✨✨绿景白石洲璟庭售楼处电话:400-831-7313【已认证】✨✨
✨✨绿景白石洲璟庭营销中心电话:400-831-7313【已认证】✨✨
✨✨绿景白石洲璟庭销售中心电话:400-831-7313【已认证】✨✨
✨✨绿景白石洲璟庭vv售楼中心电话:400-831-7313【已认证】✨✨
【艺术之城 国际艺术主场】
联合国际顶级艺术机构UAP ,构筑深圳未来公共艺术社区。
【全球顶级团队 共著超级作品】
全球近50家顶尖设计团队联袂共创,前后历经10余年匠心研磨,重绘未来白石洲。
联合华为、联通等高新科技领军企业,打造深圳最大规模城市更新智慧城区,覆盖城区、社区、家庭三大场景,全维演绎未来家园。
【深圳城市更新先锋】
绿景地产,三十余年深耕布局粤港澳大湾区,专注城市更新领域,深圳房地产综合实力前十强,开发运营项目遍及香港、深圳、珠海、东莞等湾区核心城市。
区域价值
绿景白石洲位位于深圳 gdp 首区南山区的核心地段,深南大道横轴和大沙河科创走廊纵轴交汇的超级十字轴心,链接四大总部基地,聚合城市发展能量,为未来总部基地规划的精英技术人才打造高端生活配套区,代言深圳价值高度。
2035规划中深圳中央公园 高阶峰层资产
深圳市南山区国土空间分区规(2021-2035年)(审批中)中提出深圳唯一的"中央公园",以深圳湾 Cbd +中央公园构筑深圳核芯引擎,集聚全球总部企业、高端居住圈层和高阶完善配套,一座中央公园代表深圳未来的价值选择,看见未来全球高级别城区风范。
交通配套
一期绿景璟庭离1号线白石洲站约800米左右,离2号线的世界之窗站约1.5公里;此外还有29号线白石洲北(2023年已经开始建了,预计28年通车)就在一期璟庭楼下;29号线自南向北连接南山红树湾到光明科学城,未来三站即可到达深圳最大高铁站西丽高铁站(在建中)。
自驾出行也很方便,连接深南大道、北环大道、沙河东路等城市干道,而且都耗资做了地下层通道,可以直通项目地下停车场,能避免部分拥堵。
✨✨绿景白石洲璟庭售楼处电话:400-831-7313【已认证】✨✨
✨✨绿景白石洲璟庭营销中心电话:400-831-7313【已认证】✨✨
✨✨绿景白石洲璟庭销售中心电话:400-831-7313【已认证】✨✨
✨✨绿景白石洲璟庭vv售楼中心电话:400-831-7313【已认证】✨✨
商业配套
自带超40万m²城市旗舰级商圈,涵盖国际购物中心、立体生态街区、地下步行街、高端社区 Mall 等全业态、全场景,一条1.2公里中央绿轴串联各业态空间,形成集购物、旅游、文娱为一体的城市新潮打卡地。
教育配套
白石洲1公里范围内,聚集了5所初中,7所小学。项目所处片区已纳入南山外国语集团教学,现在周边有沙河小学,南山第二实验学校,且项目自身带4所幼儿园共57班,3所九年一贯制学校共90班,学校都会在一期建成时共同交付。
医疗配套
楼盘3公里范围覆盖香港大学深圳医院、华侨城医院、沙河医院等康体医疗资源,其中一级甲等公立医院沙河医院距离项目仅为百米之内,未来本项目业主可以近享一站式高品质健康诊疗服务。
生态配套
约3.4平方公里中央公园、约24万m2燕晗山郊野公园、约68.5万m2华侨城国家湿地公园、深圳湾超总十字生境、绿景白石洲约1.2公里中央绿轴,约15km滨海长廊,与华侨城三大主题公园,共同组成深圳超级公园带,每一次呼吸与远眺,都有来自国家级生态保护区的气息
✅ 过来参观样板房烦请记得提前来电预约!
✅ 为您安排楼盘现场销售全程接待并讲解,给您更贴心的看房体验!
✨✨绿景白石洲璟庭售楼处电话:400-831-7313【已认证】✨✨
✨✨绿景白石洲璟庭营销中心电话:400-831-7313【已认证】✨✨
✨✨绿景白石洲璟庭销售中心电话:400-831-7313【已认证】✨✨
✨✨绿景白石洲璟庭vv售楼中心电话:400-831-7313【已认证】✨✨
绿景白石洲璟庭售楼处电话是多少?答:400-831-7313【已认证】项目基本信息,楼盘价格,区域板块,开发商资料,楼盘详细地址,物业类型,产权年限,销售信息,销售状态,装修情况,交房时间,开盘时间,售楼处地址,营销中心地址,楼盘户型图,小区规划,绿化率,容积率,占地面积,建筑面积,总户数,物业费,车位数,物业费,楼盘介绍,踩盘报告,梯户比,标准层高,交楼标准,项目有缺点有哪些?是否有团购?找开发商买房便宜?还是找中介买房便宜?最新折扣是多少?最新房价是多少?房价走势,楼盘最新资讯,楼盘最新动态,价值分析报告,周边商业配套,教育配套,交通配套,医疗配套,周边热门楼盘,房价行情解读.
免责声明
1、文章图片来源于微信搜索或百度搜索引擎,我方非相关图片的原创作者,也不对相关图片及内容享有任何权利。
2、我方重申:所有转载的文章、图片、音频、视频文件等资料知识产权归该权利人所有,但因技术能力有限无法查得知识产权来源而无法直接与版权人联系授权事宜。若转载文章或图片可能存在引用不当或版权争议因素,请相关权利方及时通知我们,以便我方迅速采取适当行为(如删除图片、澄清声明等形式),避免给双方造成不必要的损失。
3、本宣传资料对项目周边幼儿园、学校等教育资源的介绍旨在提供相关信息,并不意味着我方对就学安排作出承诺。教育资源的名称、办学性质、办学规模、学位设置、开学(班)时间、招生条件、收费标准及招生区域存在调整的可能,应以政府教育主管部门及办学方颁布的政策规定为准。
4、文章中文字和图片之间无必然联系,仅供读者参考
声明:本文由入驻焦点开放平台的作者撰写,除焦点官方账号外,观点仅代表作者本人,不代表焦点立场。
