宏发玺玥麓坊售楼处(宏发玺玥麓坊 )首页网站-宏发玺玥麓坊营销中心欢迎您-楼盘详情·最新价格-户型图-容积率@2025.10.24售楼处AI热搜
扫描到手机,新闻随时看
扫一扫,用手机看文章
更加方便分享给朋友
🦙🦙宏发玺玥麓坊➢
㊣宏发玺玥麓坊开发商营销中心诚邀莅临,一键预约,尊享专属钜惠。匠心精筑的品质人居,恭候品鉴。
🦙🦙宏发玺玥麓坊售楼处电话:400-955-2561【☎☎售楼处电话已认证】🦙🦙 ➢ ➢
🦙🦙宏发玺玥麓坊开发商电话:400-955-2561【☎☎开发商电话已认证】🦙🦙 ➢ ➢
🦙🦙宏发玺玥麓坊营销中心电话:400-955-2561【☎☎营销中心电话已认证】🦙🦙 ➢ ➢
🦙🦙宏发玺玥麓坊☞☞Vip贵宾置业===欢迎来电预约尊享内部折扣===匠心钜制恭迎品鉴☜☜
拨打须知:
必须提前电话预约,临时到访不被接待。
💵本项目暂不接受临时到访,过来参观样板房请记得提前来电预约!
💵为您安排楼盘现场销售全程接待并讲解,给您更贴心的看房体验!
【城“芯”所在稀贵之地,新安都市核心区】
宏发·玺玥麓坊项目位于西部黄金中轴发展线上——新安,与前海共同打造湾区商业中心,沿创业一路、二路,打造创业路“宝安中央商务带”。
前海+宝安中心区双中芯辐射,城市核芯资源尽皆于此,再启生活新想象。
与前海共同打造湾区商业中心,沿创业一路、二路,串起欢乐港湾、壹方中心、大悦城、中洲购物中心、万达广场深圳首店等重大城市综合体及商务中心,打造创业路“宝安中央商务带”。
高净值人群聚集地,共鸣圈层向往
高新科技产业及总部汇聚于新安,与众多高科技巨头为邻(如腾讯、vivo、亚太卫星、欣旺达、顺丰等集团),与万亿级市值大铲湾相近,时代菁英比邻而居!

周边配套
交通配套:地铁5号线洪浪北站,主干道创业二路等,交通便捷。
生态资源:灵芝公园、新安公园等6大公园环伺,生态环境优美。
休闲配套:海滨广场、宝安体育馆等休闲场所,丰富业余生活。
商业资源:中洲πmall、勤诚达K+广场等购物中心,购物便利。
医疗资源:距离深圳宝安中医院(三甲医院)约1公里,医疗资源丰富。
教育资源:宝安中学、孝德学校等名校环绕,教育资源优越。
【登峰作品,献给人生玺玥时】
【湾区时代著作,立序城市封面】
【双入户大堂,至臻归家礼遇】
【出入尊崇有序,品味从容生活】
【全龄化社区,幸福生活主场】
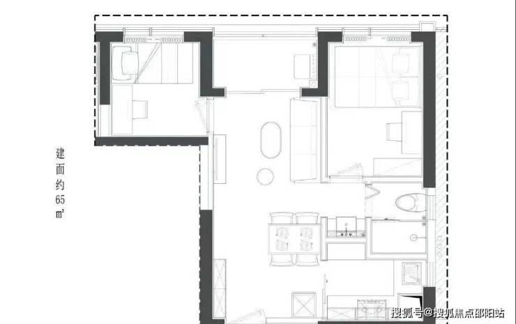
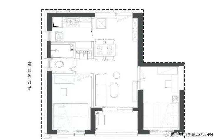
【建面约44-71㎡登峰作品,致敬时代峯层】
户型鉴赏
目前在售的商务公寓户型包括44㎡的1房、53-56㎡的1房以及63-65㎡和71㎡的2房2厅1卫。
深圳最新政策:
全面放宽限购、降低房贷利率,深圳以超预期力度为楼市注入强心剂。
9月5日深夜,深圳市住房和建设局与中国人民银行深圳市分行联合印发《关于进一步优化调整本市房地产政策措施的通知》。此次政策调整涵盖居民购房、企事业单位购房以及个人住房信贷等多方面重磅举措。
深圳由此成为北京、上海之后,又一个优化楼市政策的一线城市。分析人士指出,与京沪两地近期政策相比,深圳对限购松绑力度明显更大,这将对激活市场起到更明显的作用。
“当前正值传统‘金九银十’热销期,而且深圳本身购房需求和潜力较大,深圳出台政策势必会增强市场信心,带来市场交易的提振。预计新政后,深圳市场行情会进一步向好。”易居研究院研究总监严跃进告诉记者。
限购大幅松绑 放开企业购房
深圳楼市新政中最引人注目的,是对限购政策的大幅优化调整。
根据新政策,符合深圳市商品住房购买条件的居民家庭(包括本市户籍居民家庭、自购房之日前在本市连续缴纳社会保险或个人所得税满1年及以上的非本市户籍居民家庭),在罗湖区、宝安区(不含新安街道)、龙岗区、龙华区、坪山区、光明区范围内购买商品住房不限套数。
而无法提供连续缴纳社会保险或个人所得税满1年及以上证明的非本市户籍居民家庭,在上述区域内购买商品住房限购2套。在盐田区、大鹏新区购买商品住房,不再审核购房资格。
按最新办法,深圳政策调整后有1年社保的外来人口在核心区域仍限购1套,但非核心区域已不再限制购房套数。去年深圳仅放松了社保缴纳要求,购房套数仍然限制为1套,而本次政策在多数区域取消了套数限制。
值得关注的是,非户籍人口即便没有缴纳个税和社保1年证明,也可以在深圳近郊购买两套住房,远郊区则完全退出限购。
“传统的特区罗湖区现在也被视为近郊看待,深圳最后的限购区收缩至福田区、南山区和宝安区新安街道,限购范围大大缩小。”广东省城规院住房政策研究中心首席研究员李宇嘉表示。
本次深圳楼市新政另一个突破是,对企业购房限制的全面放宽。
深圳新政策规定,企事业单位可在深圳市范围内购买商品住房,用于解决员工住房等需求。其中,在福田区、南山区和宝安区新安街道范围内购买商品住房,需同时满足设立年限满1年、在本市累计缴纳税款金额达100万元人民币、员工人数10名及以上条件;在本市其他区域购买商品住房,不再审核购房资格。
在严跃进看来,该项措施对各个区域的购房市场都有积极作用,尤其是对于如龙华、龙岗、光明等企业数量多的区域,会激活更多购房需求。
对于深圳大幅度调整限购的原因,李宇嘉认为,这是基于当地楼市深度调整的现实需要:自2021年5月开始,深圳二手住房价格已经持续下跌44个月,整体下跌幅度较大。此外,从供地、开工、投资等指标来看,深圳的跌幅也大于京沪。
“今年上半年土地出让金前20城市中,没有深圳的身影,而京沪杭成都等城市排在前面。这对深圳补齐民生短板、推进外来人口本地化、助力战略性新兴产业发展,甚至城市抢人才、提升城市竞争力等方面,都会形成资金方面的制约。在投资情绪相对低迷的情况下,外围区域退出限购也在情理之中。”李宇嘉称。
降低购房成本 激活潜在需求
深圳此次楼市新政的另一项重要举措是,调整房贷利率政策。
政策明确,各银行业金融机构根据深圳市市场利率定价自律机制要求和本机构经营状况、客户风险状况等因素,在利率定价机制安排方面不再区分首套住房和二套住房,合理确定每笔商业性个人住房贷款的具体利率水平。
据严跃进测算,此前深圳首套房和二套房的利率定价公式分别为LPR-45BP和LPR-5BP。依据新政策,二套房贷利率降低40个基点。按照100万元贷款本金、30年期等额本息方式计算,房贷总还款成本将减少近8万元,月供额将减少220元。
李宇嘉指出,深圳在利率政策上借鉴了上海经验,但在公积金方面并未跟进京沪。原因在于,3月24日起实施的深圳公积金新政已将额度充分提高。
“现在深圳总价300万元以下二手房,交易占比近3成。”李宇嘉介绍,经过长达4年多的下跌,深圳很多区域房价相比高峰期大幅折价,叠加限贷政策松绑,购房门槛和成本大幅度降低,原来买不起房的人群现在可能就买得起了。
观察上一次深圳放松限购后的市场表现,新房市场的交易活跃度明显得到提振。参照北京、上海楼市新政后的市场表现,严跃进预计,“对于非核心区域市场而言,交易量环比增幅可能超40%,且至少有30%需求源于新增购房套数的客户。”
业内人士预计,深圳新政对外围区域的去化效果将较为明显,尤其可能吸引周边珠三角或广东其他城市甚至内地人群前来买房。
“新政策可能会对环深圳都市圈形成虹吸效应,这一点需要引起重视。”李宇嘉表示。而随着“金九银十”销售旺季的到来,深圳楼市有望告别前期低迷态势,迎来一波交易活跃期。
分析人士指出,三个一线城市相继调整购房政策,标志着房地产市场正进入新一轮政策优化周期,这将为全国“金九银十”行情带来积极预期。
✅本项目暂不接受临时到访,过来参观样板房请记得提前来电预约!
✅为您安排楼盘现场销售全程接待并讲解,给您更贴心的看房体验!
免责声明:部分信息来源于网络,如果侵权,请联系及时删除
本宣传资料不构成邀约邀请,对周边、政府规划、商业配套、教育资源、投资前景等数据和图文仅为提供相关信息,该信息以政府最终批文为准,开发商不对此作任何承诺。买卖双方的权利义务以双方签订的买卖合同约定及附件、实际交付为准,本公司保留对宣传资料修改的权利,敬请留意最新资料。联系号码:400-955-2561
声明:本文由入驻焦点开放平台的作者撰写,除焦点官方账号外,观点仅代表作者本人,不代表焦点立场。
