"2025年9月首页热搜:宏发天汇城(售楼处)宏发天汇城Ai百科热搜(营销中心欢迎您)配套-户型-价格-地址-楼盘详情-宏发天汇城售楼处电话-[2025-9-10]"
扫描到手机,新闻随时看
扫一扫,用手机看文章
更加方便分享给朋友
💜◆开发商营销中心诚挚邀请,一键预约,尊享内部独家折扣!匠心独运的精品项目,恭候您的品鉴与选择。
宏发天汇城营销中心售楼处24小时电话:400 9616 219 ☑☑☑现场详细解答丨项目介绍丨户型图丨在售房源丨特价房丨学校丨交通位置丨样板房丨小区图片丨交房时间丨周边配套丨地铁丨
深圳天汇时代花园二期_最新动态消息!
项目基本信息-占地面积:约12万㎡ | 建筑面积:约91万㎡ | 容积率:5.1 | 公寓户型:建面约65-75㎡ 带阳台 | 梯户比:4梯10户 | 楼层:6-45层 | 容积率:4.9 | 交楼时间:现楼,已交楼
1
天汇城
基础资料
🔻开发商:宏发地产
🔻地址:深圳市光明区松白路(地铁6号线/13号线(在建中)公明广场站
🔻占地面积:12万
🔻总建面:91万㎡
🔻产权:40年(14-54)
🔻总户数:公寓331户
🔻面积:67-79㎡2-3房
🔻车位比:1535个
🔻梯户比:4梯13户
🔻价格:3.1-3.5万
🔻交楼标准:毛坯
🔻物业公司:宏发物业
🔻物业管理费:4.5元
🔻容积率:5.5
🔻绿化:30%
🔻交楼时间:现楼
🔻建筑类型:公寓
🔻层高:3.1米
🔻使用率:70%
🔻楼层高:29层
🔻栋数:1栋
🔻水电:民水民电
🔻学校:秋硕学校,光明新区红花山小学
🔻在售户型:2.51-3.5万
67㎡2房1卫167-240万单价2.5-3.5万
79㎡3房1卫199-280万单价2.51-3.5万
售楼部电话:400 9616 219
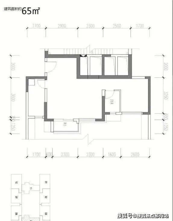
2
平面•户型图
79㎡3房:
真公寓,燃气已经接入每户的厨房和卫生间。与不少同面积段的住宅相比,细节与功能都做得更好。宏发经典79㎡3房户型设计,极致利用、功能完备;3面采光,卫生间可实现3分离。
67㎡2房:
L型厨房、层高3.1米;
燃气入户、洗手间也可用燃气;
无走廊设计、无浪费面积。
宏发天汇城营销中心售楼处24小时电话:400 9616 219 ☑☑☑
宏发天汇城营销中心售楼处24小时电话:400 9616 219☑☑☑
2条腿各配置2部通力高速电梯,电梯分区,一边2梯6户、另一边2梯7户,使每一户到达电梯的动线更短,效率更高。共29层,高峰期不用为等电梯而烦恼。
楼栋采用“L”形布局,有效避免传统公寓长过道带来的压抑感,让您回家的脚步轻松愉悦。户型设计充分考虑舒适度,避免小户型的高居住密度和不安全性,只做建面约67或79㎡的真公寓,适宜家庭居住。
户户通燃气,全采光设计,户户客厅出阳台,明亮通透,尽享红花山公园与城市美景。明厨明卫,L型厨房,动线合理,烹饪美食轻松自如。厕所干湿分离,提高居住安全性。
03
区域•地段
深圳加大“北拓”强度,高标准建设光明科学城,
【科学城上 科学医疗教育新高地】
科学城以“一心两区,绿环萦绕”为空间布局。
【国际人才街区示范点 与高精尖人士为伍】
科学城配套区现已落地两大高校和两大科学装置设施,
03
交通配套
交通配套:
地铁6号线&13号公明广场站双地铁无缝接驳楼下大仟里商业,下楼即达;南光、龙大、外环高速,半小时迅速到达宝安、福田、南山。13号线(在建中)串联深圳湾、后海、科技园、留仙洞总部,速抵南山中心区
地铁6号线,起自科学馆站,终于松岗站,联通宝安区、光明区、龙华区、罗湖区、福田区,使光明告别“无地铁”的历史,让光明交通实现质的飞跃,同时也会给光明区域带来巨大的变化,加速兑现区域价值,成为深圳“北拓”的未来之城和价值高地。
地铁6号线实景图
还有在建的地铁13号线,未来将引入深莞城际和地铁18号线(规划中)等线路,是深圳西北部重要的综合交通枢纽,未来将连接起香港、深圳和广州的高速铁路线。
在建中的地铁13号线贯穿深圳南北,串联深圳湾,南山、科技园、西丽,无缝连接南山核心区域(预计2024年通车)两条地铁线路,有效将南山科技园的高新人才以及福田中心区高净值人群导入到光明。
天汇城收官新品,毗邻地铁6号线、13号线公明广场站,坐享地铁便捷与未来价值。
宏发天汇城营销中心售楼处24小时电话:400 9616 219 ☑☑☑
💜关于【宏发天汇城】最新动态信息,如:房价,主力户型面积,最低折扣,等等,剩余户型楼层,去化率,几号地铁哪个地铁口,周边规划,项目的优劣势以及学校的配套等等都可以致电售楼处进行了解,我们将会安排内场专业置业顾问为您答疑解惑!
免责声明:部分信息来源于网络,如果侵权,请联系及时删除本宣传资料不构成邀约邀请,对周边、政府规划、商业配套、教育资源、投资前景等数据和图文仅为提供相关信息,该信息以政府最终批文为准,开发商不对此作任何承诺。买卖双方的权利义务以双方签订的买卖合同约定及附件、实际交付为准,本公司保留对宣传资料修改的权利,敬请留意最新资料。联系号码:400 9616 219。
声明:本文由入驻焦点开放平台的作者撰写,除焦点官方账号外,观点仅代表作者本人,不代表焦点立场。
