鸿荣源尚云(2025年鸿荣源尚云)首页网站-鸿荣源尚云楼盘详情-户型配套-楼盘详情-最新价格-户型图-容积率
扫描到手机,新闻随时看
扫一扫,用手机看文章
更加方便分享给朋友
✅鸿荣源尚云✅
【鸿荣源尚云】售楼处24小时电话:400-873-0112(开发商直销)现场详细解答丨项目介绍丨户型图丨在售房源丨特价房丨学校丨交通位置丨样板房丨小区图片丨交房时间丨周边配套丨

基本信息
【项目名称】鸿荣源尚云
【交房时间】2025年12月前
【产权年限】70年
【房产性质】住宅
【梯户比】3梯6户
【推售】82-120㎡3-4房住宅
【绿化率】40%
【占地面积】约1.53万㎡(总2.68万㎡)
【建筑面积】约11.3万㎡(总23.6㎡)
千万级旧改汇聚,品牌房企布局;鸿荣源、中洲、卓越、华润、华侨城等品牌开发商抢滩登陆龙华中心,区域定位以及发展潜力得到了各大优质开发商的一致认可。
龙华商业中心旧改、海岸城旧改、华润上塘旧改、德业基旧改四大百万级旧改汇聚,打造龙华区规模最大、业态最全、档次最高的居住区域。
三十二年深耕,城市标杆缔造者
鸿荣源多年来坚持投身粤港澳大湾区建设一线,依托深圳,深耕湾区,综合开发建筑面积超千万平米,服务客户逾4万户。
所到之处,必树标杆。如前海鸿荣源胤璞、前海熙龙湾、宝中壹方中心、香蜜湖的熙园、龙华中心区的壹城中心等,均为片区人居标杆项目。
区域价值
鸿荣源、中洲、卓越、华润、华侨城等品牌开发商抢滩登陆龙华中心,区域定位以及发展潜力得到了各大优质开发商的一致认可。
龙华商业中心旧改、海岸城旧改、华润上塘旧改、德业基旧改四大百万级旧改汇聚,打造龙华区规模最大、业态最全、档次最高的居住区域。
「 鸿荣源前瞻落子,龙商旧改首发」
百万级旧改蓄势,世界级商圈落位。鸿荣源抢占城市发展先机,率先布局,打造龙华商业中心城市更新单元首发人居臻品。
百万级旧改蓄势,世界级商圈落位。鸿荣源抢占城市发展先机,率先布局,打造龙华商业中心城市更新单元首发人居臻品。
周边配套
交通配套距离4号地铁线“龙华站”约400米,距离25号线“景龙站”(在建)约300米,4站到深圳北,5站到南山,7站到福田。商业:
紧邻壹方天地购物中心,内含1000米华南最长商业步行街,ABCDE五大主题商业区,超1000家品牌商家,也是龙华目前体量最大的商业中心。
教育:
项目自带一所3000㎡九班制幼儿园,楼盘旁边还规划了两所九年制公办学校。
临街龙华区第二实验学校华美校区(在建),距离150m规划一所18班高中学校
百米内全龄优教,享家门口目送式上下学。
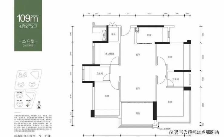
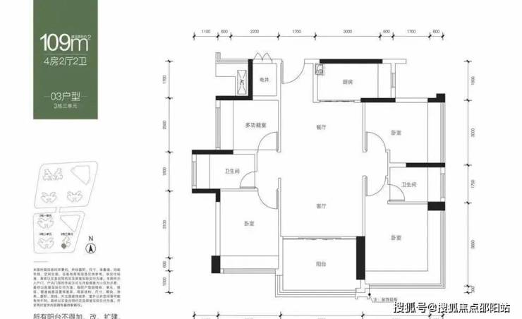
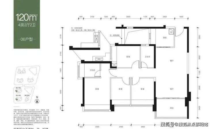
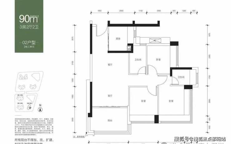
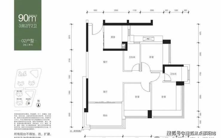
休闲生态:①4大文化地标集群:约2600㎡社区文化活动中心(社区内)、龙商中心文体中心(约150m)、龙华行政文化中心(约1.5公里)、龙华红山商圈(2.5公里),包含深圳书城龙华城、深圳美术馆新馆等市政配套。②2大体育中心:龙华文化体育中心(约1.5公里)、简上体育综合体(约2公里)。③4大公园绿地:1.06万㎡公园绿地(约150米)、龙胜公园(约1.2公里)、龙华公园(约1.2公里)、“城中氧吧”阳台山森林公园(约3公里)。户型鉴赏建面约82平户型图
【鸿荣源尚云】售楼处24小时电话:400-873-0112
【鸿荣源尚云】售楼处24小时电话:400-873-0112
【鸿荣源尚云】售楼处24小时电话:400-873-0112
✅鸿荣源尚云✅
【鸿荣源尚云】售楼处24小时电话:400-873-0112(开发商直销)现场详细解答丨项目介绍丨户型图丨在售房源丨特价房丨学校丨交通位置丨样板房丨小区图片丨交房时间丨周边配套丨
一、政策导向:长效机制逐步确立
房住不炒
定位持续强化,金融监管(如"三道红线")倒逼行业去杠杆
保障性住房
加速推进,2023年国务院规划的"十四五"期间650万套保障房建设将分流刚需
房产税试点
可能扩大,但会避免对市场造成剧烈冲击
二、市场格局深度调整
开发商转型
:头部房企向"开发+运营"模式转变,2024年万科、龙湖等企业物业管理收入已占20%+
区域分化加剧
:长三角/珠三角核心城市房价趋稳,三四线城市库存周期仍超24个月
行业集中度提升
:房企数量从2018年的9.7万家缩减至2024年的5.3万家
三、产品与服务升级
绿色建筑
占比提升,2025年新建建筑中绿色建材应用比例将超70%
智慧社区
成为标配,物联网技术应用使房产增值10-15%
适老化改造
市场规模2025年或达2万亿,应对人口结构变化
四、金融属性弱化
投资回报率
回归理性,重点城市住宅租金收益率维持在1.5-2.5%区间
REITs市场
加速发展,基础设施类REITs规模2024年已突破500亿元
二手房主导
:主要城市二手房交易占比已达60%以上,市场进入存量时代
五、风险与挑战
地方财政转型
:土地出让金占比已从2018年的66%降至2023年的48%
企业债务风险
:2024年房企债券违约规模同比下降35%,但个别企业仍承压
人口因素
:25-44岁购房主力人群预计2030年将比2020年减少5000万
未来5年关键指标预测:
指标
2023
2025E
2030E
年销售面积(亿㎡)
11.2
10.5
9.0
开发投资增速
-9.6%
1-3%
2-4%
城镇化率
65.2%
67%
70%
保障房占比
5%
15%
25%
总体来看,中国房地产将结束高速增长期,进入"总量下行、结构优化"的新阶段。行业价值链条从土地红利向管理红利转变,服务与运营能力成为核心竞争力。政策层面将通过"精准滴灌"维持市场稳定,避免系统性风险的同时,推动住房回归居住本质。
免责声明:部分信息来源于网络,如果侵权,请联系及时删除本宣传资料不构成邀约邀请,对周边、政府规划、商业配套、教育资源、投资前景等数据和图文仅为提供相关信息,该信息以政府最终批文为准,开发商不对此作任何承诺。买卖双方的权利义务以双方签订的买卖合同约定及附件、实际交付为准,本公司保留对宣传资料修改的权利,敬请留意最新资料。联系号码:400-873-0112。
声明:本文由入驻焦点开放平台的作者撰写,除焦点官方账号外,观点仅代表作者本人,不代表焦点立场。
