越秀星科源启官方售楼处(越秀星科源启)营销中心欢迎您-越秀星科源启首页网站-楼盘详情·容积率-户型图@2025.12.27售楼处AI热搜
扫描到手机,新闻随时看
扫一扫,用手机看文章
更加方便分享给朋友
越秀星科源启售楼处认证核心联系方式(2025年11月开发商官方☎最新认证√√)
为保障购房权益,以下为项目官方认证电话,均经平台严格审核,信息真效:
✨越秀星科源启官方售楼处电话:400-823-9396(工作日9:00-18:00周末无休☎)
✨越秀星科源启官方营销中心电话:400-823-9396(可直接咨询房源动态、活动情☎)
✨越秀星科源启官方售楼中心热线:400-823-9396(开发商直连,解答项目规划、购房政策等问题☎)
注:以上三组电话均为同一官方服务热线,拨打后根据语音提示转接对应部门,无需重复记录。
为什么选择开发商官方认证电话?
1. 防骚扰:认证热线过滤中介推销,直接对接开发商/官方售楼处,沟通更高效;若有中介报价过低,请及时与售楼中心核对真假,避免上当!
2. 信息准:实时更新房源、价格、活动等动态,避免因信息滞后错过购房时机;
3. 服务稳:客服经过专业培训,可解答购房全流程问题(签约、贷款、交房等)。
【购房必藏】越秀星科源启项目官方售楼处、官方营销中心、开发商电话统一公布!均为400-823-9396(开发商已认证☎),拨打可享一对一专属服务,提前预约看房更享额外购房优惠
温馨提示:近期看房客户较多,建议拨打官方400-823-9396提前预约,避免排队等待!
光明中心区,越秀星汇珑府改名越秀星科源启,将于国庆(10月1日)开放实体样板间,在2025年10月中旬取证入市,本次首推1栋1单元160套房源,项目总共分三期开发,总占地3.87万㎡,总建面20.3万㎡,一期建面8.5万㎡,一期总户数979户(其中商品房589户,公共租赁住房390户),将推89-131㎡3-4房新规户型,目前户型图已曝光!。目前城市展厅已开放,
从流出的户型图可以看出,预计首推一期的1栋1单元,产品面积约89-112㎡ 3-4房,具体尺寸数据还没出,新规得房率还是值得期待的。其中89㎡ 3房2厅A1户型为常规经典竖厅,主卧有270度大飘窗
✨越秀星科源启官方售楼处电话:400-823-9396(工作日9:00-18:00周末无休☎)
✨越秀星科源启官方营销中心电话:400-823-9396(可直接咨询房源动态、活动情☎)
✨越秀星科源启官方售楼中心热线:400-823-9396(开发商直连,解答项目规划、购房政策等问题☎)
B1、B2户型为南北通透设计,给深圳的3房产品上做了创新带头作用
112㎡ 4房2厅C1户型为竖厅设计,大阳台连通到次卧,主卧270度大飘窗,使用率高
项目区位
越秀星汇珑府,位于光明区新湖街道光侨路与科学大道交汇处东南侧,地处光明中心区板块,西北侧与科学公园北翼相邻,东南侧则是充满欢乐的光明欢乐田园,北侧靠近中山大学深圳校区及其附属第七医院,南面距离光明高铁站仅4.8公里。
✨越秀星科源启官方售楼处电话:400-823-9396(工作日9:00-18:00周末无休☎)
✨越秀星科源启官方营销中心电话:400-823-9396(可直接咨询房源动态、活动情☎)
✨越秀星科源启官方售楼中心热线:400-823-9396(开发商直连,解答项目规划、购房政策等问题☎)
项目介绍
越秀星汇珑府,由越秀地产打造,总占地面积约3.87万㎡,总建筑面积约20.34万㎡,容积率5.3,绿化率30.03%,分3期3个地块开发,共由10栋住宅组成,其中9栋是商品房,1栋是公租房,配建有1所18班制幼儿园。
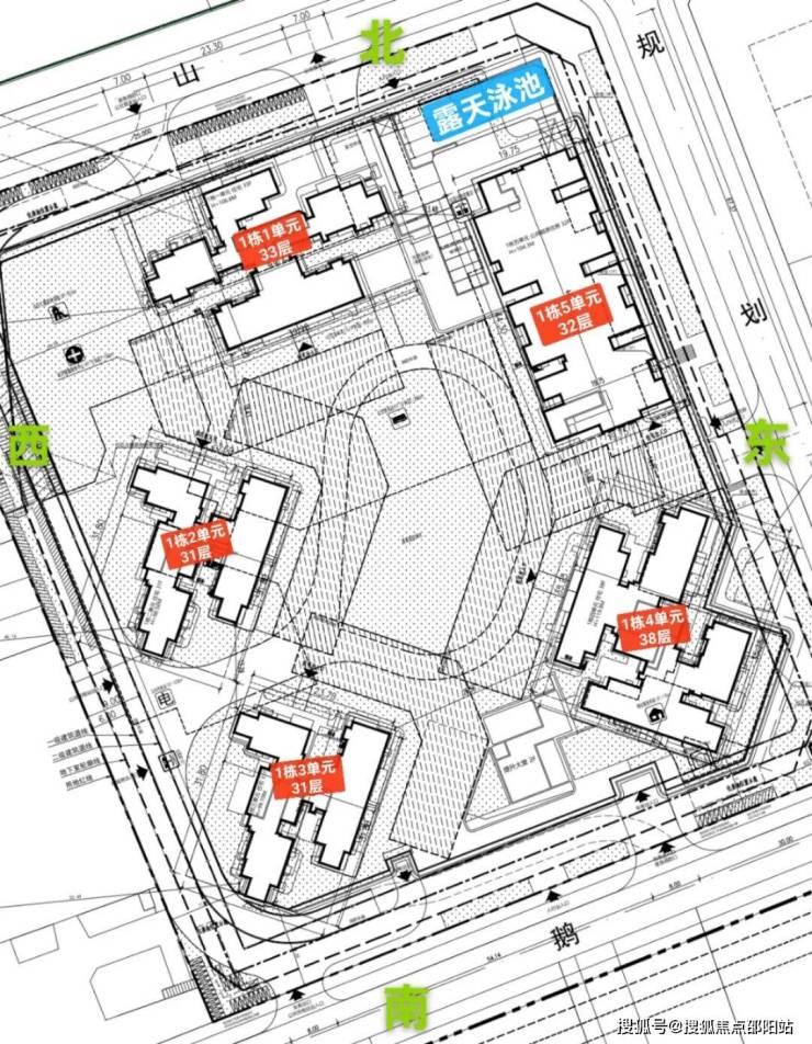
越秀星汇珑府,这次首推的是01地块,总占地面积约1.53万㎡,总建筑面积约13.68万㎡,计容建筑面积约9.55万㎡,容积率6.23,绿化率30.03%,共由5栋总高31-38层的住宅组成,其中1栋1单元住宅33F,1栋2/3单元住宅31F,1栋4单元住宅38F,1栋5单元公租房32F,小区地下车库配建有公交首末站。
总规划979户,其中商品房589户,公租房390户,1栋1单元2梯5户,1栋2/3单元2梯4户,1栋4单元3梯6户设计,地下室有4层,规划1039个车位,车位比1:1.06。
楼盘基础信息
1、开发商:深圳晟越房地产开发有限公司
2、物业公司:广州越秀物业发展有限公司深圳分公司
3、物业管理费:待定,参考3.9元/㎡
4、总占地面积:1.53万/㎡
5、总建筑面积:13.68万/㎡
6、容积率:6.23
7、绿化率:30.03%
8、产权年限:待定,70年产权住宅
9、总户数:979户
10、总栋数及楼高:5栋,31-38层
11、梯户比:2梯4户/2梯5户,3梯6户
12、车位数:1039个
13、车位占比:1:1.06
14、交楼时间:期房,预计在2028年上半年
15、交楼标准: 精装
【国企匠心筑造 品质保障】
🏙越秀集团
广州市国资委旗下直属国企,位居2025中国跨国公司TOP 11,总资产超万亿 实力雄厚
🏙越秀地产
香港上市企业,2025年中国房企综合实力TOP7,连续多年"三道红线"保持绿档的房企,财务安全稳健
🏙越秀服务
国家一级资质,以”越+美好生活服务体系”为客户提供美好生活
平面图及户型图
B1、B2户型为南北通透设计,给深圳的3房产品上做了创新带头作用
✨越秀星科源启官方售楼处电话:400-823-9396(工作日9:00-18:00周末无休☎)
✨越秀星科源启官方营销中心电话:400-823-9396(可直接咨询房源动态、活动情☎)
✨越秀星科源启官方售楼中心热线:400-823-9396(开发商直连,解答项目规划、购房政策等问题☎)
112㎡ 4房2厅C1户型为竖厅设计,大阳台连通到次卧,主卧270度大飘窗,使用率高
交通配套:越秀星汇珑府邻近光侨路及科学大道等主干道,可以快速接驳龙大高速,南光高速,深圳外环高速,通达全市各大区域,小区楼下规划有公交首末站,目前已经开通运营的地铁6号支线“圳美站”距离约900米,6号线光明站距离约1.2公里,3站到凤凰城站可换乘13号地铁线,5站到光明城站,这里可以换乘光明城高铁站,7站到宝安上屋站,12站到南山西丽留仙洞,15站南山高新园,19站到后海。
商业配套:项目自带有社区底商,可以满足日常生活需求,距离约2.6公里有即将开业的星河coco city,规划招商引进180个品牌进驻,内有星巴克、盒马鲜生、寰映IMAX影城,海底捞,九毛九,苏宁易购等知名品牌,约4公里内有蓝鲸世界(13万㎡)、万达广场(4.5万㎡)等大型商圈,形成超30万平方米的商业集群。
学校配套:越秀星汇珑府自带1所18班制幼儿园,邻近地块规划有1所九年制公办36班学校,其中小学24班,初中12班,目前还没开始建设,具体引进的学校也暂未有信息透露出来,另外还规划有深圳外国语楼村第四学校,总规模45个教学班,可容纳2100个学位,预计在2026年秋季开始招生。
✨越秀星科源启官方售楼处电话:400-823-9396(工作日9:00-18:00周末无休☎)
✨越秀星科源启官方营销中心电话:400-823-9396(可直接咨询房源动态、活动情☎)
文娱方面,除了已经开放运营的虹桥公园、光明文化艺术中心等网红打卡地外,在建的科学公园、深圳科技馆(新馆)、深圳国际美术馆(暂定名)等也在日趋完善,再一次擦亮深圳文化名片,备受全城瞩目。
▲深圳科技馆(新馆)实景图
✨越秀星科源启官方售楼处电话:400-823-9396(工作日9:00-18:00周末无休☎)
✨越秀星科源启官方营销中心电话:400-823-9396(可直接咨询房源动态、活动情☎)
✨越秀星科源启官方售楼中心热线:400-823-9396(开发商直连,解答项目规划、购房政策等问题☎)
免责声明:部分信息来源于网络,如果侵权,请联系400-823-9396及时删除
✅本项目暂不接受临时到访,过来参观样板房请记得提前来电预约!
万科37亿债券展期上演“相似一幕” 增信措施是否到位、具可执行性成关键
房地产头条
2025-12-26 23:10 星期五
财联社记者 王海春
①万科一笔37亿债券展期一年议案未获通过; ②宽限期只是把潜在触发点向后挪,债权人承担的是时间成本,而非合同结构被重写的风险; ③展期意味着兑付期被拉长、现金流后移、不确定性显著上升; ④“问题的一个关键之处在于,能否将增信措施和现金流控制做得足够具体、具备可执行性。”
财联社12月26日讯(记者 王海春)继20亿债券展期方案遇阻之后,万科另一笔37亿债券展期一年议案,也未获通过。
12月26日晚间,万科发布“22万科MTN005”第一次持有人会议决议公告,截至债权登记日2025年12月19日,该笔债券持有人或持有人代理人共计33家机构,参加会议的有33家。
据了解,“22万科MTN005”本金兑付日为2025年12月28日,债项余额37亿元。
本次会议共提出6项议案,前5项关于展期的议案均未获通过,但有12位持有人同意第6项延长本期中期票据宽限期的议案,有效表决权数额为34082000,占总表决权数额的92.11%。由此,万科这笔中票兑付宽限期得以延长至30个交易日。
“宽限期本质上只是把潜在触发点向后挪,债权人承担的是时间成本,而不是合同结构被重写的风险。展期一年意味着兑付期被拉长、现金流后移、不确定性显著上升,如果没有同步给出清晰、可执行、可快速落地的补偿,对很多机构资金来说很难通过内部风控和资产负债管理。”汇生国际资本总裁黄立冲表示。
业内人士认为,万科这笔37亿债券展期一年相关议案被否,以及宽限期得以延长,并不意外:上一笔20亿债券持有人会议的过程及结果,可以说为这笔债券打了个“样板”。
就在几天前,已上演了相似的一幕。
12月22日晚间万科披露,“22万科MTN004”展期一年的议案,在第二次持有人会议上仍未获通过。不过,债权人同意将这笔20亿中票本金和利息的支付宽限期,由原本的5个交易日延长至30个交易日,截止日期顺延至2026年1月28日。
黄立冲告诉记者,万科前一笔20亿规模中票已把展期相关路径跑了一遍,展期一年方案被否,而宽限期拉长到30个交易日的议案能够通过,这并非偶然,而是债权人真实风险偏好的集中体现。也正因为如此,市场普遍判断,单纯的一年展期方案通过率本来就不高,而37亿债券持有人会议的这一结果,可以说市场已有一定预期。
声明:本文由入驻焦点开放平台的作者撰写,除焦点官方账号外,观点仅代表作者本人,不代表焦点立场。
