京基御景峯搜狐焦点IAi热搜首页网站京基御景峯营销中心-楼盘详情-最新价格-户型图-容积率@最新售楼处
扫描到手机,新闻随时看
扫一扫,用手机看文章
更加方便分享给朋友
🏡购房难题不用愁?专业顾问1v1解忧!
✨ 直连开发商 · 无忧购房通道 ✨
🔍 购房疑问?一键咨询专业顾问!
📞 售楼处热线:400-873-0112【已认证】
项目区位丨户型解析丨在售房源丨特价优惠丨学区配套丨交通动线丨样板间实拍丨小区环境丨交付标准丨周边商业丨
基御景峯项目概况
开发商:京基地产
地址:位于南山区西丽留仙大道与长源二街交汇处
占地面积:64,000㎡
总建筑面积:640,000㎡
产权期限:70年
总套数:584套
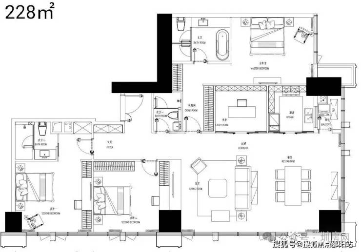
户型面积:68-228㎡,涵盖2至4房
车位数量:3,247个
梯户比:5梯6户/6梯4户
交楼标准:精装修
山地建筑的设计关键在于正确的处理好构成建筑环境的三个要点:山体、植物、建筑之间的关系,特别是处理好人工建筑物与自然景观之间的关系。从总规看,京基地产依照前商后居、前繁后宁的总原则,利用高低落差有序从山脚到半山排布:商业、写字楼、住宅公寓。独立成城又兼得城市互动。
坐拥“中央山”塘朗山千倾绿意,直面长岭皮水库开阔景致,接驳广东省二号生态休闲绿道,拥揽山、水、园、道四重生态资源,尽情奢享清风、阳光、鲜氧。
依山傍水,藏着多少人对人生最极致的设想。京基御景峯让精英人士在城市中心拥有“山、湖、河”生态绿色,山环水抱间,晓山晨曦,青翠欲滴,微风传递着阵阵鸟语花香,绝佳的生态格局呼之欲出。
从周边环境来看,项目背靠塘朗山,面朝长岭皮水库,视野景观十分开阔。
约15000亩(约1000万㎡)塘朗山绵延至此,连同西丽水库、长岭皮水库、塘朗山构成的公园群给项目带来得天独厚的山水景观资源。这里的绿化覆盖率居深圳第一,负氧离子含量是福田中心区的4倍。
交通方面,项目紧邻地铁5号线长岭陂站,5号线与地铁4、7、13号线(建设中)汇聚,临近深圳北站。未来西丽高铁站的加持之下,可便捷通达罗湖、前海等全市及全国。
从目前情况来看,区域内片区产、城、人高度融合,商住双线发展趋势明显,未来更易形成沉浸式的消费体验场景和综合体融合的氛围。这也意味着,区域界面逐步接轨未来,生活资源也将日趋丰富。

地标综合体:留仙大道封面之作
京基地产27载匠心沉淀,匠造约64万㎡生态人文综合体,集精品公寓、品质住宅、旗舰商业、高端办公四位一体,享商务、居住、娱乐、休闲、美食等全配套服务。
自带约3.6万㎡旗舰商业mall, 24小时开放式街区,不用出远门全方位满足居住、吃喝玩乐等多种需求;
教育配套
项目旁边规划有九年制公立学校;项目附近还有玉龙学校距离约1.8公里;深圳外国语学校龙华学校约2公里;另外南方科技大学;距离项目约1.3公里,深圳大学约1.3公里等。
【办公体】:办公和商业空间灰色气质,办公楼折线开口设计使大面积的玻璃立面生动活泼且具有现代感;竖线条更加突显建筑的高耸挺立。
平面•户型图
关于本项目最新动态信息,如:在售房源价格,热门户型面积,限时特惠活动,等等,未推售楼栋分布,整体销售情况,临近地铁线路及出入口方位,区域发展蓝图,楼盘核心亮点与待完善细节以及教育资源配套情况等等均可拨打售楼处热线咨询,我们将为您对接专属资深置业顾问进行细致讲解!
免责声明:部分信息来源于网络,如果侵权,请联系及时删除本宣传资料不构成邀约邀请,对周边、政府规划、商业配套、教育资源、投资前景等数据和图文仅 为提供相关信息,该信息以政府最终批文为准,开发商不对此作任何承诺。买卖双方的权利义务以双方签订的买卖合同约定及附件、实际交付为准,本公司保留对宣传资料修改的权利,敬请留意最新资料。联系号码:400-873-0112。
声明:本文由入驻焦点开放平台的作者撰写,除焦点官方账号外,观点仅代表作者本人,不代表焦点立场。
