中冶逸璟台售楼处(广州中冶逸璟台)首页网站-中冶逸璟台营销中心欢迎您-楼盘详情-最新价格-户型图-容积率-@2025.09.26售楼处AI热搜
扫描到手机,新闻随时看
扫一扫,用手机看文章
更加方便分享给朋友
【广州发展潜力标杆板块】
地处黄埔科学城板块核心 —— 由政府斥资 500 亿元重点打造的长岭新城。
2018 年正式纳入广州主城区规划后,长岭新城已开启强势崛起的发展新篇。
【黄埔轨道交通关键枢纽之一】
21 号线地铁仅需 20 分钟即可直达天河,黄埔首条有轨电车近在家门口,全国首条高速地铁正全力规划推进,未来从这里前往广州东站仅需 9 分钟。
【片区教育资源与越秀相当】
项目周边汇聚了广州东部的优质公立学校,以及广州知名的国际学校。
【资源臻稀难再】
容积率低至 2.0 的绝版地块,主城五年来唯一被三山环抱的在售项目,每户皆可拥享 270° 巨幕山林景观。
【国匠精工 品质护航】
作为世界 500 强央企的中国中冶,曾参建北京人民大会堂、鸟巢、上海世博会场馆、上海迪士尼及珠海长隆等众多国家地标级建筑。
【配套完备】
全龄生活空间打造,一站式娱乐即享
【纯粹圈层】
黄埔在售唯一纯改善社区,圈层高端纯粹。
项目配套
• 交通配套:黄埔交通规划2 国铁+4 城际+15 地铁+6 有轨!21号线长平地铁站——联通6号线、7号线二期、23号线,20分钟通达天河;中冶逸璟台售楼处电话:4008368707,项目出门即享有轨电车1号线——长岭居小学站;广汕公路、京港澳高速、济广高速快速通达全城
• 教育配套:拥有 58 年深厚教学底蕴的长岭居小学,公办名校北师大广州实验学校、铁英中学已正式招生开学;香港大学国际学院亦即将落户长岭居片区。
• 医疗配套:汇聚东部优质医疗资源,包括三甲资质的广医妇幼、中大岭南医院、宝能国际医院,以及广州市干部疗养院等医疗保障机构。
• 商业配套:萝岗敏捷广场、萝岗万达广场、奥园广场、锐丰中心等成熟商圈环伺,更有华润人才创展中心(规划中)、奥园春晓西侧 8 万㎡商业综合体(已动工)加码;15 分钟生活圈内,超百万平米商业旗舰集群触手可及。
• 公园配套:萝峰山、水牛山、黄旗山三大自然山体紧邻项目,长岭居运动公园(规划中)亦在规划建设中,自然生态资源得天独厚。
美图鉴赏 一院至美天地 逸韵山水之间
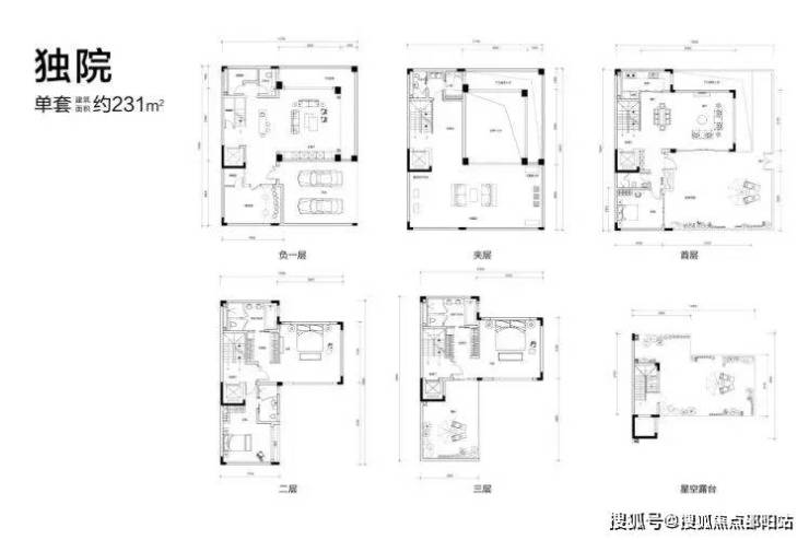
项目户型图
声明:本文由入驻焦点开放平台的作者撰写,除焦点官方账号外,观点仅代表作者本人,不代表焦点立场。
