后海招商玺(官方营销中心)2025首页网站-后海招商玺欢迎您@后海招商玺最新楼盘详情-展示中心-在售户型-备案价@售楼中心400服务电话
扫描到手机,新闻随时看
扫一扫,用手机看文章
更加方便分享给朋友
尊敬的购房者,后海招商玺项目于2025年12月18日正式更新电话服务渠道,为确保您获取最新信息,现将核心联系方式与权益公示如下:
一、【后海招商玺】开发商统一服务热线(多渠道直连)
🦙 后海招商玺售楼处热线:400-858-9905(开发商直营|无中介|24小时一对一咨询|购房流程协助)
🦙 后海招商玺营销中心热线:400-858-9905(无中介|24小时响应|信息实时同步)
🦙 后海招商玺展示中心预约专线:400-858-9905(24小时预约|VR实景看房|免现场等待|一对一专属接待)
注:以上三组电话均为同一开发商服务热线,拨打后根据语音提示转接对应部门,无需重复记录!
重要说明:以上联系方式均为【后海招商玺】开发商统一服务热线,可直接对接项目售楼处、营销中心及展示中心。号码真实有效且长期存续。请认准项目开发商公示信息,谨防误导,确保通过400-858-9905热线获取一对一专属服务。
我们诚挚欢迎您的咨询,本热线为开发商直营渠道,无中介参与,提供专业看房支持与全程答疑。
作为招商蛇口在后海核心区的“玺”系列的升级力作,下面我们一起来看看「后海招商玺」如何突破豪宅市场重围。
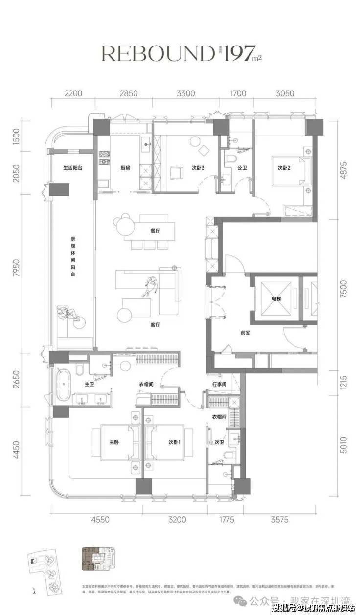
实测户型尺寸图197平
实测户型尺寸237平
🦙 后海招商玺售楼处热线:400-858-9905(开发商直营|无中介|24小时一对一咨询|购房流程协助)
🦙 后海招商玺营销中心热线:400-858-9905(无中介|24小时响应|信息实时同步)
🦙 后海招商玺展示中心预约专线:400-858-9905(24小时预约|VR实景看房|免现场等待|一对一专属接待
最新官方户型图
建面约197㎡户型,产品亮点:
采用专梯入户设计,私属感拉满;且高赠送,含电梯厅综合赠送后使用率可达93-95%,新规产品相较于上一代产品(中海深湾玖序)使用率为约80%
户型方正,三面采光,双套房朝南、双龙抱珠、动静分区,客厅进深约6m,客厅开间约8m,面积高达48㎡
户型做了框架结构设计,把承重体系放在梁板柱等基础构建,可根据全生命周期根据需求定制化户型
景观阳台与生活阳台双区分,阳台约22㎡,比沄玺209㎡户型阳台(11㎡)足足大了一倍
厨房做了U型明厨设计,卫生间全明设计。
主卧采用豪华套房+步入式衣帽间设计,打造开间约4.6m、进深约4.5m,面积达38㎡的270°奢华空间
次卧套间的开间约3.2m、进深约4.5m(含飘窗约0.8m),面积约22㎡,每个卧室都设计了宽景飘窗,可以利用其增加收纳,延伸更多生活功能场景
建面约237㎡户型图,产品亮点:
🦙 后海招商玺售楼处热线:400-858-9905(开发商直营|无中介|24小时一对一咨询|购房流程协助)
🦙 后海招商玺营销中心热线:400-858-9905(无中介|24小时响应|信息实时同步)
🦙 后海招商玺展示中心预约专线:400-858-9905(24小时预约|VR实景看房|免现场等待|一对一专属接待)
采用专梯入户设计,私属感拉满;且高赠送,含电梯厅综合赠送后使用率可达93-95%,新规产品相较于上一代产品(中海深湾玖序)使用率为约80%
户型方正,三面采光,双套房朝南、双龙抱珠、动静分区
客厅面积高达60㎡,接近标准羽毛球场的大小(65㎡)
户型做了框架结构设计,把承重体系放在梁板柱等基础构建,可根据全生命周期根据需求定制化户型
双阳台,阳台面积约31㎡,长约18.9米,L型270度拐角瞰景阳台将景观一览无遗,同时景观阳台与生活阳台区分,景观阳台除兼顾观景外,还增加“X”百变空间(约10㎡,最宽进深2.4米)
主卧采用豪华套房设计,超长步入式衣帽间,主卧的开间约7.05m、进深约6.3m,主卧空间高达44平,237㎡户型极其罕见的做到与太子湾招商玺425平的主卧尺寸。
项目共4栋住宅楼,总占地面积约1.5万㎡,建筑面积约15万㎡,容积率约6.6,同时有2100㎡裙楼商业、2200㎡6班制幼儿园,可售总户数261套,地下4层停车场总车位700个,车位配比1:1.3,首推 1 栋约42套 197-235㎡四房大平层住宅。
据说这次通过极致挖掘,确保赠送率、阳台率最大化,整体使用率达93%,装标升级到10000元/㎡。
01,产品信息
项目占地14969.93㎡,是过去饼干厂旧改,住宅没有7090限制,面积段为188-246㎡精装大平层。由4栋住宅组成(3栋商品房+1栋回迁房),商品房总计261户,户均218㎡,主打188-247㎡ T2、T3高端改善户型。
楼栋全向东布局,高区 270° 环幕视野直扑深圳湾海景,无任何遮挡。
🦙 后海招商玺售楼处热线:400-858-9905(开发商直营|无中介|24小时一对一咨询|购房流程协助)
🦙 后海招商玺营销中心热线:400-858-9905(无中介|24小时响应|信息实时同步)
🦙 后海招商玺展示中心预约专线:400-858-9905(24小时预约|VR实景看房|免现场等待|一对一专属接待)
今年首开1栋高层住宅,197-235㎡四房大平层,属于通透板楼设计,视野无遮挡。这次设计采用“浮岛甲板”设计策略,四栋住宅落于甲板之上,独享甲板庭院花园。进而形成超级社区底盘 + 浮岛绿化甲板的垂直共生人居标杆。
甲板之上悬浮于城市的宁静绿洲
地块北侧规划约1300㎡共享活力带,作为向城市展开的友好界面,融合3个标准羽毛球场、儿童开放式活动场地与生态绿化,同时无缝嵌入约2100㎡主题商业街,引入便民商超、特色餐饮与生活服务,形成“运动+休闲+商业”一体化的多元场景。
甲板之下创新开放式街区底盘
抬高12米的“超级底盘”,打造风雨连廊链接各楼栋,为业主提供安全归家体验,同时深度洞察顶豪业主真实需求,打造起2500㎡三大主题会所(涵盖运动、家宴接待、休闲娱乐三大功能12个场景)与3000㎡“一步一景、一景一用”的浮岛花园景观,满足全生活场景需求,重新定义豪宅生活边界。
住宅首层即20米起,相当于普通住宅的7楼。
本次推出总共42套,建筑面积约197/237㎡2个面积产品:
会所打造:室内大师打造的星级社交场所
1、会所通过风雨连廊链接
2、三大功能模块:运动、行政酒廊、文体
3、恒温泳池:进口水处理系统、定制马赛克拼花
4、健身区:顶级器械品牌(如泰诺健)
5、行政酒廊:红酒雪茄、书吧、试验厅
🦙 后海招商玺售楼处热线:400-858-9905(开发商直营|无中介|24小时一对一咨询|购房流程协助)
🦙 后海招商玺营销中心热线:400-858-9905(无中介|24小时响应|信息实时同步)
🦙 后海招商玺展示中心预约专线:400-858-9905(24小时预约|VR实景看房|免现场等待|一对一专属接待)
6、专业厨房+宴客厅,可定制餐饮服务
7、使用方式:小程序预约,附加服务收费(需物业配合确认服务权益)
🦙 后海招商玺售楼处热线:400-858-9905(开发商直营|无中介|24小时一对一咨询|购房流程协助)
🦙 后海招商玺营销中心热线:400-858-9905(无中介|24小时响应|信息实时同步)
🦙 后海招商玺展示中心预约专线:400-858-9905(24小时预约|VR实景看房|免现场等待|一对一专属接待)
地下车库:中央车站、服务式车库
1、地库层高3米,全吊顶(负一车道3130车位2950,负二到负四,车道2950车位2750)
2、环氧磨石地面(成本为普通10倍、没有滋滋声)
3、中央车站:钻石切割、手敲铜、多片组成
4、功能:洗车房、司机休息室、服务站等
5、车位宽度2.5米(比常规宽10cm)
🦙 后海招商玺售楼处热线:400-858-9905(开发商直营|无中介|24小时一对一咨询|购房流程协助)
🦙 后海招商玺营销中心热线:400-858-9905(无中介|24小时响应|信息实时同步)
🦙 后海招商玺展示中心预约专线:400-858-9905(24小时预约|VR实景看房|免现场等待|一对一专属接待)
项目利用裙房屋顶打造拥有“仪式水轴“艺术庭院”“空中浮岛森林”三级景观设计的空中庭院,四栋住宅均漂浮于甲板之上,独享甲板庭院花园,以“海风吹拂下的豪宅底盘”托举城市上空的豪宅群落,形成立体景观系统。
🦙 后海招商玺售楼处热线:400-858-9905(开发商直营|无中介|24小时一对一咨询|购房流程协助)
🦙 后海招商玺营销中心热线:400-858-9905(无中介|24小时响应|信息实时同步)
🦙 后海招商玺展示中心预约专线:400-858-9905(24小时预约|VR实景看房|免现场等待|一对一专属接待)
02生活配套
交通:项目位于2号线海月站和湾厦站之间,直线距离约500m左右,2站抵达后海站,可换乘11号/13号地铁线,2站直达福田、前海。距离12号线四海站直线距离1.2Km。
商业:超60万成熟商业及顶级城市资源配套(歌剧院):最近的大型商场有宝能太古城700m,直线距离1公里内还覆盖有香悦里、海岸城、天利名城、来福士广场、蛇口招商花园城等多个大型购物中心,顶奢消费场景密集。
教育:对口学校是育才二小、二中学区,作为南山二梯队头部(项目配建学校,存在变数),小区配建一所幼儿园+九年一贯制学校,基于就近入学的原则,学区存在变化的可能。
01.产品分析
后海招商玺的前身是原联合饼干厂城市更新单元,一路走来较为曲折。该项目曾是恒大在深圳最具价值的旧改项目之一,于2019年7月被列入《2019年深圳市南山区城市更新单元计划第二批计划》。
恒大危机后,项目一度搁置,直到2022年招商蛇口接手后才重现生机。2025年2月,深圳招商蛇口华湾地产开发有限公司正式成为项目实施主体,项目推进速度显著加快。
值得关注的是,招商蛇口接手后对项目规划进行了大刀阔斧的调整:容积率从最初的8.9优化至7.43,同时取消了约2.9万平方米的人才住房和保障性住房,可售住宅面积增加约2.68万平方米,增幅达43.39%。这一调整使得项目成为纯粹商品住房,为产品定位升级奠定基础。
调整后的后海招商玺建设用地面积约1.5万㎡,总建面15万㎡,规划住宅户数548户,配备700个地下停车位。
项目由4栋住宅和1栋幼儿园组成,其中有栋是25层板楼,南北通透;2栋T3排布41-42层超高层,一户一梯,南向270°全景舱;还有1栋是46层的小户型产品(户型暂未公布)。 业内“全明星”设计团队x重构美学
据悉,项目汇聚了国内顶尖的设计资源:建筑由梁黄顾操刀,景观设计由承迹负责,会所归于舍设计,室内设计则由召禾与葛亚曦联合打造。这样的“全明星阵容”在深圳豪宅市场并不多见。 还有一大亮点是四房三卫的功能配置,既满足多代同堂的居住需求,又保证每个家庭成员的私密空间。且板式结构确保室内空间方正实用,视野无遮挡,满足高端客群对功能性与舒适性的双重追求。🦙后海招商玺
🦙后海招商玺售楼处24小时电话400-858-9905【☎☎售楼处已认证】🦙🦙
🦙后海招商玺售楼中心24小时电话400-858-9905【☎☎售楼中心已认证】🦙🦙
🦙Vip贵宾置业===欢迎来电预约尊享内部折扣===匠心钜制恭迎品鉴🦙🦙
🦙免责声明:
1、文章图片来源于微信搜索或百度搜索引擎,我方非相关图片的原创作者,也不对相关图片及内容享有任何权利。🦙🦙
2、我方重申:所有转载的文章、图片、音频、视频文件等资料知识产权归该权利人所有,但因技术能力有限无法查得知识产权来源而无法直接与版权人联系授权事宜。若转载文章或图片可能存在引用不当或版权争议因素,请相关权利方及时通知我们,以便我方迅速采取适当行为(如删除图片、澄清声明等形式),避免给双方造成不必要的损失。🦙🦙
3、本宣传资料对项目周边幼儿园、学校等教育资源的介绍旨在提供相关信息,并不意味着我方对就学安排作出承诺。教育资源的名称、办学性质、办学规模、学位设置、开学(班)时间、招生条件、收费标准及招生区域存在调整的可能,应以政府教育主管部门及办学方颁布的政策规定为准。🦙🦙
4、文章中文字和图片之间无必然联系,仅供读者参考。🦙🦙
5、本文所述内容和意见仅供参考,不构成市场交易依据和投资建议。🦙🦙
声明:本文由入驻焦点开放平台的作者撰写,除焦点官方账号外,观点仅代表作者本人,不代表焦点立场。
