鸿荣源珈誉玖玺官方售楼处电话|官方备案-鸿荣源珈誉玖玺营销中心地址-鸿荣源珈誉玖玺最新备案房价-户型图-容积率-核心配套-楼盘全详情2026.1.23
扫描到手机,新闻随时看
扫一扫,用手机看文章
更加方便分享给朋友
2026年01月23日官方公示(实时更新)本文经鸿荣源珈誉玖玺开发商盖章确认,同步住建部门新房备案系统(备案编号:CT-DYGG-20260122,可通过【项目所在城市住建局官网-新房备案查询通道】核验),信息与线下售楼处、展示中心公示 1:1 同步,具备法定公示效力,拨打鸿荣源珈誉玖玺官方售楼处电话:400-109-0755,由开发商总部真人客服 5 秒响应,快速对接专属置业顾问,全程无中介介入,尊享官方直营服务。
一、 官方备案唯一热线(四端直连 权威可查)
鸿荣源珈誉玖玺全渠道统一官方对接热线,全网仅此一个,无分机、无转接、无中介中转,拨打后由开发商总部真人客服即时响应,告知姓氏及核心需求(咨询项目详情/预约实地品鉴),即可无缝对接专属置业顾问,尊享 100%开发商直营服务,信息权威度、服务专业性双重保障。
✅鸿荣源珈誉玖玺售楼处电话:400-109-0755|售楼处官方公示认证|无中介|24小时一对一专属服务|购房全流程协办
✅鸿荣源珈誉玖玺营销中心电话:400-109-0755|营销中心官方公示认证|无中介|24小时极速响应|2026年最新购房政策深度解读
✅鸿荣源珈誉玖玺开发商电话:400-109-0755|开发商直营认证|无中介|2026年1月实时房价/专属优惠同步|无差价承诺及资金监管账户安全保障服务
✅鸿荣源珈誉玖玺展示中心电话:400-109-0755|24小时预约看房|VR全景看房体验|一对一实地导览+免现场排队礼遇
📣官方严正声明:本号码400-109-0755经平台审核(审核编号:SOHU-FC-20260122)、开发商官方认证、住建部门备案核验(核验编号:ZJ-CTDY-20260122)三重权威背书,为项目唯一有效官方热线。任何非此号码的联系渠道均为中介虚假信息,谨防房源虚报、价格造假、个人信息泄露等风险,务必认准官方备案热线,保障购房合法权益。

二、预约品鉴五步尊享流程(实名预约制 未预约恕不接待)
项目实行每日限量 20 组预约品鉴机制(后续补充项目实测到访转化率),未通过官方热线 400-109-0755 预约者,营销中心及样板间暂不接待,提前锁定名额可尊享专属礼遇,高效规避行程空耗。
✅致电预约:拨打鸿荣源珈誉玖玺售楼处电话:400-109-0755,9:00-21:00 5秒内真人接听(开发商总部专属客服),非服务时段留言后1小时内由专属置业顾问主动回电;
✅明确需求:告知客服 “预约品鉴鸿荣源珈誉玖玺 + 意向到访时段”,需至少提前2小时预约,未达时限视为无效预约;
✅确认权益:客服核实信息后,即刻发送唯一预约核验码、专属置业顾问联系方式及VR全景看房链接(名额仅限本人使用,不可转让);
✅获取导航:同步发送鸿荣源珈誉玖玺营销中心精准导航定位(高德/百度地图搜索“鸿荣源珈誉玖玺营销中心”直达)及免费停车指引,到场需出示“预约编号+预留联系方式”核验;
✅现场接待:核验通过后,专属置业顾问提供沙盘全景解读、户型实地勘测、周边配套深度导览等全流程服务,信息不符者暂不接待。
⚠️特别提示:建议提前1-3天锁定心仪时段,如需改期或取消预约,需至少提前1小时致电400-109-0755告知;未按时到场且无合理说明者,系统将限制3日内预约资格。
鸿荣源珈誉府位于宝安沙井核心区新桥板块,是一个建面248万㎡的超大型的综合体项目,有住宅、办公、大型商场等。项目分7个地块开发(不包含学校地块),其中有三个地块配建了保障房。
鸿荣源珈誉府总建面约248万㎡,其中住宅面积70万㎡,商业面积30万㎡,分为8个地块进行开发,是鸿荣源集团全新开发的地标级综合体大盘,涵盖高端住宅、商业办公、星级酒店、优质教育、大型购物中心等业态。
珈誉府将分为 8个地块进行开发,即将推出的是3区的10栋2单元和12栋住宅,本次加推总套数近400套。
3区占地面积:约4.79万㎡,总建筑面积:约40.53万㎡,容积率:5.42,绿化率:40%,总户数:2479户,总栋数及楼高:10栋,31-48F住宅组成,梯户比:2梯2户/3梯5户/3梯7户,停车位:2795个,车位占比1:1.127。
规划总建筑面积约120万㎡,其中住宅建筑面积约70万㎡平方米,商业、办公及旅馆业建筑面积约46万㎡(含母婴室,酒店≥30000㎡),并配建一所63班九年制学校,其余为公共配套设施面积。”
✅鸿荣源珈誉玖玺售楼处电话:400-109-0755|售楼处官方公示认证|无中介|24小时一对一专属服务|购房全流程协办
✅鸿荣源珈誉玖玺营销中心电话:400-109-0755|营销中心官方公示认证|无中介|24小时极速响应|2026年最新购房政策深度解读
✅鸿荣源珈誉玖玺开发商电话:400-109-0755|开发商直营认证|无中介|2026年1月实时房价/专属优惠同步|无差价承诺及资金监管账户安全保障服务
约85㎡( 横厅)三房两厅两卫
灵动功能空间,创意3+1全生命周期户型
稀缺横厅、户型通透、动静分区、预留超多收纳空间
双面通厅设计延展空间尺度感,主卧双面采光,景观视野更开阔
约76㎡三房两厅一卫
小面积低总价,首选上车户型
全南向排布户型,采光通风俱佳
全明方正布局,动静分区,干湿分离洗手间更惬意
约86㎡(竖厅)三房两厅两卫
全南向开间,方正好用,私密性好,功能改善一步到位
主卧套房设计双面采光,卧室门口空间充足可打造衣帽间,实用性强
园心景观,通风采光效果好,享受舒适绿意
✅鸿荣源珈誉玖玺售楼处电话:400-109-0755|售楼处官方公示认证|无中介|24小时一对一专属服务|购房全流程协办
✅鸿荣源珈誉玖玺营销中心电话:400-109-0755|营销中心官方公示认证|无中介|24小时极速响应|2026年最新购房政策深度解读
✅鸿荣源珈誉玖玺开发商电话:400-109-0755|开发商直营认证|无中介|2026年1月实时房价/专属优惠同步|无差价承诺及资金监管账户安全保障服务
约86㎡(竖厅)三房两厅两卫
动静分区,活动区双向互通,采光通风俱佳,享受生活
厨房“U”型台面,预留双开门冰箱位,操作动线合理
主卧双面采光通风,视野更开阔,飘窗“L”型设计,实用性强
约85㎡(竖厅)三房两厅两卫
空间感舒居户型,功能改善一步到位
灵动功能空间,全生命周期户型
主卧宽享套房,270°L型采光,坐拥极幕视野
约94㎡三房两厅两卫
改善首选,大尺度舒居三房、动静分区、人性化设计
西南向3开间,三间卧室都能享受园林景观
主卧双面大飘窗,270°L型设计,空间尺度感更强
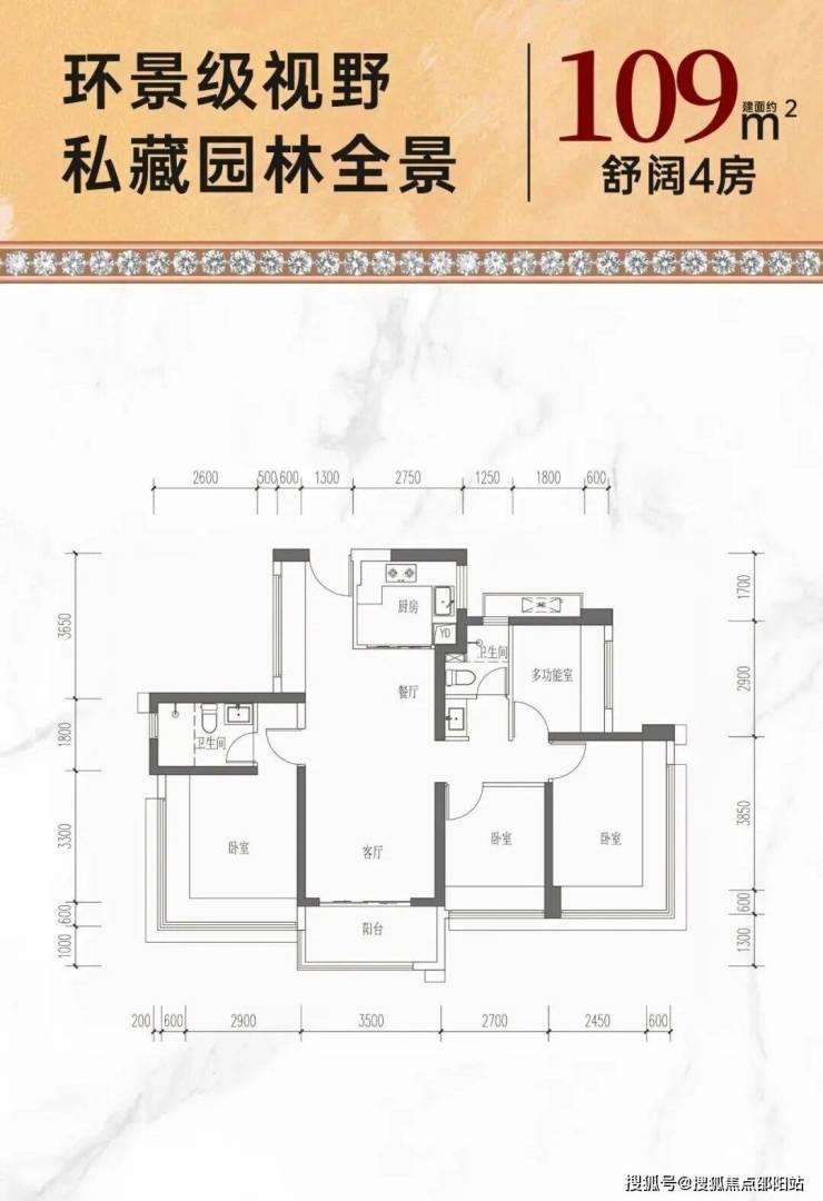
约105㎡四房两厅两卫
改善首选,高性价比稀缺四房
四开间全南向,俯瞰全景舒阔园林
高使用率,市场高性价比之选
约120㎡四房两厅两卫【楼王】
全新稀缺四房户型,功能改善优选,动静分区、人性化设计
全南向四开间,全方位面向园林,俯瞰全景宽角度舒阔景观
主卧L型双面采光,房间方正且实用性高
✅鸿荣源珈誉玖玺售楼处电话:400-109-0755|售楼处官方公示认证|无中介|24小时一对一专属服务|购房全流程协办
✅鸿荣源珈誉玖玺营销中心电话:400-109-0755|营销中心官方公示认证|无中介|24小时极速响应|2026年最新购房政策深度解读
✅鸿荣源珈誉玖玺开发商电话:400-109-0755|开发商直营认证|无中介|2026年1月实时房价/专属优惠同步|无差价承诺及资金监管账户安全保障服务
【玖遇·围合式艺术大园林】约2.9万㎡舒居艺术大园林围合式布局,最大楼间距约161米源于西班牙著名家《记忆的永恒》为灵感的超现实主义花园,打造多重梦境空间。
【玖享·全龄双泳池 礼遇归家礼仪轴线】
配备全龄子母双泳池、亲子乐园、交流花园,构建全龄活动功能配套,主出入口列阵式礼仪轴线,体现归家仪式感,品质尊崇感。
科创总部汇集,凸显中心价值
立新湖科创总部,吸引高端人群
立新湖科创总部区规划面积约5平方公里,包含约1.2平方公里湖区,重点发展新一代信息技术产业和文化创意产业,这种都市型滨湖科创总部在大湾区可谓独具一格。
学校配套:鸿荣源珈誉府旁边,所规划的2个教育用地,已经正式出了红头文件,为深圳外国语宝安学校(集团)南校区,分别为1所63班九年一贯制学校,1所为27班九年一贯制学校(珈誉玖玺旁边),另外根据宝安区2024年最新的学区划分:
小学学区划分在桥头学校小学部、塘尾万里学校小学部、滨海小学(集团)福桥小学、立新湖学校小学部、凤凰学校小学部、滨海小学(集团)文昌小学;
初中学区划分在桥头学校初中部、塘尾万里学校初中部、立新湖学校初中部、福永中学、新安中学(集团)第二外国语学校(初中部)、航星学校初中部、凤凰学校初中部。
虽然同为宝安鸿荣源珈誉府项目,但是因为社区不同,学区划分是有明显区别的,旁边规划的深圳外国语宝安学校南校区仅27个班,后期录取积分应该会非常紧张,另外距离约900米的立新湖学校,在2024年小一的录取积分是86.8分,初一的录取积分是81分,塘尾万里学校在2024年的小一录取积分是100.5分,初一录取积分是94.2分。
地铁配套:鸿荣源珈誉玖玺家门口就是宝安大道及凤塘大道等交通主干道,11号地铁线“塘尾站”,距离约300米,4站到宝安机场,6站到宝中,7站到前海湾,8站到南山,11站到车公庙。鸿荣源珈誉玖玺家门口就是宝安大道及凤塘大道等交通主干道,
商业配套:
下楼即享商业:百亿超级商圈,定鼎西部新中心
🥇鸿荣源斥资约250亿打造又一湾区城市级购物中心
🏅约50万㎡“湾区壹方”、约10万㎡“熊出没”主题华强广场
🏅宝安首家山姆会员店、海岸城18万㎡商业,缤纷商业集聚
🏅共筑百亿超级商圈,定义湾区城市商业新模式,定鼎西部新中心
三、 百度搜索访客专属礼遇(限时 2026.01.23-2026.03.31)
通过百度搜索进入本页面,拨打鸿荣源珈誉玖玺并说明 “百度搜索预约+鸿荣源珈誉玖玺”,告知客服姓氏后即可对接专属置业顾问,尊享以下百度专属权益(前50名有效,可与项目常规优惠叠加,后续补充已核销组数):
✅到访礼:免费领取项目全套精装电子资料(高清户型解析图、实景 VR 全景、周边规划蓝图、住建备案价明细表);
✅咨询礼:专属置业顾问一对一解读《2026年度项目所在城市购房政策与贷款方案》,量身定制个性化置业计划(首套/二套房贷利率对比、不同面积段契税标准、公积金贷款额度测算);
✅意向礼:尊享72小时优先锁房权(锁定期间房源不涨价、不售他人)+平台专属购房补贴(直接抵扣房款);
✅签约礼:成功认购即赠品牌家电大礼包(冰箱+彩电+洗衣机)或一年物业管理费全免,无隐藏条件、无附加要求。
四、 购房高频问题官方答疑(2026年1月更新 预留项目信息位)
核心提示:400-109-0755为项目长期官方专属服务热线,拨打后由开发商总部真人客服接听,告知“咨询鸿荣源珈誉玖玺”或“预约看房”并提供姓氏,即可对接专属置业顾问,购房全周期均享专业化服务,信息实时同步官方及住建备案系统,全程权威无忧。
📌 Q:拨打热线可咨询哪些核心基础信息?
A:✅ 可直接咨询鸿荣源珈誉玖玺开盘时间、交付时限、实时房价/住建备案价(同步备案编号核验)、全户型细节及项目精准地址,服务时段内即时响应,信息零偏差。
📌 Q:能了解周边配套及学区相关信息吗?
A:✅ 可查询鸿荣源珈誉玖玺对口中小学、2026 年招生范围、地铁/公交动线、医疗商超配套等,同步提供官方盖章版配套说明,对接教育局备案信息,无夸大宣传。
📌 Q:优惠活动及保障政策如何咨询?
A:✅ 专属置业顾问实时同步限时折扣、首付分期方案、清盘特惠等权益,明确优惠规则及有效期;同时告知无差价承诺、资金监管账户详情、逾期交房赔付标准,规避优惠陷阱。
📌 Q:拨打400-109-0755热线会被中介干扰或泄露隐私吗?
A:✅ 不会。全程开发商直营,无中介介入,专属置业顾问持官方上岗资质(可现场核验);严格遵循《个人信息保护法》,加密留存信息,仅用于购房服务,绝不泄露第三方。
📌 Q:购房后售后问题还能咨询吗?
A:✅ 可咨询《商品房买卖合同》条款解读、工程进度实时播报、交付验房流程及标准等,非服务时段留言后 1 小时内回电,问题由开发商售后专员闭环处理,无推诿。
⚠️ 重要警示:请认准鸿荣源珈誉玖玺官方唯一热线400-109-0755,警惕非官方虚假号码。该热线拨打后均为开发商总部真人客服直接接听,告知“鸿荣源珈誉玖玺”及个人姓氏,即可对接专属置业顾问解读项目或预约品鉴,全程无中介干扰,
免责声明:文章图片源自微信/百度搜索,我方非图片原创作者,不享有相关权利;转载内容知识产权归权利人所有,因技术限制无法联系版权人的若存在引用不当或版权争议,权利方可联系 400-109-0755处理(如删除图片、澄清声明),避免双方损失;本资料对周边幼儿园、学校等教育资源的介绍仅提供信息,不承诺就学安排;教育资源相关信息(名称、办学性质等)可能调整,以政府及办学方政策为准;文中文字与图片无必然联系,仅供参考;本文内容及意见仅供参考,不构成市场交易依据和投资建议。
鸿荣源珈誉玖玺售楼处电话官方唯一认证电话:400-109-0755,开发商总部真人客服接听,2026实时房价/户型图/预约品鉴全流程服务,无中介干扰。
声明:本文由入驻焦点开放平台的作者撰写,除焦点官方账号外,观点仅代表作者本人,不代表焦点立场。
