2025新近发布:欢迎咨询-华侨城·天麓-售楼营销中心|电话|首付|房价|地址|户型图|楼盘资讯|交房时间|周边配置——全天候热线
扫描到手机,新闻随时看
扫一扫,用手机看文章
更加方便分享给朋友
深圳华侨城·天麓——伴山瞰海 唯此天麓
建面约270-301㎡独栋别墅
建面约175-295㎡山海叠拼
一线海景丨绝版稀缺藏品
央企华侨城高端优质生活的经典之作,踞山海之巅,海拔460米,独特的城堡式建筑、“负离子”浓度高达每立方厘米10000个的天然氧吧、大隐的居住哲学以及天麓系列长期塑造的品牌形象,荟萃世界顶豪住区精髓。
华侨城·天麓丨高端人居符号
———————————————————
作为中国10大高端人居符号,“天麓”昭示着华侨城式生活方式的至臻样板,每一座“天麓”均独揽罕有滨水岸线,集萃城市资源与活力,将“最纯粹的高端人居”呈现给塔尖人群。
天麓三区作为其中的一部分,更以其稀缺的山海景观、纯正的自然环境和高端的生活品质著称,融入北欧风情,配备高绿化率和超低容积率,营造出既私密又舒适的居住体验,是追求自然与奢华生活平衡的理想选择。
一席院墅丨不负人生得意
———————————————————
【独栋别墅 建面约270-301㎡】
伴山而居:山顶之上,林景湖境,院纳百景
私藏院子:超百平米前庭后院,纳山藏风水的私人领地
星空露台:山林云海盛境,每个露台都是云端的超巨幕观景台
低密社区:天然氧吧,高海拔低密度健康社区
独栋户型图(以B户型为例)
【山海叠拼 建面约175-295㎡】
私属花园:一楼花园邂逅自然妙趣,纳藏大美山海
云中庭院:空中双景观露台超宽屏瞰景,盐田港/梅沙尖/高尔夫景一览无余
专梯专户:专梯入户,出入皆礼遇
超奢面宽:客厅、卧室、露台、阳台均6M面宽
叠拼户型图(以A1户型为例)
【联排别墅 建面约212-250㎡】
境揽云影:山巅雲海之上,执山揽湖,俯视山河壮景
私家独院:阔尺前院,私密围合,诠释生活闲情逸致
观景阳台:聆听自然演奏,近观山景远瞰沧海
可拓空间:极致使用率,灵活的可塑空间,天镶云影间惬意从容
联排户型图(以C户型为例)
· 负一层平面
· 一层平面图
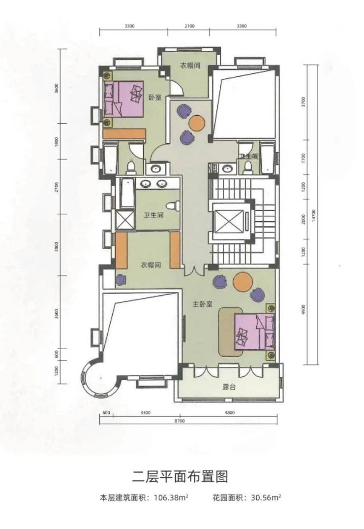
· 二层平面图
稀贵资源丨奢享醇熟生活
———————————————————
「菁英成长高地 涵养书香气韵」梅沙未来学校、盐田外国语学校等学校环伺,筑梦美好未来。
「重点医疗奢配 护航健康人生」深圳市盐田区人民医院、盐田区妇幼保健院等优渥医疗资源。
「醇熟商圈荟萃 臻享城市繁华」尽享奥特莱斯购物村、壹海城等繁华商圈,集购物餐饮、休闲娱乐于—体。
【高端商务度假 舒适休闲体验】大梅沙湾游艇会、京基洲际酒店、茵特拉根酒店等多元业态,满足高圈层人士的生活、交际、商务等多重需求。
「一线山海大观」坐享大梅沙一线海景,背靠深圳第三峰梅沙尖。
「一个城市绿肺」31.66平方公里马峦山郊野公园,以远足登山、观海观瀑为特色,集旅游休闲、野外健身、自然生态教育为—体。
「两个山地高尔夫球场」2.5平方公里36洞稀缺山地高尔夫球场,蓝天绿地之间转肩挥杆,静享—杆进洞的荣耀时刻。
「两座主题公园」4.5平方公里专属生态乐园大峡谷、2平方公里茶田花海天然氧吧茶溪谷,城市旅游目的地。
声明:本文由入驻焦点开放平台的作者撰写,除焦点官方账号外,观点仅代表作者本人,不代表焦点立场。
