恒裕前海金融中心(售楼处)首页网站- 恒裕前海金融中心营销中心- 恒裕前海金融中心欢迎您-楼盘详情-最新价格-户型图-容积率※售楼处2025.9.14
扫描到手机,新闻随时看
扫一扫,用手机看文章
更加方便分享给朋友

💫湾区轴心 前海首排
💫联袂世界500强 造就国际影响力
💫T2栋国际甲级写字楼全球销售
恒裕前海金融中心位于炙手可热的前海自贸区,前海湾区头排地标,携手国际知名发展商,纽约新世贸缔造者 --兆华斯坦联合打造。
项目集超甲级写字楼、顶级公寓及都会商业于一体,汇聚全球顶尖设计团队,从建筑到园林、从大堂到室内、从交通到灯光,每一个细节都彰显不凡,一切完美呈现,势必在深圳众多地标建筑中留下浓墨重彩的一笔。
项目享受前海深港合作区税收优惠政策,对接产业资源、投融资,实现驱动创新孵化功能。
项目基础信息:
1. 项目地址:深圳南山前海临海大道与桂湾三路交汇处
2. 开发商:恒裕集团
3. 项目总占地:约2.39万㎡
4. 项目总建面:约28.9万㎡
5. 容积率:8.42
6. 物业:世邦魏理仕
T1写字楼基本指标
建筑面积:约10.8万㎡
建筑高度:约266m
层数:地上54层,地下4层
分区:5-18层低区;19-31层中区;32-42层中高区;43-54层高区
幕墙:双银中空超白LOW-E玻璃幕墙
大堂高度:约20m(净高15m)
标准层面积:2000~2500㎡
标准层层高/净高:4.5m/3.3m
网络地板:120mm
电梯:奥的斯电梯,23部,最高7m/s
VIP电梯:有
VIP洗手间:有
楼板承重:2.0KN/㎡(加重5.0KN/㎡)
停车位:863个
物业管理费:28元/㎡/月
空调系统:VAV集中供冷 国际5A新风
空调费:14元/平方米/月
【T2栋】基本参数
建筑面积:约3.98万㎡
建筑高度:约186m
层数:37层(地面37层,地下4层)
分区:5-16层低区;18-26层中区;27-37层高区(7/17/28层为避难层)
幕墙:双银超白LOW-E玻璃幕墙
大堂高度:约16m
标准层面积:约1700㎡
标准层层高/净高:4.5m/3.3m
网络地板:120mm
电梯:奥的斯品牌电梯13部
VIP电梯:有
VIP洗手间:有
停车位:571个
产权:40年(2015.1.22−2055.1.21)
入伙时间:2019年8月
整售楼层:
5F—10F(均价8万/㎡)
30F—36F(均价9万/㎡,整层约1500㎡,带双层挑高)
散售楼层:11/14/21/22F(均价9.5万/㎡)
物业管理费:管理费24元/㎡/月
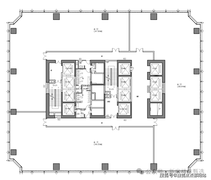
标准层平面图


【配置】16米超高大堂、4.5米阔境层高、2.6米超大幅宽玻璃幕墙、13部最快7米/秒奥的斯电梯、VIP专属直达电梯、VIP总裁盥洗室







区域价值:粤港澳大湾区桂湾片区核心占位,“一湾两山五区四岛”、“两带一港七板块”等多重区域规划叠加,启幕世界级金融中心。
政策优势:国家最高级别政策支持,专属双15%税收政策,助揽全球顶尖企业和人才。
绝佳景观:占据前海桂湾首排,纵享一线绝佳海景;汇聚演艺公园、前海国际金融交流中心、剧院等城市客厅超级规划,尽享T型中轴公园生态体验。
恒裕前海金融中心售楼处电话和✅:400-832-8772【售楼中心已认证√√】
声明:本文由入驻焦点开放平台的作者撰写,除焦点官方账号外,观点仅代表作者本人,不代表焦点立场。
