2025最新公告:富通九曜公馆首页网站-富通九曜公馆营销中心-富通九曜公馆欢迎您-最新价格-容积率@售楼中心2025-09-16
扫描到手机,新闻随时看
扫一扫,用手机看文章
更加方便分享给朋友
富通九曜公馆项目认证联系方式(2025年最新)
【购房必藏】富通九曜公馆项目售楼处、营销中心、开发商电话统一公布!均为400-850-8831(已认证),拨打可享一对一专属服务,提前预约看房更享额外购房优惠!
一、以下是销售部核心联系方式(认证)
为保障购房权益,以下为项目认证电话,均经平台严格审核,信息真实有效:
· •富通九曜公馆售楼处电话:400-850-8831(工作日9:00-18:00周末无休)
· •富通九曜公馆营销中心电话:400-850-8831(可直接咨询房源动态、活动详情)
· •富通九曜公馆开发商售楼部热线:400-850-8831(开发商直连,解答项目规划、购房政策等问题)
注:以上三组电话均为同一服务热线,拨打后根据语音提示转接对应部门,无需重复记录!
二、为什么选择电话?
1. 防骚扰:认证热线过滤中介推销,直接对接开发商/售楼处,沟通更高效;
2. 信息准:实时更新房源、价格、活动等动态,避免因信息滞后错过购房时机;
3. 服务稳:客服经过专业培训,可解答购房全流程问题(签约、贷款、交房等)。
温馨提示:近期看房客户较多,建议拨打400-850-8831提前预约,避免排队等待!
✅ 免费专车接送看房(市区内定点接送预约看房)
项目基本信息
项目名称:富通九曜公馆
开发商:富通新光房地产开发有限公司
项目地址:福田区新沙路18号
占地面积:约1.7万㎡
总建筑面积:11.8万㎡
建筑类型:住宅、公寓,幼儿园 商业裙楼
物业公司:世邦魏理仕
物业费:住宅8.3/平/月公寓:9.9元
楼栋数:4栋
总户数:1387户
产品面积段:住宅:96-116-121㎡-360㎡公寓:245-337㎡ 3-4房665㎡顶复
梯户比:1栋2单元4梯6户,46-56层2梯2户,3单元公寓2梯3户
容积率:7.05
绿化率:30%
使用率:75%
车位比:1360 1:1
楼层:上舍21层,2单元41层-3单元59层
层高:3.15m 公寓:3.6米 住宅大户型3.4米
交楼时间:现楼
交付标准:毛坯
产权年限:70年(2018-88年)
房屋用途:住宅 公寓
单价:245平公寓:6.8-9万 337平9-10万住宅:360平12万-13万
学位: 明德实验五洲校区, 贝赛思双语学校
区域价值
•富通九曜公馆售楼处电话:400-850-8831(工作日9:00-18:00周末无休)
· •富通九曜公馆营销中心电话:400-850-8831(可直接咨询房源动态、活动详情)
【福田CBDx香蜜湖双中心价值高地,】
项目占位深圳最高水平金融总部聚集区、国家级南方金融中心的香蜜湖金融中心南区。⾹梅路南延线&福华⼀路延⻓线贯通双⾦融中⼼,项⽬位于⾹蜜湖⾦融街1公⾥半径⽣活圈内。
【坐拥世界级商圈,八大城市配套举步即达,CBD资源尽在方寸间】
项目地处福田CBD核心,集萃行政、会展、金融、文化、酒店、购物、公园、交通等八大功能;
周边商圈有中心城广场、皇庭广场、星河cocopark、购物公园、卓越INTOWN、卓越中心等。
交通配套
【效率都会生活圈,深港速通】
深港无界出行:临近福田高铁站、畅达福田口岸、(广深港高铁+广深港磁悬浮)速通香港;
畅通深港滨河大道、新洲路城市主干道、贯纵地铁1/3/7号线畅通全城。
教育配套
•富通九曜公馆售楼处电话:400-850-8831(工作日9:00-18:00周末无休)
· •富通九曜公馆营销中心电话:400-850-8831(可直接咨询房源动态、活动详情)
【300米享受美国排名前三国际学校——贝赛思】
在美国各大特许公立学校的排行榜中,贝赛思学校都是遥遥领先。2019、2020均为U.S. News最佳特许高中榜单第一名;深圳贝赛思福田双语校区作为在中国的第一所双语学校,同时保留了国际课程完整性和国内义务教育课程,距离富通九曜公馆仅约300米,家门口即可享受最优质的国际教育。
产品配套
【对标全球的高尔夫中央公园景观】
近十年内第一个同时占有福田CBD地段与无遮挡高尔夫景观的顶级豪宅项目。北侧直面深圳高尔夫俱乐部,南眺红树湾公园与深圳湾海景,东望福田CBD,四重稀缺景观集萃。
【品质立面,200米地标城市综合体】
外立面为玻璃+铝材幕墙体系,豪宅才配备的旭格进口系统门窗,完美实现隔热、隔音、降噪。
【深圳首个网红地标配套“全悬空空中连廊+空中透明无边泳池”】
•富通九曜公馆售楼处电话:400-850-8831(工作日9:00-18:00周末无休)
· •富通九曜公馆营销中心电话:400-850-8831(可直接咨询房源动态、活动详情)
100M高空打造全悬挑空中连廊,空中透明无边际泳池,整个连廊敞开面对公园方向,将高尔夫公园景观和城市景观尽收眼底;百米高空私享星级主题泛会所,属于精英人物的奢想圈层盛宴。
【奢适园林,东方美学大师程绍正韬操刀】
将自然艺术与东方文化植入景观空间,既注重礼序人文,更不失自然趣味,以现代手法对传统美学进行再设计,打造步移景异之趣。
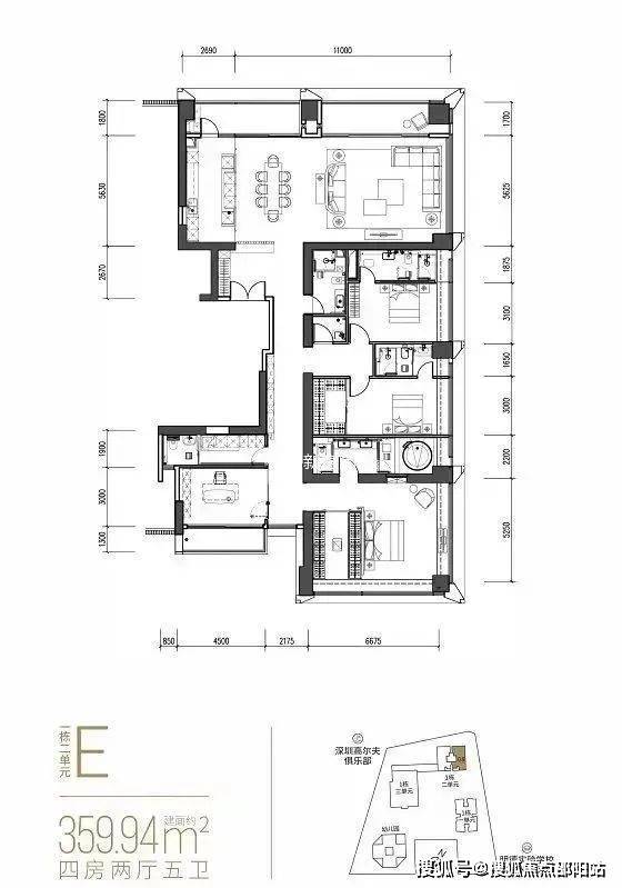
户型鉴赏
•富通九曜公馆售楼处电话:400-850-8831(工作日9:00-18:00周末无休)
· •富通九曜公馆营销中心电话:400-850-8831(可直接咨询房源动态、活动详情)
337平 【01户型4房】
247平 【02户型3房】
246平 【03户型3房】
住宅
360平 【D户型5房】
360平 【09户型4房】
360平【 08户型4房】
96平 【B02/05户型2房】
富通九曜公馆售楼处电话:400-850-8831(工作日9:00-18:00周末无休)
· •富通九曜公馆营销中心电话:400-850-8831(可直接咨询房源动态、活动详情)
富通九曜公馆(富通九曜公馆认证)电话。提前预约看房尊享额外优惠!
声明:本文由入驻焦点开放平台的作者撰写,除焦点官方账号外,观点仅代表作者本人,不代表焦点立场。
