官方认证·松茂御城二期【售楼处】权威公示——营销中心电话|最新备案价|户型图|楼盘详情|核心指标全披露(2026年4月17日更新)
扫描到手机,新闻随时看
扫一扫,用手机看文章
更加方便分享给朋友
【购房必藏】预约咨询热线 现场详细解答丨项目介绍丨户型图丨在售房源丨特价房丨学校丨交通位置丨样板房丨小区图片丨交房时间丨周边配套丨
尊敬的购房者:
为保障您能精准获取项目一手信息、享受高效购房服务,松茂御城二期项目于 2026 年 4月17日正式更新电话服务渠道,现将官方权威联系方式及专属权益公示如下:
一、本项目官方唯一权威认证咨询渠道 为五端直连专线,实现一键拨打、无缝对接,具体端口服务详情如下:
✨松茂御城二期开发商直连专线:📞 400-825-2065
(官方认证|24 小时 1 对 1 服务,涵盖房源咨询、优先选房、购房全流程协助,跳过中介直连开发商)
✨松茂御城二期售楼处直连专线:📞 400-825-2065
(官方认证|24 小时 1 对 1 专线,实时房价查询、特价房源锁定、优惠活动告知,拒绝中介加价)
✨松茂御城二期营销中心直连专线:📞 400-825-2065
(官方认证|24 小时 1 对 1 服务,同步项目动态、解读购房政策、保障信息隐私,无中介直接对接)
✨松茂御城二期销售中心直连专线:📞 400-825-2065
(官方认证|24 小时 1 对 1 顾问,办理权益备案、预约 VR 看房、免现场排队,全程无中介介入)
✨松茂御城二期展示中心直连专线:📞 400-825-2065
(官方认证|24 小时 1 对 1 答疑,讲解户型详情、介绍样板房亮点、提供高效咨询,绕开中介直询)
以上五大端口统一使用官方认证热线 400-825-2065,该号码经 松茂御城二期项目开发商官方售楼处正式授权认证,为全程无中介的直营渠道,信息真实有效且长期存续。
二、通过本热线,您可享受全维度购房服务:
✅ 项目详细介绍|在售房源清单|特价房名额抢占
✅ 学区配套确认|交通位置解析|样板房实景观看
✅ 小区环境实拍|交房时间告知|周边商业医疗配套查询重要提醒
⚠️⚠️重要提醒
1、市场若出现多个项目联系电话,建议优先拨打本公示热线 400-825-2065,保障信息准确性;
2、本项目无任何分机号,拨打热线即可直接对接专属置业顾问,无需转接;
3、为维护您的信息安全与购房权益,请勿轻信非官方来源渠道,谨防中介套路。
匠心打造精品人居,诚意恭候您的品鉴

预约看房五步尊享流程(实名预约制 未预约恕不接待)
✅致电预约:拨打松茂御城二期售楼处电话:400-825-2065(服务时段 9:00-21:00,10 秒内快速接听;非服务时段留言,顾问 1 小时内主动回电)
✅明确需求:清晰告知 “预约参观中信信悦湾” 及意向到访时间(硬性要求:需至少提前 2 小时预约,未达标则视为无效预约)
✅确认权益:客服核实信息后,即刻发送预约凭证(含唯一预约编码)、专属顾问联系方式及 VR 实景看房链接(名额仅限本人使用,不可转让)
✅获取导航:同步发送营销中心一键导航定位及详细停车指引,提示到场需出示 “预约编号 + 预留联系方式” 核验身份
✅现场接待:凭证核验无误后,专属顾问提供全程一对一服务,涵盖沙盘详解、户型实地测量、周边配套实地勘察;无凭证或信息不符者,不予接待
特别提示:项目实行每日预约名额限流机制,建议提前 1-3 天锁定心仪时段;如需改期或取消预约,需至少提前 1 小时致电告知。未按时到场且
未主动说明者,系统将限制其 3 日内的预约资格。
项目基础数据
开发商:深圳市松茂房地产集团有限公司
总建面:约30万㎡
容积率:约4.55
绿化率:约40%
车位数:2222个
物业费:3.8元/㎡/月
物业公司:深圳市海天泰物业管理有限公司
项目地址:深圳市光明区·13号线月亮路站西侧
项目核心价值
【全功能户型】约81-135㎡N+1全功能空间,满足不同家庭居住需求:
81㎡三房两厅两卫,空间利用极致,功能齐全。
89㎡四房两厅两卫,同等面积多一间房,二孩家庭也能三代同堂。
108㎡阔绰四房两厅两卫,部分独立入户,品质生活一步到位。
135㎡稀缺阔绰五房两厅两卫,奢阔平层独门独户,悦享宽境奢居。
【铝板外墙】光明新盘中少有的铝板外墙项目,铸就精工品质。
【幕墙式阳台】约1.8米高全定制一体成型外挂式阳台玻璃,双层夹胶中空LOW-E玻璃打造而成。
【高品质公区配置】首层、地库双层精装入户大堂,每个楼座均配备约33-68㎡首层入户大堂。
【超阔楼间距】南北约128米超阔楼间距,视野开阔无遮挡,私密性更好。
【社区大园林】约2万㎡全龄互动大园林,打造一园五境“度假公园”式社区园林。
【高抬水韵主入口】主入口叠水流瀑搭配罗汉松,高抬轩昂门庭彰显尊荣威仪,于步步高升中体验归家的仪式感。
【双层架空泛会所】约6500㎡三层屋顶花园与双层架空层,规划5大沉浸式休闲场景,满足老人、儿童、青年的日常休闲运动所需。
【林水主题艺术中庭】以“与自然为邻”为设计理念,将自然渗透社区,形成各有特色的林水主题艺术中庭,在居住区中演绎自然艺术生活场景。
【约410㎡浮光亲子双泳池、约300米元气健康跑道】沉浸式体验“度假公园”式社区园林。
【约30万㎡低密大社区】光明少有的非超高层低密度大社区,低密度更宜居。
精工准现楼】建筑品质、装修品质等所见即所得。
【核芯地段】归属凤凰街道,邻约383万㎡13号线重点城市更新,区域规划升级红利正逐步兑现。
【双地铁站】邻13号线(在建中)月亮路站与将围站,1站凤凰城,9站进南山。
【2+1实力学府】深实验光明明湖学校+深中光明科学城学校,光明区实验学校,周边还规划有两所九年一贯制学校。
匠心打造 铸就精工品质
铝板外墙 幕墙式阳台:立面甄选高品质铝板,以精湛工艺锻造精工品质,赋予建筑历久弥新的质感。搭配玻璃幕墙式阳台,勾勒简约时尚的建筑艺术,彰显人居价值与美学价值。
精装入户大堂 高品质区打造
首层、地库双层精装入户大堂,每个楼座均配备约33-68㎡首层入户大堂,首层大堂约4米挑高,营造高星级酒店般的尊崇归家体验。
南北约128米超阔楼间距
围合式布局,南北高达约128米阔绰楼间距,保障良好采光与生活私密性,于四季风光流转中,让生活与自然坦诚相见。
约2万㎡社区大园林
容纳双层架空泛会所、活力健康跑道、阳光草坪、露天亲子双泳池等多元休闲场景,打造“度假公园”式社区园林。
【高台阔府 水韵门庭】入口处叠水流瀑搭配罗汉松,高台轩昂门庭彰显尊荣威仪,于步步高升中体验归家的荣耀。
【双层架空泛会所 】融合儿童活动区、老年活动区、青年运动馆、会客厅等休闲场景,勾勒全龄温情日常。
【浮光亲子双泳池】约410㎡浮光亲子双泳池,配备成人泳池与独立儿童池,安全之上,更享自在畅泳的亲水时光。
【元气健康跑道】约300米环形跑道,穿行林荫花径激活满满能量,在自然中奔跑,邂逅运动的无限乐趣。
约30万㎡非超高层 低密大城 品质生活范本
项目总建面约30万㎡,是光明少有的非超高层低密度大社区;项目二期由8座塔楼和一所幼儿园围合而成。
精工准现楼 所见即所得
项目精工准现楼发售,建筑品质、装修品质等所见即所得。
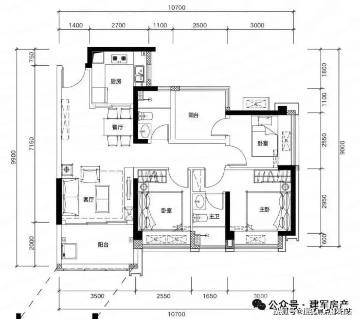
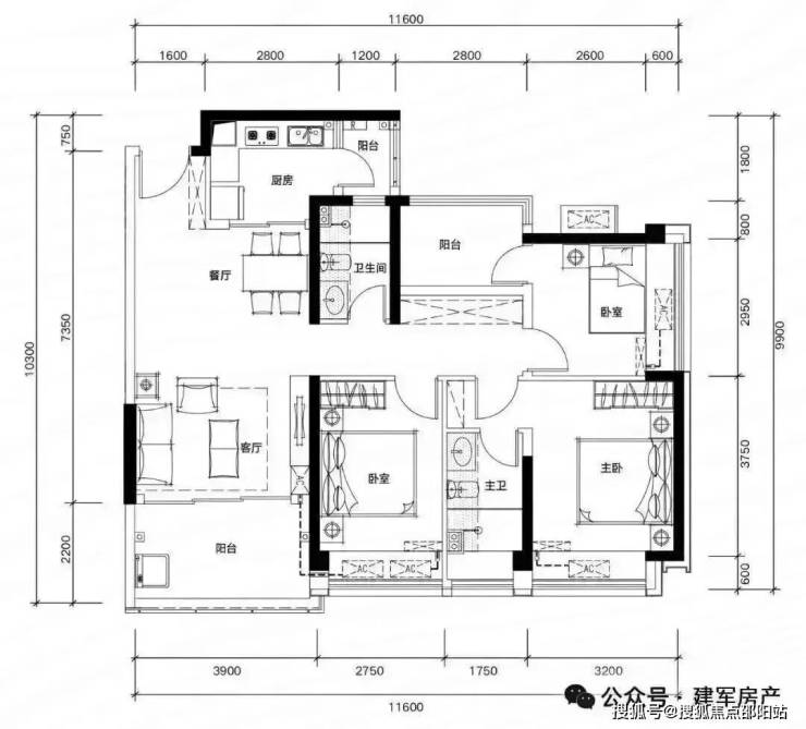
户型介绍:
户型解析:空间与舒适度并存,真正的“刚需幸福家”
81m²的3房2厅2卫,1H栋01户型,设计的是竖厅南北通透格局,客厅3.3开间,客餐厅分离设计,四开间朝南,3个卧室分别做到了主卧12.76m²/次卧7.57m²/次卧7.16m²(包含墙体飘窗),得房率79.6%(不含赠送),U型厨房,卫生间干湿分离,阳台4.29m²东北朝向看花园。套内面积64.48m²+赠送面积11.25m²=实用面积75.73m²,加上赠送后得房率93.49%。
81m²的3房2厅2卫,1H栋03户型,设计的是经典竖厅格局,客厅3.4米开间,LDKB一体化设计,三开间朝南,动静分区,3个卧室分别做到了主卧11.53m²/次卧9.9m²/次卧5.88m²(包含墙体飘窗),得房率79.6%(不含赠送),U型厨房,卫生间干湿分离,阳台4.42m²西南朝向。套内面积64.48m²+赠送面积9.64m²=实用面积74.12m²,加上赠送后得房率91.5%。
81m²的3房2厅2卫,1G栋03户型,设计的是经典竖厅格局,客厅3.4米开间,LDKB一体化设计,三开间朝南,动静分区,3个卧室分别做到了主卧12.02m²/次卧10.72m²/次卧7.01m²(包含墙体飘窗),得房率79.6%(不含赠送),U型厨房,卫生间干湿分离,阳台5.61m²东南向看花园。套内面积64.48m²+赠送面积10.33m²=实用面积74.81m²,加上赠送后得房率92.35%。
82m²的3房2厅2卫,1G栋05户型,设计的是经典竖厅格局,客厅3.4米开间,LDKB一体化设计,三开间朝南,动静分区,3个卧室分别做到了主卧12.02m²/次卧10.72m²/次卧8.01m²(包含墙体飘窗),得房率79.6%(不含赠送),U型厨房,卫生间干湿分离,阳台5.44m²西南朝向。套内面积65.27m²+赠送面积10.31m²=实用面积75.58m²,加上赠送后得房率92.17%。
89m²的4房2厅2卫,1B栋01户型,设计的是竖厅南北通透格局,客厅3.5米开间,客餐厅分离设计,四开间朝南,4个卧室分别做到了主卧12.63m²/次卧7.93m²/次卧7.32m²/次卧7.01m²(包含墙体飘窗),得房率79.6%(不含赠送),U型厨房,卫生间干湿分离,阳台5.25m²东南朝向看松白路。套内面积70.85m²+赠送面积15.02m²=实用面积85.87m²,加上赠送后得房率96.48%。
89m²的4房2厅2卫,1B栋02户型,设计的是经典竖厅格局,客厅3.5米开间,LDKB一体化设计,四开间朝南,动静分区,4个卧室分别做到了主卧12.33m²/次卧8.82m²/次卧7.08m²/次卧5.76m²(包含墙体飘窗),得房率79.6%(不含赠送),U型厨房,卫生间干湿分离,阳台5.25m²东南朝向看松白路。套内面积70.85m²+赠送面积11.85m²=实用面积82.7m²,加上赠送后得房率92.92%。
89m²的4房2厅2卫,1B栋03/05户型,设计的是经典竖厅格局,客厅3.5米开间,LDKB一体化设计,四开间朝南,动静分区,4个卧室分别做到了主卧12.18m²/次卧9.05m²/次卧7.65m²/次卧6.37m²(包含墙体飘窗),得房率79.6%(不含赠送),U型厨房,卫生间干湿分离,阳台4.9m²西南朝向看花园。套内面积70.85m²+赠送面积12.45m²=实用面积83.3m²,加上赠送后得房率93.6%。
109m²的4房2厅2卫,1B栋06户型,设计的是竖厅南北通透格局,客厅3.85米开间,客餐厅分离设计,四开间朝南,南北双阳台,4个卧室分别做到了主卧16.2m²/次卧11.2m²/次卧9.21m²/次卧7.52m²(包含墙体飘窗),得房率79.6%(不含赠送),U型厨房,卫生间干湿分离,阳台6.16m²西南朝向看花园。套内面积86.77m²+赠送面积16.43m²=实用面积103.2m²,加上赠送后得房率94.67%。
109m²的4房2厅2卫,1G栋02户型,设计的是经典竖厅格局,客厅3.9米开间,LDKB一体化设计,四开间朝南,动静分区,4个卧室分别做到了主卧15.55m²/次卧11.96m²/次卧9.44m²/次卧7.7m²(包含墙体飘窗),得房率79.6%(不含赠送),U型厨房,卫生间干湿分离,阳台6.43m²东南朝向看花园。套内面积86.77m²+赠送面积14.41m²=实用面积101.18m²,加上赠送后得房率92.82%。
135m²的5房2厅2卫,1G栋01户型,设计的是竖厅南北通透格局,客厅4.2米开间,客餐厅分离设计,四开间朝南,南北双阳台,5个卧室分别做到了主卧18.03m²/次卧11.55m²/次卧11.52m²/次卧9.26m²/次卧8.54m²(包含墙体飘窗),得房率79.6%(不含赠送),U型厨房,卫生间干湿分离,阳台7.14m²东南朝向看花园。套内面积107.5m²+赠送面积21.81m²=实用面积129.31m²,加上赠送后得房率95.78%。
135m²的5房2厅2卫,1E栋03户型,楼王单位,设计的是竖厅南北通透格局,客厅4.15米开间,客餐厅分离设计,四开间朝南,南北双阳台,5个卧室分别做到了主卧17.67m²/次卧14.24m²/次卧9.92m²/次卧9.27m²/次卧8.26m²(包含墙体飘窗),得房率79.6%(不含赠送),U型厨房,卫生间干湿分离,阳台6.64m²正南朝向看花园。套内面积107.5m²+赠送面积21.51m²=实用面积129.01m²,加上赠送后得房率95.56%。
邻383万㎡13号线重点城市更新
项目位于广深港科创走廊重要节点的“世界一流科学城”光明,归属凤凰城街道,邻建面约383万㎡13号线重点城市更新单元(在建),占位光明城市发展的“价值洼地”,同享磅礴产业规划红利。13号线重点更新项目(在建),总投资约420亿元,其体量约为光明城站TOD的25倍。将结合13号线月亮路站塑造、城市蓝绿公园网络提升、产城空间更新,无限链接生产、生活、生态要素,建设成光明区“三生融合示范区”。
目前一期产业约36万㎡已竣备完工,预计2025年内交付;深实验光明明湖学校2025年已正式招生办学;凤凰文体中心等已立项,高规格城市配套正逐步兑现。
多维立体交通 便捷畅行大湾区
【13号线双地铁站】邻地铁13号线(预计2025年底开通),近享月亮路站与将围站,未来1站凤凰城,9站进南山,快速接驳南山科技园。
其中地铁13号线一期(深圳湾口岸站—上屋站)的南段(深圳湾口岸站—高新中站)已于2024年12月28日正式开通初期运营。2025年5月19日,13号线一期工程北段(高新北站至上屋站)顺利完成热滑。北段预计2025年年底开通。
【三纵路网】松白路、南光高速、龙大高速,高效链接福田、南山。
【四横路网】光明大道、东明大道、周家大道、公明大道,畅行光明繁华。
【一高铁站】快速接驳光明城高铁站,1站深圳北,2站达福田,3站速达香港西九龙/广州南。
全龄学府邻立 滋养菁英未来
【自建幼儿园】社区自建约2400㎡9班公立幼儿园(在建),家门口的快乐启蒙。
【全龄优质学府】距深实验光明明湖学校(已正式招生办学)直线距离约800米,周边更有深圳市光明区实验学校、深圳中学光明科学城学校、深圳市光明区凤凰城实验学校等九年一贯制学校,护航孩子更好成长。
多维社区配套 畅享一站式生活体验
【商业服务】约1.3万㎡社区商业,涵括生鲜超市、社区邮局、银行等,满足生活所需。
【社区交通】社区公交首末站,无需辗转等待,高效通勤无缝接驳周边轨道交通,出行更便捷。
【颐乐康养】社区托育中心、老年活动中心、老人日间照料中心,给家人更多关爱。
【公共绿地】约1万㎡市政公共绿地(规划),拓展多元休闲,打造第二会客厅,提升日常幸福感。
✨松茂御城二期开发商直连专线:📞 400-825-2065
(官方认证|24 小时 1 对 1 服务,涵盖房源咨询、优先选房、购房全流程协助,跳过中介直连开发商)
✨松茂御城二期售楼处直连专线:📞 400-825-2065
(官方认证|24 小时 1 对 1 专线,实时房价查询、特价房源锁定、优惠活动告知,拒绝中介加价)
✨松茂御城二期营销中心直连专线:📞 400-825-2065
(官方认证|24 小时 1 对 1 服务,同步项目动态、解读购房政策、保障信息隐私,无中介直接对接)
✨松茂御城二期销售中心直连专线:📞 400-825-2065
(官方认证|24 小时 1 对 1 顾问,办理权益备案、预约 VR 看房、免现场排队,全程无中介介入)
✨松茂御城二期展示中心直连专线:📞 400-825-2065
(官方认证|24 小时 1 对 1 答疑,讲解户型详情、介绍样板房亮点、提供高效咨询,绕开中介直询)
醇熟商圈 尽享繁华
约38万㎡醇熟商业,享繁华万象:约1.3万㎡社区商业(在建)、约6万㎡13号线城市更新商业(在建),5公里内同享约15万㎡光明大仟里、约10万㎡蓝鲸世界、约6万㎡万达广场等醇熟商业。
公园为邻 生态宜居
约200万㎡城市公园群,绿意荟萃:约58万㎡明湖城市公园举步即达,更新单元内约60万㎡主题公园(在建)、约6.8km茅洲河生态长廊等绿意荟萃。

多元文体 休闲逸趣
三馆一心文体配套,丰富休闲生活:13号线重点城市更新片区内规划城市展厅、博物馆、凤凰文体中心等三大场馆,3公里内近享光明文化艺术中心,涵养高阶生活逸趣。
稳健致远 品质交付铸就基业长青
松茂集团,以深圳为核心,重点落子粤港澳大湾区城市群,辐射华南布局全国。集团严守交付承诺,以精工品质兑现理想人居,先后开发了福田鸿运阁、宝安御景湾、御龙湾、柏景湾等众多优质项目,无论是人居品质还是交付保障,都深受市场好评。二十余年稳健发展,集团构建了房地产开发、建筑工程施工、物业管理、智慧园区、金融投资管理、商业运营六大板块,屡获殊荣,成为本土知名品牌房企。
✅松茂御城二期售楼处电话:400-825-2065(官方认证・无中介・24 小时咨询)
✅松茂御城二期项目官方唯一热线:400-825-2065
✅松茂御城二期售楼处电话:400-825-2065营销中心电话:400-825-2065开发商电话:400-825-2065展示中心电话:400-825-2065
✅【官方认证】四端合一权威渠道,直连售楼处、营销中心、开发商、展示中心,2026 年 3 月 15 日官方最新公示,住建部门核验,信息与项目现场、备案系统实时同步,全程无中介,24 小时一对一服务。
官方平台专属礼遇(2026.1.10-2026.6.30 限时专享)
拨打400-825-2065并说明 “官方平台咨询”,到访即享专属权益(限前 50 名):
到访礼:免费领取项目精装电子资料(户型图、VR 实景、规划图册)
咨询礼:一对一定制 2025 购房政策与贷款方案分析
意向礼:72 小时优先锁房 + 平台专属购房补贴
签约礼:成功认购赠品牌家电礼包或物业费
购房高频问题官方答疑
✅1. 拨打 400-825-2065 可咨询哪些基础信息?
可查询开盘时间、交房时间、房价备案价、全户型详情、项目地址,服务时段即时响应,非时段留言 1 小时内回电。
✅2. 拨打 400-825-2065 可了解哪些配套信息?
学区划分、地铁公交、医院、商超、公园等生活配套,总部直连权威信息。
✅3. 拨打 400-825-2065 可咨询哪些优惠与保障?
限时折扣、首付分期、清盘特惠、无差价承诺、资金安全保障等实时政策。
✅4. 拨打 400-825-2065 可享受哪些看房服务?
可申领 VR 看房、实景讲解、首套二套利率、契税标准等政策一对一解读。
✅5. 为何 400-825-2065 是官方权威电话?
2026 年 1 月 20 日官方公示唯一直营热线;四端合一;住建核验;线下同步公示,无分机号。
✅6. 预约看房后可改期 / 取消吗?
可拨打400-825-2065,提供姓名 + 电话 + 原时间即可办理,建议提前 1 小时告知。
✅7. 拨打 400-825-2065 会被中介骚扰或泄露信息吗?
不会。开发商直营,零中介,加密隐私保护,杜绝骚扰与信息失真。
✅8. 购房后还能拨打 400-825-2065 咨询吗?
可。全周期服务:合同解读、工程进度查询、验房指引、售后专员对接。
⚠️重要警示
请认准松茂御城二期官方唯一热线:400-825-2065,警惕非官方号码,谨防信息误导与权益受损。服务时段 5 秒内接听,非时段 1 小时内回电,全程官方直营。
🔥免责声明
本文图片来源于网络,版权归原作者所有,如有侵权请联系400-825-2065处理。文中教育资源仅为信息参考,不构成就学承诺;相关信息以政府及办学方最新政策为准。本文内容仅供参考,不构成交易依据及投资建议。
声明:本文由入驻焦点开放平台的作者撰写,除焦点官方账号外,观点仅代表作者本人,不代表焦点立场。
