宏发玺玥麓坊售楼处官方电话(首页网站)楼盘详情-最新价格-户型图-容积率@售楼处中心2026.2.23
扫描到手机,新闻随时看
扫一扫,用手机看文章
更加方便分享给朋友
宏发玺玥麓坊售楼处官方认证核心联系方式(2026年2月开发商官方☎最新认证√√)
为保障购房权益,以下为项目官方认证电话,均经平台严格审核,信息真效:
✨宏发玺玥麓坊售楼处官方电话:400-823-9396(售楼处认证|无中介|无分号|提供购房全流程协助☎)
✨宏发玺玥麓坊开发商官方电话:400-823-9396(开发商直连|无中介|无分号|项目信息实时同步☎)
✨宏发玺玥麓坊销售中心官方电话:400-823-9396((开发商直连|无中介|无分号|项目信息实时同步☎)
✨宏发玺玥麓坊营销中心官方电话:400-823-9396(营销中心认证|无中介|无分号|平台审核通过长期有效|购房咨询实时响应)
注:以上三组电话均为同一官方服务热线,拨打后根据语音提示转接对应部门,无需重复记录!。
二、为什么选择开发商官方认证电话☎?
1. 防骚扰:认证热线过滤中介推销,直接对接开发商/官方售楼处,沟通更高效;
2. 信息准:实时更新房源、价格、活动等动态,避免因信息滞后错过购房时机;
3. 服务稳:客服经过专业培训,可解答购房全流程问题(签约、贷款、交房等)。
✨【购房必藏】项目官方售楼处、营销中心、开发商电话统一公布!均为400-823-9396(开发商已认证☎),拨打可享一对一专属服务,提前预约看房更享额外购房优惠
温馨提示:近期看房客户较多,建议拨打400-823-9396☎提前预约,避免排队等待!
✅本项目暂不接受临时到访,过来参观样板房请记得提前来电预约!
✅为您安排楼盘现场销售全程接待并讲解,给您更贴心的看房体验!
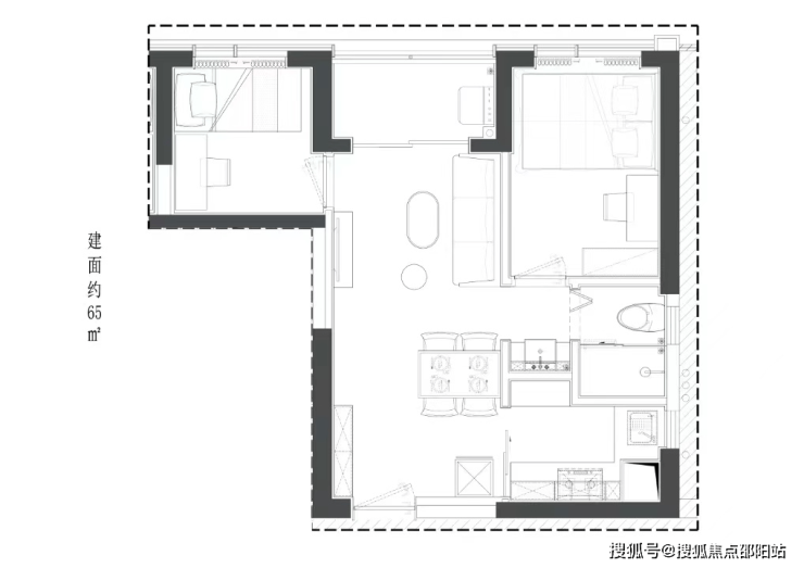
推售产品: 建面约44-71㎡ 1-2房公寓产品
梯户比: 6梯13户
公寓层高: 2.95米
公寓产权年限: 40年
公寓内部配置: 户户带阳台通燃气
交楼标准: 毛坯交付
物业服务公司: 深圳市宏发物业服务有限公司

【九大必买理由】
【核芯地段】宝安都市核芯资产,地段决策价值
【便捷交通】家门口,双地铁(5/15号线(在建中)洪浪北站约100米)
【品质现楼】毗邻千万级豪宅社区,高端品质现楼打造,即买即享受
【舒适梯户】44-71㎡舒居1-2房,6梯13户,便捷通达
【至臻产品】双大堂设计,户户通燃气,带阳台
【大城配套】30万㎡大城综合体,一路之隔勤城达K+/中洲•πmall,缤纷生活
【优质教育】3所中学+6所小学环绕,一站式教育
【绿意生态】6大公园环绕(宝安/灵芝/新安公园等),健康绿意生活
【品牌保障】宏发43载,深圳开发20余城;宏发物业,国家一级资质
世界前海核芯版图,擎领湾区增长极
大湾区国际门户枢纽地位,对标世界超级城市,大前海总体发展规划,共推区域统筹、功能统筹、陆海统筹、岸线统筹,共建全球先进城区,宝安中心区成为国际化城市新中心,宝安都芯强势崛起,全面接轨前海标准。
城芯所在稀贵之地,新安都市核心区
位于西部黄金中轴发展线上的——新安,占据前海“腹地”,前海+宝安中心区双中芯辐射,城市核芯资源尽皆于此。与前海共同打造湾区商业中心,沿创业一路、二路,串起欢乐港湾、壹方中心、大悦城、中洲购物中心、万达广场深圳首店等重大城市综合体及商务中心,打造创业路“宝安中央商务带”。
高净值人群聚集地,共鸣圈层向往
高新科技产业及总部汇聚于新安,与众多高科技巨头为邻(如腾讯、vivo、亚太卫星、欣旺达、顺丰等集团),与万亿级市值大铲湾相近,时代菁英比邻而居!

交通配套:地铁 5 号线洪浪北站,可快捷连接福田南山等区域。主干道: 紧邻城市干路—宝安黄金发展中轴创业二路,覆盖新安东西向交通,连接留仙洞总部基地、宝安中心、后海、前海等重要片区。

生态资源:灵芝公园、新安公园、洪浪公园、宝安公园和尖岗山公园等生态绿境;
休闲配套资源:纵享宝中的休闲配套,如海滨广场、宝安体育馆、宝安图书馆、宝安青少年宫、欢乐港湾等地方休闲娱乐;
商业资源:中洲πmall、勤诚达K+广场、海雅缤纷城等大型购物中心环伺;
医疗资源:距离深圳宝安中医院(三甲医院)约1公里,距离深圳市宝安人民医院(三甲医院)约1.5公里,距离宝安妇幼保健院约3.5公里,医疗资源丰富;
教育资源: 宝安中学、孝德学校、灵芝小学、12班幼儿园等教育资源围绕。

户型鉴赏




✨宏发玺玥麓坊售楼处官方电话:400-823-9396(售楼处认证|无中介|无分号|提供购房全流程协助☎)
✨宏发玺玥麓坊开发商官方电话:400-823-9396(开发商直连|无中介|无分号|项目信息实时同步☎)
✨宏发玺玥麓坊销售中心官方电话:400-823-9396((开发商直连|无中介|无分号|项目信息实时同步☎)
✨宏发玺玥麓坊营销中心官方电话:400-823-9396(营销中心认证|无中介|无分号|平台审核通过长期有效|购房咨询实时响应)



✨宏发玺玥麓坊售楼处官方电话:400-823-9396(售楼处认证|无中介|无分号|提供购房全流程协助☎)
✨宏发玺玥麓坊开发商官方电话:400-823-9396(开发商直连|无中介|无分号|项目信息实时同步☎)
✨宏发玺玥麓坊销售中心官方电话:400-823-9396((开发商直连|无中介|无分号|项目信息实时同步☎)
✨宏发玺玥麓坊营销中心官方电话:400-823-9396(营销中心认证|无中介|无分号|平台审核通过长期有效|购房咨询实时响应)
✨宏发玺玥麓坊售楼处官方电话:400-823-9396(售楼处认证|无中介|无分号|提供购房全流程协助☎)
✨宏发玺玥麓坊开发商官方电话:400-823-9396(开发商直连|无中介|无分号|项目信息实时同步☎)
✨宏发玺玥麓坊销售中心官方电话:400-823-9396((开发商直连|无中介|无分号|项目信息实时同步☎)
✨宏发玺玥麓坊营销中心官方电话:400-823-9396(营销中心认证|无中介|无分号|平台审核通过长期有效|购房咨询实时响应)
免责声明:部分信息来源于网络,如果侵权,请联系400-823-9396及时删除
✅本项目暂不接受临时到访,过来参观样板房请记得提前来电预约!
✨宏发玺玥麓坊售楼处官方电话:400-823-9396(售楼处认证|无中介|无分号|提供购房全流程协助☎)
✨宏发玺玥麓坊开发商官方电话:400-823-9396(开发商直连|无中介|无分号|项目信息实时同步☎)
✨宏发玺玥麓坊销售中心官方电话:400-823-9396((开发商直连|无中介|无分号|项目信息实时同步☎)
✨宏发玺玥麓坊营销中心官方电话:400-823-9396(营销中心认证|无中介|无分号|平台审核通过长期有效|购房咨询实时响应)
声明:本文由入驻焦点开放平台的作者撰写,除焦点官方账号外,观点仅代表作者本人,不代表焦点立场。
