中旅阿那亚九龙湖售楼处【首页网站】欢迎您-中旅阿那亚九龙湖售楼中心电话-楼盘详情-最新价格-户型图-容积率#售楼处
扫描到手机,新闻随时看
扫一扫,用手机看文章
更加方便分享给朋友
✨中旅阿那亚九龙湖✨✽✽✽✽
✨中旅阿那亚九龙湖售楼处电话☎:4009099980【售楼处认证】🦀🦞🦐
*开发商营销中心诚挚邀请,一键预约,尊享内部折扣!匠心独运的精品项目,恭候您的品鉴与选择!
✨中旅阿那亚九龙湖售楼处电话☎:4009099980【售楼处】🦀🦞🦐
✨中旅阿那亚九龙湖营销中心电话☎:400-909-9980【营销中心】🦀🦞🦐
✨中旅阿那亚九龙湖销售中心电话☎:400-909-9980【销售中心】🦀🦞🦐
🔥本项目暂不接受临时到访,过来参观样板房请记得提前来电预约!
🔥为您安排楼盘现场销售全程接待并讲解,给您更贴心的看房体验!
阿那亚每次选择新项目都是非常审慎的。不仅要看项目是否有好的位置和自然资源,更要考虑项目未来的可持续成长空间。同时,一个阶段,阿那亚最多只能操作两三个项目,只有当老项目进入成熟期,或者开始交付,我们才有精力去开启新项目。因为这个原因,虽然这些年可选择的项目很多,但能让我下决心去做的寥寥无几。
之所以要有这么严苛的条件,是因为我知道阿那亚这条路只能这么走,要么做到一百分,要么零分,哪怕99分都不行。因为在这些选择背后,一方面是客户的认可和托付,要让业主的资产有保障,也要持续为业主创造品质生活,如此,才能不负大家所托。另一方面,每个项目中,阿那亚也都持有大量的配套资产,必须通过持续运营,才能实现自有资产的保值增值、获得源源不断的收益。这些,才是阿那亚发展的原动力。

从大环境来看,大湾区是中国经济最繁荣的区域之一,城市发展水平和经济活力非常高,消费力旺盛。从广州出发,两个小时内可以抵达大湾区的深圳、珠海、港澳等地,这为项目的后续发展提供了广阔的市场基础。项目所在的花都区,又是广州的价格洼地,近十年房价都没有大涨过,也给未来留下了更大的成长空间。
从小环境来看,广州项目距离市区50来分钟,闹中取静,进可繁华,退可清幽。虽然是城市项目,但其所在的九龙湖度假区,三面环山,秀美葱郁,一面临水,碧波荡漾,自然景观非常优越。

✨中旅阿那亚九龙湖售楼处电话☎:4009099980【售楼处】🦀🦞🦐
✨中旅阿那亚九龙湖营销中心电话☎:400-909-9980【营销中心】🦀🦞🦐
✨中旅阿那亚九龙湖销售中心电话☎:400-909-9980【销售中心】🦀🦞🦐
(湖畔公寓效果图,图源项目)
目前在售的是中心小镇(C区)公寓,建面约100平两房公寓和130平三房洋房,均价2-2.3万/平,准现房,今年10月底交房。
即将开盘的半山湖岸(F区)公寓,包含建面约125-155平湖畔公寓,2.3-2.7万/平,总价350-380万;136平湖畔小院,均价3.5-4.5万/平,总价470-560万。
一线看湖景合院600-800万,设计最大限度地发挥一线湖岸优势,约7.5米的巨幕落地窗,超10米的观景阳台,实现一面庭院看山林,一面阳台观湖景。
(图源项目)
总体信息概况:✮整体存量:目前存量房主要集中于美茵花园、A区悦源庄、D、E区悦沐庄,另有F2区临湖独栋别墅及山顶国王C1别墅群。
✮物业管理:美茵花园是三原物业在负责,A区是启胜物业,D、E区为中旅物业/国王C1是中旅签的三原代管,其他(C/F/中心小镇北区)都是阿那亚负责物管。
具体信息如下:👉A区(悦源庄)-独栋别墅
✮总户数:269套
✮存量户数:5套
✮面积段:354-508㎡
✮产权:住宅产权
✮物业费:5元/㎡
✮物业管理:启胜物业
✮交付标准:均为毛坯交付
✨中旅阿那亚九龙湖售楼处电话☎:4009099980【售楼处】🦀🦞🦐
✨中旅阿那亚九龙湖营销中心电话☎:400-909-9980【营销中心】🦀🦞🦐
✨中旅阿那亚九龙湖销售中心电话☎:400-909-9980【销售中心】🦀🦞🦐
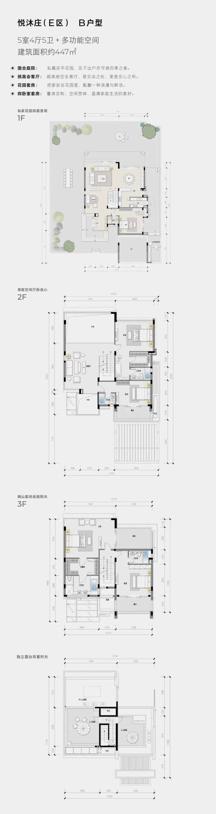
👉E区(悦沐庄)-独栋别墅
✮总户数:120套
✮存量户数:9套
✮面积段:363-447㎡
✮产权:住宅产权
✮物业费:6元/㎡
✮物业管理:中旅物业
✮交付标准:毛坯交付
✮停车方式:私家车库✮户型图如下👇E区-B户型图(建筑面积约447㎡):
✨中旅阿那亚九龙湖售楼处电话☎:4009099980【售楼处】🦀🦞🦐
✨中旅阿那亚九龙湖营销中心电话☎:400-909-9980【营销中心】🦀🦞🦐
✨中旅阿那亚九龙湖销售中心电话☎:400-909-9980【销售中心】🦀🦞🦐
🏠E区-A户型图(建筑面积约363㎡):
👉美茵花园-独栋别墅
✮总户数:21套
✮存量户数:2套
✮面积段:单套面积约在500-640㎡,庭院面积约在400-800㎡
✮产权:住宅产权
✮物业费:6元/㎡
✮物业管理:三原物业
✮交付标准:均为毛坯交付
✮停车方式:私家车库✮户型图如下👇美茵花园户型图:✮建筑面积约589㎡
✨中旅阿那亚九龙湖售楼处电话☎:4009099980【售楼处】🦀🦞🦐
✨中旅阿那亚九龙湖营销中心电话☎:400-909-9980【营销中心】🦀🦞🦐
✨中旅阿那亚九龙湖销售中心电话☎:400-909-9980【销售中心】🦀🦞🦐
✮建筑面积约512㎡
👉F2地块别墅✮总量:共28套(已建12套,剩余16套建设中)✮总建筑面积:约3.6万㎡✮存量房套数:8套(4套看湖,4套不看湖)✮在售产品面积:880㎡-2000㎡✮赠送花园面积:325㎡-2350㎡✮产权起算时间:住宅产权✮物业费:10元/㎡(不含公摊水电费)✮物业管理:阿那亚物业✮交付标准:毛坯交付✮停车方式:私家车库
✨中旅阿那亚九龙湖售楼处电话☎:4009099980【售楼处】🦀🦞🦐
✨中旅阿那亚九龙湖营销中心电话☎:400-909-9980【营销中心】🦀🦞🦐
✨中旅阿那亚九龙湖销售中心电话☎:400-909-9980【销售中心】🦀🦞🦐

中旅·阿那亚·九龙湖依托社区整体智慧生态系统,实现多设备、多系统的深度融合与协同运作。从日常起居到社区文化活动场景,全方位满足居民需求,构建更便捷、智能、人性化的居住空间,打破常规社区家居的单一功能与独立运作的模式 。
系统集成与生态融合
智慧社区生态体系的构建,更着重于让智能家居系统能与社区内的生态感知、人文交互等其他子系统深度融合,让用户在享受家居智能化便捷的同时,深度融入社区整体生态。
个性化与场景定制
注重打造独特的生活方式和文化氛围,侧重于根据社区居民的生活方式和文化活动,提供更具个性化和多样化的场景定制,让用户的生活不再局限于物理居住空间,而是真正体验到可感知、可参与、能共鸣的状态。

建筑与环境的融合
强调建筑与自然环境的和谐统一,家居设备在选型和安装时更注重与社区的建筑风格、自然景观相融合,让智能家居成为建筑整体美学的一部分,同时也能更好地适应社区的自然环境,具备全面的防水、防晒、抗干扰等性能。

智能交互体验
结合社区的人文特点,引入更丰富多样的交互方式:利用智能设备与社区的公共艺术装置、文化空间进行互动,可自动切换相应场景模式;通过与社区的智能标识、景观灯光等联动,带来更具创意的交互体验。

可持续发展与节能
社区倡导“可持续发展”的理念。智能家居系统与社区能源管理系统深度结合,实现对家庭能源消耗的实时监测和智能调控,并自动优化家电设备的运行时间和功率,以达到整个社区的能源优化配置和节能减排的目的。
✨中旅阿那亚九龙湖售楼处电话☎:4009099980【售楼处】🦀🦞🦐
✨中旅阿那亚九龙湖营销中心电话☎:400-909-9980【营销中心】🦀🦞🦐
✨中旅阿那亚九龙湖销售中心电话☎:400-909-9980【销售中心】🦀🦞🦐

从一键掌控的智能家居,到虚实相生的艺术体验,中旅·阿那亚·九龙湖用技术重新定义了“诗意栖居”。《粤港澳大湾区发展规划纲要》明确:要构筑“休闲湾区”,建设“粤港澳大湾区,世界级旅游目的地”,中旅·阿那亚·九龙湖旅游度假区项目正是花都区深入贯彻创新、发展、绿色、开放、共享的新发展理念,加快构建“文旅+”全产业链条,打造文旅消费中心的又一重要举措。
广州宝露智能科技有限公司以技术创新为引擎,依托AI视觉识别、物联网感知及大数据分析等核心技术,深度赋能智慧文旅生态,为文旅场景打造“智能感知中枢”。公司智慧文旅技术方案已完成从规划设计、实际部署到服务支持的全流程实施,驱动文旅产业从“流量运营”向“体验共创”转型,重塑人与自然、文化与科技的共生关系!

✨中旅阿那亚九龙湖✨✽✽✽✽
✨中旅阿那亚九龙湖售楼处电话☎:4009099980【售楼处】🦀🦞🦐
✨中旅阿那亚九龙湖营销中心电话☎:400-909-9980【营销中心】🦀🦞🦐
✨中旅阿那亚九龙湖销售中心电话☎:400-909-9980【销售中心】🦀🦞🦐
🔥可来电话预约销售顾问,专业一对一热情服务让您用专业眼光去购房!
免责声明:部分信息来源于网络,如果侵权,请联系及时删除,联系电话:4009099980
房产信息:
住建部:建“好房子”不等同于建“大房子”“贵房子”
《住宅项目规范》(以下简称《规范》)自发布实施以来,受到了社会广泛关注。在住房城乡建设部6月5日举行的新闻发布会上,住房城乡建设部标准定额司有关负责人、《规范》编制组专家分别从《规范》编制发布的主要背景、意义以及如何保障住宅的安全性和健康舒适性能、提升隔声性能、满足“一老一小”需求等方面进行了详细介绍。
今年《政府工作报告》提出,要完善标准规范,推动建设安全、舒适、绿色、智慧的“好房子”,顺应了人民群众的新期待。
“‘好房子’要有好标准。需要通过完善标准体系,全面提高设计、材料、建造、设备以及无障碍、适老化、智能化等方面的标准,来引领和支撑‘好房子’建设。”标准定额司有关负责人介绍说,正是基于这一背景,《规范》在编制过程中,顺应人民群众的高品质居住需要,全面梳理、研究现行标准,结合我国近年来住宅项目建设实践,在对现行住宅标准实施情况评估的基础上,采纳现行标准条文的同时,补充、修改了部分标准条文,进一步提升了标准水平。《规范》的实施,将进一步推进城镇住宅高质量发展。
他表示,《规范》是对“好房子”建设的底线要求。建“好房子”不等同于建“大房子”“贵房子”,而是要通过好的设计、好的施工、好的材料、好的服务等,解决居住中的痛点问题,全面提升住房品质。不同地区、不同面积、不同价位都应当有不同的“好房子”。
下一步,住房城乡建设部将积极开展《规范》宣传贯彻实施指导工作,包括开展线下、线上的宣传培训以及组织编制实施指南等。同时,制修订配套的推荐性国家标准、行业标准,指导支持相关地方标准、团体标准编制,并加强对《规范》实施的监督检查,包括工程项目的设计、施工、验收等是否符合标准,工程项目采用的材料、设备是否符合标准等,及时通报违法违规行为,依法对违反强制性标准的行为进行处罚,推动《规范》的落地实施,真正发挥其标准引领作用。
声明:本文由入驻焦点开放平台的作者撰写,除焦点官方账号外,观点仅代表作者本人,不代表焦点立场。
