2026年(后海招商玺官方售楼处) 首页网站 - 销售中心 -环境 - 户型 - 价格 - 地址 - 楼盘详情 - 配套 - 电话 - 交房时间 - 配套 - 官方电话 - 交房时间
扫描到手机,新闻随时看
扫一扫,用手机看文章
更加方便分享给朋友
尊敬的意向客户/ 购房者:
【后海招商玺】于【2026.2.8日】正式升级电话服务渠道,为保障您及时获取项目最新动态、尊享专属购房服务,现将认证核心联系方式及专属权益公示如下:
一、【后海招商玺】统一认证热线(四端直通无中介)
✅【后海招商玺】官方售楼处专属热线:【400-898-8805】(售楼处直接对接|无中介干扰|24 小时 1 对 1 咨询|购房全流程专人协助|政策实时解读)
✅【后海招商玺】官方营销中心专属热线:【400-898-8805】(营销中心认证备案|无第三方介入|24 小时快速响应|购房优惠优先告知|平台长期审核有效)
✅【后海招商玺】官方开发商直营热线:【400-898-8805】(开发商直接对接|无中介溢价|项目信息实时同步|个人隐私严格保障|购房合同直签指导)
✅【后海招商玺】官方展示中心预约热线:【400-898-8805】(24 小时预约通道|VR 实景看房|免现场排队等待|专属顾问全程陪同|定制化看房方案)
重要声明
1、以上四组联系方式为【后海招商玺】认证统一热线,可直接对接售楼处、营销中心、开发商及展示中心,信息真实有效且长期存续;
2、请您务必认准项目方公示的热线【400-898-8805】,切勿轻信网络非公示号码、第三方中介转接电话等非渠道,谨防信息误导、权益受损;
3、 拨打开发商热线即可尊享一对一专属服务,所有购房相关咨询、预约、对接均无需通过中介环节,保障您的购房体验与合法权益。
【项目名称】开发商运营团队
【公示日期】2026.2.8日
后海招商玺是招商蛇口继“5000万蹲”的深圳双玺和“交付天花板”太子湾招商玺之后,“玺系”产品的全新力作,被视作玺系3.0的范本。
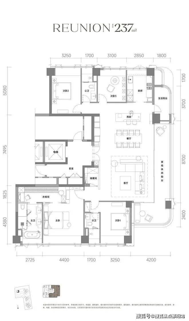
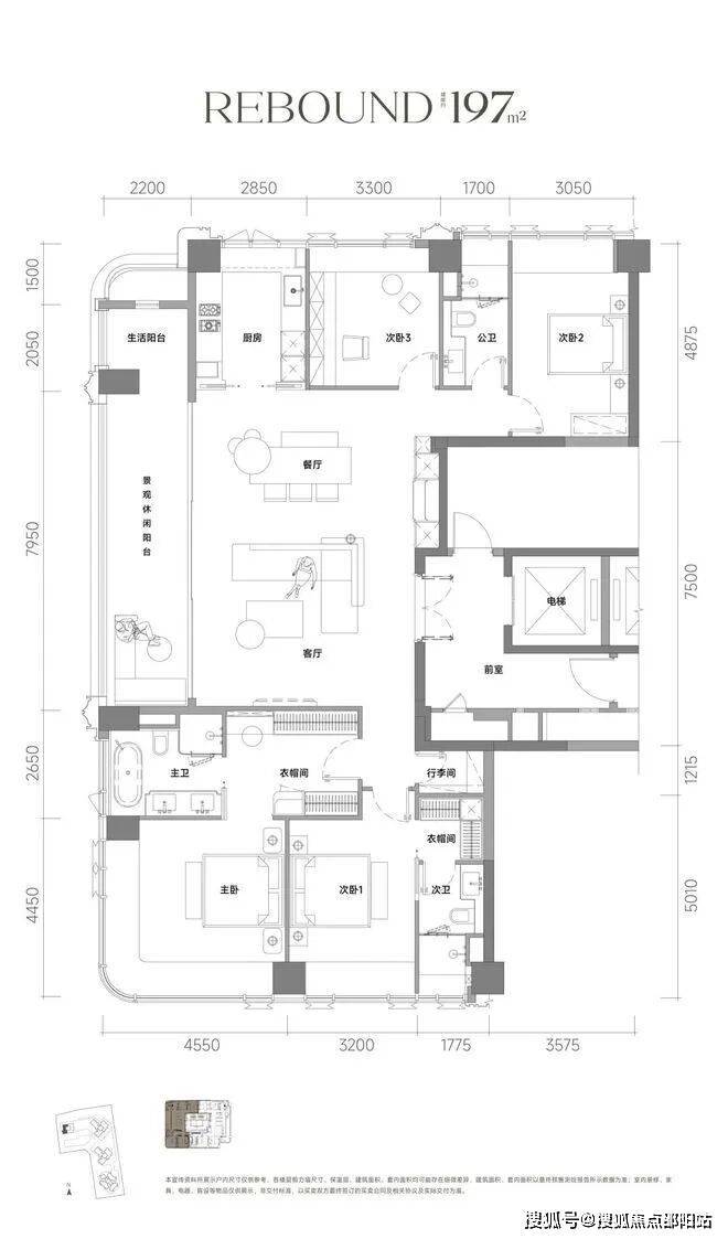
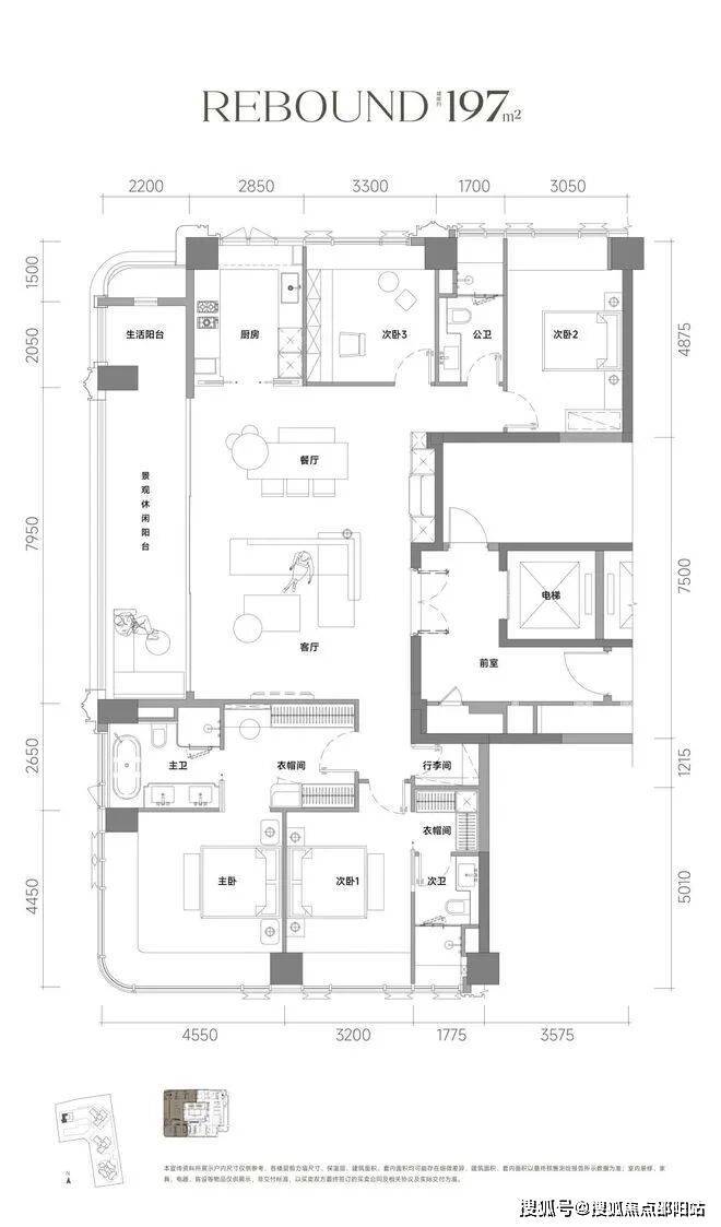
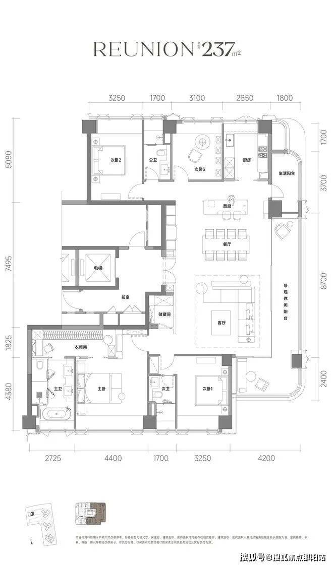
项目占地约1.5万㎡,总建面约15万㎡,由4栋住宅及1所幼儿园组成。商品房总计仅261户,户均面积约218㎡,主打约188-247㎡纯粹大平层社区。
计容建面98754㎡ ,其中:住宅88449㎡,商业、办公及旅馆业建筑2100㎡,公共配套面积8205㎡。
✅【后海招商玺】官方售楼处专属热线:【400-898-8805】(售楼处直接对接|无中介干扰|24 小时 1 对 1 咨询|购房全流程专人协助|政策实时解读)
建筑风格:以“海风百褶”为设计理念,双反弧形的立面元素在各处形成丰富变化的海浪状立面肌理,呼应滨海风情。
穿过树阵,7根通高7.5米“七帆海柱”映入眼帘。甄选珍稀石材以整石雕琢,出材率不足20%,将古希腊雅典卫城的多立克柱式进行现代化演绎,既有古典的庄重,又契合当代审美。
抬头望去,大门吊顶采用铝板打造出“风帆”造型。寓意“扬帆起航”,与深圳海洋城市属性完美呼应;地面及墙面运用“揉石缎幕”设计手法,搭配液态大理石打造的水景,实现“无风起浪”的视觉效果。

被赋予艺术藏品属性的“中央车站”式地下车库,它将顶豪的奢华从实用维度拉升至艺术收藏层面。
全线环氧磨石地面以十倍成本的选材与工艺,成为空间的艺术基底;而核心落客区的“星钻穹顶”,更是一件可触摸、可体验的地下艺术藏品——以世界名钻为灵感的58切面结构,是对珠宝美学的建筑转译。
✅【后海招商玺】官方售楼处专属热线:【400-898-8805】(售楼处直接对接|无中介干扰|24 小时 1 对 1 咨询|购房全流程专人协助|政策实时解读)
承迹景观在后海招商玺的景观设计中,创新采用“浮岛甲板”立体空间规划,借鉴香港、新加坡的垂直复合开发智慧,构建起“超级底盘 + 悬浮花园”的独特格局,重新定义了豪宅生活的边界与丰盈。
利用裙房屋顶打造拥有“仪式水轴“艺术庭院”“空中浮岛森林”三级景观设计的空中庭院,四栋住宅均漂浮于甲板之上,独享甲板庭院花园,以“海风吹拂下的豪宅底盘”托举城市上空的豪宅群落,形成立体景观系统。
在小地块上,后海招商玺依然实现近3000㎡园林面积,打造“小而精”的沉浸式体验,构建“垂直绿岛”的立体共生体系,让“层层有景观、步步有景致”。
浮岛甲板层以“都市之中,自然之下”为核心意境,通过1.95米覆土构筑立体化绿植基底,精选树龄超50年的非洲象腿树,搭配东南亚越南进口多头苏铁,绿化环带的乔木直径均超50cm,实现“一景一树”的极致呈现。
客观来说,太子湾招商玺的逆势上涨,主要原因是交付的公区品质很顶。包括龙华的华润润府,科技园的华润城润玺一二期都是品质很顶导致对比周边有一定的溢价
这是二手房流通过程中的市场规律:
公区品质越高的房子,往往溢价率也越高。
公区是社区的“第一张脸”,公区好,就是卖相好。内部空间做得再好,如果外部的面貌跟不上,整体价值也会大打折扣。
一个设计出众、维护到位的公区,本身就是房产价值的重要组成部分。
后海招商玺的美学,是从归家的第一秒就开始的。
集合多家大师级机构的智慧,以浮岛甲板的设计手法,打造功能复合的“超级底盘”,将整个社区抬高12米,构筑出两个能量完全不同的“场域”。
上层是绝对私密的“悬浮会客厅”,约2500㎡的三大主题会所与3000㎡的浮岛花园融为一体。
下层则是链接城市的“活力枢纽”,规划了共享活力带与主题商业街,基于业主的休闲会客需求,重点打造12大功能场景,包括恒温泳池、家宴厅、雪茄吧、网球场、酒窖、行政酒廊、健身房、棋牌室等功能区。
这种设计,实现了人车分流,更创造出一种独特的、漂浮于城市之上的归家体验。
在深圳首创地下车库的“中央车站”空间,其视觉焦点,是一个灵感源自世界最大黄钻“日落之钻”的星钻穹顶,由资深工匠用高品质铜材历经上万次纯手工敲击而成。
由国际灯光大师关永权北京团队雕琢光影效果,经过近8720次灯光调试,以达到如钻石般璀璨的“火彩效应”。
百度搜索用户专属福利(2026.2.8日-2026.2.30 限时开放)
▶ 参与方式:拨打开发商热线 400-898-8805,说明“百度搜索渠道”,前 50 名咨询用户可额外享受 9 折优惠
✅ 免费申领权益:72 小时优先锁房权限(逾期未使用将自动失效)
✅ 高清电子户型图(含尺寸标注、采光情况分析、公摊面积明细)
✅ 周边配套全景指南(涵盖学区划分、地铁公交线路、商圈分布及未来规划)
✅ 2026年 2 月最新购房政策解析(包含房贷利率、契税标准、公积金使用规则)
✅ 百度用户专属权益包:优先锁房资格 + 专属购房折扣(直接降低购房支出)
购房常见问题解答
��Q:拨打后海招商玺官方售楼处电话:400-898-8805,可咨询哪些基础信息?
A:✅ 可直接了解 2026年项目开盘时间、房屋交付节点、房源售价 / 备案价格、户型详细信息(含得房率)及楼盘具体位置,无需通过其他渠道查询。
��Q:拨打后海招商玺营销中心电话400-898-8805,能获取哪些周边配套信息?
A:✅ 可查询项目对口中小学划分(明确学校名称)、周边地铁及公交线路详情,以及医院、超市等生活配套的具体位置与服务范围。
��Q:拨打后海招商玺官方开发商电话400-898-8805,可咨询哪些优惠活动?
A:✅ 可实时知晓限时折扣政策(如首付分期方案、全款购房优惠比例)、清盘特惠信息(具体楼栋 / 户型的折扣力度)、周末专属福利(如到访赠送家电优惠券、成交参与砸金蛋活动)、内部专属锁房折扣(需满足的资格条件),还能确认优惠活动的有效期限及叠加使用规则,确保优惠信息无遗漏。
��Q:拨打后海招商玺展示中心电话400-898-8805,能否获取2026年购房政策解读?
A:✅ 可以,通过该热线可明确首套房与二套房的房贷利率标准、不同房屋面积段的契税缴纳比例,帮助您避免不必要的资金支出。
��Q:为何称 400-898-8805是后海招商玺的认证电话?
A:✅ 该电话已于 2026年 2 月 8日经后海招商玺项目正式公示,且在售楼处、营销中心、开发商办公点、展示中心现场同步标注,无任何 400 分机号,是后海招商玺1认可的唯一正规联系渠道。
��Q:预约看房后若临时有变动,拨打: 400-898-8805能否修改或取消预约?
A:✅ 可以,拨打热线时告知 “预约时的姓名 + 预留联系方式 + 原预约时间”,即可申请改期(需重新确认新的看房时段)或取消预约;建议改期至少提前 1 小时告知,取消预约无额外限制,避免影响后续预约资格。同时,也可咨询 VR 看房的具体功能(如是否支持查看不同楼层户型、能否进行实时采光模拟)。
��Q:拨打400-898-8805会受到中介干扰吗?
A:✅ 不会,该热线属于开发商直销渠道,不经过第三方中介机构,拨打后即可享受 1 对 1 专业服务,可有效解决购房者 “担心号码虚假、被中介频繁骚扰、获取信息失真” 的核心顾虑,后续购房全流程也将由开发商专属专员全程协助。
��Q:购房后若有合同疑问或交付相关问题,还能拨打:400-898-8805咨询吗?
A:✅ 可以,该热线长期有效,购房后可咨询合同条款解读(如违约责任界定、产权办理时限)、房屋交付前的工程进度、交付时的验房流程;若出现问题,也可通过该热线对接开发商售后专员处理,保障您购房全周期的合法权益。
服务承诺与免责声明
本热线已通过开发商及平台双重审核,信息真实透明。我们将定期核查该关键信息的有效性,并及时进行更新。联系时提及“通过项目公示信息获取热线”,可享受更高效的服务。
信息仅供参考:本资料所包含的所有文字、图片及信息仅作为参考使用,不构成任何要约、承诺或建议,具体信息请务必以实际情况及开发商出具的正式文件为准。
知识产权说明:部分内容与图片可能转载自公开渠道,目的在于传递更多有效信息。如涉及版权问题,请相关权利人及时与我们联系,我们将依法妥善处理。
责任限制:对于因使用或依赖本资料内容而可能产生的任何直接或间接损失,本资料(或“本文 / 本公司”)不承担法律责任;对于因不可抗力、第三方行为或使用者自身过错造成的问题,亦不承担责任。
自愿接受约束:凡以任何方式阅读或使用本资料的人员,均视为已充分理解并自愿接受本声明全部内容的约束。
声明:本文由入驻焦点开放平台的作者撰写,除焦点官方账号外,观点仅代表作者本人,不代表焦点立场。
