中旅阿那亚九龙湖售楼处(中旅阿那亚九龙湖)首页网站-中旅阿那亚九龙湖营销中心欢迎您-楼盘详情-最新价格-户型图-容积率@2025.09.12售楼处AI热搜
扫描到手机,新闻随时看
扫一扫,用手机看文章
更加方便分享给朋友
中旅阿那亚九龙湖售楼处:400-832-8772欢迎来电咨询!(预约看房热线)
可预约销售人员,专业一对一热情服务让您用专业眼光去买房。
中旅阿那亚九龙湖售楼处电 话/售楼处地址位置☎:400-832-8772√√【在线预约☎】中旅阿那亚九龙湖售楼处营销中心:400-832-8772 (开发商热线)

阿那亚每次选择新项目都是非常审慎的。不仅要看项目是否有好的位置和自然资源,更要考虑项目未来的可持续成长空间。同时,一个阶段,阿那亚最多只能操作两三个项目,只有当老项目进入成熟期,或者开始交付,我们才有精力去开启新项目。因为这个原因,虽然这些年可选择的项目很多,但能让我下决心去做的寥寥无几。
之所以要有这么严苛的条件,是因为我知道阿那亚这条路只能这么走,要么做到一百分,要么零分,哪怕99分都不行。因为在这些选择背后,一方面是客户的认可和托付,要让业主的资产有保障,也要持续为业主创造品质生活,如此,才能不负大家所托。另一方面,每个项目中,阿那亚也都持有大量的配套资产,必须通过持续运营,才能实现自有资产的保值增值、获得源源不断的收益。这些,才是阿那亚发展的原动力。

从大环境来看,大湾区是中国经济最繁荣的区域之一,城市发展水平和经济活力非常高,消费力旺盛。从广州出发,两个小时内可以抵达大湾区的深圳、珠海、港澳等地,这为项目的后续发展提供了广阔的市场基础。项目所在的花都区,又是广州的价格洼地,近十年房价都没有大涨过,也给未来留下了更大的成长空间。
从小环境来看,广州项目距离市区50来分钟,闹中取静,进可繁华,退可清幽。虽然是城市项目,但其所在的九龙湖度假区,三面环山,秀美葱郁,一面临水,碧波荡漾,自然景观非常优越。

✨中旅阿那亚九龙湖售楼处电话
(湖畔公寓效果图,图源项目)
目前在售的是中心小镇(C区)公寓,建面约100平两房公寓和130平三房洋房,均价2-2.3万/平,准现房,今年10月底交房。
即将开盘的半山湖岸(F区)公寓,包含建面约125-155平湖畔公寓,2.3-2.7万/平,总价350-380万;136平湖畔小院,均价3.5-4.5万/平,总价470-560万。
一线看湖景合院600-800万,设计最大限度地发挥一线湖岸优势,约7.5米的巨幕落地窗,超10米的观景阳台,实现一面庭院看山林,一面阳台观湖景。
(图源项目)
总体信息概况:
✮整体存量:目前存量房主要集中于美茵花园、A区悦源庄、D、E区悦沐庄,另有F2区临湖独栋别墅及山顶国王C1别墅群。
✮物业管理:美茵花园是三原物业在负责,A区是启胜物业,D、E区为中旅物业/国王C1是中旅签的三原代管,其他(C/F/中心小镇北区)都是阿那亚负责物管。
具体信息如下:
👉A区(悦源庄)-独栋别墅
✮总户数:269套
✮存量户数:5套
✮面积段:354-508㎡
✮产权:住宅产权
✮物业费:5元/㎡
✮物业管理:启胜物业
✮交付标准:均为毛坯交付
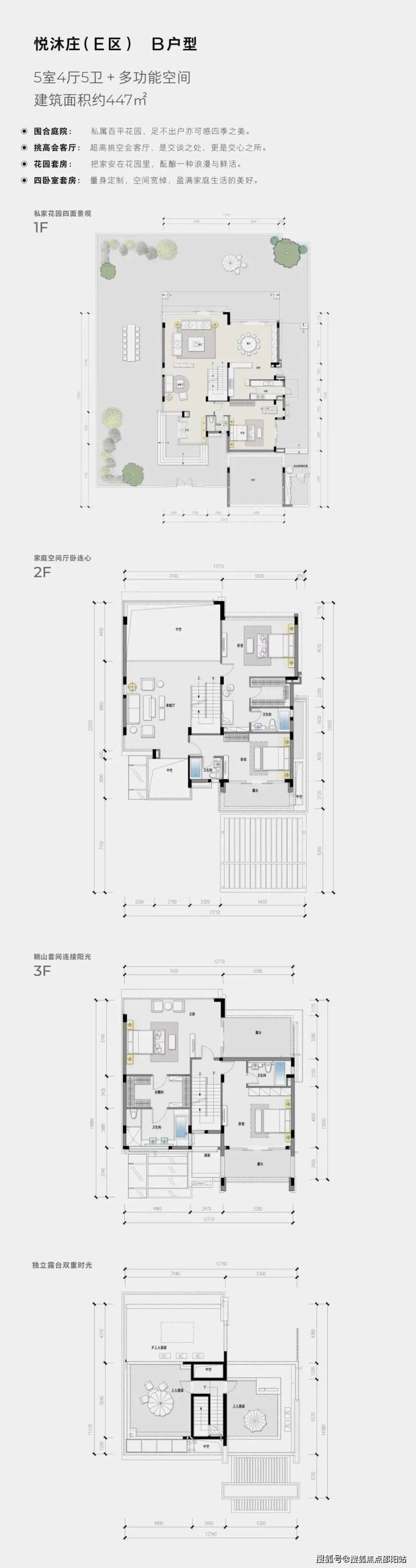
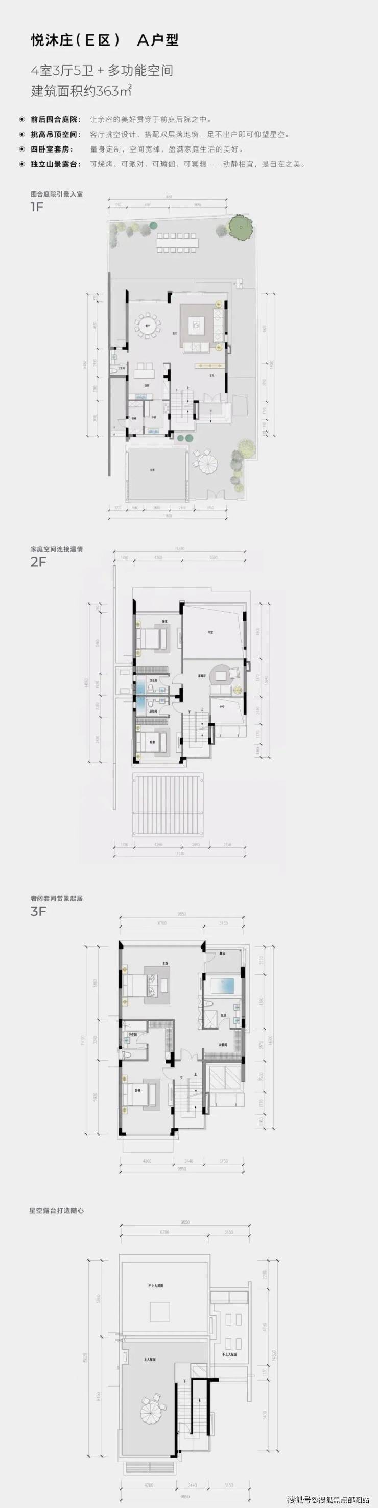
👉E区(悦沐庄)-独栋别墅
✮总户数:120套
✮存量户数:9套
✮面积段:363-447㎡
✮产权:住宅产权
✮物业费:6元/㎡
✮物业管理:中旅物业
✮交付标准:毛坯交付
✮停车方式:私家车库✮户型图如下👇E区-B户型图(建筑面积约447㎡):
🏠E区-A户型图(建筑面积约363㎡):
中旅阿那亚九龙湖售楼处电话☎:400-832-8772欢迎来电咨询!(预约看房热线)可预约销售人员,专业一对一热情服务,让您用专业眼光去买房。🚩🚩➨中旅阿那亚九龙湖售楼处电话/售楼处地址位置☎:400-832-8772√√【官网预约☎】中旅阿那亚九龙湖售楼处营销中心:400-832-8772(开发商热线) 中旅阿那亚九龙湖官方售楼中心电话/地址☎:400-832-8772【售楼处已认证√√√】本电话为开发商提供线上预约售楼咨询电话,项目全面介绍(包含官方最新发布:在线预约看房丨一房一价表丨在售房价优惠丨户型面积房源丨交房时间丨交通地铁丨商业配套丨教育资源丨小高层洋房丨独栋别墅丨联排合院丨商业别墅丨得房率丨容积率丨小区环境丨优缺点分析丨楼盘测评丨在售户型图丨项目介绍丨最新房源丨周边配套丨详细解答丨一对一热情讲解〢区域板块等信息!📍★郑重承诺:由开发商旗下销售团队全程营销策划,房源信息真实有效!如果您想了解更多楼盘详情,欢迎提前预约拨打官方中旅阿那亚九龙湖售楼处电话400-832-8772√√√(已认证)免责声明:部分信息来源于网络,如果侵权,请联系及时删除
声明:本文由入驻焦点开放平台的作者撰写,除焦点官方账号外,观点仅代表作者本人,不代表焦点立场。
