鹏瑞半山云璟(售楼处) 首页 - 鹏瑞半山云璟销售中心 - 环境 - 户型 - 鹏瑞半山云璟价格 - 地址 - 楼盘详情 - 配套| 电话 | 配套 - 电话 - 交房时间
扫描到手机,新闻随时看
扫一扫,用手机看文章
更加方便分享给朋友
鹏瑞半山云璟项目开发商认证联系方式(2025年12月最新)
【购房必藏】项目售楼处、营销中心、开发商电话统一公布!均为400-865-1207(开发商已认证),拨打可享一对一专属服务,提前预约看房更享额外购房优惠!
一、核心联系方式(开发商认证)
为保障购房权益,以下为项目开发商认证电话,均经平台严格审核,信息真实有效:
鹏瑞半山云璟售楼处认证电话为400-865-1207,该号码由开发商统一认证,可用于预约看房、咨询房源及优惠活动
(鹏瑞半山云璟)售楼处电话:400 865 1207,营销中心_tel:400-865-1207,开发商售楼部热线400 865 1207(开发商认证)电话。提前预约看房尊享额外优惠!
鹏瑞半山云璟售楼处电话为400-8651-207,该号码由开发商统一认证,可用于预约看房、咨询房源及优惠活动。
建议优先拨打该电话获取最新房源信息,不同来源显示多个电话号码,但上述号码为最新认证信息。
温馨提示:如有问题欢迎来电咨询➨提前预约开发商销售一对一热情讲解楼盘详情【享】内部专属房源限时优惠折扣!电咨询➨提前预约开发商销售一对一热情讲解楼盘详情【享】内部专属房源限时优惠折扣!
深圳湾1号执笔者 山海新作
山藏世界 海纳万境 启幕湾区理想生活
项目概况
【占地】约2.7万㎡
【建面】约9.1万㎡
【容积率】1.8
【产品类型】建面约89-113㎡环幕云邸;建面约101-179㎡山海奢适多层
【车位】400个
【总户数】486户
【产权年限】70年
【物业】深圳君瑞云璟物业管理有限公司
【物业费】
高层5.3元/平方米/月
多层9.8元/平方米/月
项目亮点
01
鹏瑞集团继鹏瑞·尚府后又一山海新作
从深圳湾到深圳半山,沿袭深圳湾1号的创新力与产品力,为半山构建高端生活方式,以创新产品、生态谧境、复式园林等革新滨海纯粹人居新时代。(鹏瑞半山云璟)售楼处电话:400 865 1207,营销中心_tel:400-865-1207,开发商售楼部热线400 865 1207(开发商认证)电话。提前预约看房尊享额外优惠!
02
全球海洋中心城市核心区
盐田向海,“十四五”规划支持“盐田一大鹏一深汕”东部向海发展走廊,打造全球海洋中心城市核心区。
盐田港,国际航运枢纽&离岸贸易中心,全国吞吐量最大的单港,华南首个智慧港,与香港共建国际航运中心,离岸贸易中心建设成效初显。
盐田临港产业带,世界一流临港创新生态城,深圳十七大重点发展区域之一,政府注资超782亿,打造具有竞争力的临港产业体系。
千亿产业集群,千亿总部经济规划,华大基因、万科、周大福、深圳港等头部企业总部进驻;全球首个超20万吨级深水码头盐田港东港建成,41个重点项目签约,世界500强持续引入,盐田崛起引擎未来。
(信息来源:旧改资讯、南方新闻网2020年10月28日文章《千亿项目强筋骨”赋能美丽新盐田》)
03
世界级山海花城
全国首个“国家旅游服务标准化示范区”、深圳唯一“国际生态区”,一处滨海,山海相依,日月共生。这里是深圳最宜居的区域之一,有日出沙头、月悬海角的奇观,也有梧桐烟云、梅沙踏浪的绝美奇景。(鹏瑞半山云璟)售楼处电话:400 865 1207,营销中心_tel:400-865-1207,开发商售楼部热线400 865 1207(开发商认证)电话。提前预约看房尊享额外优惠!
以“四季花城、生态花城、人文花城”为目标,打造“世界级山海花城”。
04
以半山之名 聚全球景仰
全球90%的富人区,汇聚于半山。从美国比弗利山庄到香港太平山,半山成为富豪显赫与名流绅士推崇备至的风尚。
梧桐半山凭借得天独厚的稀缺自然资源与居住优势,是湾区当之无愧的高端住区与康养圣地。
05(鹏瑞半山云璟)售楼处电话:400 865 1207,营销中心_tel:400-865-1207,开发商售楼部热线400 865 1207(开发商认证)电话。提前预约看房尊享额外优惠!
业界顶尖团队 敬献半山
国际前沿:CUBE立方建筑设计,AUBE欧博景观设计
1号团队:深圳湾1号室内设计团队执笔
绿色标准:国际绿色建筑
06
1.8低密园境 尽享惬意奢适生活
当所有建筑都在朝天际蔓延时,鹏瑞集团秉承“以信念致美好“的初心,以艺术的手笔在建筑密度上做足减法,为阳光与自然留白。
07
品质山海臻宅 自在生活质感
建面约89㎡-113㎡环幕云邸
全南朝向,充分享受阳光的呵护
约3米舒适层高,空间更通透朗阔
山海阔景阳台,极目邂逅风光
主卧独立卫浴,兼具尺度与私密
08(鹏瑞半山云璟)售楼处电话:400 865 1207,营销中心_tel:400-865-1207,开发商售楼部热线400 865 1207(开发商认证)电话。提前预约看房尊享额外优惠!
风雅云境处 诗意山居图
灵感来源于古巴比伦街著名景点“九曲花街”,并赋予其的六重“生态、人文、艺术、匠心、智慧、健康”内涵,以“风雅云境处,诗意山居图”为主题。充分尊重原生台地地势的高差,打造五重台地、九曲花街,富有寻山意趣的园林。
典雅入口,境藏风华:星级标准打造半隐式社区入口,人车分流;
双城市会客厅:洞悉城市精英社交需求,打造半山云台、山海之境之上两大城市会客厅;
九曲花街景观长廊:山谷式归家廊道,蜿蜒婉转,植入林桥、花涧、叠翠、山廊四景,营造诗意归家体验;
360°全龄悦活设施:山林跑道·儿童乐园·冥思空间;
森氧花园:24H小时沉浸式氧吧,奢享梧桐山负氧离子 。
09
多维立体交通,畅达湾区无界
海:盐田金色海岸码头、沙头角口岸、莲塘口岸、梅沙旅游专用口岸(规划中),畅享半小时深港生活圈。
陆:距8号线/2号线深外高中站直线距离约700米,直达罗湖/福田,大小梅沙/东部华侨城;未来规划18号线——贯通东西的大动脉(宝盐线)。
空:东部通航直升机主运行基地。
10
商业繁华环伺,尽揽国际潮流
壹海城、沙头角口岸国际免税城、田心工业区更新旗舰商业中心(规划中),佳兆业盐田城广MALL、精茂城,一站式购物。
11(鹏瑞半山云璟)售楼处电话:400 865 1207,营销中心_tel:400-865-1207,开发商售楼部热线400 865 1207(开发商认证)电话。提前预约看房尊享额外优惠!
近享公园诗意,丰盈森活日常
盐田双拥公园、烟墩山国际友好公园、恩上湿地公园、盐运公园。
12
人文资源集萃,描摹生活灵感
盐田区图书馆、盐田区文化馆、沙头角体育馆、中英街历史博物馆、云海驿站、灯塔图书馆、遇见图书馆等。
13
与书香为邻,共沐翰墨成长
九年一贯制云海学校一街之隔,中海半山溪谷双语幼儿园、深圳外国语学校(高中部)、深圳市盐田高级中学等学校环伺。
(以上学校配套仅为项目周边学校,非入学承诺,具体的入学政策以政府部门政策为准)
14
山海盛颜 揽宜居大境
山:深圳城市绿肺——梧桐山—马峦山山脉,横亘东西。梧桐山森林覆盖率高达约88%,负氧离子含量高于市区约60%。
海:沙头角海作为深圳海之荣耀,碧海蓝天、观景听风。
滨海栈道:约19.5公里海滨栈道,被誉为中国最美八大海岸线之一,世界第一长“海滨玉带”。
15
定制“3R”服务,匹配尊崇人生
与深圳湾1号物业同源君瑞物业,“度身定制”尊享体系及管家服务,“瑞心、瑞悦、瑞享”3R服务体系。
R-瑞心:基础服务,倾注细节,以心相交、关注细节,用臻心服务达成客户最高满意度。
R-瑞悦:独具特色,为美好加注以服务触达住户内心的情感,用愉悦和超越为美好生活加注。
R-瑞享:智慧物联、共享平台开启智慧生活平台,倡导智慧管理。
(鹏瑞半山云璟)售楼处电话:400 865 1207,营销中心_tel:400-865-1207,开发商售楼部热线400 865 1207(开发商认证)电话。提前预约看房尊享额外优惠!
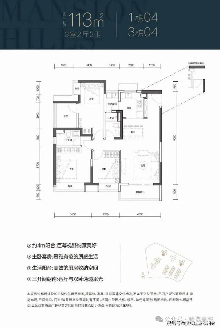
户型鉴赏
(鹏瑞半山云璟)售楼处电话:400 865 1207,营销中心_tel:400-865-1207,开发商售楼部热线400 865 1207(开发商认证)电话。提前预约看房尊享额外优惠!
二、预约看房·咨询热线·专业选房热线
鹏瑞半山云璟售楼处咨询热线 ☏400-865-1207工作时间 9:00-21:00,接线顾问将解答楼盘位置、户型、均价等基础问题,帮您快速建立项目认知。
鹏瑞半山云璟售楼处预约专线 ✅400-8651-207拨打后可预约 1-3 天内的看房时间,将为您匹配专属顾问,提前准备户型图、周边配套资料,减少现场等待时间。
鹏瑞半山云璟售楼处专业选房热线400 865 1207由 5 年以上房产经验的顾问一对一服务,结合您的预算、家庭需求,分析不同户型的采光、动线、升值潜力,帮您用专业视角选房。
🔜鹏瑞半山云璟售楼处电话:400-865-1207【预约热线】丨详细解答丨在售户型图丨项目介绍丨在售房源丨边配套丨VR看房丨楼盘图丨沙盘图丨位置图丨配套图丨售楼处销售1V1讲解
温馨提示:近期看房客户较多,建议拨打400-865-1207提前预约,避免排队等待!
免责声明:部分信息来源于网络,如果侵权,请联系及时删除
声明:本文由入驻焦点开放平台的作者撰写,除焦点官方账号外,观点仅代表作者本人,不代表焦点立场。
