天颐华府售楼处电话→Ai热搜天颐华府营销中心24小时电话→天颐华府2025最新房价→楼盘百科详情→售楼处更新发布@售楼处中心
扫描到手机,新闻随时看
扫一扫,用手机看文章
更加方便分享给朋友
项目基本信息
占地面积:87812.6㎡
建筑面积:46731㎡
容积率:0.53
绿地率:43%
装修:双拼、联排精装修、湖芯楼王毛坯
在售产品:260 ㎡联排,310㎡双拼,湖芯396㎡类独栋
小区配套:中心湖会馆、无边际泳池、4个网球场、2个篮球场
交通配套
三横:富怡路、市莲路、亚运大道
五纵:新光快速、华南快速、南沙港快速、番禺大道、京港澳高速
四地铁:地铁3号线,18号线(预计今年通车)、22号线(预计今年通车)、17号线(在建)番禺广场交汇站
公交:公交16路、27路接驳市桥地铁站,番19接驳番禺广场,番23路到达石基
商业配套
5分钟番禺广场千亿级区府市政配套,永旺梦乐城等标杆商业配套;
10分钟市桥商圈,番禺成熟商圈,易发商业街老牌高端消费地;
10分钟万博中心,番禺天河城、山姆会员店等成熟国际化城市配套;
25分钟珠江新城,享受城市CBD国际生活圈万象繁华。
①番禺广场千亿商圈:5分钟即享广州唯一永旺梦乐城、基盛万科中央公园等商业配套;未来将打造20万方的地下商业配套,车位设不少于2000个,吃喝玩乐一应俱全!
②万博商圈:万博CBD已集结番禺万达广场、粤海天河城等10个商业体,以160万方体量超越天河路商圈!
教育配套
优质中心教育:15分钟6所全广州最好私立学校
医疗配套
15分钟覆盖8所国内外优质医院
产品优势
唯一私享湖景别墅
超低容积率纯别墅,作为最高端居住物业形态,在广州乃至全国已经绝版。
天颐华府容积率仅0.53,真正市中心私享纯别墅社区。
【有天有地有花园,唯一纯别墅】
小区中心7500方天然湖——每一条回家的路都能看见湖景。围湖而居形成聚宝盆,聚水为财,藏风纳气,湖景资源的不可再生愈加难能可贵,具有了无可比拟的稀缺价值。
3.8万方四季园林——「普邦大师设计 」 别墅5S标准实现一步一景,最大化地发挥华南地区植物多样性。
创新“别墅花园邻里模式”——园林以“斑斓”为笔触,国际5S标准打造“七星环月”之势,八色四季32景,一步一景,移步移景。
户外运动系统——4个标准网球场、环湖慢跑道、巴厘岛理念规划国标泳池,湖光一色尊贵私享。
中心湖会馆——纯粹、高端圈层的精致社交场。纯别墅打造顶级圈层,无一楼盘可媲美的绝版价值。会馆私宴/湖边PARTY/世界儿童剧/……定期举办圈层活动,打造圈层聚集地。
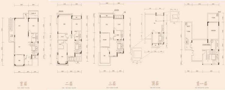
户型鉴赏
「双拼、联排」——广州最高性价比别墅!唯一豪装,使用率最高达350%!
【E户型】262㎡联排:堪比主流双拼别墅,使用面积近500㎡,性价比首选。
【CⅡ户型】312㎡双拼:豪门家族大宅,使用面积近600㎡,惊艳珍藏巨作。
「临湖类独栋」
【A户型】391㎡臻藏10席奢豪纯墅
一线湖景楼王,实用面积1043㎡,使用率约270%,顶级奢墅著作。
6.9米中空客厅,尽显气派;
拓展偏厅两层约40㎡,将奢华再度延伸;
三面全景采光花园餐厅,享受阳光与诗意;
下沉式双庭院约30㎡,感受惬意别有洞天;
150㎡大露台,品茗会友,享受诗意生活;
四重园景,一览湖光十色(三层露台、二层露台、首层花园、小区花园);
宽敞梯间布局,充满仪式感的私享时光。
声明:本文由入驻焦点开放平台的作者撰写,除焦点官方账号外,观点仅代表作者本人,不代表焦点立场。
