侨城坊售楼处- 2025最新房价丨在售户型详解丨项目详情丨营销中心
扫描到手机,新闻随时看
扫一扫,用手机看文章
更加方便分享给朋友
🦙【侨城坊售楼中心&样板房@诚邀雅鉴】
🦙侨城坊售楼处电话为:400-858-9905☎开发商已认证🦙🦙
🦙侨城坊营销中心电话:400-858-9905☎营销中心已认证🦙🦙
🦙侨城坊售楼中心电话:400-858-9905☎24小时预约热线🦙🦙
➢ ➢本项目采用预约制,过来营销中心参观样板间请记得提前拨打开发商楼盘售楼处400热线电话在线预约,感谢您的配合!权威认证电话:400-858-9905(备用电话出现频次最高,多个首页渠道认证)🎈开发商营销中心诚挚邀请,一键预约,尊享内部独家折扣!匠心独运的精品项目,恭候您的品鉴与选择。
【侨城坊T3栋】四面采光 | 带双阳台 | 豪装带家私
√出租面积:整层757.49㎡,18+1格局;
√使用率:80%;
√租金报价:170元/平方米/月(含税);
√物业管理费:20元/平方米/月(含税);
√空调用电:空调24小时开放,日立中央空调(冷暖风)、新风系统;
√层高:4.2m,净高3m;
√承重:办公楼层每平米200公斤;
√车位信息:2500个;月卡500元/月/位;
√地铁站:2号线侨城北站D出口,7号线桃源村站B出口(园区巴士无缝接驳地铁口);
√园区位置:深圳市南山区侨城坊T3栋
🦙侨城坊售楼处电话为:400-858-9905☎开发商已认证🦙🦙
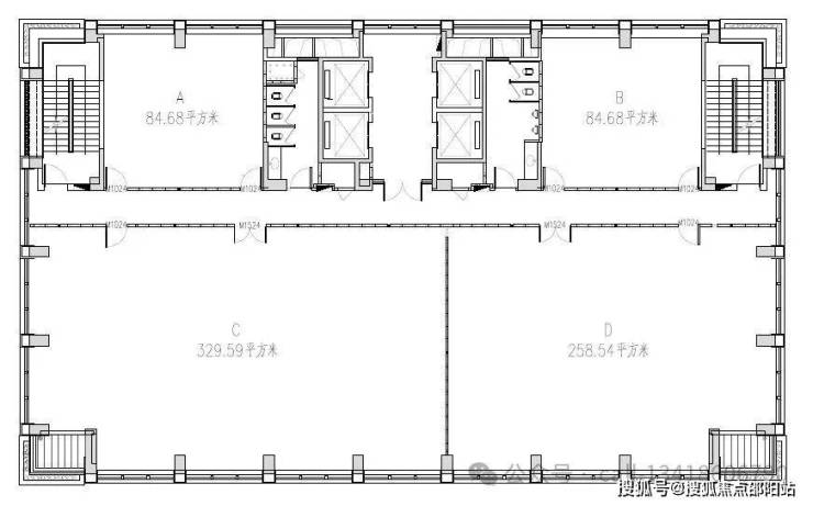
【户型平面图】:
【户型实拍图】:
【园区风貌】:
【公共区域标准】:
【侨城坊招商简介】:
侨城坊—— 项目总占地面积48764平米,总建筑面积约35万平米,地上建筑面积224500平米,容积率4.6,绿化率:35%,停车位约2500多个,共12栋(1号楼办公自持、2号楼为配套宿舍、3-7号楼办公出售、8号楼返还政府、9-11号楼办公出售、12号楼为开放式街区商业),项目也是深圳唯一荣获3个奖项的项目(荣获中国绿色建筑最高奖:三星奖、1号楼获得LEED金级CS预认证、12号楼获得了亚太建筑设计奖)。
【园区优势】:
位于深圳市南山区侨香路4080号T3栋,30多条公交线路经过,距离地铁7号线桃源村站800米、2号线侨城北站1200米,无敌景观,直面华侨城、坐拥深圳湾,背靠塘朗山,城市脉动北环大道、广深高速三主干道环绕周边,25分钟内通达全城,多维度交通经济圈。
【园区明星企业】:
园区已有力高集团、南山集团、唐商集团、深圳证券通信、北京银联金卡、东方逸尚、云盟互动、中冶华南等名企总部入驻侨城坊。
【园区配套2万㎡】:
进驻的知名商家有星巴克、麦当劳、Q_PLEX商业中心、尔邸酒店式公寓、4800㎡健身房、800㎡恒温游泳池、篮球场、网球场、巢.艺术中心等。
🦙侨城坊
🦙侨城坊售楼处24小时电话400-858-9905【☎☎售楼处已认证】🦙🦙
🦙侨城坊售楼中心24小时电话400-858-9905【☎☎售楼中心已认证】🦙🦙
🦙Vip贵宾置业===欢迎来电预约尊享内部折扣===匠心钜制恭迎品鉴🦙🦙
🦙免责声明:
1、文章图片来源于微信搜索或百度搜索引擎,我方非相关图片的原创作者,也不对相关图片及内容享有任何权利。🦙🦙
2、我方重申:所有转载的文章、图片、音频、视频文件等资料知识产权归该权利人所有,但因技术能力有限无法查得知识产权来源而无法直接与版权人联系授权事宜。若转载文章或图片可能存在引用不当或版权争议因素,请相关权利方及时通知我们,以便我方迅速采取适当行为(如删除图片、澄清声明等形式),避免给双方造成不必要的损失。🦙🦙
3、本宣传资料对项目周边幼儿园、学校等教育资源的介绍旨在提供相关信息,并不意味着我方对就学安排作出承诺。教育资源的名称、办学性质、办学规模、学位设置、开学(班)时间、招生条件、收费标准及招生区域存在调整的可能,应以政府教育主管部门及办学方颁布的政策规定为准。🦙🦙
4、文章中文字和图片之间无必然联系,仅供读者参考。🦙🦙
5、本文所述内容和意见仅供参考,不构成市场交易依据和投资建议。🦙🦙
声明:本文由入驻焦点开放平台的作者撰写,除焦点官方账号外,观点仅代表作者本人,不代表焦点立场。
