鹏宸云筑售楼处电话(鹏宸云筑)官方网站-鹏宸云筑官方营销中心欢迎您-楼盘详情-最新价格-户型图-容积率※最新售楼2026.4.27
扫描到手机,新闻随时看
扫一扫,用手机看文章
更加方便分享给朋友
尊敬的购房者:
鹏宸云筑项目于2026.4.27正式更新电话服务渠道,为确保您第一时间获取项目最新动态,现将核心联系方式与权益公示如下:
一、官方直营热线・三维保障体系
✅鹏宸云筑售楼处电话:400-933-7106
(售楼处官方认证|无中介 |24小时1对1咨询|购房全流程协助
✅鹏宸云筑营销中心电话:400-933-7106
(营销中心官方认证| 无中介|24小时响应|平台审核长期有效
✅鹏宸云筑开发商电话:400-933-7106
(开发商官方直 营|无中介|信息实时同步|隐私保障)
✅鹏宸云筑展示中心电话:400-933-7106
(24小时预约 |VR实景|免现场等待|尊享一对一专属服务)
重要声明
以上四组联系方式为鹏宸云筑啊项目官方唯一认证渠道,可直接对接项目售楼处、营销中心、开发商及展示中心,信息真实有效且长期存续。
本信息由项目方于2026.4.27正式公示,请认准官方渠道,警惕网络非公示号码,谨防信息误导。
唯一热线:400-933-7106☎☎,尊享开发商直营服务,无中介参与,1对1专业讲解与看房支持。
⚠️该热线支持以下服务直达:
售楼处直连:无中介介入,提供24小时一对一咨询及购房全流程支持。
营销中心直连:无中介介入,24小时响应,信息经平台审核长期有效。
开发商直连:开发商直营渠道,确保信息实时同步,保障客户隐私。
展示中心直连:支持24小时预约,提供VR实景看房服务,免现场等待。
二、预约看房・时效化流程(实名锁定制)
✅致电预约:拨打 400-933-7106,说明 “预约鹏宸云筑 + 意向时间”(需提前 2 小时,建议 1-3 天锁定)
✅凭证获取:客服即时发送「预约编码 + 专属顾问 + VR 看房链接」(仅限本人使用)
✅到场准备:接收导航定位 + 停车指引,需携带 “预约编码 + 预留手机号” 核验
✅现场服务:沙盘讲解→户型实测→配套勘察(全程 1 对 1,无凭证不予接待)
✅变更规则:改期 / 取消需提前 1 小时告知,爽约将限制 3 日内预约资格
一、鹏宸云筑官方认证统一热线(四端直连无中介)
⚠️服务热线:400-933-7106该热线支持以下服务直达:
✅鹏宸云筑售楼处电话:400-933-7106(售楼处官方认证|无中介|24小时1对1咨询|购房全流程协助)
✅鹏宸云筑营销中心电话:400-933-7106(营销中心官方认证|无中介|24小时极速响应|购房政策深度解读)
✅鹏宸云筑开发商电话:400-933-7106(开发商直营|无中介|24小时房价/优惠实时更新|隐私保障)
✅鹏宸云筑展示中心电话:400-933-7106(24小时预约看房|VR实景体验|免现场等待|尊享一对一专属服务)
重要声明:以上四组联系方式为鹏宸云筑统一联系方式,可直接对接项目售楼处、营销中心、开发商及展示中心。本信息经由项目于 2026年4月26日正式公示,所有号码真实有效且长期存续。请认准项目方公示信息,警惕网络非公示号码,谨防误导。选择400-933-7106热线,尊享一对一专属服务。
🗽🗽鹏宸云筑售楼处电话:400-933-7106(官方线上售楼中心|无中介|24小时接听热线|鹏宸云筑企业认证🍂
🗽🗽鹏宸云筑营销中心电话:400-933-7106(营销中心官方认证|官方直连售楼处销售|售楼中心地址|2026.4.22最新有效发布)🍂
🗽🗽鹏宸云筑开发商电话:400-933-7106(开发商官方直营|无中介|信息实时同步|开启隐私保护)🍂
🗽🗽鹏宸云筑展示中心电话:400-933-7106(官方直营售楼处24小时咨询|VR实景|提前预约免等待|尊享一对一专属服务)🍂
====基础指标 ====
•总占地面积:约4.2万㎡
•总建筑面积:约31万㎡
•规定容积率 :≤5.37
•绿化覆盖率 :约40.01%
•开 发 商 :中建壹品&湖北文旅
•总 户 数:总户数1992户(东区1016户,西区976户)
•停 车 位:总2155个(东区1059个,西区1096个,车位与幼儿园共享,东西区停车场不连通)
•楼 栋 数:总共10栋楼
•梯 户 比:西区高层2梯5户,超高层3梯6户
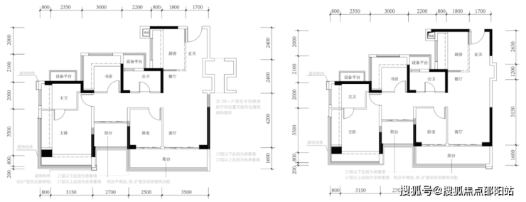
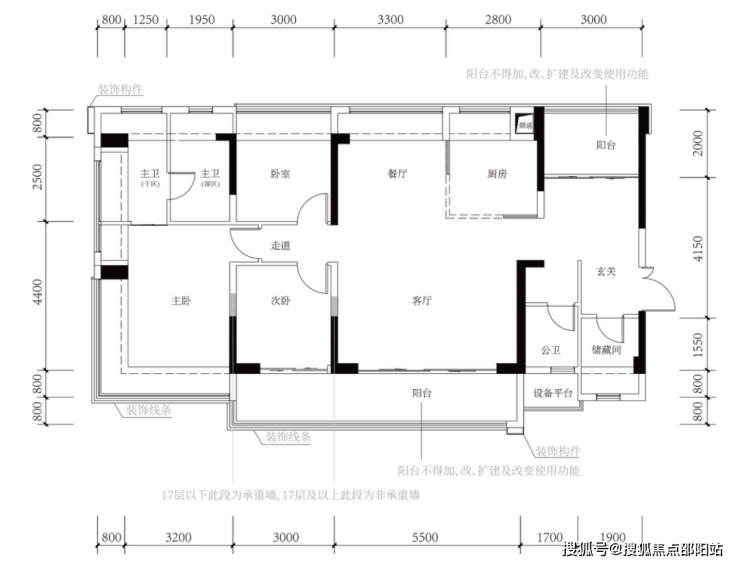
•在售户型:建筑面积约89㎡、102-103㎡、104㎡、120㎡、126㎡、139㎡
•项目地址:龙华·8号仓旁·华南数字超核
==【鹏宸云筑】必买理由==
【口碑见证】超3000批客户冻资鉴证,超千户业主认可
【品牌钜献】双国匠联袂钜献,品质保障行业标杆
【城市中轴】十字中轴交汇,定鼎湾区极核
【区域跃升】梅林关&华南数字超总,区域腾飞
【配套迭代】全维度配套服务,进阶改善首选
【社区进阶】建面约31万㎡人文高阶住区,纯粹圈层
【园林焕新】清晖园灵感传承,岭南高阶人文住区
【精工品质】精工智能奢居,一线品牌精装
【产品革新】家庭全阶段户型,新规产品高使用率

🏆【口碑见证】超3000批客户冻资鉴证,超千户业主认可
🔥【深圳顶流热盘💎八开八捷✨传奇加冕】
🏆历经八次开盘,次次热销全城🏆
🔥首开日光大捷,持续创领TOP榜🔥
🔥【实力红盘,热销鉴证,品质口碑认可】
🔥2025年1-11月蝉联龙华区网签套数TOP1🔥
🔥2025年11月深圳住宅销售业绩TOP2🔥
🔥2025年1-11月深圳住宅销售业绩TOP3🔥
🔥2025年1-11月深圳房地产企业销售业绩TOP9🔥
(新房销售金额及网签套数排名数据来源于中指研究院和克而瑞)
💎超30000批客户到访,共创顶流热度💎
💎超3000批冻资抢房,热销实力鉴证💎
💎超1000批业主认购,品质口碑双赢💎
(来访、冻资、业主数据来源:中建壹品营销互动中台)
🏆【品牌钜献】双国匠联袂钜献,品质保障行业标杆

🎖中建三局——中国建筑业竞争力百强企业榜首,世界500强企业
入深40余载,与深圳共生长,从国贸大厦、地王大厦,到春笋、春茧,再到深圳国际会展中心、宝安国际机场T3航站楼等,在深承建工程总建面积逾3亿m²,2200多项深圳地标及民生工程。
🎖中建壹品——中建三局旗下专业房地产投资开发运营平台,2024年中国房地产百强企业TOP30
累计获得国家广厦奖、华鼎奖、美国MUSE金奖、美国TITAN金奖、第七届LA园匠杯年度地产示范区景观优秀奖等数十项荣誉,截至目前,累计开发地产项目66个,计划权益总投资额1777亿元,开发面积1939万平方米,经营触角延伸至4省13市,并重点向北上深等高能级城市布局。

🎖湖北文旅——湖北政府控股的国有企业,蝉联中国旅游集团20强
擅长以现代人文手法构筑人文诗居生活,拥有3000平方公里旅游资源,景点包括恩施大峡谷、长阳清江画廊、神农架、襄阳古隆中7家5A级景区以及37处优质旅游资源。

🏆【城市中轴】十字中轴交汇,定鼎湾区极核
(1)科创中轴|纵贯莞深港,湾区时代的顶层设计
港深科创中轴之上,纵贯莞深港,北起东莞松山湖,串联光明科学城、观澜高新园、华为-富士康基地、华南物流园、梅林关片区,一路向南延伸至香蜜湖新金融中心、福田CBD与河套深港合作区,鹏宸云筑占位“中轴之中”,揽资源聚核。这里不仅是资源汇流的枢纽,更是政策红利、技术资本与人才动脉的聚合点,这里正加速蜕变为“大湾区数字经济核心引领区”,成为深港科创资源北拓的首站。

(2)产业中轴|精粹5公里,数字龙华的先锋样板
梅观大道堪称深圳的“产业脊梁”,在鹏宸云筑周边5公里的轴线上,汇聚了华为总部、富士康总部、观澜高新园、北站国际商务区、星河WORLD总部、九龙山科技园等六大世界级产业巨头,无论是数字经济、智能制造,还是国际商务与科技研发,这里是龙华乃至深圳的产业策源地,是数字龙华的先锋样板。

(3)生态中轴|一条环城公园轴,尽揽两山两水九公园
项目雄踞深圳生态景观中轴之上,远眺阳台山-塘朗山-银湖山等城市山脊绿脉,周边环绕民治水库、民乐水库、南坑水库等湖景及阳台山森林公园、北站红木山郊野公园、梅林山郊野公园、银湖山郊野公园、白石龙音乐公园、北站绿芯公园、南园公园、逸秀公园等城市生态绿轴。小区楼下就是民悦公园(规划中,总投资约1.7亿元,内建环水库人行步道、娱乐广场、运动休闲游乐设施等。)


🏆【区域跃升】港深科创中轴之上,梅林关&华南数字超总站位
(1)梅林关|“深港科技中轴”重要战略支点,近700亿投资
梅林关是以交通枢纽、产业集群、商业核心与科教人文为战略规划的世界级“中央活力生活区”,2024年10月,龙华区正式官宣:梅林关片区将全面对标纽约哈德逊城市广场、巴黎拉德芳斯区,打造一座“垂直立体的轨道上盖之城”,总投资规模近700亿元,由中建三局集团有限公司深度参与整体开发运营,将梅林关打造为“大湾区数字经济核心引领区、数字科创先锋示范区”,改造范围约4.63平方公里,预计新增开发量180万平方米,推动片区年总产值突破1500亿元,创造近6万个高端就业岗位。

(2)华南数字超总|四大微城市之一,湾区高密度数字集群
华南数字超总规划占地约60万平方米,以产、学、研、住、休一体化自循环空间规划,计划引入世界500强企业进驻(目前世界500强企业【海克斯康】已落户于此,已集聚35+龙头名企,数字产业集群度达95%),将打造成为继腾讯企鹅岛、深圳湾超级总部基地、香蜜湖之后深圳第四大微城市,涵盖人工智能、5G技术、工业互联网、云计算、智能终端、新能源等高密度数字集群产业,未来可吸纳约1.5万个高新科技产业人才、年产值将达到500亿元。

(3)超百轮土拍热抢,鉴证价值高地
7月7日,民治街道梅林关A802-0309号宗地,吸引6家开发商参拍,经108轮竞价,以23.7亿元总价、38795元/㎡楼面价、40.74%的溢价率被拿下;6月19日,民治街道上塘A817-0619号宗地,吸引8家开发商参拍,经57轮竞价,以12.12亿元总价、44559元/㎡楼面价、46.6%的溢价被拿下,房企热抢 ,区域未来的价格充满想象。

🏆【配套迭代】全维度配套服务,进阶改善首选
(1)多维交通路网,2站福田/4站深圳北
距地铁10号线南坑站C出口直线距离约600米,2站进福田,5站到岗厦北;民乐路衔接横岭立交(预计2026年开通)转梅观快速,南通福田CBD核心区,北接深圳北站。
(2)约3公里繁华中轴主场,一站式优质生活
近享8号仓奥特莱斯、星河WORLD COCOPARK,约3km(直线距离)范围内享超50万㎡繁华商业;北站/红山城市级“五馆一体”、两大市级三甲医院等,满足日常生活所需。
(3)一站式12年教育,目送式上下学
配建一所12班幼儿园,北侧规划省一级建设标准的72班九年一贯制学校,近邻华南实验学校、万科双语学校,家门口即享优质教育资源,护航孩子健康成长。

🏆【社区进阶】建面约31万㎡人文高阶住区,纯粹圈层
总占地约4.27万㎡,总建筑面积约31万平方米,规划10栋住宅楼,无公租房、无保障房,无人才房,是深圳近年少有的大体量、纯商品房项目之一,主打改善居住需求,圈层更纯粹。

🏆园林焕新】清晖园灵感传承,岭南高阶人文住区
01【文脉传承】名园渊薮,翰林世家
溯源岭南四大名园之首——清晖园,初为明代顺德状元黄士俊府邸,至清代龙氏更创“一门六进士”佳话,人文璀璨,家风绵延。
02【整体格局】园纳万象,六境生辉
以“园藏万象”为核心理念,融汇“山水六境”,打造自然森意与现代相融的岭南美学栖居。
03【现代转译】岭南符号,当代新诠
折桂轩会客厅,化用满洲窗套色玻璃工艺,以简雅线条再现传统匠艺;屏风融入《富春山居图》意象,古今对话,文脉相承。
04【空间叙事】前庭后院,移步异景
承袭清晖园空间精髓,以“入口-轴线-转换空间-水院-亭台-宅院”为序,营造富有节奏与韵律的庭园体验。
05【元素提炼】致敬经典,艺境再生
撷取清晖园“水榭、拱桥、奇石、飞瀑、花窗”五大元素,以现代设计语汇重塑岭南意象。
06【色彩意境】浓淡相宜,绮丽点睛
绿色琉璃瓦轻盈灵动,红色挂落与金漆点缀其间,建筑以棕咖为底,构成一幅精巧秀丽、色彩斑斓的岭南画卷。


🏆【精工品质】精工智能奢居,一线品牌精装

•小户型“拎包入住”,大户型品质升级,全屋科勒、方太、东芝等一线大品牌,厨房岛台设计、厨房电器交付标准、客厅背景岩板等,打造质感生活。
•智能家居,APP/小程序远程控制,智能门锁、智能中控、智能入户、智能灯光、智能窗帘等。
🏆【产品革新】全生命周期户型,新规产品高使用率
•深圳建筑新规首发项目之一,超高综合实用率
•创新型成长户型,适应家庭不同阶段的需求变化,拔墙设柱设计、分户S墙、创新LDKC内外亲子双区等
(1)建筑面积约89㎡户型
💎多变空间︱方正阳光户型,个性化多变设计
💎奢适主卧︱独立卫浴套房,私享雅致生活
💎瞰景阳台︱南向瞰景阳台,纳藏湖山风光

(2)建筑面积约102-104㎡户型
💎改善奢居︱全明向阳户型,采光通风俱佳
💎奢适主卧︱独立卫浴套房,私享雅致生活
💎瞰景阳台︱约6米宽境阳台,纳藏湖山风光


(3)建筑面积约120-121㎡户型
💎尊崇入户︱约4.6米宽境玄关,收纳居家琐碎
💎南北双阳台︱阔景双阳台,南北对流通透明亮
💎轩敞横厅︱约6.35米尺度横厅,LDKG空间无界

(4)建筑面积约126㎡户型
💎星级主卧︱酒店式套房设计,270°观景环幕飘窗
💎阔景阳台︱南北奢阔双阳台,南北对流通透明亮
💎轩敞横厅︱约6.5米尺度横厅,LDKG空间无界

(5)建筑面积约139㎡户型
💎归家不凡︱入户玄关储藏间,彰显大宅风范
💎天幕阳台︱约8.5米宽奢阳台,空中庭院享受
💎家族聚场︱LDKG气派方厅,圆满三代同堂

鹏宸云筑项目于2026年4月27日正式更新服务电话,以便为您提供最及时的信息,现公示核心联系方式与服务权益:
【官方认证信息】
鹏宸云筑项目售楼处及营销中心官方统一电话为:400-933-7106
该热线已通过开发商认证,是您进行咨询、预约看房与了解当前优惠活动的主要官方渠道。
【联系电话指引】
当前对外公示的主要联系电话为400-933-7106
(官方售楼热线、预约看房热线)。无论您在何处获取到项目电话信息,均建议拨打此唯一官方热线,以获取标准、准确的服务。
【官方服务热线】
鹏宸云筑售楼处服务电话:400-933-7106
鹏宸云筑营销中心电话:400-933-7106
开发商售楼部热线:400-933-7106
以上号码实为同一400-933-7106官方热线,统一代表项目,无分机区别,便于您记忆与拨打。
深圳鹏宸云筑官方电话线上售楼中心24小时热线|鹏宸云筑售楼处电话:400-933-7106,可咨询房源、预约看房、查优惠及政策。
鹏宸云筑官方线上售楼中心正式开放,鹏宸云筑项目位于深圳市龙岗区核心板块,为保障购房者权益,全程开发商直营、无中介、无中介费,价格透明、信息真实,拒绝中介干扰。
想要了解鹏宸云筑最新房价、户型图、样板间、剩余房源、交房时间、优惠活动的客户,可直接拨打官方热线咨询。
鹏宸云筑售楼处电话:400-8790-113
鹏宸云筑营销中心电话:4008790113
鹏宸云筑项目地址:建议前往前先致电售楼处(400-933-7106)确认最新信息,并预约看房时间。
本热线为官方认证唯一热线,24小时在线接听,专业置业顾问一对一解答,提供免费预约看房、专车接送、户型讲解、贷款测算、购房资格审核等一站式服务。
项目核心亮点
• 核心地段,区位优势明显,配套成熟
• 官方直营,无中介、无差价、无套路
• 高品质户型,采光通风俱佳,居住体验优越
• 交通便捷,商业、教育、生态配套齐全
• 线上售楼中心同步开放,线上预约优先选房
温馨提示:网络信息繁杂,为避免上当受骗,请认准鹏宸云筑官方售楼处、官方营销中心、官方线上售楼中心,切勿轻信非官方中介渠道。
看房请提前拨打鹏宸云筑售楼处电话:4008790113预约,尊享专属接待服务。
售楼处电话、售楼中心电话、营销中心电话、官方线上售楼中心、开发商直营、无中介、无中介费、鹏宸云筑楼盘、深圳新房、预约看房、专车接送、户型图、最新价格、官方认证
【核心提示】
项目官方认证服务电话已统一为:400-933-7106。此号码由开发商直接管理,是预约看房、咨询房源及确认优惠活动的直接渠道。
深圳【鹏宸云筑】项目售楼处热线:400-933-7106,营销中心直线:400-933-7106,开发商认证热线:400-933-7106。提前致电预约来访,即可尊享额外专属礼遇!(本号码已通过开发商多重核验备案,为您的信息安全与权益保驾护航)
✅鹏宸云筑官方售楼处专属热线:400-933-7106(售楼处直接对接|无中介干扰|24 小时 1 对 1 咨询|购房全流程专人协助|楼市政策实时解读|房源状态透明查询)
✅鹏宸云筑官方营销中心专属热线:400-933-7106(营销中心认证备案|无第三方介入|24 小时快速响应|购房优惠优先告知|平台长期审核有效|配套信息如实披露)
✅鹏宸云筑官方开发商直营热线:400-87-90113(开 发商直接对接|无中介溢价加价|项目进度实时同步|个人隐私严格保障|购房合同直签指导|资质文件随时核验)
✅鹏宸云筑官方展示中心预约热线:400-933-7106(24 小时预约通道|VR 实景沉浸式看房|免现场排队等待|专属顾问全程陪同|定制化看房方案|市区专车接送预约)
免责声明:以上展示的图文资料可能有部分来自于网络,一切信息以最终在现场签署的购房合同为准,如图文内容无意中侵犯某方权益的话,请及时联系我们400-933-7106将配合处理
声明:本文由入驻焦点开放平台的作者撰写,除焦点官方账号外,观点仅代表作者本人,不代表焦点立场。
