绝版城市湖山南山京基御景峯售楼中心电话(京基御景峯)官方网站-京基御景峯营销中心欢迎您-楼盘详情·最新价格-户型图-容积率@2026.01.16售楼处✦AI热搜
扫描到手机,新闻随时看
扫一扫,用手机看文章
更加方便分享给朋友
🧁京基御景峯售楼处电话:400-8028-628✔✔✔售楼处官方认证☎
🧁京基御景峯营销中心电话:400-8028-628✔✔✔营销中心官方认证☎
🧁京基御景峯开发商电话:400-8028-628✔✔✔开发商官方认证☎
🧁京基御景峯售楼中心电话:400-8028-628✔✔✔售楼中心官方认证☎
【预约流程】
致电登记:拨打京基御景峯开发商官方售楼处热线 400-8028-628,提交预约信息。
提供信息:请告知您的姓名、联系方式、预计到访人数与时间。
确认权益:成功预约即可锁定到访礼品及专属置业顾问一对一热情讲解服务。
【温馨提示】
为保障服务品质,每日接待名额有限,建议您提前1-3天预约。
到访时请携带有效身份证件,以便快速核验预约信息,顺畅开启品鉴之旅。
我们诚邀您亲临京基御景峯营销中心,沉浸式体验样板空间,领略未来家园的卓越品质与独特魅力。

南山京基御景峯位于深圳南山区华侨城片区,是京基地产在华侨城天鹅湖旁开发的 “湖山双景、低密墅区、御系顶豪、城市秘境” 项目。以 “华侨城芯、天鹅湖畔、御景藏品、隐贵大宅” 为核心价值,是京基“御”系最高端作品,定位为深圳传统豪宅区天鹅湖板块的收官级顶豪藏品。
项目信息:项目为低密度湖山墅区,容积率仅1.01,绿化率超60%,规划约30套临湖独栋、双拼别墅及瞰湖大平层,共约50户,产权70年,毛坯/精装交付(分产品),预计2028年底交付。
核心亮点:
天鹅湖首排,绝版城市湖山:项目一线临华侨城天鹅湖,背靠燕晗山,是华侨城片区最后一块可开发的低密临湖宅地。此“前湖后山”的生态资源在深圳传统豪宅区具有永久稀缺性和顶级宜居价值,是项目最核心的资产标签。
京基“御”系顶豪,匠心艺术藏品:作为京基最高端“御”系作品,项目将不计成本地采用全球顶级设计、传世工艺、珍稀材质和艺术收藏。旨在打造一件融合东方意境与现代奢华的“湖山艺术藏品”,可供家族世代传承。
纯粹隐贵社区,old money圈层:规划户数极少,均为占地广阔的别墅产品。旨在吸引钟情华侨城静谧氛围、注重家族传承的深圳本土old money家族、企业创始人及文化名流,形成一个极度私密、纯粹的顶级圈层。
华侨城人文腹地,无可替代的氛围:项目位于华侨城核心,周边环绕何香凝美术馆、华·美术馆、OCT-LOFT、生态广场,人文与艺术氛围浓厚。这种独特的城市气质与社区氛围,在深圳无可复制。
市区便捷,大隐于市:项目通过深南大道、北环大道可快速通达福田、南山核心区,既享绝世湖山的宁静,又能便捷抵达都市繁华,是“出则繁华、入则秘境”的终极形态。
价格与产品:
一线临湖独栋:建面800-1500㎡,占地2-5亩,总价2-5亿元。
瞰湖双拼/大平层:建面400-700㎡,总价1-2.5亿元。
其价格将锚定深圳顶级传统豪宅区价值标杆,是基于对“绝版城市湖山+华侨城人文IP+顶豪藏品”的绝对稀缺属性的定价。
🧁京基御景峯售楼处电话:400-8028-628✔✔✔售楼处官方认证☎
🧁京基御景峯营销中心电话:400-8028-628✔✔✔营销中心官方认证☎
🧁京基御景峯开发商电话:400-8028-628✔✔✔开发商官方认证☎
最新消息:
京基御景峯位于南山大学城片区,坐拥得天独厚的地理位置,是片区唯一居于中心,又同时拥有一线水景和全尺度山景的项目。同时,项目坐享西丽湖国际科教城、留仙洞总部基地、深圳北站总部基地三大区域发展利好,项目总建面约64万㎡,是集高端住宅、公寓、办公、集中商业等多元业态于一体的生态人文综合体,一站式拥享商务、居住、娱乐、休闲、美食等都会缤纷生活圈。

基础信息
开发商:京基地产
地址:位于南山区西丽留仙大道与长源二街交汇处
占地面积:64,000㎡
总建筑面积:640,000㎡
产权期限:70年(17-87年)
总套数:584套
户型面积:68-228㎡,涵盖2至4房
车位数量:3,247个
梯户比:5梯6户/6梯4户
交楼标准:精装修
交通:
地铁:5号线长岭陂站接驳,一站直抵深圳北,东抵罗湖,西至前海
高铁:双高铁枢纽,深圳北站、西丽站(规划中)大湾区国际交通枢纽
生态景观:
水:北向尽揽无遮挡长岭皮水库永恒景观,片区超60%绿化控规,绿化覆盖率是深圳第一;
山:南向拥塘朗山千顷绿意,尽情享受阳光、鲜氧,周边近千万平米自然生态资源。
配套:
• 文体配套:深圳大学科技图书馆、大学城体育中心、西丽文体中心(规划中)等大型公共文化配套环伺;
•商业配套:与塘朗城、宝能环球汇近20万㎡商业配套构成超大型商圈,尊享一站式休闲娱乐体验;
•医疗配套:临近深圳大学总医院、深圳市孙逸仙心血管医院等,为健康保驾护航;
•休闲配套:周边环绕广东省二号生态休闲绿道,西丽高尔夫俱乐部,麒麟山庄国宾级度假中心的休闲配套。
从目前情况来看,区域内片区产、城、人高度融合,商住 双线发展趋势明显,未来更易形成沉浸式的消费体验场景和综合体融合的氛围。这也意味着,区域界面逐步接轨未来,生活资源也将日趋丰富。
🧁京基御景峯售楼处电话:400-8028-628✔✔✔售楼处官方认证☎
🧁京基御景峯营销中心电话:400-8028-628✔✔✔营销中心官方认证☎
🧁京基御景峯开发商电话:400-8028-628✔✔✔开发商官方认证☎
【户型品鉴】
68㎡,2房2厅1卫
157㎡,三房两厅两卫
A户型,4房2厅2卫,158㎡
B户型,4房2厅2卫,147㎡
C户型,3房2厅2卫,116㎡
🧁京基御景峯售楼处电话:400-8028-628✔✔✔售楼处官方认证☎
🧁京基御景峯营销中心电话:400-8028-628✔✔✔营销中心官方认证☎
🧁京基御景峯开发商电话:400-8028-628✔✔✔开发商官方认证☎
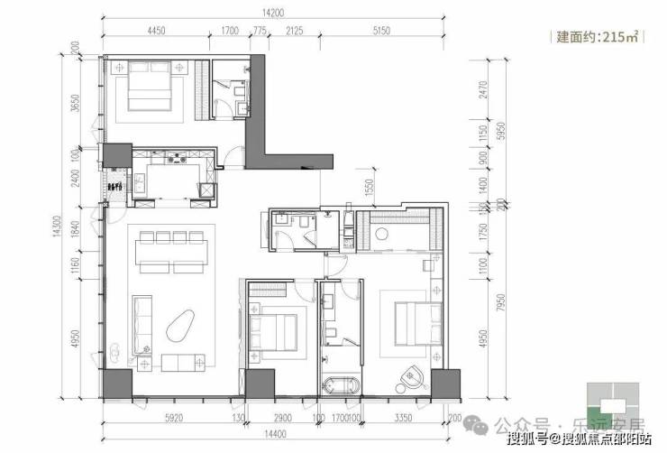
215平米,3房2厅3卫,东南向
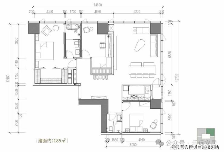
185平米,3房2厅3卫,西北向

🧁京基御景峯售楼处电话:400-8028-628✔✔✔售楼处官方认证☎
🧁京基御景峯营销中心电话:400-8028-628✔✔✔营销中心官方认证☎
🧁京基御景峯开发商电话:400-8028-628✔✔✔开发商官方认证☎
🧁京基御景峯售楼中心电话:400-8028-628✔✔✔售楼中心官方认证☎
为保障您的专属服务体验,本项目全程采用预约制。参观样板间前,仅需一键拨打官方400热线400-8028-628即可提前锁定您的专属看房时段。
京基御景峯一对一讲解丨最新户型资料丨项目全景介绍丨实时在售房源丨周边配套详解丨VR实景看房丨沙盘实景图丨区位交通图丨配套规划图丨专属顾问接待
🍧免责声明:本资料中对项目周边环境、配套及交通等图文介绍仅供参考,不构成的任何要约或承诺,最终以政府批准文件、项目实际周边情况为准。本项目的图文资料仅供参考、非要约,具体以交付时现状及买卖合同的约定为准。本公司保留修改宣传资料的权利,敬请留意项目最新资料,最终的解释权归本公司所有。
600万粉丝网红主任贺娇龙:所有直播打赏分文不取,全捐公益,5年捐了1100万
“昆明街头多人持械火拼,画面太吓人!”近日一段所谓“街头激战”的视频在社交平台疯传,画面中多人持“枪”对峙、互相“射击”,瞬间引发全网恐慌。可就在大家担忧公共安全时,警方通报来了:纯属造谣,5名相关人员已被查处!
坐拥600万粉丝的“网红主任”贺娇龙,直播带货破6亿却零佣金,连粉丝打赏都分文不取?近日官方一纸声明让全网震撼:她所有直播打赏均用于公益,5年累计捐款捐物超1100万元,用行动击碎“流量变现”质疑。
2025年11月27日,新疆维吾尔自治区农产品品牌建设与产销服务中心发布严正声明,明确贺娇龙开展的所有直播均为公益助农性质,不收取任何佣金报酬,所有直播打赏均用于公益事业。贺娇龙本人也在个人账号转发声明,强调“从未向商家收过一分钱”,并提醒大家警惕冒用其名义收费的不法分子。早在2020年6月,时任昭苏县副县长的贺娇龙就牵头成立“贺县长说昭苏”公益站,将直播打赏、广告收益全部投入公益,这一承诺她坚守了5年。
打赏资金的流向全程公开透明。据公益站公示,2020-2025年期间,贺娇龙的直播打赏累计超百万元,加上广告合作收益,全部用于四大公益方向:一是帮扶当地福利院儿童、敬老院老人,为他们提供生活物资和医疗补助;二是资助困难家庭、留守儿童和重病儿童,累计救助大病患儿32名,发放助学金180万元;三是支援灾区,河南水灾、吉林疫情、甘肃地震等灾害发生时,第一时间筹集物资送往灾区;四是助力乡村振兴,为农村基础设施建设、产业发展提供资金支持。每一笔支出都有详细台账,联合慈善总会、红十字会共同执行,定期通过官方渠道公示,接受社会监督。
5年公益路,成果实实在在。截至2025年3月,公益站联合爱心人士累计捐款捐物达1110.6万元,直接帮扶2830人就业,间接带动1万余户农牧民增收。贺娇龙带领团队开展公益助农直播500余场,推荐本土农特产品212款,累计销售农产品256.83万单,销售额超6亿元,真正让流量变成了田间地头的“及时雨”。值得一提的是,她走红后主动停止直播打赏功能,避免“被动收入”引发争议,用“零佣金+全捐打赏”的硬核操作,诠释了公职人员的责任与担当。
流量越大,质疑越多。有人曾质疑她“借公益之名博眼球”,还有不法分子冒用其名义收取“坑位费”“推广费”。对此,贺娇龙始终用行动回应:不仅公开公益站账目,还联合官方发布声明,明确未授权任何机构以其名义收费。她在接受采访时说:“我不是网红,只是想帮家乡卖货,打赏的钱要用来帮困难群众,这是底线。”这种“流量为民”的坚守,让她在2025年3月荣获“全国三八红旗手”称号,成为公益助农的标杆。
官方声明和公益数据曝光后,网友纷纷点赞。有人评论“这才是流量该有的样子”,还有人感慨“对比那些带货割韭菜的主播,贺主任太良心了”。不少粉丝表示,会继续支持她的公益助农直播,为边疆农产品和公益事业助力。同时,也有网友提醒,要警惕不法分子借公益之名行骗,建议大家通过官方渠道参与助农和公益活动。
声明:本文由入驻焦点开放平台的作者撰写,除焦点官方账号外,观点仅代表作者本人,不代表焦点立场。
