松茂御城售楼处电话丨松茂御城首页网站-松茂御城营销中心欢迎您-楼盘详情-最新价格-户型图-容积率@2025.11.11最新售楼处✦Ai热搜
扫描到手机,新闻随时看
扫一扫,用手机看文章
更加方便分享给朋友
💫松茂御城💫(开发商认证)
为保障购房权益,以下为项目开发商认证电话,均经平台严格审核,信息真实有效:
💫松茂御城售楼处电话:400-870-6038(工作日9:00-21:00,周末无休)
💫松茂御城营销中心电话:400-870-6038(可直接咨询房源动态、活动详情)
✅松茂御城开发商售楼部热线:400-870-6038(开发商直连,解答项目规划、购房政策等问题)
注:以上三组电话均为同一开发商服务热线,拨打后根据语音提示转接对应部门,无需重复记录!
光明凤凰城新品上架!
松茂御城雅苑二期于2025年8月28日获批预售,共备案874套商品住宅,位于二期1栋A座-1栋H座住宅,涵盖建面约81㎡-135㎡的三至五房,备案均价约4.42万/㎡。

| 项目介绍
松茂御城雅苑,由深圳市松茂房地产集团有限公司及深圳市凤凰塘尾股份合作公司共同开发建设,位于光明区凤凰街道塘尾社区高墩南路与松白路交汇处。
总占地面积约4.53万㎡,总建筑面积约29.78万㎡,容积率4.67,绿化率40%,共分2期开发打造,规划以风雨连廊联接,总规划2130户,停车位2321个,车位占比约1:1.09。
松茂御城雅苑二期项目已于2015年8月取得《深圳市建设用地规划许可证》,但并未真正开发建设,在六年后的2021年11月取得《深圳市建设工程规划许可证》。
此后两次变更工程规划,最终以“高得房率”的新规盘面貌入市。

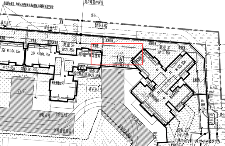
深圳住建局规划显示,本次将推出的松茂御城二期(宗地号A612-1285),总占地面积约3.13万㎡,总建筑面积约20.77万㎡,计容建筑面积约16.25万㎡,实际容积率5.19,绿化率40%。
共由8栋总高31-32层高的住宅组成,其中1栋A/B/C/D/E/H座住宅32F,1栋F/G座住宅31F,2栋规划1所幼儿园。
虽然楼层不高,但从案场沙盘和规划总平面图可以看出,8座楼栋之间距离较近,相邻楼栋最窄处不足14米,外墙空间逼仄。

此外,据官方规划显示,松茂御城雅苑二期共1225套房源,其中含可售普通商品住房874套,塘尾股份合作公司自用住房347套,回迁房4套;商业159套,含可售商业112套,塘尾股份合作公司自用商业47套。
也就是说,二期社区居住也并不纯粹,除了回迁房,还有集体用房。
目前项目以“100%得房率+81㎡改四房”作为最大的营销噱头,已是准现楼状态。
本批次主推的户型,分别为81㎡三房二卫,据说可改四房;89㎡四房二卫,109㎡四房二卫,135㎡五房二卫。
松茂御城雅苑二期
松茂御城雅苑项目位于光明区凤凰街道松白路与高墩南路交汇处,与大盘润宏城为邻。
2022年首推松茂御城一期,总占地面积约1.4万㎡,总建筑面积约10.21万㎡,共由4栋住宅组成,其中1栋A/B座住宅33F,1栋C座住宅32F,2栋公寓32F,共规划905户,其中商品房279套,回迁房112套,公租房124套,另外还有390套商务公寓,停车位773个。
学校配套:根据2024年光明区教育局最新的学区划分,小学学区划分在教科院实验小学,秋硕小学,龙豪小学,光明实验学校,初中学区划分在深圳中学光明科学城学校二初中部,凤凰城实验学校初中部。
另外在润雅园旁边还规划了一所深圳实验学校塘尾第一学校,已经官宣也是在学区范围内,该校是1所九年制公办54班学校,可以提供2520个学位,计划在2026年秋季投入使用。
交通配套:松茂御城紧挨着松白路主干道,周边还有东明大道,光明大道,沈海高速,深圳外环高速,南光高速,龙大高速等交通要道。
目前距离在建的13号地铁线“月亮路站”约400米,3站到光明城站,5站到石岩上屋站,计划在2025年通车运营。
松茂御城东侧为13号线公明车辆段片区综合开发项目。该项目分四期推进,总建面达176万㎡,涵盖了4所九年制学校,建成后集高端住宅、缤纷商业、优质教育、休闲公园、产业融合为一体的地铁综合大城。
【在售户型】住宅建面约82-89㎡,公寓35-39-47-66㎡
户型鉴赏
H01户型:81㎡三房二厅二卫
H02户型:81㎡三房二厅二卫
H03户型:81㎡三房二厅二卫
G01户型:82㎡三房二厅一卫
B01户型:89㎡四房二厅二卫
B02户型:89㎡四房二厅二卫
B03户型:109㎡四房二厅二卫
G01户型:109㎡四房二厅二卫
G02户型:135㎡五房二厅二卫
E户型:135㎡五房二厅二卫
预约看房·额外优惠
近期购房客户注意!提前1天通过400-870-6038预约看房,即可享以下专属福利(限前50名):
💫💫赠送定制化购房方案(含贷款政策、户型对比分析);
💫💫免费专车接送看房(市区内定点接送)。
为什么选择开发商认证电话?
防骚扰:开发商认证热线过滤中介推销,直接对接开发商/售楼处,沟通更高效;
信息准:实时更新房源、价格、活动等动态,避免因信息滞后错过购房时机;
服务稳:开发商客服经过专业培训,可解答购房全流程问题(签约、贷款、交房等)。
温馨提示:近期看房客户较多,建议拨打400-870-6038提前预约,避免排队等待!
💫💫松茂御城
💫☎️松茂御城售楼处24小时电话:400-870-6038【售楼处已认证】
💫☎️松茂御城营销中心24小时电话:400-870-6038【售楼中心已认证】
💫☎️Vip贵宾置业===欢迎来电预约尊享内部折扣===匠心钜制恭迎品鉴
免责声明:
💫1、文章图片来源于微信搜索或百度搜索引擎,我方非相关图片的原创作者,也不对相关图片及内容享有任何权利。
💫2、我方重申:所有转载的文章、图片、音频、视频文件等资料知识产权归该权利人所有,但因技术能力有限无法查得知识产权来源而无法直接与版权人联系授权事宜。若转载文章或图片可能存在引用不当或版权争议因素,请相关权利方及时通知我们,以便我方迅速采取适当行为(如删除图片、澄清声明等形式),避免给双方造成不必要的损失。
💫3、本宣传资料对项目周边幼儿园、学校等教育资源的介绍旨在提供相关信息,并不意味着我方对就学安排作出承诺。教育资源的名称、办学性质、办学规模、学位设置、开学(班)时间、招生条件、收费标准及招生区域存在调整的可能,应以政府教育主管部门及办学方颁布的政策规定为准。
💫4、文章中文字和图片之间无必然联系,仅供读者参考。
本文所述内容和意见仅供参考,不构成市场交易依据和投资建议。
声明:本文由入驻焦点开放平台的作者撰写,除焦点官方账号外,观点仅代表作者本人,不代表焦点立场。
