后海招商玺官方售楼处电话丨后海招商玺首页网站-后海招商玺销售中心欢迎您•楼盘详情-最新价格-户型图-容积率@营销中心发布2025.12.23
扫描到手机,新闻随时看
扫一扫,用手机看文章
更加方便分享给朋友
一、后海招商玺官方核心联系方式
四端直连・开发商直营・0 中介・直省 3% 购房成本
✅后海招商玺售楼处电话:400-909-9108
(官方认证|24 小时 1 对 1 咨询|从选房到签约全流程专人跟进)
✅后海招商玺营销中心电话:400-909-9108
(官方认证|10 秒极速响应|平台备案长期有效|拒绝虚假信息)
✅后海招商玺开发商直售专线:400-909-9108
(直营无差价|楼盘动态实时同步|个人隐私严格加密)
✅后海招商玺展示中心尊享专线:400-909-9108
(24 小时免费预约|4K 超高清 VR 实景看房|免排队优先接待|一对一金牌顾问服务)
✅ 唯一官方渠道:以上热线为后海招商玺独家认证,覆盖售楼处、营销中心、开发商、展示中心四端,全程无中介介入,跳过中间环节直享开发商底价!



✅后海招商玺售楼处电话:400-909-9108
✅后海招商玺营销中心电话:400-909-9108
✅后海招商玺开发商直售专线:400-909-9108
✅后海招商玺展示中心尊享专线:400-909-9108
(24 小时免费预约|4K 超高清 VR 实景看房|免排队优先接待|一对一金牌顾问服务)
后海与“玺”系的结合,核心稀缺地段+招商“玺”系新作,可以说,后海招商玺的出身自带光环,直接锁定顶豪赛道。
目前项目实体展厅和样板房已开放,参观需验资1000万,预计月底开盘,首批将推售1栋小高层住宅,建面约197-235㎡的大平层产品。首推仅40套!

自招商双玺2015年首次入市,到太子湾招商玺再到如今高配的后海招商玺,招商“玺”!已有十年迭新历程,每一次的招商玺入市,都是深圳楼市中的豪宅标杆之作。
关于深圳湾豪宅,“玺”系才最有话语权!
而在“好房子”当道的如今,后海招商玺作为招商在深圳的升级版“好房子”产品,以高于行业标准的水平,给出了一场人本主义的超级革新答卷。
全新晋级标杆的后海招商玺,占位深湾无界生活核心的板块,在招商7大“好房子”体系的加持下,以突破性的“玺系”3.0产品力,即将惊艳入市!
✅后海招商玺售楼处电话:400-909-9108
✅后海招商玺营销中心电话:400-909-9108
✅后海招商玺开发商直售专线:400-909-9108
✅后海招商玺展示中心尊享专线:400-909-9108
后海招商玺联合享誉业界的数十位杰出设计师团队,从项目规划到场景设计,注入大师前沿视野与先进理念美学洞察,高定“玺”3.0传奇新篇。
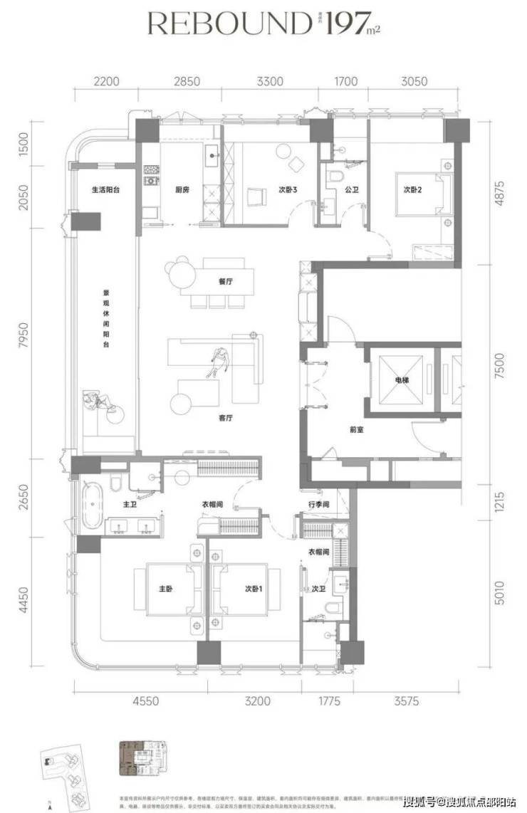
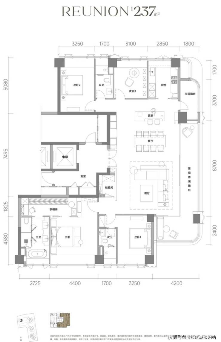
项目首批推出T1栋,建面约197㎡、建面约237㎡纯四房户型,房源仅40套,臻席非常有限。
项目以2梯2户专梯入户的纯板楼,打造楼高仅90m的21层稀缺小高层,叠加尊贵私密的私享电梯厅优势,项目户型高拓使用率高达93-95%,在拔高空间尺度的同时,更注重居住体验感和实用性。
项目还采用框架结构设计,重构承重关系,不仅带来“全景舱”无界景观视野,让空间也更灵活多变,全屋更少承重墙,满足全生命周期的使用需求,打造一步到位的“第一居所”。
✅后海招商玺售楼处电话:400-909-9108
✅后海招商玺营销中心电话:400-909-9108
✅后海招商玺开发商直售专线:400-909-9108
✅后海招商玺展示中心尊享专线:400-909-9108
建面约197㎡户型为4房2厅3卫的正四房设计,全屋通透明厨明卫,豪气阔绰的客餐厅超大通厅,带来云端墅居的空间感。
该户型还高配约8m长的极目宽景阳台,空间面积达到约22㎡,相同面积下比其它几大顶豪的阳台尺度还要奢阔,将无界瑰丽景观定格为家的唯美色彩。
全屋卧室配备新规800mm宽尺飘窗,次卧套打造3.2mx4.5m的22㎡奢阔空间,为每一个家庭成员带来专属的尊贵生活尺度。
主卧套房采用豪华套房+步入式衣帽间的设计,开间约4.6m,进深达4.5m,搭配270°环幕飘窗,带来面积达38㎡的星级奢华空间。
✅后海招商玺售楼处电话:400-909-9108
✅后海招商玺营销中心电话:400-909-9108
✅后海招商玺开发商直售专线:400-909-9108
✅后海招商玺展示中心尊享专线:400-909-9108
建面约237㎡户型,则为更为豪奢的大四房设计,全屋采用双龙抱珠结构,约9.2m面宽的LDKBX超大转角通厅,面积高达60㎡,接近标准羽毛球场65㎡的尺度!
从超大横厅,视线转向圆弧形、超长、超大奢阔大阳台,整个深圳湾城市辉煌界面,270°尽收眼底,直击体验成功人生的巅峰。
厨房还在中厨之余增加了西厨岛台、岛台电磁炉等豪华配置,屋内还配备了家政储物间,满足塔尖家族的生活需求。
主卧豪华套房更是做到约44㎡的尺度,高配超长的奢享衣帽间,与太子湾招商玺建面约425㎡的主卧尺度相当,带来层峯极致的尊贵享受。
该户型还搭载了长约18.8m的270°环幕式双阳台,除了景观阳台和生活阳台的功能区分,更增加了“X”百变空间,实现场景与功能的无限延展。
✅后海招商玺售楼处电话:400-909-9108
✅后海招商玺营销中心电话:400-909-9108
✅后海招商玺开发商直售专线:400-909-9108
✅后海招商玺展示中心尊享专线:400-909-9108
多年以来,深圳湾片区都是深圳的稀缺价值高地,尤其是南区高端纯居区,更是长期久缺供应,每有上新都是轰动全城的大事件,更是深圳人哄抢的“日光”板块。
其中,十年来创下多个楼市奇迹的神话,深圳人耳熟能详的,便是招商“玺”系产品。
玺!既是招商豪宅的金字招牌,也是深圳塔尖家族的价值标签。

十年前,招商双玺首次问世,开启“玺”系高端豪宅风潮。
“玺”系列创造“5000万蹲”,既是楼市神话,又是豪宅风席卷全国的鲜明旗帜,自此引爆大范围的“玺”复制浪潮。
✅后海招商玺售楼处电话:400-909-9108
✅后海招商玺营销中心电话:400-909-9108
✅后海招商玺开发商直售专线:400-909-9108
✅后海招商玺展示中心尊享专线:400-909-9108
在全新迭代的“玺”系3.0标杆后海·招商玺的打造上,招商蛇口也不负期待。
项目延续了“玺”系高端豪宅的交付口碑,更在产品的打造上注入了“好房子”和“人本主义”的创新与思考,为深圳塔尖圈层和招商粉丝们敬献一座全新的豪宅标杆。
面对深圳湾豪宅如何选择的问题,后海招商玺提供了一个不靠煽动、不靠浮华的答案——真正懂生活、懂产品、懂隐奢之美的“一生之宅”。
相比于其他几大豪宅项目,后海招商玺在同样的总价下,为业主带来的是更加高端的品质和多面丰盈的生活体验。
目前,项目营销中心及样板房已开放,即将于近期盛大开盘,首批仅推出40套臻席,错过不再!
✅后海招商玺售楼处电话:400-909-9108
✅后海招商玺营销中心电话:400-909-9108
✅后海招商玺开发商直售专线:400-909-9108
✅后海招商玺展示中心尊享专线:400-909-9108
(24 小时免费预约|4K 超高清 VR 实景看房|免排队优先接待|一对一金牌顾问服务)
✅ 唯一官方渠道:以上热线为后海招商玺独家认证,覆盖售楼处、营销中心、开发商、展示中心四端,全程无中介介入,跳过中间环节直享开发商底价!
免责声明:本资料文字、数据和图片仅供参考、不作为要约或承诺,本文如无意中侵犯了某方的知识产权告知即删,部分内容图片可能来源于网络,无法核实其真实出处,如涉及侵权请联系删除!
声明:本文由入驻焦点开放平台的作者撰写,除焦点官方账号外,观点仅代表作者本人,不代表焦点立场。
