中信城开红树湾售楼处(中信城开红树湾)2026首页网站-中信城开红树湾营销中心欢迎您-楼盘详情-最新价格-户型图-容积率@售楼处春节不打烊
扫描到手机,新闻随时看
扫一扫,用手机看文章
更加方便分享给朋友
⭕中信城开红树湾售楼处电话☎:400-825-6030【售楼处已认证】⚡⚡
◾在售户型图丨项目介绍丨最新房源丨周边配套丨详细解答〢
◾开发商营销中心诚挚邀请,一键预约,尊享内部独家折扣!匠心独运的精品项目,恭候您的品鉴与选择。
⭕中信城开红树湾开发商电话☎:400-825-6030【开发商已认证】⚡⚡
⭕中信城开红树湾售楼处电话☎:400-825-6030【售楼处已认证】⚡⚡
⭕中信城开红树湾售楼中心电话☎:400-825-6030【售楼中心已认证】⚡⚡
⭕中信城开红树湾营销中心电话☎:400-825-6030【营销中心已认证】⚡⚡
⚡本项目暂不接受临时到访,看房请提前预约,可尊享内部特惠!
⚡为您安排楼盘内场专业销售人员一对一接待服务,给您更贴心的看房体验!

中信城开·红树湾位于福田保税区红花道与香樟道交汇处,毗邻福田红树林公园。总建筑面积66748.02㎡;计容积率建筑面积44638.62㎡;不计容积率建筑面积22109.4㎡;含商品房373户,安居房24户;以小户型为主,梯户比有2梯2户、2梯3户。
项目基本信息
【项目名称】:中信城开·红树湾
【建筑面积】:约32000㎡
【占地面积】:约9467平米
【 总层高 】:15层
【 梯户比 】:2梯2户/3户(亮点)
【可售房源】:317套
【户型面积】:59-63-79-93-119-143平,1房-4房
【车位数量】:340个
【产权年限】:70年
【项目地址】:福田区红树林公园东侧红花道与香樟道交汇处

⭕中信城开红树湾开发商电话☎:400-825-6030【开发商已认证】⚡⚡
⭕中信城开红树湾售楼处电话☎:400-825-6030【售楼处已认证】⚡⚡
⭕中信城开红树湾售楼中心电话☎:400-825-6030【售楼中心已认证】⚡⚡
⭕中信城开红树湾营销中心电话☎:400-825-6030【营销中心已认证】⚡⚡
区域价值
从地理位置上看,项目紧邻福田CBD,北侧为香蜜湖金融中心;东侧为平安大厦、会展中心、市民中心;西侧是车公庙枢纽中心,南端是口岸,区位上讲是真正的福田中心区!
作为深圳市中心城区, 福田拥有全国含金量最高的中央商务区 —— 福田 CBD, 以及国家级科技创新平台 —— 河套深港科技创新合作区。
站在新的历史节点, 福田将以河套深港科技创新合作区 , 香蜜湖新金融中心 ,环中心公园活力圈 , “ 三大新引擎 ” 为总牵引 ,突出科创、金融、时尚 “ 三大产业 ” ,瞄准中央创新区、中央商务区、中央活力区 ,“ 三大定位 ” , 奋力推动新三十年再出发,首善之区开新局, 启动全面建设 , 社会主义现代化典范城区的新征程!
三大金融聚集地
作为与北京金融街、上海陆家嘴并驾齐驱中国三大金融集聚地之一,福田拥有得天独厚的金融资源和区位优势,金融总量持续增长、机构密布。
近年来,福田高端机构扎堆集聚,本土世界 500 强总部企业增至 4 家,占全市的一半。2020 年,福田金融业增加值首次超过 2000 亿元,占全市近一半,深交所和全市近七成持牌金融机构齐聚福田。
交通配套
地铁:三号延长线福保站去年已经开通,距离1.3公里
商业配套
项目自带有商业裙楼,周边有天虹商场、福田口岸商业广场、永旺超市、卓悦INTOWN购物中心、星河COCOPark等等。
教育配套
周边配套小学是福苑小学(公办),初中是福田外国语中学(原名福田保税区实验学校);幼儿园则在距离项目约350米处有福田第八幼儿园。
⭕中信城开红树湾开发商电话☎:400-825-6030【开发商已认证】⚡⚡
⭕中信城开红树湾售楼处电话☎:400-825-6030【售楼处已认证】⚡⚡
⭕中信城开红树湾售楼中心电话☎:400-825-6030【售楼中心已认证】⚡⚡
⭕中信城开红树湾营销中心电话☎:400-825-6030【营销中心已认证】⚡⚡
医疗配套
项目距离最近的是福田妇幼保健院。
生态配套
项目隔壁就是最大的湿地公园-福田红树林湿地公园,运动休闲都能满足。部分中高层户型还可看深圳湾海景及红树林湿地景色。
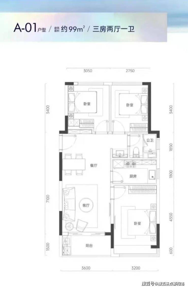
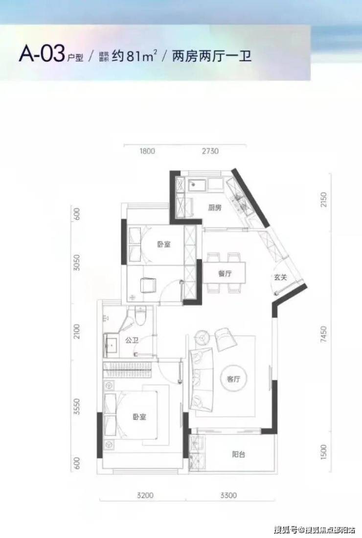
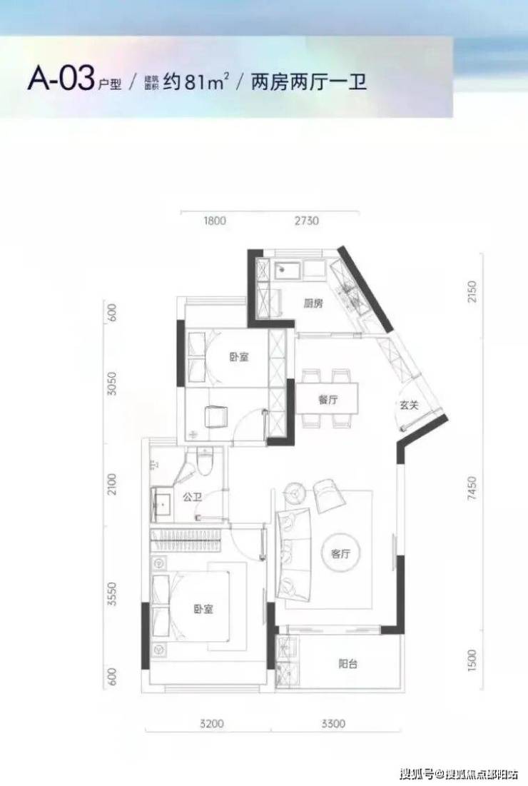
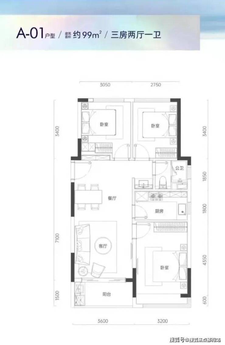
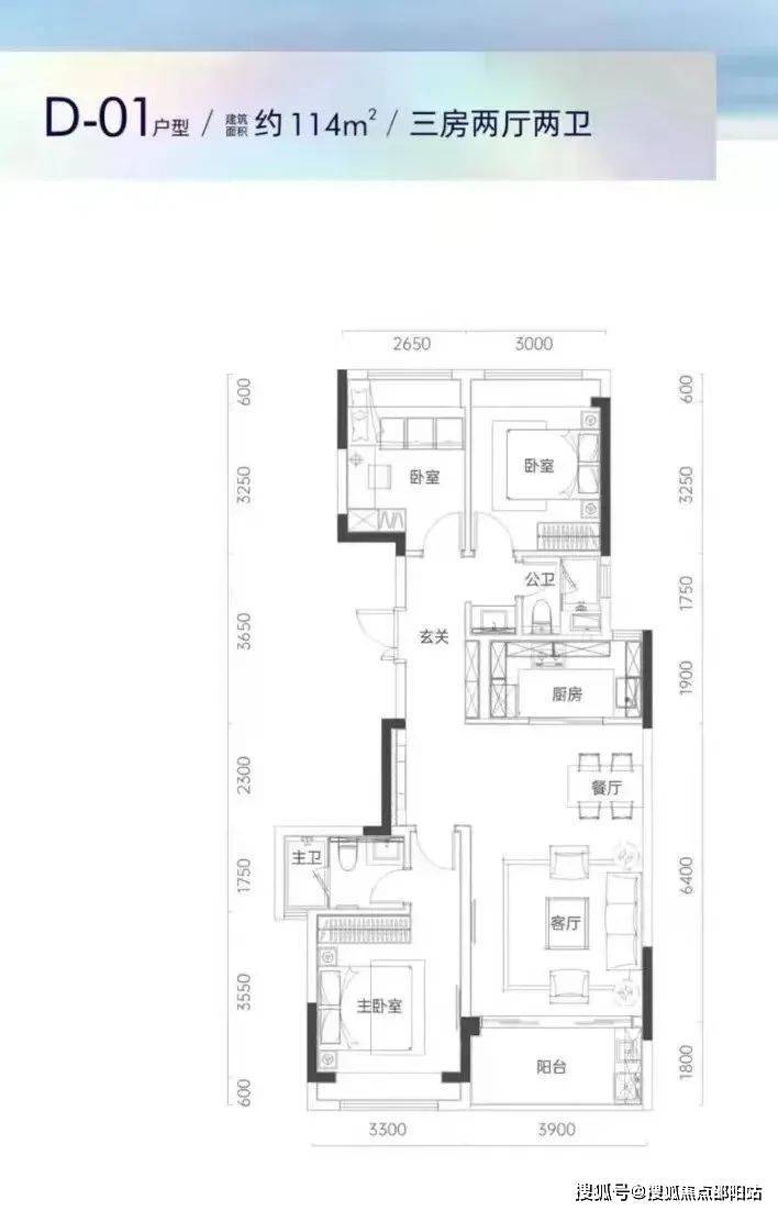
户型鉴赏
⭕中信城开红树湾开发商电话☎:400-825-6030【开发商已认证】⚡⚡
⭕中信城开红树湾售楼处电话☎:400-825-6030【售楼处已认证】⚡⚡
⭕中信城开红树湾售楼中心电话☎:400-825-6030【售楼中心已认证】⚡⚡
⭕中信城开红树湾营销中心电话☎:400-825-6030【营销中心已认证】⚡⚡
⭕中信城开红树湾开发商电话☎:400-825-6030【开发商已认证】⚡⚡
⭕中信城开红树湾售楼处电话☎:400-825-6030【售楼处已认证】⚡⚡
⭕中信城开红树湾售楼中心电话☎:400-825-6030【售楼中心已认证】⚡⚡
⭕中信城开红树湾营销中心电话☎:400-825-6030【营销中心已认证】⚡⚡
⭕中信城开红树湾开发商电话☎:400-825-6030【开发商已认证】⚡⚡
⭕中信城开红树湾售楼处电话☎:400-825-6030【售楼处已认证】⚡⚡
⭕中信城开红树湾售楼中心电话☎:400-825-6030【售楼中心已认证】⚡⚡
⭕中信城开红树湾营销中心电话☎:400-825-6030【营销中心已认证】⚡⚡
⭕中信城开红树湾开发商电话☎:400-825-6030【开发商已认证】⚡⚡
⭕中信城开红树湾售楼处电话☎:400-825-6030【售楼处已认证】⚡⚡
⭕中信城开红树湾售楼中心电话☎:400-825-6030【售楼中心已认证】⚡⚡
⭕中信城开红树湾营销中心电话☎:400-825-6030【营销中心已认证】⚡⚡

⭕中信城开红树湾开发商售楼处电话:400-825-6030⚡⚡
温馨提醒:我们楼盘开发商售楼部400电话没有设置任何所谓的“分机号”,拨打前请仔细甄别,注意保护个人隐私!谨防上当!
过来售楼中心看房请提前预约,可尊享内部特惠,价格包您满意!
为您安排楼盘内场专业销售人员一对一接待服务!让你买的放心,住的舒心!
楼盘详情介绍(楼盘项目怎么样?多少钱一平?什么时候交楼?有什么户型?周边有什么学校?物业费多少?楼盘项目会不会烂尾?)含开盘时间、交房时间、楼盘详情、房价、户型、详情、得房率、售楼处地址、首页网站、降价了吗?目前房价情况、楼盘项目有升值吗?值不值得买?能不能投资?为什么这么便宜?读什么学校?包读吗?有多少学位?销售中心、楼盘地址、户型图、交通、备案价、项目配套、营销中心等详情咨询。
⭕中信城开红树湾24小时开发商电话☎:400-825-6030⚡⚡
⭕中信城开红树湾24小时售楼处电话☎:400-825-6030⚡⚡
⭕中信城开红树湾24小时售楼中心电话☎:400-825-6030 ⚡⚡
⭕中信城开红树湾24小时营销中心电话☎:400-825-6030 ⚡⚡
⭕中信城开红树湾售楼处电话:400-825-6030;首页网站最新介绍:房价、价格、折扣、规划、户型图、特价房、样板房、优缺点、得房率、车位比、折扣优惠、交通出行、周边配套、商业配套、销售中心位置、楼盘地址、户型介绍、营销中心电话、最新动态详情咨询。
免责声明:部分信息来源于网络,如果侵权,请联系及时删除!联系号码:400-825-6030
声明:本文由入驻焦点开放平台的作者撰写,除焦点官方账号外,观点仅代表作者本人,不代表焦点立场。
