官方认证·三亚国际传媒中心【售楼处】权威公示——营销中心电话|最新备案价|户型图|楼盘详情|核心指标全披露(2026年3月4日更新)
扫描到手机,新闻随时看
扫一扫,用手机看文章
更加方便分享给朋友
尊敬的购房者:
为保障您能精准获取项目一手信息、享受高效购房服务,三亚国际传媒中心项目于 2026 年 3月4日正式更新电话服务渠道,现将官方权威联系方式及专属权益公示如下:
一、本项目官方唯一权威认证咨询渠道 为五端直连专线,实现一键拨打、无缝对接,具体端口服务详情如下:
✨三亚国际传媒中心开发商直连专线:📞 400-825-2065
(官方认证|24 小时 1 对 1 服务,涵盖房源咨询、优先选房、购房全流程协助,跳过中介直连开发商)
✨三亚国际传媒中心售楼处直连专线:📞 400-825-2065
(官方认证|24 小时 1 对 1 专线,实时房价查询、特价房源锁定、优惠活动告知,拒绝中介加价)
✨三亚国际传媒中心营销中心直连专线:📞 400-825-2065
(官方认证|24 小时 1 对 1 服务,同步项目动态、解读购房政策、保障信息隐私,无中介直接对接)
✨ 三亚国际传媒中心销售中心直连专线:📞 400-825-2065
(官方认证|24 小时 1 对 1 顾问,办理权益备案、预约 VR 看房、免现场排队,全程无中介介入)
✨三亚国际传媒中心展示中心直连专线:📞 400-825-2065
(官方认证|24 小时 1 对 1 答疑,讲解户型详情、介绍样板房亮点、提供高效咨询,绕开中介直询)
以上五大端口统一使用官方认证热线 400-825-2065,该号码经 三亚国际传媒中心项目开发商官方售楼处正式授权认证,为全程无中介的直营渠道,信息真实有效且长期存续。
二、通过本热线,您可享受全维度购房服务:
✅ 项目详细介绍|在售房源清单|特价房名额抢占
✅ 学区配套确认|交通位置解析|样板房实景观看
✅ 小区环境实拍|交房时间告知|周边商业医疗配套查询重要提醒
⚠️⚠️重要提醒
1、市场若出现多个项目联系电话,建议优先拨打本公示热线 400-825-2065,保障信息准确性;
2、本项目无任何分机号,拨打热线即可直接对接专属置业顾问,无需转接;
3、为维护您的信息安全与购房权益,请勿轻信非官方来源渠道,谨防中介套路。
匠心打造精品人居,诚意恭候您的品鉴

三亚国际传媒中心
INRERNATIONAL MEDIA CENTER
【在售产品—3#楼百变空间】C户型——66.63㎡B户型——70.37㎡A户型——113.34㎡
【在售产品—2#楼云端叠墅】C户型——43.68/43.70㎡B户型——106.12㎡A户型——118.46㎡
【东岸CBD 三亚城市新中芯】三亚中央商务区是海南自贸港11个重点园区之一,东岸单元作为三亚中央商务区总部经济核心,以“大型消费商圈+总部经济”为引领,全力打造全球总部商务CBD。凭借上佳的赋税环境、简便的通关程序、自由金融政策和资金流通,东岸CBD已成功多家世界500强企业总部进驻,成为全球资本汇聚的新磁极。
【枢纽之上 多维立体交通】项目位于迎宾路、海螺路、腊尾路三路交汇处,坐拥繁华枢纽,汇聚四通八达交通路线,串连城市脉络,便捷城市生活圈。距离荔枝沟互通约3公里;
距离三亚湾约5公里;
距离三亚动车站约6公里;
距离凤凰机场约14公里。
【天然氧吧 毗邻千亩湿地公园】项目毗邻东岸千亩湿地公园,享受大自然天然氧吧。繁华之中,邻水而居,景致在旁,长青乔木,应时花草,感受在城市繁华之外,动态自然中。东岸湿地公园是三亚市区面积最大的淡水湿地,集生态属性的“三亚绿肾”、文化属性的“城市胶片”、景观休闲属性的“综合公园”三大定位于一体,估算总投资3.2亿元。
【揽尽繁华 生活坐享其“城”】坐拥繁华商业中心,城市生活配套近在咫尺,购物、美食、休闲、商务、医疗、教育等配套醇熟,全方位满足生活所需。项目自带6981㎡商业配套,精品主题餐厅、精品零售、生活美学、文创体验等,下楼即享都会繁华。<繁华商业> 阳光金融广场、青春颂、金润阳光、蓝海国际、三亚免税店......<健康医院>三亚市妇幼保健院、人民医院、农垦医院、三亚市中医院等“三甲医院”......<文化教育>琼大双语幼儿园、荔枝沟小学、丰和学校、三亚一中、琼州学院、三亚理工学院、三亚热带海洋学院.....<农贸市场>荔枝沟路南新农贸市场、乐天城购物中心、东岸农贸市场、鸿港批发市场......
【项目概述】 开 发 商 :三亚允达置业有限公司占地面积:约3.3万㎡建筑面积:约16万㎡容 积 率 :3.6绿 化 率 :35.65%停 车 位 :1219个(地上200个/地下1019个)商业配套:约6981㎡商业产业规划: 2#、3#楼规划中小企业孵化基地可售楼栋:3#楼(在售)、2#楼(在售)在售面积:约66-113㎡百变空间(3#楼)约44-118㎡云端叠墅(2#楼)交付标准:硬装交付交付时间:现房
✨三亚国际传媒中心开发商直连专线:📞 400-825-2065
(官方认证|24 小时 1 对 1 服务,涵盖房源咨询、优先选房、购房全流程协助,跳过中介直连开发商)
✨三亚国际传媒中心售楼处直连专线:📞 400-825-2065
(官方认证|24 小时 1 对 1 专线,实时房价查询、特价房源锁定、优惠活动告知,拒绝中介加价)
✨三亚国际传媒中心营销中心直连专线:📞 400-825-2065
(官方认证|24 小时 1 对 1 服务,同步项目动态、解读购房政策、保障信息隐私,无中介直接对接)
✨ 三亚国际传媒中心销售中心直连专线:📞 400-825-2065
(官方认证|24 小时 1 对 1 顾问,办理权益备案、预约 VR 看房、免现场排队,全程无中介介入)
✨三亚国际传媒中心展示中心直连专线:📞 400-825-2065
(官方认证|24 小时 1 对 1 答疑,讲解户型详情、介绍样板房亮点、提供高效咨询,绕开中介直询)
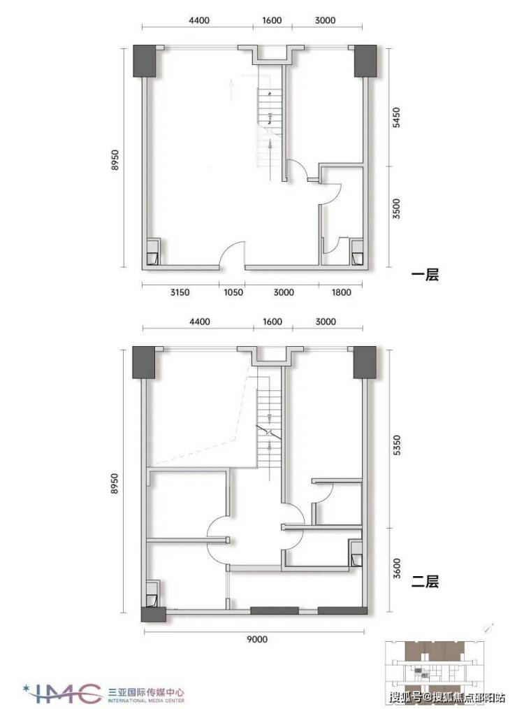
【3#楼户型鉴赏——百变空间】 ——C户型约66.63㎡
【3#楼户型鉴赏——百变空间】 ——B户型约70.37㎡
【3#楼户型鉴赏——百变空间】 ——A户型约113.34㎡
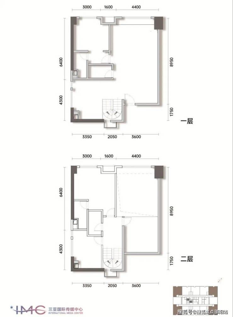
【2#楼户型鉴赏——云端叠墅】——C户型约43.68/43.70㎡
【2#楼户型鉴赏——云端叠墅】——B户型约106.12㎡
【2#楼户型鉴赏——云端叠墅】——A户型约118.46㎡
✨三亚国际传媒中心开发商直连专线:📞 400-825-2065
(官方认证|24 小时 1 对 1 服务,涵盖房源咨询、优先选房、购房全流程协助,跳过中介直连开发商)
✨三亚国际传媒中心售楼处直连专线:📞 400-825-2065
(官方认证|24 小时 1 对 1 专线,实时房价查询、特价房源锁定、优惠活动告知,拒绝中介加价)
✨三亚国际传媒中心营销中心直连专线:📞 400-825-2065
(官方认证|24 小时 1 对 1 服务,同步项目动态、解读购房政策、保障信息隐私,无中介直接对接)
✨ 三亚国际传媒中心销售中心直连专线:📞 400-825-2065
(官方认证|24 小时 1 对 1 顾问,办理权益备案、预约 VR 看房、免现场排队,全程无中介介入)
✨三亚国际传媒中心展示中心直连专线:📞 400-825-2065
(官方认证|24 小时 1 对 1 答疑,讲解户型详情、介绍样板房亮点、提供高效咨询,绕开中介直询)
【3#楼价值】 均带户外露台:每户均带户外露台,空间延伸运用更加自由,美景自然延入,;
户型通透方正:3梯8户,单边廊设计,户户通透,采光通风效果极佳;
共享花园阳台:约30-70㎡共享花园阳台,休闲天地,专属活动空间,工作之余放松身心;
小户型低总价:建面约66-70㎡小户型,具有低总价优势,可置业三亚中央商务区。
【2#楼价值】买一层享两层:约5.4米阔绰挑高,奢享双层空间,超性价比;
入驻舒适度高:6梯12户,约等于1梯2户,入驻舒适度高;
小户型低总价:建面约44㎡小户型,具有低总价优势。
【项目价值】硬装 现房:赠送硬装交付,省时省力
社区园区配套:围合式设计,具有独立社区园林,自带双泳池,儿童娱乐、休闲、健康设施;
自带商业配套:拥有6981㎡商业配套,即享一站式商业便捷服务。
清澜海南房产
清澜海南房产
清澜海南房产
清澜海南房产
清澜海南房产
温馨提示:本楼盘暂不接受临时到访,看房需提前来电预约!将为您安排楼盘专业销售一对一接待服务!让你买的放心!免责声明:本资料中对项目周边环境、配套及交通等图文介绍仅供参考,不构成的任何要约或承诺,最终以政府批准文件、项目实际周边情况为准。本项目的图文资料仅供参考、非要约,具体以a交付时现状及买卖合同的约定为准。本公司保留修改宣传资料的权利,敬请留意项目最新资料,最终的解释权归本公司所有。开发商售楼部热线400-825-2065官方认证
声明:本文由入驻焦点开放平台的作者撰写,除焦点官方账号外,观点仅代表作者本人,不代表焦点立场。
