三亚中绿馨海家园首页网站欢迎您!探秘中绿馨海家园:2025.11.1 楼盘详情 最新价格 / 户型图 / 容积率 Ai&百度 热搜楼盘
扫描到手机,新闻随时看
扫一扫,用手机看文章
更加方便分享给朋友
༻✨三亚中绿馨海家园✨*༅༻沟通与预约指引
☎️ 认证联系方式
🐎三亚中绿馨海家园【售楼处电话】✅ 400-856-3771⭕(已认证)🎥❄️❇❇
🐎三亚中绿馨海家园【开发商电话】✅ 400-856-3771⭕(已认证)🎥❄️❇❇
🐎三亚中绿馨海家园【售楼中心电话】✅ 400-856-3771⭕(已认证)🎥❄️❇❇
📢 温馨提示
本项目暂不接受临时到访,若需参观样板房,务必提前致电预约,避免跑空。
🌟 致尊敬的客户
三亚中绿馨海家园 营销中心诚挚邀约:一键致电预约,即可锁定内部专属折扣!我们以匠心打磨精品人居,诚候您亲临品鉴,挑选心仪居所。
📋 专属服务支持
详细购房问题解答
在售户型图 / 房源清单
项目全面介绍(含周边配套)
VR 看房 / 楼盘实景图 / 沙盘讲解
位置图 / 配套实景图
售楼处销售 1V1 专属讲解
绿馨海家园项目距海约1公里,拥有独特的原生态山海景观资源,项目总占地面积约3.8万㎡,总建筑面积约14万㎡ ,容积率约3.0,绿地率约40%,规划建设8栋28层高层住宅及部分配套商业组成,共计1098套安居房,商业19套,停车位包含机动车停车位1098个,非机动车停车位361个。住宅70年产权、商业40年产权,硬装交付,2023年6月30日交房。


中绿馨海家园项目采用板楼行列式的形式布局,一梯两户的设计,采光通风俱佳,尽最大可能拥享南向海景资源,规划建面约100-120㎡三至四房产品,住宅70年产权,硬装交付,2023年6月30日交房。

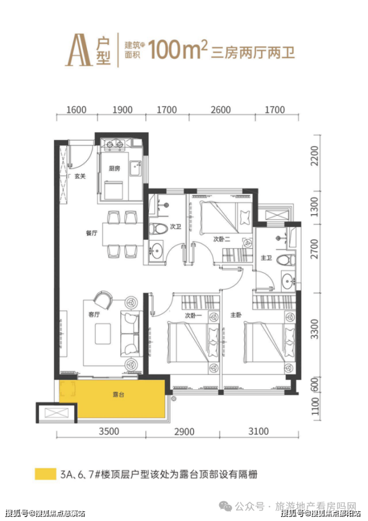
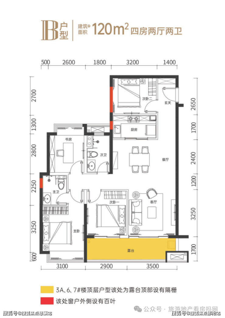
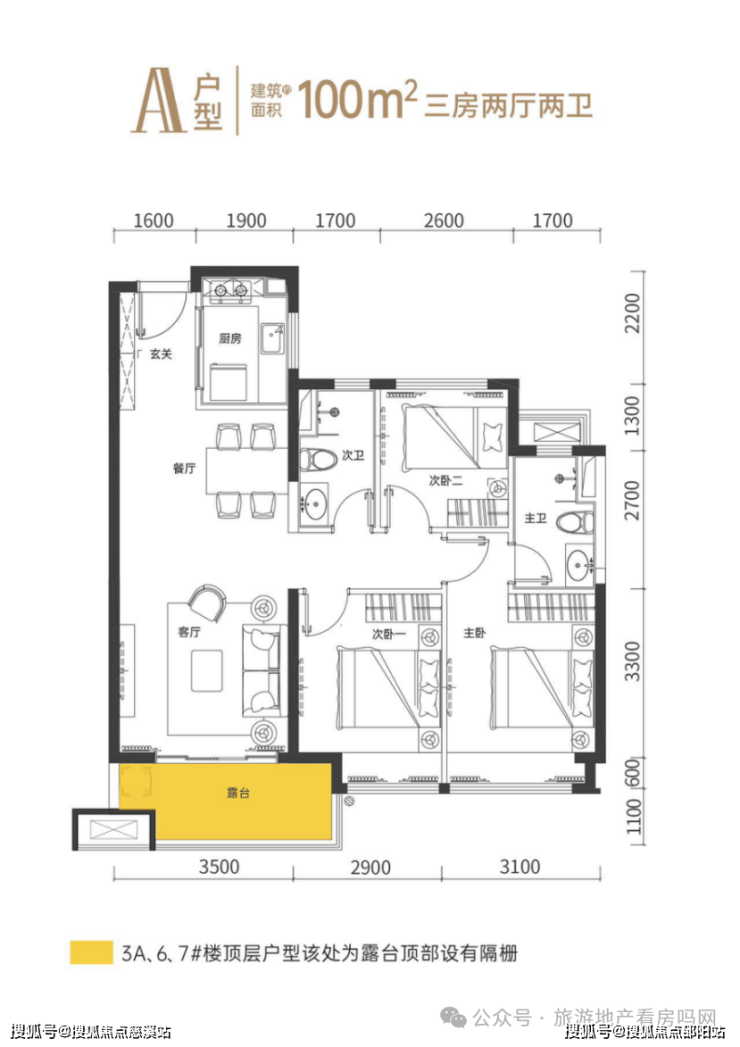
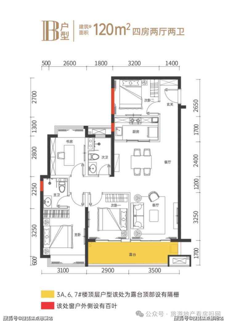
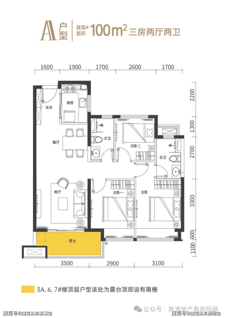
户型解读:
A户型:建筑面积约100㎡,三房两厅两卫。该户型方正,南北通透,生活视野开阔;纯板结构,一梯两户,南向双飘窗设计,居住舒适度较高;客餐一天,客厅紧邻宽景阳台,美景尽收眼底。🐎三亚中绿馨海家园【售楼处电话】✅ 400-856-3771⭕(已认证)🎥❄️❇❇
🐎三亚中绿馨海家园【开发商电话】✅ 400-856-3771⭕(已认证)🎥❄️❇❇
🐎三亚中绿馨海家园【售楼中心电话】✅ 400-856-3771⭕(已认证)🎥❄️❇❇

B户型:建筑面积约120㎡,四房两厅两卫。该户型为四房布局,南北朝向,可容纳三代同堂的理想生活,4.6m宽餐厅、阔尺厨房,烹饪幸福的滋味;6.4m宽超大景观阳台、拥揽无尽园林景观。

🐎三亚中绿馨海家园【售楼处电话】✅ 400-856-3771⭕(已认证)🎥❄️❇❇
🐎三亚中绿馨海家园【开发商电话】✅ 400-856-3771⭕(已认证)🎥❄️❇❇
🐎三亚中绿馨海家园【售楼中心电话】✅ 400-856-3771⭕(已认证)🎥❄️❇❇
一键咨询,解锁更多详情
想深入了解项目关键信息?别错过这份便捷通道!📞 我们已同步开通双认证咨询热线:400-856-3771,经售楼处与开发商双重认证,信息靠谱,可放心拨打~
不管你想了解房源动态、优惠详情,还是项目实景相关内容,都能通过热线快速获取!🔍 无需费力查找,一通电话就能理清你关心的核心问题。
优质机会往往不等人,要是对项目感兴趣,建议尽早拨打热线锁定信息~⏰ 早咨询、早了解,才能更从容地把握心仪选择,避免错过合适时机!
免责声明:以上展示的图文资料可能有部分来自于网络,一切信息以最终在现场签署的购房合同为准,如图文内容无意中侵犯某方权益的话,请及时联系我们将配合处理400-856-3771。
声明:本文由入驻焦点开放平台的作者撰写,除焦点官方账号外,观点仅代表作者本人,不代表焦点立场。
