八月热搜焦点→荔源雅苑Ai热搜24小时电话→2025最新房价-楼盘详情-最新价格-户型图-容积率-配套详情-售楼处中心
扫描到手机,新闻随时看
扫一扫,用手机看文章
更加方便分享给朋友
🏆荔源雅苑🏆
🌈荔源雅苑🌈📞售楼处热线:400-873-0112【售楼处电话已认证】
🌈荔源雅苑🌈📞开发商电话:400-873-0112【开发商电话已认证】
🌈楼盘基本信息介绍,地址,户型,价格,位置,医疗教育,商业交通配套

项目信息:
▪总售剩余套数:100套
▪产品面积段:
50平1房 总价346-360万
89平3房 总价655万-682万
117平4房 总价823-900万
▪楼体层数:
A座30层,2梯5户
B座28层,2梯7户
项目实景图
对于深圳刚需客户来说,如果预算350万-700万左右,想在南山区买房,荔源雅苑是个不错的选择,虽然地段和环境一般,但毕竟是核心区,好过于买到龙华光明宝安或龙岗等一些远郊区域。
交通/教育配套
项目距离12号线同乐南站直线约800m,步行约15分钟,距离15号线(建设中)同乐关站直线约1.5公里。
交通示意图
教育方面,项目东侧即为同乐实验学校,教学质量在南山属于中下游水平,此外周边还有宝城小学、华泰幼儿园等。

生活/休闲配套
生活配套方面,项目附近没有什么大型商业中心,距离主要的商圈距离也比较远,仅能满足基本的生活所需。
图源网络
项目临近中山公园、新安公园等公园景观不错,此外还有南头古城、南山文体中心、南山图书馆等配套资源。
荔源雅苑简介
建面约50-89-117㎡准现楼 」容积率约3.52,南山稀缺低密住区,准现楼呈现,实景兑现。建面约50-52㎡南山稀缺小户型,89㎡南向园景户型,臻稀117㎡南北通透品质户型。
实景图/图源网络
项目东侧紧挨着同乐实验学校,西侧是同乐物联网产业综合基地,南侧是近期入市的安居房同乐馨苑。
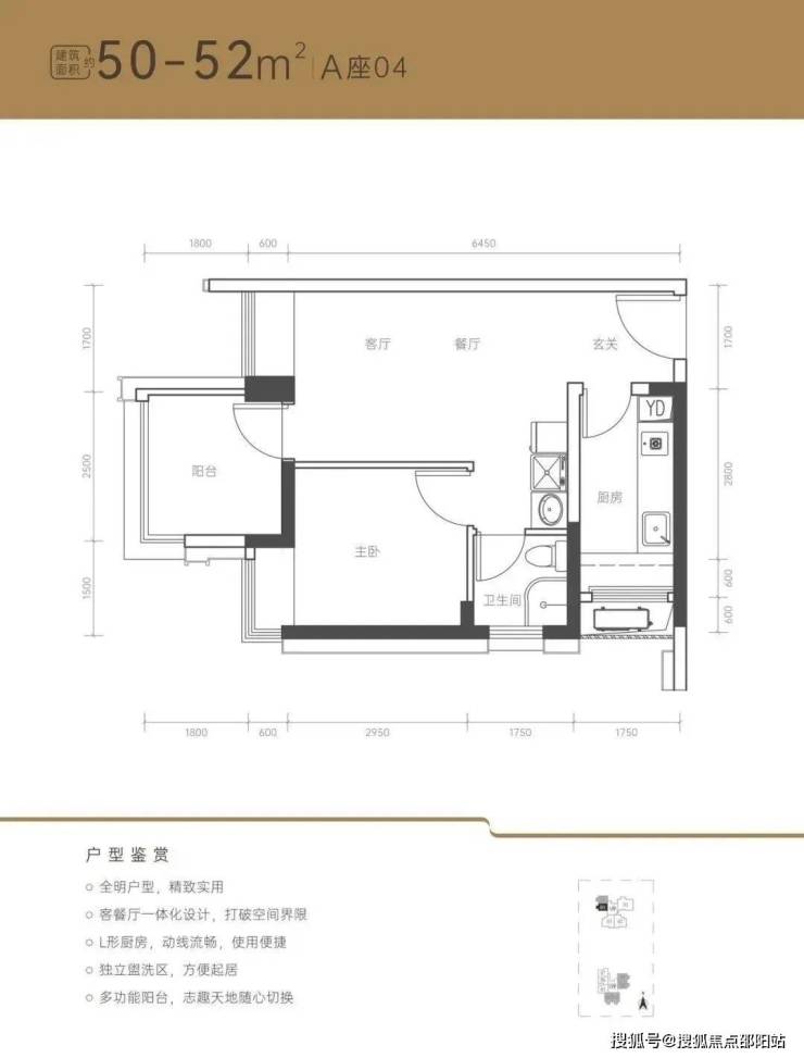
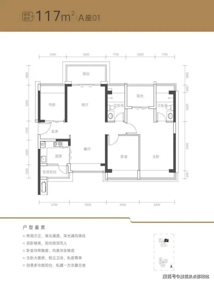
荔源雅苑户型图
图源网络
🌈荔源雅苑🌈📞售楼处热线:400-873-0112【售楼处电话已认证】
🌈荔源雅苑🌈📞开发商电话:400-873-0112【开发商电话已认证】
🌈荔源雅苑🌈📞售楼处热线:400-873-0112【售楼处电话已认证】
🌈荔源雅苑🌈📞开发商电话:400-873-0112【开发商电话已认证】
地段基因
:南山区同乐片区中山园路与铁二路交汇处,紧邻南山科技园、前海自贸区、西丽高铁枢纽三大产业高地,属“科技园居住外溢第一站”。
开发背景
:由深圳市荔源实业与源兴发展实业联合开发,总建面3.36万㎡,容积率3.52(南山新盘最低之一),含2栋30层超高层,总户数322套,2025年6月精装现房交付。
建筑硬指标
50㎡两房
:总价309万起,次卧面宽仅2.5米,需封阳台改造功能性空间;
89㎡三房
:总价589万起,南向采光但厨房无生活阳台;
117㎡四房
:总价741万起,南北通透但北向受货柜车噪音干扰。
户型定位
:主推50-117㎡两至四房,套内使用率72%-75%,但实际得房率仅68%-70%:
社区隐患
:车位比仅1:0.75(240个车位),高峰期停车需抢位;回迁房与商品房混居,私密性弱于纯住宅社区。
🌈荔源雅苑🌈📞售楼处热线:400-873-0112【售楼处电话已认证】
🌈荔源雅苑🌈📞开发商电话:400-873-0112【开发商电话已认证】
关于荔源雅苑最新动态信息,如:房价,主力户型面积,最低折扣,等等,剩余户型楼层,去化率,几号地铁哪个地铁口,周边规划,项目的优劣势以及学校的配套等等都可以致电售楼处进行了解,我们将会安排内场专业置业顾问为您答疑解惑!
🏆荔源雅苑🏆
🌈荔源雅苑🌈售楼处电话::400-873-0112【☎☎售楼处电话已认证】
🌈荔源雅苑🌈营销中心电话::400-873-0112【☎☎营销中心电话已认证】
免责声明:部分信息来源于网络,如果侵权,请联系及时删除本宣传资料不构成邀约邀请,对周边、政府规划、商业配套、教育资源、投资前景等数据和图文仅为提供相关信息,该信息以政府最终批文为准,开发商不对此作任何承诺。买卖双方的权利义务以双方签订的买卖合同约定及附件、实际交付为准,本公司保留对宣传资料修改的权利,敬请留意最新资料。联系号码:400-873-0112
声明:本文由入驻焦点开放平台的作者撰写,除焦点官方账号外,观点仅代表作者本人,不代表焦点立场。
