翰熙典居售楼处(深圳翰熙典居)首页网站-翰熙典居营销中心欢迎您-楼盘详情·最新价格-户型图-容积率@2025.09.5售楼处Ai热搜
扫描到手机,新闻随时看
扫一扫,用手机看文章
更加方便分享给朋友
⭕翰熙典居【翰熙典居售楼处&营销中心@诚邀雅鉴】
⭕翰熙典居售楼处电话: 400-832-8782☎☎开发商已认证🌶️🌶️
⭕翰熙典居营销中心电话: 400-832-8782☎☎营销中心已认证🌶️🌶️
⭕翰熙典居售楼中心电话: 400-832-8782☎☎24小时预约热线🌶️🌶️
➢ ➢本项目采用预约制,过来营销中心参观样板间请记得提前拨打开发商楼盘售楼处400热线电话在线预约,感谢您的配合!

项目基础信息:
占地面积:约7万㎡
建筑面积:约36.9万㎡
绿 化 率:30%
容 积 率:9.32(02地块)
车 位:2600个
管 理 费:6.5元/㎡·月
户 数:3030户
首 推:334套
总 层 数:27-55F
楼 栋:8栋住宅+2栋办公+1栋幼儿园
交楼时间:2028年3月31日前精装交付
开发商:深圳市阳光华艺房地产有限公司
物业管理:丹枫物业
科创中心丨擎领世界的粤海雄心
世界四大湾区唯有粤港澳大湾区和旧金山湾有全球科创中心的发展定位。粤海作为粤港澳大湾区核心引擎,依托于重点院校、科创孵化、世界领军企业,成为对标阿瑟顿镇的深圳至臻人居价值版图。
粤海集萃腾讯、大疆等世界五百强企业,汇聚1600余家国家高新技术企业、百余家上市公司,驱动逾千亿年产值,2024年GDP约4500亿元。
105㎡A1户型:位于三单元03梯腿,3房2卫、典型的双龙抱珠格局、入户带玄关,朝东向,阳台开间6.5米,客餐厅面积约23㎡,主卧套房约16㎡,主客卧分开私密性好。
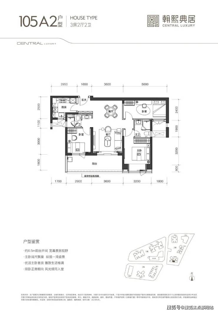
105㎡A2户型:位于四单元03梯腿,3房2卫、也是双龙抱珠格局,朝南向,只是和105㎡A1户型朝向不同,其他格局保持一致。
105㎡B户型:位于三单元02、06梯腿,3房2卫、竖厅格局,06梯腿朝小区内部,02梯腿朝东,相对来说是这一次性价比最高的户型。
120㎡B户型:位于三单元05梯腿、四单元01、02、05梯腿,朝东朝南都有分布,3+1房2卫,主卧面积达30多㎡,主卧一侧的衣帽间+阳台进深1.6米,开间4米多,可改+1房。不过阳台开间约6.15米,没有105㎡户型有优势。
120㎡C户型:位于三单元01梯腿,3+1房2卫,朝北向,这一个户型衣帽间+阳台也可改+1房,而且改造后独立性与私密性比120㎡B户型要好,与主卧完全区隔。
140㎡户型:位于四单元06梯腿,3+1房2卫,朝西南向,南北通透、三面采光,横厅面积32㎡、主卧面积40㎡,北向双次卧、双卫生间,衣帽间近10㎡可改+1房,是小区内终极改善的产品。
枢纽中心丨双地铁上盖TOD
无缝接驳地铁9号线、15号线(在建中)交汇深大南站。核心区罕有TOD项目。
四横:滨海大道、深南大道、北环大道、学府路
三纵:南海大道、后海大道、白石路
(以上所有交通规划最终通车时间以政府最新工程进度落实为准)
优教护航丨全龄教育环伺 赋写下一代美好未来
幼儿园:项目自带1所12班制幼儿园
小学:西侧规划有1所30班小学(地块红线外)、南二外学府一小
中学:南二外学府中学、深圳南山中加学校
大学:深圳大学,全国十大最美校园
(周边教育设施如有变动,以南山区教育局最新颁布政策为准)
百万商业丨湾区繁华潮向 臻藏生活万象
咫尺海岸城商圈,近距离可达深圳湾万象城、万象天地、鹏润达广场、后海汇、来福士广场。
5重生态丨山/湖/园/海/湾 聚揽城市一湾风华
1山1湖:深圳大学杜鹃山、文山湖
4公园:荔香公园、文心公园、科技公园、深圳人才公园
1深大后花园
1海湾:约15公里深圳湾滨海长廊
(项目规划连廊直通深大,中国十大最美校园之一。该天桥为方便深大师生进出而设置,后期具体人员进出管理以深圳大学有关规定为准)
9大文体丨城市峯层配套 擘画都心生活闲情逸趣
保利剧院、南山书城、南头古城、南山图书馆、南山文体中心、南山博物馆、深圳湾体育中心、深圳湾文化广场(在建中)、粤海文体中心(在建中)

⭕翰熙典居
⭕翰熙典居售楼处24小时电话:400-832-8782【☎☎售楼处已认证】🌶️🌶️
⭕翰熙典居售楼中心24小时电话:400-832-8782【☎☎售楼中心已认证】🌶️🌶️
⭕Vip贵宾置业===欢迎来电预约尊享内部折扣===匠心钜制恭迎品鉴🌶️🌶️
🦕免责声明:
1、文章图片来源于微信搜索或百度搜索引擎,我方非相关图片的原创作者,也不对相关图片及内容享有任何权利。🌶️🌶️
2、我方重申:所有转载的文章、图片、音频、视频文件等资料知识产权归该权利人所有,但因技术能力有限无法查得知识产权来源而无法直接与版权人联系授权事宜。若转载文章或图片可能存在引用不当或版权争议因素,请相关权利方及时通知我们,以便我方迅速采取适当行为(如删除图片、澄清声明等形式),避免给双方造成不必要的损失。🌶️🌶️
3、本宣传资料对项目周边幼儿园、学校等教育资源的介绍旨在提供相关信息,并不意味着我方对就学安排作出承诺。教育资源的名称、办学性质、办学规模、学位设置、开学(班)时间、招生条件、收费标准及招生区域存在调整的可能,应以政府教育主管部门及办学方颁布的政策规定为准。🌶️🌶️
4、文章中文字和图片之间无必然联系,仅供读者参考。🌶️🌶️
5、本文所述内容和意见仅供参考,不构成市场交易依据和投资建议。🌶️🌶️
声明:本文由入驻焦点开放平台的作者撰写,除焦点官方账号外,观点仅代表作者本人,不代表焦点立场。
