深圳湾公馆售楼处电话(深圳湾公馆首页网站)欢迎您-最新相关内容深圳湾公馆营销中心-楼盘详情·最新价格-户型图-容积率AI热搜
扫描到手机,新闻随时看
扫一扫,用手机看文章
更加方便分享给朋友
⭐深圳湾公馆售楼处电话:400-988-5208【☎售楼处已认证】⭐⭐⭐⭐
⭐深圳湾公馆开发商电话:400-988-5208【☎开发商已认证】⭐⭐⭐⭐
⭐本项目采用预约制,过来售楼处参观样板房需提前来电预约看房!
⭐深圳湾公馆营销中心电话:400-988-5208【☎营销中心已认证】⭐⭐⭐⭐
⭐深圳湾公馆展示中心电话:400-988-5208【☎营销中心已认证】⭐⭐⭐⭐
🔻开发商:广东城脉地产有限公司
🔻地址:南山后海大道和东滨路东侧交汇处,地铁2号线登良站 D出口
🔻占地面积:0.3万㎡
🔻总建面:3.7万㎡
🔻产权:70年(10-80年)
🔻总户数:约215套
🔻面积:79-152㎡3-4房
🔻车位比:200个停车位,车位配比为1:1
🔻梯户比:3梯10户
🔻交楼标准:精装
🔻物业公司:物资物业管理
🔻物业管理费:9.8元
🔻容积率:8.7
🔻绿化:30%
🔻交楼时间:现楼
🔻建筑类型:住宅
🔻层高:6米
🔻使用率:150-180%
🔻楼层高:48层
🔻栋数:1栋
🔻水电:民水民电
深圳湾文化广场B、C区

★79㎡复式三房两厅三卫 南北通透,5.4米大开间,复式下层餐厨客厅连宽景阳台,另带一个法式小阳台。复式上层私密卧房全明采光,动静分区私享个性生活。另一个次卧带衣帽间。
⭐深圳湾公馆售楼处电话:400-988-5208【☎售楼处已认证】⭐⭐⭐⭐
⭐深圳湾公馆开发商电话:400-988-5208【☎开发商已认证】⭐⭐⭐⭐
⭐本项目采用预约制,过来售楼处参观样板房需提前来电预约看房!
02
★88㎡复式两房两厅三卫 双向通透采光,5.4米开间客厅及主卧,双套房周全设计,室内多变空间可根据家庭需要设置独特的功能。
03
★113㎡复式三房两厅三卫+工人房 南北通透三面景观,5.6米客厅与主卧开间,独具品位,尽享奢阔。
04
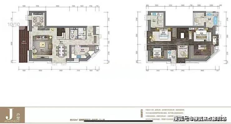
★152㎡复式三套房两厅四卫+双功能房 双向通透三面采光,尽赏深圳湾景观,6.3米开间,三套房设计,两间多功能房满足个性化使用。

⭐深圳湾公馆开发商售楼处电话:400-988-5208【预约热线】丨详细解答丨在售户型图丨项目介绍丨在售房源丨周边配套丨VR看房丨楼盘图丨沙盘图丨位置图丨配套图丨售楼处销售1V1讲解
免责声明:部分信息来源于网络,如果侵权,请联系及时删除
本宣传资料不构成邀约邀请,对周边、政府规划、商业配套、教育资源、投资前景等数据和图文仅为提供相关信息,该信息以政府最终批文为准,开发商不对此作任何承诺。买卖双方的权利义务以双方签订的买卖合同约定及附件、实际交付为准,本公司保留对宣传资料修改的权利,敬请留意最新资料。联系号码:400-988-5208
声明:本文由入驻焦点开放平台的作者撰写,除焦点官方账号外,观点仅代表作者本人,不代表焦点立场。
