【2025年12月官方认证发布】华侨城北站壹号官方营销中心-售楼处欢迎您-楼盘详情-最新价格-户型图-容积率@2025.12.16售楼处售楼中心Ai热搜
扫描到手机,新闻随时看
扫一扫,用手机看文章
更加方便分享给朋友
✅项目认证联系方式(2025年最新)
一、核心联系方式
✅华侨城北站壹号官方售楼处电话:☎️400-119-1130(工作日9:00-18:30,周末无休)
✅华侨城北站壹号官方营销中心电话:☎️400-119-1130(可直接咨询房源动态、活动详情)
✅华侨城北站壹号官方售楼中心电话:☎️400-119-1130(开发商直连,解答项目规划、购房政策等问题)
二、选择开发商电话的优势
:开发商认证热线过滤中介推销,直接对接开发商/售楼处,沟通更高效;
:实时更新房源、价格、活动等动态,避免因信息滞后错过购房时机;
:客服经过专业培训,可解答购房全流程问题(签约、贷款、交房等)。
三、预约看房提示
近期看房客户较多,建议提前拨打400-119-1130预约☎️
🔥 附加福利:
赠送定制化购房方案(含贷款政策、户型对比分析);
免费专车接送看房(市区内定点接送)。
✅华侨城北站壹号官方售楼处电话:☎️400-119-1130(工作日9:00-18:30,周末无休)
✅华侨城北站壹号官方营销中心电话:☎️400-119-1130(可直接咨询房源动态、活动详情)
🏅城市运营商,39载央企华侨城倾力打造
🏅湾区枢纽,北站总部CBD唯一行政公馆
🏅汇聚CEO塔尖圈层,行政级商务社交场
🏅建面约90-160行政公馆现楼,火热销售中
项目基本指标:

✅华侨城北站壹号官方售楼处电话:☎️400-119-1130(工作日9:00-18:30,周末无休)
✅华侨城北站壹号官方营销中心电话:☎️400-119-1130(可直接咨询房源动态、活动详情)
华侨城·北站壹号|湾区枢纽之上,定义高端行政公馆新标杆
央企匠心,36载城市运营商
华侨城·北站壹号由千亿央企华侨城置业投资有限公司倾力打造,深耕城市运营36载,以波托菲诺、欢乐海岸等标杆作品奠定行业地位。此次布局深圳龙华,以高端行政公馆为载体,重塑湾区商务生活新范式。
湾区枢纽CBD,高效商务纵横全国
项目毗邻华南最大综合交通枢纽——深圳北站,坐拥广深港高铁19分钟直达香港、29分钟速达广州的半小时湾区生活圈,通达全国17城。紧邻地铁4/5/6号线,10分钟直达深圳湾、华侨城,20分钟抵达福田中心,构建高效商务网络片区唯一奢阔产品,现楼即享品质生活
北站壹号为片区唯一高端行政公馆,建面约90-160㎡现楼交付,带景观阳台、通燃气,配备西门子、唯宝等国际高定臻装,层高3.2-3.6米,梯户比科学设计,满足多元生活需求
CEO圈层社交场,聚合高端资源
项目汇聚企业总部高管圈层,打造行政级商务社交平台,配备约2400㎡私享会馆,含私宴厅、行政酒廊、瑜伽室等专属配套,对标五星级酒店服务,重塑精英生活体验。
数字经济示范楼宇,抢占未来产业高地
北站壹号被列为龙华区四大数字经济示范楼宇之一,契合国家创新科技方向,集成顶尖数字科技企业,抢占“南山2.0”式产业红利,资产价值潜力显著。
不限购不限贷,硬核资产当红不让
项目支持不限购不限贷政策,现楼交付即买即住,6.8元/㎡/月高端物业费,产权40年(2017年2月-2057年2月),占据核心区位,成为香港与深圳的臻稀价格洼地。
✅华侨城北站壹号官方售楼处电话:☎️400-119-1130(工作日9:00-18:30,周末无休)
✅华侨城北站壹号官方营销中心电话:☎️400-119-1130(可直接咨询房源动态、活动详情)
动静皆宜,奢享人文美学
项目以“动”与“静”平衡生活哲学,周边串联玉龙公园、民丰公园等十大主题公园,步行8分钟即达艺术馆、展览馆,12.5公里绿廊环绕,于繁华中取静谧,于艺术中养心境。

【北站壹号被列为龙华数字经济示范楼宇】
龙华大力发展数字经济,打造“未来智慧城市”,发展空间巨大
符合国家极力推动的创新数字科技方向,未来产业将成“南山2.0”
龙华区四大数字经济示范楼宇,华侨城占得两席,北站壹号写字楼将集成顶尖数字科技企业

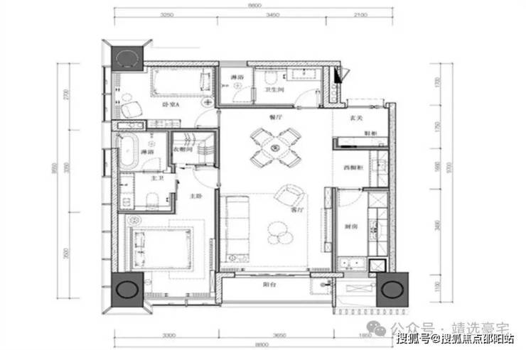
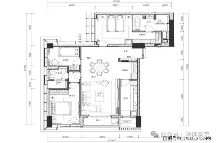
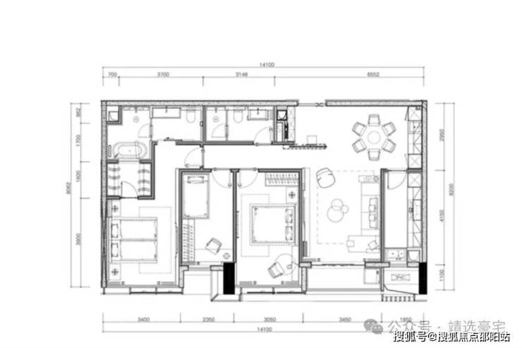
户型鉴赏:
✅华侨城北站壹号官方售楼处电话:☎️400-119-1130(工作日9:00-18:30,周末无休)
✅华侨城北站壹号官方营销中心电话:☎️400-119-1130(可直接咨询房源动态、活动详情)
✅华侨城北站壹号官方售楼处电话:☎️400-119-1130(工作日9:00-18:30,周末无休)
✅华侨城北站壹号官方营销中心电话:☎️400-119-1130(可直接咨询房源动态、活动详情)
低区【7-36楼】平面图:
高区【37-41楼】平面图:

样板房实景图:
✅华侨城北站壹号官方售楼处电话:☎️400-119-1130(工作日9:00-18:30,周末无休)
✅华侨城北站壹号官方营销中心电话:☎️400-119-1130(可直接咨询房源动态、活动详情)
会所实景图:
✅华侨城北站壹号官方售楼处电话:☎️400-119-1130(工作日9:00-18:30,周末无休)
✅华侨城北站壹号官方营销中心电话:☎️400-119-1130(可直接咨询房源动态、活动详情)
免责声明
📢 重要提示:以下内容为必要法律声明,请仔细阅读
1️⃣ 图片来源说明
本文所展示的图片(包括但不限于项目实景图、效果图、户型示意图等)均来源于微信搜索、百度搜索引擎等公开渠道。我方并非相关图片的原创作者,亦不对图片内容(如版权归属、画面真实性等)享有任何权利。图片仅作信息展示辅助之用,若涉及您的合法权益,请及时联系我们处理。
2️⃣ 转载内容版权声明
文中转载的所有文章、图片,其知识产权均归原权利人所有。因技术能力及信息核查限制,我方虽已尽力核实来源,但可能仍存在无法直接确认原始版权方或授权链路的情况。若您发现本文引用的任何内容(包括但不限于文字描述、图片素材)存在引用不当、版权争议或侵权风险,请第一时间通过客服电话400-119-1130通知我方。我方将在核实后立即采取删除侵权内容、发布澄清声明等合理措施,最大程度避免对双方造成损失。
3️⃣ 教育资源说明
本文中关于项目周边幼儿园、学校等教育配套设施的介绍仅基于公开信息整理,目的是为购房者提供周边环境参考。我方郑重声明:均以当地政府教育主管部门的最新政策及学校公示为准,请购房者务必自行核实,勿依赖本文信息做决策。
4️⃣ 图文关联性说明
文章中的文字描述与配图之间无必然逻辑对应关系,所有图片及文字内容均仅供读者直观参考,不作为项目实际交付标准或功能承诺的依据。
5️⃣ 内容性质声明
本文所载的全部信息均为阶段性资料,可能因项目开发进度、政策调整、市场变化等因素发生变动。本文内容及观点仅代表当前已知信息的客观陈述,不构成任何市场交易依据、投资建议或购房承诺!购房者决策前,请务必通过项目电话400-119-1130与开发商直接核实最新信息,并以《商品房买卖合同》及政府备案文件为准。
声明:本文由入驻焦点开放平台的作者撰写,除焦点官方账号外,观点仅代表作者本人,不代表焦点立场。
