首页热搜:鸿荣源珈誉府售楼处电话→鸿荣源珈誉府→Ai热搜售楼处24小时电话→2025最新房价→楼盘百科详情→售楼处更新发布@售楼中心2025-08-31
扫描到手机,新闻随时看
扫一扫,用手机看文章
更加方便分享给朋友

项目位于沙井新桥,珈誉府本身是一个大型综合体,自身配套丰富,自带50万㎡大型商业;地铁11号线塘尾站挨着项目,深圳外国语宝安学校在项目南北两侧,且靠近万丰湖、立新湖,有生态资源。
全新园林景观楼栋,超高性价比+超高实用率,约83/89/110㎡3-4房
75㎡的3房2厅1卫
,设计的是竖厅格局,客厅3.1米开间,LDKB一体化,S墙设计预留冰箱卡槽位,3个卧室分别做到了主卧10.2㎡/次卧8.55㎡/次卧7.95㎡(包含墙体飘窗),U型厨房,卫生间三段式分离,得房率约77%(不含赠送),西南朝向。
84㎡的3房2厅2卫
,设计的是经典竖厅格局,客厅3.2米开间,LDKB一体化,S墙设计预留冰箱卡槽位,三开间朝南,3个卧室分别做到了主卧12.37㎡/次卧9.18㎡/次卧6.76㎡(包含墙体飘窗),U型厨房,卫生间三段式分离,得房率约77%(不含赠送),西南或东南朝向。
94㎡的3房2厅2卫
,设计的是横厅南北通透格局,客餐厅6.3米开间,LDKB一体化,四开间朝南,卧室全南向,3个卧室分别做到了主卧15.3㎡/次卧8.5㎡/次卧8.16㎡(包含墙体飘窗),L型厨房,公卫三段式分离,得房率约77%(不含赠送),阳台主朝东北向。
97㎡的3房2厅2卫
,设计的是横厅南北通透格局,客餐厅6.2米开间,LDKB一体化,四开间朝南,3个卧室分别做到了主卧13.87㎡/次卧8.58㎡/次卧7.92㎡(包含墙体飘窗),L型厨房,卫生间干湿分离,得房率约77%(不含赠送),阳台主朝东北向。
建面约124㎡的4房2厅2卫
124㎡的4房2厅2卫,此户型为东南朝向,设计的是经典竖厅格局,客餐厅位都设计了飘窗,就是为了争取更多的赠送,动静分区,四开间朝南,主卧270°观景飘窗,L型厨房,公卫三段式分离,得房率约88%(包含赠送)。
建面约137㎡的4房2厅2卫
137㎡的4房2厅2卫,设计的是横厅南北通透格局,超宽展面,动静分区,五开间朝南,主卧三面观景飘窗,L型厨房,公卫三段式分离,得房率约90%(包含赠送)。
建面约169㎡的4房2厅3卫
169㎡的4房2厅3卫,设计的是竖厅格局,2梯2户,专梯入户,独立入户玄关,LDKB一体化设计,四开间朝南,双主卧套间,客厅连接次卧出大阳台看花园全貌景观,二字型厨房带1个生活阳台,公卫三段式分离,得房率约95%(包含赠送),正南朝向。
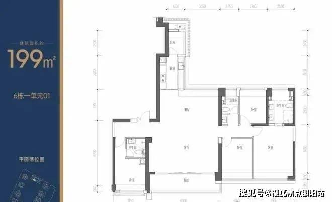
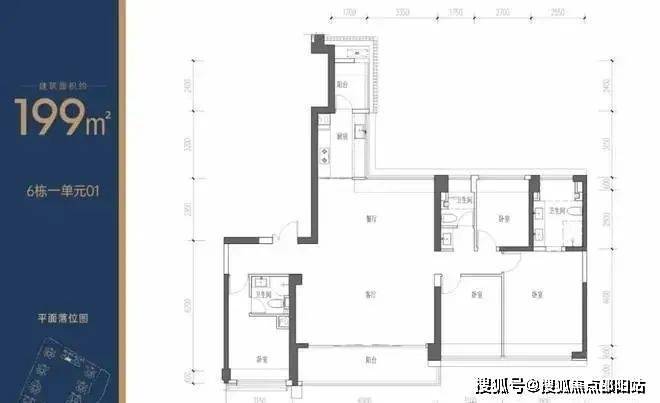
建面约199㎡的4房2厅3卫
199㎡的4房2厅3卫,设计的是竖厅格局,2梯2户,专梯入户,独立入户玄关,LDKB一体化设计,客厅超大开间,四开间朝南,双主卧套间,客厅超大阳台看花园全貌景观,二字型厨房带1个生活阳台,公卫三段式分离,得房率约95%(包含赠送),正南朝向。
约2.9万㎡舒居艺术大园林
🌿围合式布局,最大楼间距约161米
源于西班牙著名画家《记忆的永恒》为灵感的超现实主义花园,打造多重梦境空间
纯板楼设计,二梯二户,外立面部分采用铝板,尽显品质;
入户大堂采用大理石地面及花纹石材墙面;
奢阔3.15m层高,体验归家礼序,尽享圈层人生
交通配套
地铁:无缝连接11号线塘尾站,6站到宝中(22min),7站到前海(25min),9站到后海、11站到车公庙,便捷到达南山、福田。
4站直达机场东综合枢纽(规划中):大型“空铁联运”的综合交通枢纽,集国际航空、高铁(深茂铁路-在建中)、城际铁路(穗莞深城际-在建中)、地铁(1号线、12号线)、公交等多种交通方式于一体。
7站即达前海交通枢纽(在建中):是亚洲第一、世界第四大地下交通枢纽换乘站,预计日客流量达到75万人次。
教育配套
深圳外国语学校(集团)宝安学校,广东省一级学校,宝安区委区政府首次引进的深圳“四大名校”。
另外,项目配建1所63班9年一贯制学校,同时配建2所幼儿园(1所12班幼儿园、1所18班幼儿园)。
再造一座“壹方城” 顶级全能配套
鸿荣源斥资约250亿打造的又一城市地标级“壹方城”,全国规模最大的“50万㎡全业态重奢奥莱”,由鸿荣源前海壹方城运营团队原班人马运营,相比于前海壹方城规模更大,业态更丰富,体验更高端,影响力更大,商业定中心,万千繁华尽在掌握。
免责声明:部分信息来源于网络,如果侵权,请联系400-832-7289及时删除
✅本项目暂不接受临时到访,过来参观样板房请记得提前来电预约!
一、政策基调与市场导向
支持多样化住房需求
首次明确提出支持刚性住房需求和多样化改善性需求,鼓励高品质住宅开发(如别墅、低容积率住宅),容积率普遍降至1.5以下(如苏州、重庆)。
取消行政限制
全面取消限购、限售、限价政策,赋予地方政府调控自主权,推动“市场归市场”原则。
供给侧改革
调整住宅设计规范,得房率提升至100%-120%,层高不低于3米,淘汰低端房产。
二、金融支持措施
首付比例下调
首套普通住宅首付降至15%(全国统一),二套房首付最低25%(如内蒙古、北京)。
贷款利率优化
首套房贷利率下限降至4.6%,二套降至5.0%;商业贷款取消利率下限,由银行自主定价。
信贷扩容
增加“白名单”项目信贷规模至4万亿元,支持房企融资。
三、保障性住房与市场监管
加大保障房供给
新增廉租房、公租房及配售型保障房,实施封闭管理(如合肥要求一户一房、禁上市交易)。
优化土地供应
增加保障房用地比例,延长土地出让金缴纳时限,缓解房企资金压力。
强化登记监管
推行不动产预告登记全覆盖,防止“一房多卖”。
税收与地方化债支持
契税减免
全国房地产交易契税优惠首月减免116.9亿元,降低购房成本。
专项债扩容
新增地方化债资源10万亿元,支持存量商品房收购及城中村改造。
地方政策示例
北京:五环外放宽购房资格,非京籍社保年限缩短。
合肥:保障房主申请人需满25周岁,高层次人才不受户籍限制。
内蒙古:首套房商贷首付15%,预告登记“全程网办”。
声明:本文由入驻焦点开放平台的作者撰写,除焦点官方账号外,观点仅代表作者本人,不代表焦点立场。
