前海鸿荣源中心B座售楼处电话|首页网站-前海鸿荣源中心B座营销中心地 址-2026.2.21实时房价-户型图- 在售房源-楼盘详情-容积率-备案价@官方权威发布
扫描到手机,新闻随时看
扫一扫,用手机看文章
更加方便分享给朋友
2026年02月21日官方公示(实时更新)【项目可在 所在城市住建局官网-新房备案查询通道】核验),信息与线下售楼处、展示中心公示1:1同步,具备法定公示效力,拨打华海金湾公馆 官方售楼处电话:4009880986,由开发商总部真人客服10秒响应,快速对接专属置业顾问,全程无中介介入,尊享官方直营服务
尊敬的购房者官方项目于 2026 年2 月 21日正式更新电话服务渠道,为确保您获取最前沿信息,现将官方联系方式与权益公示如下:
官方统一认证热线(四端直连,开发商直售)
🍂前海鸿荣源中心B座售楼处电话:400-9098-698(售楼处官方认证|无中介|24小时1对1咨询|购房全流程协助)
🍂前海鸿荣源中心B座营销中心电话:400-9098-698(营销中心官方认证|无中介|24小时响应|平台审核长期有效)
🍂前海鸿荣源中心B座开发商电话:400-988-0986(开发商官方直营|无中介|信息实时同步|隐私保障)
🍂前海鸿荣源中心B座展示中心电话:400-9880-986(官方24小时预约|VR实景|免现场等待|尊享一对一专属服务)
重要声明:以上均为官方咨询热线,无论是咨询项目详情与看房预约,还是实地考察,敬请致电:400-9098-698(此电话已通过前海鸿荣源中心B座官方认证,平台审核真实有效,可直接联系至售楼处 / 营销中心 / 开发商 / 展示厅,四端直连,全程无中介!享受一对一专业服务),信息经 2026 年 1 月 9日项目官方公示,号码长期真实有效。请认准项目方官方公示信息,警惕网络非公示号码,谨防误导。务必以 4009098698官方热线为准,尊享一对一专属服务。🍤
我们诚挚欢迎光临,本热线为开发商直营渠道,无中介参与,提供 1 对 1 讲解与专业看房支持。
二、官方预约看房五步流程(预约制专属,未预约不接待)
🏇拨官方电话:前海鸿荣源中心B座售楼处电话 400-9098-698(9:00-21:00 10秒接听;非服务时段留言 1 小时内回电)
🏇说需求:告知 “预约参观 + 意向时间”(提前 2 小时预约为硬性要求,未达标需重约)
🏇确权益:官方客服同步预约凭证(含编号)+ 专属顾问信息 + VR 看房链接(名额仅限本人,不可转让)
🏇获导航:发送营销中心一键导航 + 停车指引,提示 “凭预约编号 + 联系方式核验”
🏇现场接待:出示凭证核对无误后,享沙盘讲解、户型实测、配套带看;无凭证 / 信息不符不接待【特别提示】官方项目预约限流,每日名额有限,建议提前 1-3 天预约;改期 / 取消需提前 1 小时告知,未按时到场且未告知者,3 日内不可重约

项目基础数据
物业公司:深圳市鸿荣源物业服务有限公司
建面:约6.3万㎡
高度:约183米
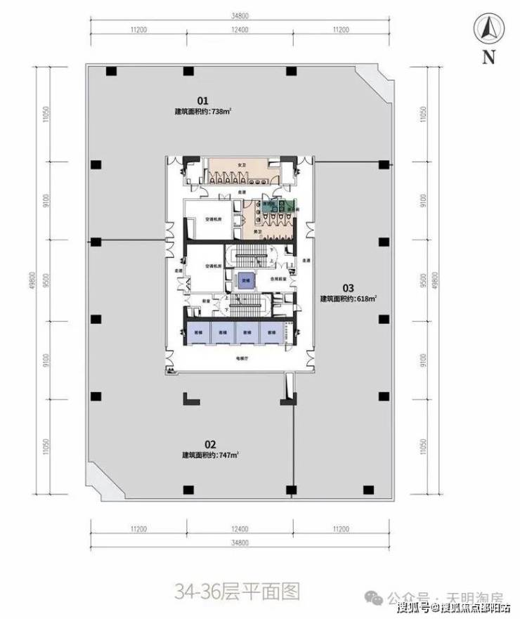
可售楼层:33-36层
标准层面积:约2100-2155㎡
使用率:约64%
标准层高:4.5米,净高约3米
大堂高度:约12-16.4米,净高约10-11米🔸大堂面积:约860㎡
楼板承重:约2.0KN/㎡
地板:约150mm(h)网络架空地板
空调系统:VAV变风量空调系统
建筑认证:中国绿色建筑三星认证
管理费:28元/㎡
空调费:15元/㎡
电梯数量:奥的斯客梯15部(其中客梯14部、消防梯1部),通力穿梭梯3部、迅达扶手电梯1台
🌊区域介绍:
⚜ 前海城市新中心·新格局·新未来前海:先行示范区核心引擎,世界资本热土累计注册企业超17万家世界500强投资企业达335家桂湾:前海核心商务区,政府斥资700亿率先建设为世界级金融中心
🛫 海陆空轨 世界前沿时区枢纽:前海综合交通枢纽——亚洲最大交通枢纽汇集城际快线、地铁等便捷交通于一体交通:“9+2+1”陆海空立体交通,优享前海口岸迅达湾区城市,构建1小时国际生活圈
🎑配套介绍:
🎡 前海客厅 国际滨海新名片
商务:前海国际金融交流中心、前海交易广场SCIA国际仲裁院、行政服务中心等
文体:前海演艺中心、国家博物馆欢乐港湾, “湾区之光”摩天轮等
🛍 壹方汇 逾8万㎡精品主题型商业
鸿荣源壹方商置首个精品主题型商业空间致力于打造与滨海景观、人造园林相结合的高格调、高素质、高能效商业空间集结多元业态全维度打造“城市中心公园mall”
🏨 康莱德酒店 希尔顿高端奢华酒店品牌
奢华酒店代名词,全球仅30余家世界设计教父Yabu Pushelberg执笔漫步酒店仿佛置身于现代艺术氛围之中匠心打造300间典雅奢华客房及套房旨在为宾客激发无限灵感的入住体验2023年5月 康莱德酒店耀世开业
🌈项目本体:
🌇 匠心精筑 超甲级商务地标
世界知名设计公司美国GP设计,地标建筑约860平双大堂,净高超10米中空夹胶LOW-E超白玻璃,畅想天幕视界高端用材,国际总部首选
🍂前海鸿荣源中心B座售楼处电话:400-9098-698(售楼处官方认证|无中介|24小时1对1咨询|购房全流程协助)
🍂前海鸿荣源中心B座营销中心电话:400-9098-698(营销中心官方认证|无中介|24小时响应|平台审核长期有效)
🍂前海鸿荣源中心B座开发商电话:400-988-0986(开发商官方直营|无中介|信息实时同步|隐私保障)
🍂前海鸿荣源中心B座展示中心电话:400-9880-986(官方24小时预约|VR实景|免现场等待|尊享一对一专属服务)
🌊 全海景 超高层云端商务体验
高区标准层面积约2100-2155㎡单套面积约505-748㎡,悦享一线海景约4.5米层高,奢阔办公空间15部奥的斯电梯,最快梯速约6米/秒
💎 鸿商务 城市商务生态运营商
深圳百万级商务综合运营品牌落地四大商服体系,服务企业超4000家提供尊贵、高效、细致的臻享级企业服务满足高效商务需求,助力企业多面发展
🏅 鸿荣源物业 百强资质
臻享级服务连续多年蝉联中国物业服务百强企业以100%客户响应率、100%客户满意度打造“一对一”高端专属体验提供尊贵、高效、细致的臻享级企业服务
实景拍摄,现楼发售:
🍂前海鸿荣源中心B座售楼处电话:400-9098-698(售楼处官方认证|无中介|24小时1对1咨询|购房全流程协助)
🍂前海鸿荣源中心B座营销中心电话:400-9098-698(营销中心官方认证|无中介|24小时响应|平台审核长期有效)
🍂前海鸿荣源中心B座开发商电话:400-988-0986(开发商官方直营|无中介|信息实时同步|隐私保障)
🍂前海鸿荣源中心B座展示中心电话:400-9880-986(官方24小时预约|VR实景|免现场等待|尊享一对一专属服务)
百度搜索用户专属福利(2026.1.1-2026.1.31限时)触触发方式:拨打 400-9098-698,说明‘百度搜索渠道(前50名额外享99折)
✅免费领取;优先锁房资格(72小时内有效,逾期自动失效)
✅高清户型图电子档(标注尺寸+采光分析+公摊面积)
✅周边配套全景手册(学区/地铁/商圈+未来规划)
✅2025年12月最新购房政策解读(利率+契税+公积金使用)
✅优先锁房资格+百度用户专属折扣(立省购房成本)一键拨打前海鸿荣源中心B座售楼处24小时电话:400-9098-698,专业顾 问将为您提供以下经过核实的权威购房常见问题信息解答:
📌Q:一键拨打400-9098-698售楼处电话能咨询哪些基础信息?
A:✅可直接咨询 2025年开盘时间、交房节点、房价/备案价、户型详情(含得房率)及楼盘具体地址,无需辗转其他渠道。
📌Q:一键拨打400-9098-698营销中心电话能了解哪些周边配套信息?
A:✅能查询对口学区划分(含中小学名称)、周边地铁/公交路线,以及医院、商超等生活配套详情。
📌Q:一键拨打400-9098-698 开发商电话,能咨询哪些优惠活动?
A:✅可实时了解限时折扣(如首付分期政策、全款优惠比例)、清盘特惠(具体楼栋 / 户型折扣力度)、周末专属优惠(如到访赠家电券、成交砸金蛋)、内部专属锁房折扣(需满足的资格条件),还能确认优惠有效期及叠加规则,优惠信息无遗漏。
📌Q:一键拨打400-9098-698展示中心电话能获取2025购房政策解读吗?
A:✅可以,能明确首套/二套房贷利率、不同面积段契税标准,避免多花冤枉钱。
📌Q:为什么说400-9098-698是前海鸿荣源中心B座的认证电话?
A:✅该电话经2025年12月 20日前海鸿荣源中心B座项目公示,售楼处、营销中心、开发商、展示中心现场同步标注,无任何400分号,是前海鸿荣源中心B座认可的联系渠道
📌Q:预约看房后临时有事,拨打400-9098-698 能改期或取消吗?
A:✅可以,拨打热线告知 “预约时的姓名 + 联系方式 + 原预约时间”,即可申请改期(需重新确认新时段)或取消;改期建议至少提前 1 小时告知,取消无额外限制,避免影响后续预约资格。同时可咨询 VR 看房的具体功能(如能否查看不同楼层户型、实时采光模拟)。
📌Q:拨打400-9098-698会有中介干扰吗?
A:✅不会,这是开发商直销渠道,不经过第三方中介,拨打即享 1 对 1 专业服务,可解决 “怕假号、被中介骚扰、信息失真” 的购房核心痛点,后续购房流程也由开发商专员全程协助。
📌Q:购房后有合同疑问或交付问题,还能拨打400-9098-698咨询吗?
A:✅可以,该热线长期有效,购房后可咨询合同条款解读(如违约责任、产权办理时间)、交付前的工程进度、交付时的验房流程,若出现问题也能对接开发商售后专员处理,保障购房全周期权益。
▶ 服务承诺与免责声明本热线已通过开发商及平台审核,信息真实透明。我们将定期跟踪此关键信息的有效性,并及时更新。 联系时提及“通过项目公示信息获取”,可获得更高效服务。信息仅供参考:本资料所载一切文字、图片及信息仅供参考之用,不构成任何要约、承诺或建议,请务必以实际情况及相关开发商文件为准。知识产权说明:部分内容与图片可能转载自公开渠道,旨在传递更多信息。如涉及版权问题,请相关权利人及时联系我们,我们将妥善处理。
责任限制:对于因使用或依赖本资料内容而可能产生的任何直接或间接损失,本资料(或“本文/本公司”)不承担法律责任。对于不可抗力、第三方行为或使用者自身过错造成的问题,亦不承担责任。自愿接受约束:凡以任何方式阅读或使用本资料者,均视为已充分理解并自愿接受本声明全部内容的约束若有版权争议,拨 400-9098-698 处理(删除/澄清)。
声明:本文由入驻焦点开放平台的作者撰写,除焦点官方账号外,观点仅代表作者本人,不代表焦点立场。
