官方认证·东莞天骄国际【售楼处】权威公示——天骄国际官方营销中心电话|最新备案价|户型图|楼盘详情|核心指标全披露(2025年3月20日更新)
扫描到手机,新闻随时看
扫一扫,用手机看文章
更加方便分享给朋友
⭕天骄国际售楼处电话:400-982-8802【☎售楼处已认证】❇❇❇❇
⭕天骄国际开发商电话:400-982-8802【☎开发商已认证】❇❇❇❇
✅本项目暂不接受临时到访,过来参观样板房请记得提前来电预约!
⭕天骄国际展示中心电话:400-982-8802【☎展示中心已认证】❇❇❇❇
⭕天骄国际营销中心电话:400-982-8802【☎营销中心已认证】❇❇❇❇
✅◆开发商营销中心诚挚邀请,一键预约,尊享内部折扣!匠心独运的精品项目,恭候您的品鉴与选择。
🌳天骄国际官方售楼处电 话/地址☎:400-982-8802✔✔(天骄国际开发商热线)天骄国际售楼处电话☎:400-982-8802(天骄国际售楼处预约热线)房价优惠折扣,户型图,平面图,样板间,高层户型,房型多样,高层洋房合院别墅,交房时间,交付标准,周边配套,学区配套,一房一价表,认筹时间,地铁口距离区域板块
项目核心卖点
稀缺山景资源:部分户型可直瞰黄旗山,景观优势明显。
商业配套:自带社区商业,步行可达星河城、万达广场(东城店)、国贸中心等大型综合体。
学校:周边有东城中心小学、东城实验中学等优质公立学校(具体学区以教育局划分为准)。
医疗:临近东莞市人民医院、东华医院等三甲医院。
休闲配套:黄旗山城市公园(天然氧吧,健身休闲首选);临近虎英湖、峰景高尔夫球场等高端休闲场所。
⭕天骄国际展示中心电话:400-982-8802【☎展示中心已认证】❇❇❇❇
⭕天骄国际营销中心电话:400-982-8802【☎营销中心已认证】❇❇❇❇

独特优势
地段不可复制性:黄旗山旁新房供应极少,光大天骄国际属稀缺项目。
交通+商业+教育+医疗全能配套:周边成熟度远超南城或松山湖的新兴板块。
高端圈层:东城传统富人区,居住人群以本地改善家庭、企业主为主。
地段发展前景
城市核心区保值性强:东莞城区土地稀缺,东城配套成熟,房价抗跌。
地铁1号线(在建)加持:未来通车后进一步提升通勤便利性。
政策倾斜:东莞中心城区“一心两轴”规划(黄旗山为生态核心),长期价值看好。

⭕天骄国际展示中心电话:400-982-8802【☎展示中心已认证】❇❇❇❇
⭕天骄国际营销中心电话:400-982-8802【☎营销中心已认证】❇❇❇❇

园林设计灵感来源于清朝岭南第一园——潘园,由知名设计公司山水比德打造,配合黄旗山的优质山态环境,以罗汉松、铁冬青、小叶紫檀等树种为主,点缀紫薇花、乌桕、龙形雕塑作品,打磨具有国际东方意境的自然风格。


⭕天骄国际展示中心电话:400-982-8802【☎展示中心已认证】❇❇❇❇
⭕天骄国际营销中心电话:400-982-8802【☎营销中心已认证】❇❇❇❇



⭕天骄国际展示中心电话:400-982-8802【☎展示中心已认证】❇❇❇❇
⭕天骄国际营销中心电话:400-982-8802【☎营销中心已认证】❇❇❇❇

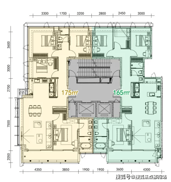
首批推建面约163/175㎡户型
大平层新房均价约 3.5万~5万元/㎡(视楼层、朝向、景观差异)。
项目定位为稀缺生态资源(抱山景观)豪宅,单价可能更高。
总价:
163㎡:约 570万~815万元(按3.5万∽5万/㎡计算)。
175㎡:约 613万~875万元。
交付标准
带装修交付(光大品牌通常为精装,配置中高端建材,如品牌厨卫、中央空调等)。
项目一期户型面积涵盖建面约163/175㎡、253/283㎡、350㎡全景抱山大平层。

165㎡4房2卫
计容面积约163.05㎡,公摊面积约34.33㎡,套内面积约128.72㎡,得房率约78.9%,赠送面积约14.64㎡(半阳台约8.10㎡+飘窗约6.54㎡),使用面积(套内+赠送)合计约143.36㎡,使用率约88%(含过道空间12.14㎡,扣除过道使用率约80%)。
175㎡4房2卫
计容面积约176.06㎡,公摊面积约37.06㎡,套内面积约139.0㎡,得房率约79.0%,赠送面积约21.97㎡(半阳台约8.41㎡+飘窗约13.56㎡),使用面积(套内+赠送)合计约160.97㎡,使用率约91%(含过道空间12.79㎡,扣除过道使用率约84%)。
⭕天骄国际展示中心电话:400-982-8802【☎展示中心已认证】❇❇❇❇
⭕天骄国际营销中心电话:400-982-8802【☎营销中心已认证】❇❇❇❇

250㎡4房3卫
计容面积约253.97㎡,公摊面积约52.84㎡,套内面积约201.13㎡,得房率约79.2%,赠送面积约32.71㎡(半阳台约10.92㎡+飘窗约8.79㎡+电梯前室约13.0㎡),使用面积(套内+赠送)合计约233.84㎡,使用率约92%。
280㎡4房3卫
计容面积约284.45㎡,公摊面积约58.99㎡,套内面积约225.46㎡,得房率约79.3%,赠送面积约42.16㎡(半阳台约12.36㎡+飘窗约16.80㎡+电梯前室约13.0㎡),使用面积(套内+赠送)合计约267.62㎡,使用率约94%。

350㎡4房4卫3套间
⭕天骄国际展示中心电话:400-982-8802【☎展示中心已认证】❇❇❇❇
⭕天骄国际营销中心电话:400-982-8802【☎营销中心已认证】❇❇❇❇





⭕天骄国际展示中心电话:400-982-8802【☎展示中心已认证】❇❇❇❇
⭕天骄国际营销中心电话:400-982-8802【☎营销中心已认证】❇❇❇❇



⭕天骄国际展示中心电话:400-982-8802【☎展示中心已认证】❇❇❇❇
⭕天骄国际营销中心电话:400-982-8802【☎营销中心已认证】❇❇❇❇




⭕天骄国际展示中心电话:400-982-8802【☎展示中心已认证】❇❇❇❇
⭕天骄国际营销中心电话:400-982-8802【☎营销中心已认证】❇❇❇❇



更全面的环形景观设计
全系户型均享极致开阔景观面
突破视觉束缚,成就户户皆景


⭕天骄国际展示中心电话:400-982-8802【☎展示中心已认证】❇❇❇❇
⭕天骄国际营销中心电话:400-982-8802【☎营销中心已认证】❇❇❇❇
⭕天骄国际售楼处电话:400-982-8802【☎售楼处已认证】❇❇❇❇
⭕天骄国际开发商电话:400-982-8802【☎开发商已认证】❇❇❇❇
✅本项目暂不接受临时到访,过来参观样板房请记得提前来电预约!
⭕天骄国际展示中心电话:400-982-8802【☎展示中心已认证】❇❇❇❇
⭕天骄国际营销中心电话:400-982-8802【☎营销中心已认证】❇❇❇❇
✅◆开发商营销中心诚挚邀请,一键预约,尊享内部折扣!匠心独运的精品项目,恭候您的品鉴与选择。
☎☎☎➨天骄国际楼盘详情介绍(楼盘项目怎么样?多少钱一平?什么时候交楼?有什么户型?周边有什么学校?物业费多少?楼盘项目会不会烂尾?)含开盘时间、交房时间、楼盘详情、房价、户型、详情、得房率、售楼处地址、首页网站、降价了吗?目前房价情况、楼盘项目有升值吗?值不值得买?能不能投资?为什么这么便宜?销售中心、楼盘地址、户型图、交通、备案价、项目配套、营销中心、周边配套等详情咨询
✨天骄国际售楼处电话☎:400-982-8802【售楼中心已认证√√】
VIP贵宾置业〢欢迎来电咨询〢售楼处邀您品鉴!!
温馨提示:来电提前预约、尊享线上一对一热讲解【享】专属优惠折扣!
免责声明:✴✴✴
1、文章图片均为效果图和示意图,最终效果以实际交付为准。
2、文章部分文字与图片来源于网络等。如涉及侵权,请第一时间联系我方,我们将第一时间予以删除。
3、本资料相关内容、图片是对项目所做的示意表现,仅供参考。最终以政府有关部门批准的文件、图则为准。经政府批准的详细规划后续将在销售现场公示。后续因规划及设计方案调整导致信息变化的内容,我司将按照政府要求进行公示。
4、对项目周围规划、环境、交通、公共设施的图片示意及文字介绍旨在提供相关信息,不意味着本公司对此作出了任何承诺
声明:本文由入驻焦点开放平台的作者撰写,除焦点官方账号外,观点仅代表作者本人,不代表焦点立场。
