京基御景峯售楼处电话(深圳京基御景峯)首页网站-京基御景峯营销中心欢迎您-楼盘详情·最新价格-户型图-容积率@2025.10.02售楼处AI热搜
扫描到手机,新闻随时看
扫一扫,用手机看文章
更加方便分享给朋友
⭕京基御景峯【京基御景峯售楼处&营销中心@诚邀雅鉴】
⭕京基御景峯售楼处电话:400-832-8782☎☎开发商已认证🌶️🌶️
⭕京基御景峯营销中心电话:400-832-8782☎☎营销中心已认证🌶️🌶️
⭕京基御景峯售楼中心电话:400-832-8782☎☎24小时预约热线🌶️🌶️
➢ ➢本项目采用预约制,过来营销中心参观样板间请记得提前拨打开发商楼盘售楼处400热线电话:在线预约,感谢您的配合!

项目基础信息
开发商:深圳市京基房地产股份有限公司
物业:深圳市京基房地产股份有限公司
占地面积:64068平方米
建筑面积:641729平方米
容积率:7.74
总房源:1854套
车位:3427个
总楼层:41层
层高:3.7米
绿化率:30%
物业费:4.9元/月/㎡
【价值全解读】
1、优越区位:科创高地、总部基地汇聚
西丽:深圳六大总部基地,南山独占四个,南山大学城,西有留仙洞总部基地,东有深圳北站总部基地。南山向北,打造“中国硅谷”的三大核心引擎尽在西丽,西丽将成深圳科创&人文双高地。
西丽湖国际科教城:覆盖69.8平方公里,荟萃清华、北大等18所塔尖高校,2家省级实验室,共计拥有两院院士78人,全职院士28人,223位“千人专家”,1.4万科教人员,4.54万在校生,产学研深度融合,成就城市智慧高地;
留仙洞总部基地:深圳六大总部基地之一,汇聚众多全球名企总部,目前大疆创新、航天科工、传音、万科等代表性企业入驻,未来将形成超3000亿元的产业集群,聚集至少60万高技术、高消费的财智人群。
深圳北站总部基地:2000亿政策红利,规划商业服务业规模约550万㎡,计划引进20-30家大型总部企业及上市公司,将打造成为具有全球影响力的国际会客厅。目前美团科技、深圳高铁总部、深圳通、深圳计算科学研究院等巨头已进驻。
2、生态景观:山水环绕,繁华静谧悠然切换
西丽据守大沙河长廊上游,“绿色飘带”串连深圳黄金中轴,片区超60%绿化控规,绿化覆盖率傲居深圳第一。
坐拥“中央山”塘朗山千倾绿意,直面长岭皮水库开阔景致,接驳广东省二号生态休闲绿道,拥揽山、水、园、道四重生态资源,尽情奢享清风、阳光、鲜氧。
3、核心枢纽:多维立体交通 便捷通达全城
无缝接驳5号线长岭陂站,一站直抵深圳北,便捷通达6大总部基地,往来南山福田中心。
双高铁枢纽:深圳北站、西丽高铁站(规划中)
4轨汇聚:5号线接驳地铁4、7、13号线(建设中),东抵罗湖,西至前海
2横2纵城市主干道:留仙大道、南坪快速、福龙路、沙河西路,未来更有侨城东路北延线(建设中)
4、全系配套:大学城成熟低密、奢享丰盛配套
周边商业、文体、交通、教育、医疗等晋阶配套齐全,悦享万象璀璨。
文体配套:深圳大学科技图书馆、大学城体育中心、西丽文体中心(规划中)等大型公共文化配套环伺;
商业配套:与塘朗城、宝能环球汇近20万㎡商业配套构成超大型商圈,尊享一站式休闲娱乐体验;
医疗配套:临近深圳大学总医院、深圳市孙逸仙心血管医院等,为健康保驾护航;
休闲配套:周边环绕广东省二号生态休闲绿道,西丽高尔夫俱乐部,麒麟山庄国宾级度假中心的休闲配套。
5、地标综合体:留仙大道封面之作
京基地产27载匠心沉淀,匠造约64万㎡生态人文综合体,集精品公寓、品质住宅、旗舰商业、高端办公四位一体,享商务、居住、娱乐、休闲、美食等全配套服务。
自带约3.6万㎡旗舰商业mall, 24小时开放式街区,不用出远门全方位满足居住、吃喝玩乐等多种需求;
6、京基品质
28载京基品牌,国家房地产开发一级资质企业,深圳地产30年十大领袖品牌企业,开发多个经典项目(京基100、京基滨河时代等),铸就深厚品牌底蕴,成为地标性建筑的创造者。
7、产品亮点
大平层布局、奢阔层高、开阔采光
大平层布局,品味纯粹, 约3.7米奢阔层高,最大约14米开间尺度,彰显尺度人生;
全玻璃幕墙 环幕视野
流线型美学立面,采用深灰色铝板和LOW-E中空落地玻璃幕墙,节能、隔热、降噪;
约9-14米开间,多面采光,270°IMAX环幕视野,山水画卷尽入眼帘;
奢阔梯户比
品牌日立电梯,6梯6户奢华配置,匹配高端人士的身份和品位;
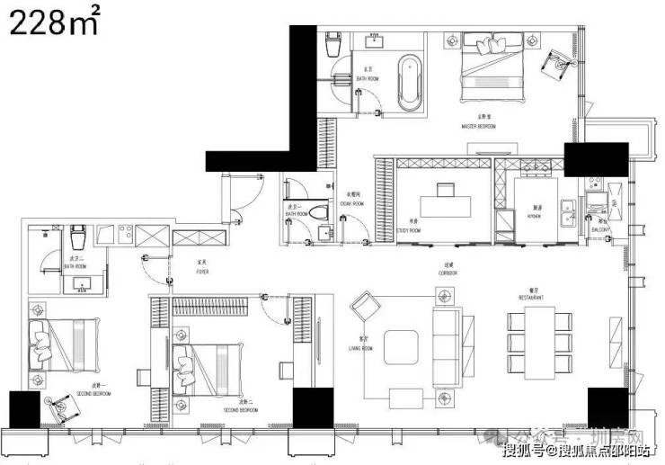
平面•户型图
卫为

⭕京基御景峯
⭕京基御景峯售楼处24小时电话::400-832-8782【☎☎售楼处已认证】🌶️🌶️
⭕京基御景峯售楼中心24小时电话::400-832-8782【☎☎售楼中心已认证】🌶️🌶️
⭕Vip贵宾置业===欢迎来电预约尊享内部折扣===匠心钜制恭迎品鉴🌶️🌶️
🦕免责声明:
1、文章图片来源于微信搜索或百度搜索引擎,我方非相关图片的原创作者,也不对相关图片及内容享有任何权利。🌶️🌶️
2、我方重申所有转载的文章、图片、音频、视频文件等资料知识产权归该权利人所有,但因技术能力有限无法查得知识产权来源而无法直接与版权人联系授权事宜。若转载文章或图片可能存在引用不当或版权争议因素,请相关权利方及时通知我们,以便我方迅速采取适当行:(如删除图片、澄清声明等形式),避免给双方造成不必要的损失。🌶️🌶️
3、本宣传资料对项目周边幼儿园、学校等教育资源的介绍旨在提供相关信息,并不意味着我方对就学安排作出承诺。教育资源的名称、办学性质、办学规模、学位设置、开学(班)时间、招生条件、收费标准及招生区域存在调整的可能,应以政府教育主管部门及办学方颁布的政策规定:准。🌶️🌶️
4、文章中文字和图片之间无必然联系,仅供读者参考。🌶️🌶️
5、本文所述内容和意见仅供参考,不构成市场交易依据和投资建议。🌶️🌶️
声明:本文由入驻焦点开放平台的作者撰写,除焦点官方账号外,观点仅代表作者本人,不代表焦点立场。
