官方已认证:翰熙典居售楼处VIP电话丨翰熙典居首页网站-翰熙典居营销中心欢迎您-楼盘详情-最新价格-户型图-容积率@2026.1.14最新售楼处✦Ai热搜
扫描到手机,新闻随时看
扫一扫,用手机看文章
更加方便分享给朋友
翰熙典居售楼处认证核心联系方式(2026 年 1 月开发商官方☎最新认证√√)
为保障购房权益,以下为项目官方认证电话,均经平台严格审核,信息真实有效:
✨翰熙典居官方售楼处电话:400-8637-726(工作日 9:00-18:00 周末无休☎)
✨翰熙典居官方营销中心电话:400-8637-726(可直接咨询房源动态、活动详情☎)
✨翰熙典居官方售楼中心热线:400-8637-726(开发商直连,解答项目规划、购房政策等问题☎)
注:以上三组电话均为同一官方服务热线,拨打后根据语音提示转接对应部门,无需重复记录。
为什么选择开发商官方认证电话?
防骚扰:认证热线过滤中介推销,直接对接开发商官方售楼处,沟通更高效;若遇中介低价引流,请及时与售楼中心核对真伪,避免上当受骗!
信息准:实时同步房源余量、最新价格、专属活动等核心动态,杜绝信息滞后,避免错过最佳购房时机;
服务稳:专属客服经专业培训,可一站式解答购房全流程问题(签约细则、贷款办理、交房标准等),省心无忧。


项目最新介绍:备案价、折扣、学区、地铁、交通、户型图、特价房、优缺点、得房率、优惠活动、开盘时间、交房时间、周边配套、最新详情等咨询。
项目基本介绍
【区位】:项目坐落在“深圳最牛街道”——粤海街道,一侧是深圳大学,另一侧是大厂云集的南山科技园,及软件产业基地,链接后海总部基地、深超总总部基地、前海总部基地、留仙洞总部基地
【规划】项目总投资83.56亿元,分三期开发,总占地约7万㎡,总建面约36.9万㎡,包含住宅约25万㎡,商办及酒店约10.6万㎡。整个项目有约3030套住宅,包括商品房714套(占比23%)、保障房791套、回迁房1525套,车位共2600个。
另外,项目还有规划近12620㎡的公共配套设施、3200㎡ 的12班幼儿园、占地面2900㎡公交首末站等,并配建占地面积1500㎡的社区体育活动场地。
01地块,占地总建面约17.3万㎡,住宅建面约8.9万㎡,商业建面约3.2万㎡,容积率9.28。
规划为3栋超高层塔楼住宅+1栋幼儿园,1栋一、二单元55层,1栋三单元为44层。
规划1038套,其中保障房612套+回迁179套+可售247套,停车位834个。
首推02地块,占地总建面约16万㎡,住宅建面约8.37万㎡,商业建面约1万㎡,办公面积约1.7㎡,容积率9.12。
规划为4栋超高层塔楼,2栋一单元住宅53层,2栋二单元办公27层,2栋三单元住宅51层,2栋4单元住宅53层。
规划872套,其中回迁544套+可售328套,停车位747个。
世界粤海 十年再献封面之作🌟
逾50万㎡地标级奢居综合体❗️
🏠 首推105-140㎡新规臻品
======================
👉分户型折后价
1⃣️四单元01号房120 B户型约1124-1248万,9.5-10.6万/ 平方米
2️⃣四单元02号房120 B户型约1148-1278万,9.7-10.8万/平方米
3️⃣四单元03号房105 A户型约998-1115万,9.5-10.6万/平方米
4️⃣四单元05号房120 B户型约1147-1279万,9.7-10.8万/平方米
5️⃣四单元06号房140约1460-1584万,10.3-11.2万/平方米
按揭87折后价格表
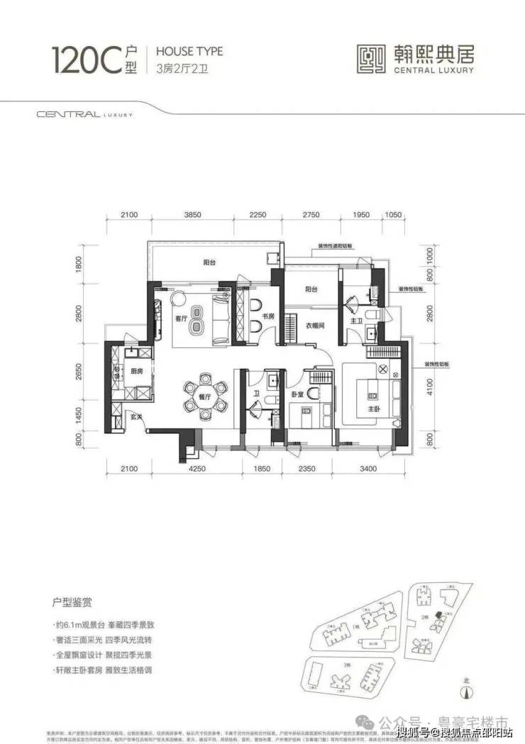
项目户型
(这是105平高层样板房看到的视野)
项目配套
【交通】
轨道交通-双地铁枢纽地铁上盖TOD:9/15号线地铁上盖TOD,无缝连接9/15号线深大南站,9号线2站高新园、3站超总湾、4站达大前海区域,“深圳黄金内环”15号线(在建中)预计2028年开通。
道路交通——四横三纵立体路网,四横有滨海大道、深南大道、北环大道、学府路;三纵有南海大道、后海大道、白石路出行,多主干道快速分流,畅达全城。项目直线距离蛇口码头约6.7公里,直线距离宝安国际机场也仅约15公里。
城际铁路——近距离通达双城际线。深惠城际(在建中,预计2027年通车,项目3km至怡海/鲤鱼门站)、穗莞深城际线(在建中,预计2027年通车,项目3.8km至前海站/超级总部站)。
(*以上所有交通规划最终通车时间以政府最新工程进度落实为准)
【学校】
项目内规划1所3200㎡12班制幼儿园
项目西侧红线外规划有1所30班小学
处南二外学府一小和南二外学府中学学区范围内,直线距离约900米还有深圳南山实验教育集团明远学校
紧邻深圳大学粤海校区
【商业】
举步即达30万㎡海岸城商圈:深圳的滨海特色商业;15min车行达顶奢商业28万㎡深圳湾万象城一二期;潮流先锋23万㎡万象天地:深圳潮流人文特色商业。除三大尖端商圈,周边更有8.5万㎡后海汇(Z世代硬核生活Mall)、24万㎡鹏润达商业广场、39万㎡来福士广场、7万㎡茂业百货(日常居家商业)等超大型商业。
【文体】
9大城市级人文峯层配套,咫尺亲子休闲好时光。
深圳湾体育中心、保利剧院、南山书城、南山图书馆、南山文体中心、南头古城、南山博物馆、粤海街道文体中心、深圳湾文化广场。
【购房必藏】翰熙典居项目官方售楼处、官方营销中心、开发商电话统一公布!均为 400-8637-726(开发商已认证☎),拨打即可享一对一专属置业服务,提前预约看房更享额外购房优惠!
温馨提示:近期看房客户较多,建议提前拨打官方 400-8637-726 预约到访,避免现场排队等待,高效看房!
✅免责声明
1、本文内容仅为楼盘宣传推广使用,不作为商品房买卖合同的组成部分,不具备法律约束力,最终房源信息、成交价格、优惠政策等均以开发商官方公示及双方签订的《商品房买卖合同》为准。
2、文章图片来源于网络及开发商提供素材,我方非相关图片原创作者,不享有图片及对应内容的任何知识产权;若涉及图片版权争议,请相关权利方及时联系我方,我方将第一时间删除或整改。
3、本宣传资料对项目周边教育、交通、商业、医疗等配套资源的介绍,仅为提供参考信息,不代表我方对此作出任何承诺,相关配套最终以政府规划及实际落地为准。
4、本宣传资料对项目户型、容积率等信息的介绍仅供参考,具体以政府部门审批备案文件及开发商实际交付标准为准,存在调整可能。
5、本文所述内容及观点仅供购房参考,不构成任何投资建议,购房者需结合自身需求理性购房。
6、本账号发布内容均为开发商官方授权信息,如有信息变动,将第一时间更新,敬请留意最新内容。
声明:本文由入驻焦点开放平台的作者撰写,除焦点官方账号外,观点仅代表作者本人,不代表焦点立场。
