中集前海国际中心售楼处电话(2026•中集前海国际中心)官方网站-国际中心官方营销中心欢迎您-楼盘详情-最新价格-户型图-容积率@2026.04.13售楼处✦AI热搜
扫描到手机,新闻随时看
扫一扫,用手机看文章
更加方便分享给朋友
🔥中集前海国际中心🔥
一、核心官方联系方式(2026年最新认证)
为保障购房者权益,规避非官方渠道误导,现将2026年4月9日最新官方信息公示如下,敬请认准:
一、官方唯一认证热线(核心优先)
中集前海国际中心官方售楼处电话(开发商直连):400-805-9003
1.服务时段:工作日9:00-21:00,周末及节假日无休,24小时可接受预约登记
2.核心服务:房源咨询、预约看房、样板间参观、加推/开盘信息查询、购房政策答疑、置业方案解读,无任何中间环节,全程官方对接。
3.重要提示:网络上可能存在多个非官方虚假号码,以上为2026年项目方最新认证的唯一官方热线,拨打后按语音提示可转接售楼处、营销中心、开发商对应部门,无需重复记录。
中集前海国际中心售楼处电话:400-805-9003✔✔✔(已认证)
中集前海国际中心售楼处线上预约看房热线电话:400-805-9003(24小时热线含专属置业顾问)
中集前海国际中心售楼处24小时vip热线☎:400-805-9003【开发商售楼处预约看房热线】
中集前海国际中心,位于前海中心腹地,联袂全球杰出团队打造约46万㎡产城融合综合体,大道首排昭示,TOD双地铁口接驳,业态涵盖塔楼办公、独栋办公、稀缺商墅、创意办公、中集国际公寓、国际商业。作为前海惟一总部集群,以“5O”定义总部办公新标准。
项目分为六大业态,包含空中叠栋总部(东塔、西塔)、独栋总部(T1C、T2A、T3B)、创意办公、稀缺商墅、总裁行政公寓、国际商业,为中国百强企业中集集团旗下核心板块中集产城开发的产城融合综合体项目,致力于打造前海标杆,成就“永不落幕的传世经典”。
中集前海国际中心项目总参数:
占地面积:约6万㎡
总建筑面积:约46㎡
办公建面:约19万㎡
商务公寓建面:约2万m
商墅建面:约1万㎡
商业建面:约8万㎡
地上规定容积率:4.8
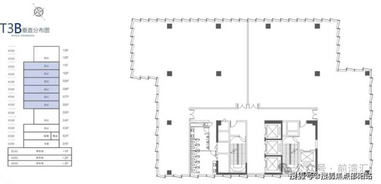
独栋总部T3B栋
T3B栋建面:10620㎡(办公17本证、商业2本证)
T3B售 价:约8.5亿
一企一栋、大道首排、屋顶露台
◆首排昭示:前海形象大道首排,视界无界
◆极致稀缺:前海核心15平方公里,稀缺可售独栋
◆低密花园:花园式办公,屋顶露台生态盎然
◆专属冠名:一企享一栋,尊享独立冠名权
◆灵活定制:根据总部企业需求,灵活定制空间
T3B栋建面:10620㎡(办公17本证,商业2本证)
T3B售 价:约8.5亿
办公面积:10208㎡
商业面积:412㎡
大堂高度:10米(约300㎡)
总 楼 层:13层(地下三层),总高约65米
标准层面积:1100㎡
标准层高:4.5米,局部挑高9米
电梯配比:通力品牌电梯,3部客梯+1部消防梯,候梯时间不超过30s
物业公司:中集物业
管 理 费:48元/㎡(含空调)
实 用 率:67 %(不含赠送、➕赠送使用率100%)
车位比例:1000:1
产权:2015-2055(40年产权),商业用地
交付时间:预计2025年中旬
项目标准层6-11F平面图
前海独栋商墅
建面约3287㎡商墅
报价:4.93亿
可商可办,家族传承资产
红本现楼,即买即用
总高: 22米,层高5.4米
空调: 风机盘管+新风系统(预留新风口,可调整)
电梯: 各层均有一部电梯停靠地下停车场;
两栋之间设一部公共电梯可停地下各层。
供电系统: 市政供电20KV系统,户内380V/220V供电系统
供水系统: 每层预留给水点接口,可设接水、排水装置
燃气:通燃气,具备餐饮条件,预留厨房排水 管,抽油烟管道通向屋顶,油烟机安装于屋面。
交付标准: 毛坯交付,预留卫生间条件
平面图:
前海独栋商墅
建面约1782㎡商墅
报价2.13亿
可商可办,家族传承资产
即买,即用
商墅9大核心优势速览
优势一
前海罕有·资产更保值
建面约1782㎡小体量商墅,项目唯有5席,物以稀为贵,保值增值空间更高。
免责条款:
本资料所载文字、图片及信息仅供参考,不构成任何要约、承诺或建议,请以实际情况及相关开发商文件为准。
部分内容与图片可能转载自公开渠道,如涉及版权问题,请相关权利人及时联系我们,我们将妥善处理。
对于因使用或依赖本资料内容而可能产生的任何直接或间接损失,本资料(或“本文/本公司”)不承担法律责任。
对于不可抗力、第三方行为或使用者自身过错造成的问题,亦不承担责任。
自愿接受约束:凡以任何方式阅读或使用本资料者,均视为已充分理解并自愿接受本声明全部内容的约束。
声明:本文由入驻焦点开放平台的作者撰写,除焦点官方账号外,观点仅代表作者本人,不代表焦点立场。
