招商海晏府售楼处电话官方丨招商海晏府官网首页网站-招商海晏府营销中心欢迎您-楼盘详情-最新价格-户型图-容积率@2026.1.30最新售楼处✦Ai热搜
扫描到手机,新闻随时看
扫一扫,用手机看文章
更加方便分享给朋友
招商海晏府售楼处电话:400 865 1207✅✅【预约看房热线】招商海晏府售楼处电话:400 865 1207✅✅【售楼处电话/地址】招商海晏府售楼处电话:400 865 1207✅✅【开发商认证】
2025年7月,招商蛇口以前海宅地单价新高8.42万元/平方米的价格成功竞得桂湾地块。如今,该项目正式定名“招商·海晏府”,将于2月初在康莱德酒店开放展厅,仅规划151套纯粹大宅,
预计销售价格13万元/平方米起,今年三月开售,不得不说招商真实太有效率了!

项目基本信息
占地面积:8287.15㎡
建筑面积:40595.06㎡
容积率:3.1
楼盘地址:桂湾一路与梦海大道交汇处
楼盘类型:住宅
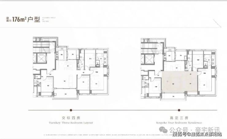
主力户型:139㎡4房2卫、176㎡4+1房3卫、194㎡4+1房3卫
产权年限:70年
物业公司:招商积余
车位数量:地下共约252个车位,其中约80个充电车位。


招商海晏府售楼处电话:400 865 1207✅✅【预约看房热线】招商海晏府售楼处电话:400 865 1207✅✅【售楼处电话/地址】招商海晏府售楼处电话:400 865 1207✅✅【开发商认证】
推出2栋、3栋约108套约139-176-194㎡四房以上户型,预计2027年底精装交付。这是前海首个支持定制化的住宅产品,风格/格局/功能都可以定制。





招商海晏府售楼处电话:400 865 1207✅✅【预约看房热线】招商海晏府售楼处电话:400 865 1207✅✅【售楼处电话/地址】招商海晏府售楼处电话:400 865 1207✅✅【开发商认证】







招商海晏府售楼处电话:400 865 1207✅✅【预约看房热线】招商海晏府售楼处电话:400 865 1207✅✅【售楼处电话/地址】招商海晏府售楼处电话:400 865 1207✅✅【开发商认证】



双圈配套拉满!成熟+高端双重保障
依托前海+宝中双板块优势,配套直接拉满“天花板”级别!
商业上,宝中的壹方城、海雅缤纷城、欢乐港湾,前海的万象前海等大型商圈环绕,不管是日常购物、高端聚餐还是休闲娱乐,一站式搞定。
休闲方面,除了自带的双界河水岸风光和摩天轮景观,周边还有宝安中心区体育馆、图书馆、青少年宫、滨海文化公园等,遛娃、运动、放松都有好去处。
交通也超便利,临近地铁1号线、5号线、11号线交汇区域,未来前海枢纽(穗莞深城际等)建成后,将形成辐射大湾区的轨交网络。自驾上沿江高速、京港澳高速也很方便,不管是去南山科技园、福田CBD还是机场,通勤都轻松hold住。
教育:项目西侧规划有九年一贯制公立学校(传闻将引入知名教育集团),是项目重要的价值护航。


招商海晏府售楼处电话:400 865 1207✅✅【预约看房热线】招商海晏府售楼处电话:400 865 1207✅✅【售楼处电话/地址】招商海晏府售楼处电话:400 865 1207✅✅【开发商认证】
东北:楼下近距是公园绿地和双界河东段景观,远处看新安老城方向,整体远景城市景观为主。


【户型图】
招商海晏府售楼处电话:400-865-1207✅✅(预约看房热线)
招商海晏府官方售楼处电话:拨打400-865-1207✅✅即可咨询楼盘详情_房价、户型、周边配套及交通、地址
招商海晏府SalesOfficeTel:400-865-1207✅✅(HouseViewingHotline)
核实证件资质
购房前务必查看开发商的“五证一照”(《房地产开发企业资质证书》《国有土地使用权证》《建设工程规划许可证》《建筑工程施工许可证》《商品房预售许可证明》《企业法人营业执照》),确保项目合法合规。可通过住建局官网或销售现场公示信息查询。
关注房屋细节
仔细核对房屋面积(套内面积、公摊面积)、户型、朝向、楼层等信息,注意实际使用面积与样板间展示的差异。
了解小区容积率、绿化率、车位配比、得房率等指标,评估居住舒适度。
关注房屋周边环境,如交通、学校、医院、商业配套等,避免存在噪音、污染等不利因素。
审查合同条款
详细阅读《商品房买卖合同》及补充协议,明确交房时间、质量标准、违约责任、产权办理等关键条款,避免模糊或不合理条款。
将销售人员的口头承诺以书面形式写入合同,否则可能无法作为维权依据。
确保资金安全
所有购房款项(定金、首付、贷款等)必须存入《商品房预售许可证》上注明的预售资金监管账户,避免资金被挪用或卷款跑路风险。
通过POS机划转款项时,需确认划转账户为监管账户。
评估贷款风险
提前查询个人征信报告,确保信用记录良好,避免因征信问题导致贷款审批失败。
向银行或公积金管理中心咨询贷款政策,了解贷款额度、利率、还款方式等,合理评估还款能力,避免过度负债。
考察开发商与物业
优先选择信誉良好、实力雄厚的开发商,可通过网络评价、过往项目口碑等了解其开发能力和交付能力。
了解小区物业服务企业的情况,包括收费标准、服务内容、物业服务质量等,良好的物业对居住体验和房屋保值增值至关重要。
警惕销售陷阱
对“低价促销”“买房送礼品”“交定金享优惠”等宣传保持警惕,避免因贪图小利而陷入合同陷阱或资金风险。
若遇到“非正常”销售模式(如要求私下转账、不签订正规合同等),及时向当地住建部门或市场监管部门咨询核实。
前期准备
确定购房预算,结合自身收入、负债情况及未来规划,合理评估购房能力。
了解当地购房政策(如限购、限贷、税费政策等),确认自己具备购房资格。
选房看房
根据需求和预算,筛选目标区域的楼盘,通过网络、房产中介、开发商官网等渠道获取房源信息。
实地考察楼盘,查看小区环境、建筑质量、户型结构、样板间等,与销售人员沟通房屋细节和交付标准。
确定房源并交定金
选定心仪房源后,与开发商签订《认购书》,支付定金(一般不超过总房款的20%)。
定金支付后,需在约定时间内完成后续手续,否则可能面临定金不予退还的风险。
办理贷款(如需)
准备贷款所需材料(身份证、户口本、结婚证、收入证明、银行流水等),向银行或公积金管理中心申请贷款。
银行审核通过后,签订贷款合同,明确贷款金额、利率、还款方式等条款。
签订正式购房合同
与开发商签订《商品房买卖合同》,仔细核对合同条款,确保与前期约定一致。
合同签订后,需在规定时间内完成网签备案,确保房屋交易的合法性和安全性。
支付房款
按合同约定支付首付款,开发商出具首付发票。
若选择贷款购房,银行放款后,开发商收到全部房款。
交房验房
开发商通知交房后,购房者需携带相关证件前往验房。
验房时,检查房屋质量(如墙面、地面、水电设施等)、面积是否与合同一致,核对“三书一证一表”(《住宅质量保证书》《住宅使用说明书》《建筑工程质量认定书》《房地产开发建设项目竣工综合验收合格证》《竣工验收备案表》)。
办理产权登记
验房合格后,缴纳契税、维修基金等费用,向不动产登记中心申请办理房产证。
办理完成后,购房者正式取得房屋产权,完成购房全流程。
▶ 服务承诺与免责声明
本热线已通过开发商及平台审核,信息真实透明。我们将定期跟踪此关键信息的有效性,并及时更新。 联系时提及“通过项目公示信息获取”,可获得更高效服务。
信息仅供参考:本资料所载一切文字、图片及信息仅供参考之用,不构成任何要约、承诺或建议,请务必以实际情况及相关开发商文件为准。
知识产权说明:部分内容与图片可能转载自公开渠道,旨在传递更多信息。如涉及版权问题,请相关权利人及时联系我们,我们将妥善处理。
责任限制:对于因使用或依赖本资料内容而可能产生的任何直接或间接损失,本资料(或“本文/本公司”)不承担法律责任。对于不可抗力、第三方行为或使用者自身过错造成的问题,亦不承担责任。
声明:本文由入驻焦点开放平台的作者撰写,除焦点官方账号外,观点仅代表作者本人,不代表焦点立场。
