鸿荣源尚云售楼处电话丨鸿荣源尚云首页网站-鸿荣源尚云营销中心欢迎您-楼盘详情-最新价格-户型图-容积率@2025.11.06最新售楼处✦Ai热搜
扫描到手机,新闻随时看
扫一扫,用手机看文章
更加方便分享给朋友
💫鸿荣源尚云💫(开发商认证)
为保障购房权益,以下为项目开发商认证电话,均经平台严格审核,信息真实有效:
💫鸿荣源尚云营销中心电话☎:400-870-6038【营销中心已认证】(一对一热情服务)
💫鸿荣源尚云售楼处电话☎:400-870-6038【售楼处已认证】(一对一热情服务)
💫鸿荣源尚云开发商电话☎:400-870-6038【开发商已认证】(一对一热情服务)
💫鸿荣源尚云展示中心电话☎:400-870-6038【展示厅已认证】(一对一热情服务)
⭐Vip Tel:400-870-6038(售楼处电话/营销中心电话/24小时热线/开发商售楼处/销售中心已认证)
◾在售户型图丨项目介绍丨最新房源丨周边配套丨详细解答〢
【鸿荣源尚云】109-120㎡宽境藏品 压轴劲销!
超级商圈 · 双地铁口 · 今年买今年住

「 项目基本信息 」
占地面积:约2.7万㎡
首推套数:约666套
产品类型:约109-120㎡ 4房2卫
产权年限:70年(2022-2092)
物业管理:鸿荣源物业
交房标准:带装修
交房时间:2025年12月31日

项目价值点
超级商圈蓝图展开,海量旧改蝶变在即🦋
四地铁线规划在建,密集路网速达全市🛣
🏓15min醇熟文体圈,省级示范旗舰商业🛍︎
目送式九年一贯制学校,扬帆无忧未来
🏗城市标杆项目缔造专家,百强物业护航☘
鸿荣源品质把关,尚系新作,载誉而来
「 龙华超级商圈,世界级消费中心 」
⭐龙华超级商圈:龙华六大重点片区之一,以人民路为中轴,规划承载中洲龙商旧改、龙华海岸城旧改为核心,打造人民路龙华超级商圈。
⭐世界级消费中心:未来龙华超级商圈将成为规模超200万㎡、产值超500亿的市级核心商圈和世界级未来消费体验中心。

「 千万级旧改汇聚,品牌房企布局 」
⭐鸿荣源、中洲、卓越、华润、华侨城等品牌开发商抢滩登陆龙华中心,区域定位以及发展潜力得到了各大优质开发商的一致认可。
⭐龙华商业中心旧改、海岸城旧改、华润上塘旧改、德业基旧改四大百万级旧改汇聚,打造龙华区规模最大、业态最全、档次最高的居住区域。
「 鸿荣源前瞻落子,龙商旧改首发」
⭐百万级旧改蓄势,世界级商圈落位。鸿荣源抢占城市发展先机,率先布局,打造龙华商业中心城市更新单元首发人居臻品。

「 五地铁汇聚,打造全新城市枢纽 」
⭐4号线(已开通)龙华站直线距离约1000m,深圳纵向城市交通中轴。
⭐25号线(在建)景龙/油福站直线距离约400m,打通城市东西走向核心动脉。
⭐27号线(在建)油福站直线距离约400m,拥抱前海,覆盖各大高新人才聚集地。
⭐22号线(在建)油松站直线距离约1km,连接福田-龙华各大核心产业区。
33号线-深大城际(规划):龙胜站出发,约20分钟即可直达宝安机场
「 15min醇熟生活圈,路网纵横,一站式生活体验」
⭐龙华对标福田南山,各项市政配套、高端生活配套、生态配套及交通配套等目前均处在成果兑现期,未来将打造成为全新的城市级服务中心。
⭐3km内,包含红山四馆、深圳书城、龙华文体中心、文化艺术中心、简上体育馆、龙华文化广场、文化馆新馆等多元文体配套环伺。
⭐通过福龙路、新彩隧道、沈海高速、梅观高速等城市主干道,可直达福田、罗湖、南山以及关外各个区域,已形成醇熟便捷的深圳生活圈。

「约60万㎡旗舰商业,省级示范商圈」
⭐深圳最大的旗舰商业集群,2022年,壹方天地荣膺全国五大热门消费商圈,2023年春节全国购物中心热度第五,深圳第二。

⭐云集超1000家品牌商家,其中网红轻奢餐饮超50家、品牌美食超90家、娱乐潮玩超20家、国际一线美妆超20家、潮流服饰超300家。

「临近九年一贯制学校,目送式上下学」
⭐项目一路之隔即为深圳市艺术高中民治学校(在建),目送式上下学。定位示范性国际化学校,全校可提供学位2520个,2023年已开始招生。

「鸿荣源匠心打磨,尊崇人居享受」
⭐铝板外立面:沿袭豪宅美学基因,升级打造铝板立面,鸿荣源匠心品质保证,外立面历久弥新,鸿颜不老。
⭐奢阔主入口:总高约10米,天然石材搭配不锈钢材装饰,营造高奢归家礼遇
⭐轻奢酒店风格入户空间:石材+香槟金铝板打造,营造朗阔归家体验
⭐高速电梯:日立电梯,平均速度4m/s,生活无需等待

⭐双层园林景观:让每一寸空间都成为业主的舒心领地
⭐多组团园林设计:多元景观融合,繁忙都市生活中的林谷氧吧
⭐多模块架空层:艺术/休闲/玩趣/运动四大模块,打造全龄适配休闲场所

「三十二年深耕,城市标杆缔造者」
⭐鸿荣源多年来坚持投身粤港澳大湾区建设一线,依托深圳,深耕湾区,综合开发建筑面积超千万平米,服务客户逾4万户。
⭐所到之处,必树标杆。如前海鸿荣源胤璞、前海熙龙湾、宝中壹方中心、香蜜湖的熙园、龙华中心区的壹城中心等,均为片区人居标杆项目。

⭐中国百强物业:鸿荣源物业为国家物业管理一级资质企业,2018-2022连续五年中国物业服务百强企业,2022年荣获中国物业服务品质领先品牌。
⭐鸿领管家式服务体系:严格遵循四大准则,39项标准,24小时快速响应机制,为客户提供有温度的服务。
⭐业主特色服务:重要节日习俗组织举办特殊的节日活动,促进和谐邻里关系的建立。

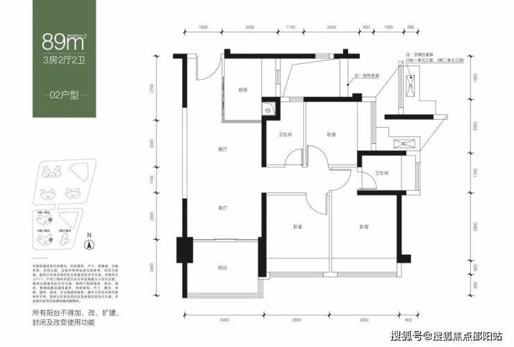
户型赏析
💫💫鸿荣源尚云开发商电话:400-870-6038(开发商已认证)项目基本信息,楼盘价格,区域板块,开发商资料,楼盘详细地址,物业类型,产权年限,销售信息,销售状态,装修情况,交房时间,开盘时间,售楼处地址,营销中心地址,楼盘户型图,小区规划,绿化率,容积率,占地面积,建筑面积,总户数,物业费,车位数,物业费,楼盘介绍,踩盘报告,梯户比,标准层高,交楼标准,项目有缺点有哪些?是否有团购?找开发商买房便宜?还是找中介买房便宜?最新折扣是多少?最新房价是多少?房价走势,楼盘最新资讯,楼盘最新动态,价值分析报告,周边商业配套,教育配套,交通配套,医疗配套,周边热门楼盘,房价行情解读
💫鸿荣源尚云售楼处电话:400-870-6038(工作日9:00-21:00,周末无休)
💫鸿荣源尚云营销中心电话:400-870-6038(可直接咨询房源动态、活动详情)
💫鸿荣源尚云开发商售楼部热线:400-870-6038(开发商直连,解答项目规划、购房政策等问题)
注:以上三组电话均为同一开发商服务热线,拨打后根据语音提示转接对应部门,无需重复记录!
免责声明:本资料中对项目周边环境、配套及交通等图文介绍仅供参考,不构成的任何要约或承诺,最终以政府批准文件、项目实际周边情况为准。本项目的图文资料仅供参考、非要约,具体以交付时现状及买卖合同的约定为准。本公司保留修改宣传资料的权利,敬请留意项目最新资料,最终的解释权归本公司所有。
声明:本文由入驻焦点开放平台的作者撰写,除焦点官方账号外,观点仅代表作者本人,不代表焦点立场。
