2025楼市热搜:荔源雅苑售楼处电话→荔源雅苑首页热搜24小时电话→最新房价→楼盘百科详情→营销中心最新发布@售楼处中心2025.9.6
扫描到手机,新闻随时看
扫一扫,用手机看文章
更加方便分享给朋友
人生首套买在南山荔源雅苑
科技园之上·学府旁·地铁12号线·现楼
南山科技园抄底价💠买到即赚到
项目基本信息
占地面积:约6249.71㎡
建筑面积:约34182.59㎡
物业类型:住宅
容积率:约3.52
绿化率:约34.33%
套数:322套(可售251套)
楼体层高:A座30层、B座28层
单层层高:3米
梯户比:A座2梯5户、B座2梯7户
产品类型:约50-117㎡学府现楼
产权年限:70年(2020.3-2090.3)
物业费:6.68元/㎡/月
物业公司:深圳万家好物业服务有限公司
项目地址:南山·科技园·教科院同乐实验学校旁
—————项目八大核心价值——————
【区域】南山科技园,总部都市居住核心区
【交通】地铁12号线,四横两纵多维路网
【优教】近邻南山教科院同乐实验学校
【配套】悦享南山、宝安双中心醇熟配套
【住区】南山稀缺低密度纯居精致社区
【精著】铝板立面奢级选材,新中式园林
【臻席】约50㎡小户 、89-117㎡品质美宅
【现楼】实景兑现,现楼所见即所得
🪽【尽在南山】 科技园之上 总部居住核心区
毗邻科技园,集前海、后海、深圳湾等总部基地发展利好,汇聚全球前沿科创菁英,承载超百万高净值人群居住、生活需求,成就总部都芯生活主场。
高新科技园(东向约3km):国家创新型城市的核心区域,就业人口约60万人。
前海深港合作区(西南向约4km):定位国家战略性门户枢纽,未来将打造成世界级城市新中心,规划就业人口约65万人,居住人口15万人。
后海金融总部基地、深圳湾超级总部基地(东南向约6km):中国总部企业最为密集区域之一,规划就业人口约为54万人。

🪽【浸润书香】家门口一站式优质教育 目送式书香学府
直线距离约100m九年一贯制区属公办教科院同乐实验学校,作为南山区首个教科院系实验学校,以区教科院为智库,为儿女成长提供优质教育平台。
近邻“深圳十强、广东省二十强”博纳学校、公办18班华泰幼儿园,人文优教荟萃,护航孩子成长。
教科院:曾创办南山第二外国语学校,现已发展为南山第一梯队名校。教科院同乐实验学校是教科院成立以来的第一所实验学校,预计承袭南二外的成功经验和成果。
🪽【进阶效率】地铁12号线旁 立体多维路网
地铁:
12号线同乐南站(直线约800m),4站到宝中和科技园,5站到前海和后海;
15号线(建设中)同乐关站(直线约1.5km),2站到西丽高铁站,贯穿前海、后海、南山、宝安等重要片区,环经济发展核心区域。
另有13号线(建设中)等多轨交汇,高效出行。
立体交通:
邻近未来深圳最大高铁站一一西丽高铁枢纽(在建中);享南坪快速等“四横两纵”交通路网。
🪽【近在掌握】双中芯黄金生活圈 醇熟生活配套环伺
畅享全维高端醇熟配套,丰盈资源汇聚,尽揽中芯繁华,定义城市理想人居范本。

🛒商业配套:
一路之隔约1万㎡隆尚Minitown(已开业),云城万科里、海雅缤纷城及壹方城环绕近享,万象天地、深圳湾万象城、海岸城、万象前海四大商圈辐射,集萃南山、宝中双区成熟商圈,尽揽一城璀璨繁华。
医疗配套:
南山区人民医院、宝安区人民医院、宝安中医院等三甲医院以及南山区中医院(在建),优渥医疗资源,护航健康生活。
生态配套:
周边规划约2.5万㎡公园绿地,近享铁路文化公园、中山公园、新安公园,城市绿氧触手可及。
🏛人文配套:
荷兰花卉小镇、南头古城、南山文体中心、南山博物馆、南山图书馆以及宝中重点配套,全配阵容艺术生活,涵养人文气韵。
🪽【境在低密】纯居社区 入住南山高阶格调生活
⭐秉承奢居美学基因,甄选铝板及干挂石材为主要用材匠筑外立面,建筑颜值历久弥新。
以“轻氧森居、活力社交”为核心理念,打造全龄社交空间,兼具美学颜值与低密舒居,敬呈一城所向的理想生活。
高颜值外立面,著立一座城的美学峯面
『城市峯面』:双层夹胶low-e玻璃+铝板线条外立面,配置一体化系统窗,同频豪居审美。
精奢住区,细节铺就高格调生活底色
🪽【仅在当下】实景低密现楼 见证你所预见
容积率约3.52墅级低密住区,现楼呈现,幸福无需久侯。
南山难得中小户型,以品质、人性化理念,匠造建面约50-52㎡南山稀缺2功能空间、89㎡南向园景3功能空间、臻稀117㎡南北通透4功能空间,敬献时代菁英。
🪽【敬献服务】万家好物业细节服务 有度生活
27年服务经验,服务面积超100万㎡,拥有园林绿化和清洗保洁两个国家一级资质,以专业的物业服务团队与服务理念,提供专业化、智能化、一站式管理服务,畅想社区美好生活。
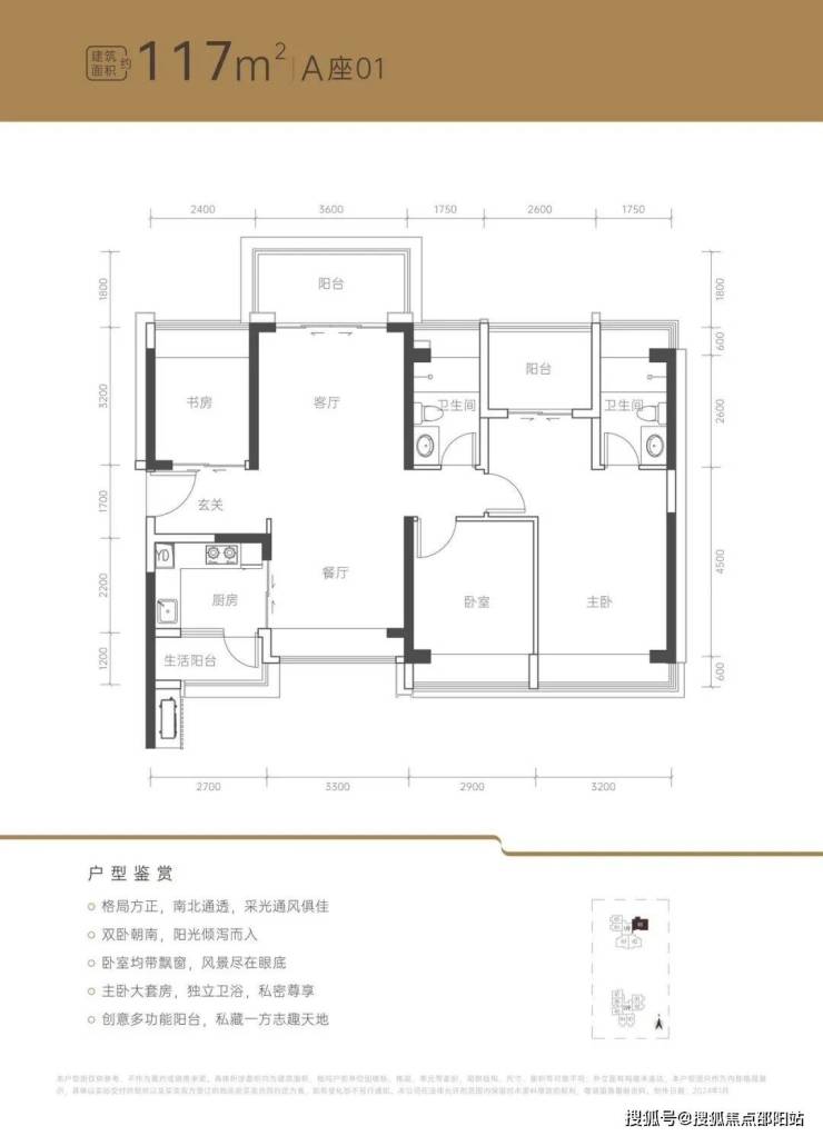
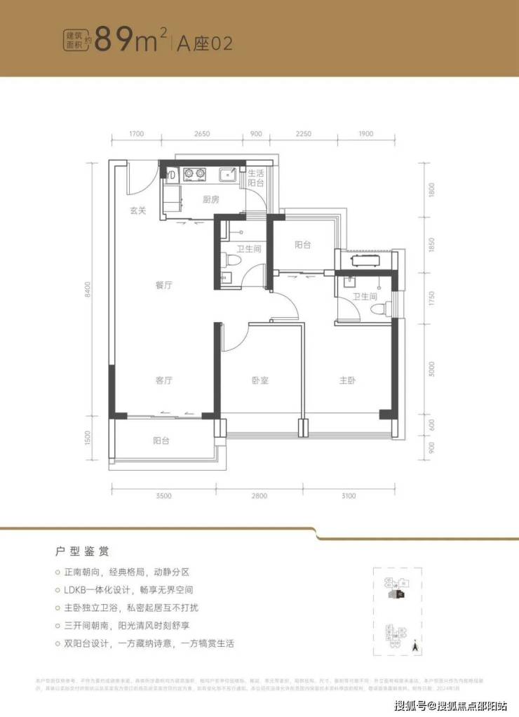
🪽【户型鉴赏】南山唯此50㎡,买到即赚到
项目总平图
建面约50㎡2功能空间
全明户型;客厅带飘窗;无过道零空间浪费
建面约89㎡正南3功能空间
三开间正南朝向;动静分区
建面约117㎡南北通透4功能空间
南北通透;四开间朝南;端头位;卧室均带飘窗
声明:本文由入驻焦点开放平台的作者撰写,除焦点官方账号外,观点仅代表作者本人,不代表焦点立场。
声明:本文由入驻焦点开放平台的作者撰写,除焦点官方账号外,观点仅代表作者本人,不代表焦点立场。
