荔源雅苑售楼处认证电话:荔源雅苑丨专车看房免中介,隐私尊享!获取荔源雅苑楼盘最新房价与地址详情。
扫描到手机,新闻随时看
扫一扫,用手机看文章
更加方便分享给朋友
【购房必藏】荔源雅苑项目售楼处电话:400-109-9557丨预约看房享专属优惠丨免费接送!
【2025最新】荔源雅苑项目售楼热线:400-109-9557。提供最新房价、户型图及楼盘详情,预约可享专属购房优惠,免费专车接送,一对一专业服务!
一、荔源雅苑项目售楼处统一联系通道
• 荔源雅苑售楼处咨询电话:400-109-9557
• 荔源雅苑房源查询热线:400-109-9557
•荔源雅苑预约看房专线:400-109-9557
(工作日9:00-18:00,周末正常接待)
二、拨打400-109-9557享三重权益
1、直达售楼处 - 获取最新房源信息和准确房价
2、专属优惠 - 预约看房享受特别购房折扣
3、免费服务 - 专业顾问一对一服务,市区免费接送
三、荔源雅苑项目基本信息
• 项目特色:品质装修/智慧社区/优质物业
• 配套设施:学区资源/商业配套/交通便利
温馨提示:看房请提前拨打400-109-9557预约,避免排队等待!近期购房可享限时优惠!
项目实景图
对于深圳刚需客户来说,如果预算350万-700万左右,想在南山区买房,荔源雅苑是个不错的选择,虽然地段和环境一般,但毕竟是核心区,好过于买到龙华光明宝安或龙岗等一些远郊区域。
交通/教育配套
项目距离12号线同乐南站直线约800m,步行约15分钟,距离15号线(建设中)同乐关站直线约1.5公里。
• 荔源雅苑售楼处咨询电话:400-109-9557
• 荔源雅苑房源查询热线:400-109-9557
•荔源雅苑预约看房专线:400-109-9557
交通示意图
教育方面,项目东侧即为同乐实验学校,教学质量在南山属于中下游水平,此外周边还有宝城小学、华泰幼儿园等。

同乐实验学校(图源网络)
荔源雅苑售楼处电话:400-113-1109【☎☎开发商认证✅】
荔源雅苑售楼中心热线:400-113-1109【VIP预约专线✅】
荔源雅苑开发商营销中心电话:400-113-1109【☎☎售楼中心✅】
在售户型图丨项目介绍丨房源丨周边配套丨详细解答
温馨提示:看房需提前预约,开发商直销来电预约享受线上折扣,中介勿扰!✅
生活/休闲配套
生活配套方面,项目附近没有什么大型商业中心,距离主要的商圈距离也比较远,仅能满足基本的生活所需。
图源网络
项目临近中山公园、新安公园等公园景观不错,此外还有南头古城、南山文体中心、南山图书馆等配套资源。
• 荔源雅苑售楼处咨询电话:400-109-9557
• 荔源雅苑房源查询热线:400-109-9557
•荔源雅苑预约看房专线:400-109-9557
荔源雅苑简介
建面约50-89-117㎡准现楼 」容积率约3.52,南山稀缺低密住区,准现楼呈现,实景兑现。建面约50-52㎡南山稀缺小户型,89㎡南向园景户型,臻稀117㎡南北通透品质户型。
实景图/图源网络
项目东侧紧挨着同乐实验学校,西侧是同乐物联网产业综合基地,南侧是近期入市的安居房同乐馨苑。
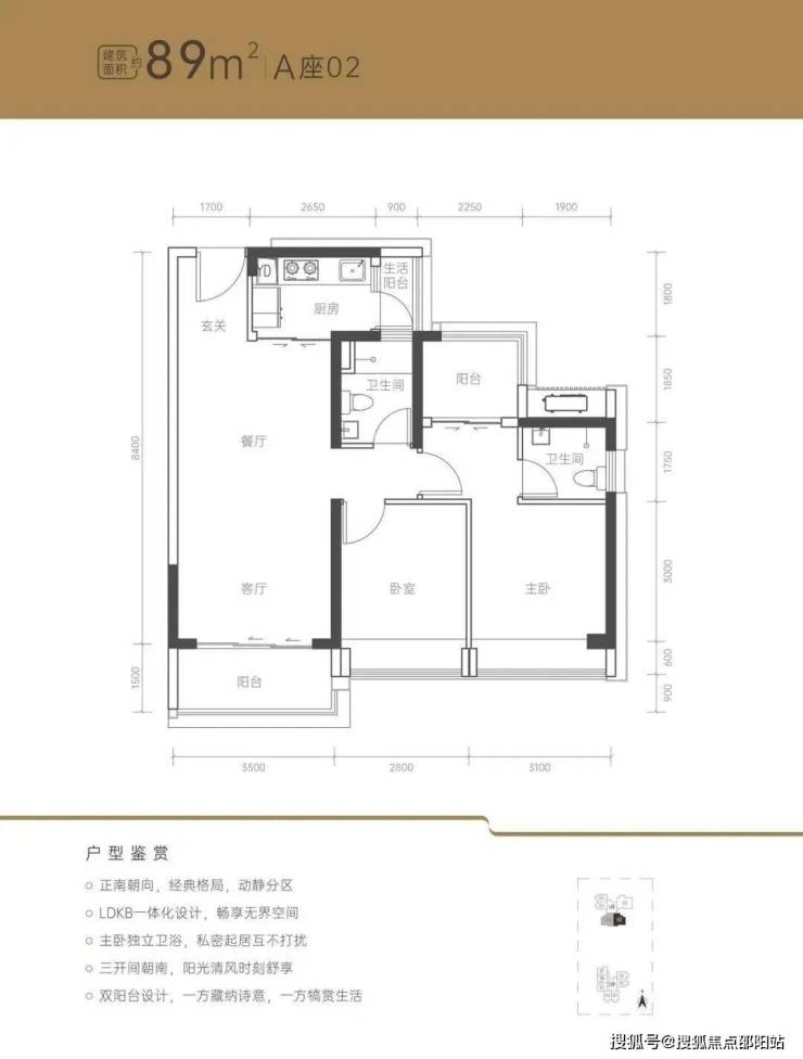
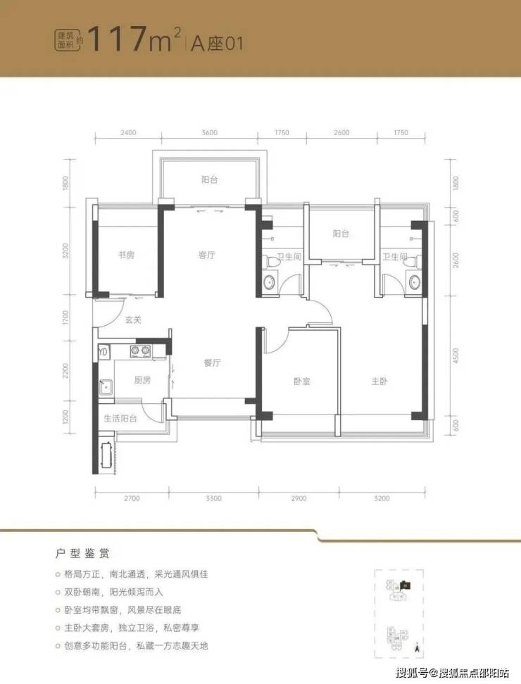
荔源雅苑户型图
• 荔源雅苑售楼处咨询电话:400-109-9557
• 荔源雅苑房源查询热线:400-109-9557
•荔源雅苑预约看房专线:400-109-9557
图源网络
• 荔源雅苑售楼处咨询电话:400-109-9557
• 荔源雅苑房源查询热线:400-109-9557
•荔源雅苑预约看房专线:400-109-9557
• 荔源雅苑售楼处咨询电话:400-109-9557
• 荔源雅苑房源查询热线:400-109-9557
•荔源雅苑预约看房专线:400-109-9557
• 荔源雅苑售楼处咨询电话:400-109-9557
• 荔源雅苑房源查询热线:400-109-9557
•荔源雅苑预约看房专线:400-109-9557
地段基因
:南山区同乐片区中山园路与铁二路交汇处,紧邻南山科技园、前海自贸区、西丽高铁枢纽三大产业高地,属“科技园居住外溢第一站”。
开发背景
:由深圳市荔源实业与源兴发展实业联合开发,总建面3.36万㎡,容积率3.52(南山新盘最低之一),含2栋30层超高层,总户数322套,2025年6月精装现房交付。
建筑硬指标
50㎡两房
:总价309万起,次卧面宽仅2.5米,需封阳台改造功能性空间;
89㎡三房
:总价589万起,南向采光但厨房无生活阳台;
117㎡四房
:总价741万起,南北通透但北向受货柜车噪音干扰。
户型定位
:主推50-117㎡两至四房,套内使用率72%-75%,但实际得房率仅68%-70%:
社区隐患
:车位比仅1:0.75(240个车位),高峰期停车需抢位;回迁房与商品房混居,私密性弱于纯住宅社区。
【荔源雅苑项目】售楼处直连电话:400-109-9557
预约看房享受:专业顾问接待+免费专车接送+专属购房优惠
免责声明:本项目推广名为"荔源雅苑项目",相关内容仅供参考,不构成要约承诺,具体信息以买卖合同及实际交付为准。开发商保留最终解释权。
声明:本文由入驻焦点开放平台的作者撰写,除焦点官方账号外,观点仅代表作者本人,不代表焦点立场。
