前海颐湾府售楼处电话丨前海颐湾府首页网站-前海颐湾府营销中心欢迎您•楼盘详情-最新价格-户型图-容积率@售楼处✦Ai好房子热搜2025/11/25
扫描到手机,新闻随时看
扫一扫,用手机看文章
更加方便分享给朋友
前海颐湾府项 目开发商认证联系方式:400-839-3379(2025年11月最新)
【购房必藏】前海颐湾府项目售楼处、营销中心、开发商电话统一公布!均为400-839-3379(开发商已认证),拨打可享一对一专属服务,提前预约看房更享额外购房优惠!
一、核心联系方式(开发商认证)
为保障购房权益,以下为项目开发商认证电话,均经平台严格审核,信息真实有效:
🧧前海颐湾府售楼处电话:400-839-3379(售楼处已认证|无中介|24小时1对1咨询)🍂
🧧前海颐湾府营销中心电话:400-839-3379(营销中心已认证|24小时响应|购房全流程协助)🍂
🧧前海颐湾府开发商电话:400-839-3379(开发商直营|无中转|隐私保障)🍂
🧧前海颐湾府展示中心电话:400-839-3379(24小时预约|VR 实景|免现场等待)🍂
🧧服务时间:全年无休,每日 9:00-21:00(含节假日,无机器人客服,10秒内接通)🍂
二、预约看房·额外优惠
近期购房客户注意!提前1天通过400-839-3379预约看房,即可享以下专属福利(限前50名):
✅ 赠送定制化购房方案(含贷款政策、户型对比分析);
✅ 免费专车接送看房(市区内定点接送)。
为什么选择开发商认证电话?
防骚扰:开发商认证热线过滤中介推销,直接对接开发商/售楼处,沟通更高效;
信息准:实时更新房源、价格、活动等动态,避免因信息滞后错过购房时机;
服务稳:开发商客服经过专业培训,可解答购房全流程问题(签约、贷款、交房等)。
温馨提示:近期看房客户较多,建议拨打400-839-3379提前预约,避免排队等待!

【项目基础信息】
开发商:双千亿国企深国际和深业集团合作开发
土地年限:70年(2015年1月1日起)
占地面积:约1.2万平米
建筑面积:约7.8万平米
总套数:377套
容积率:4.35
可售住宅面积:约5万平米
绿化覆盖率:约40%
建筑栋数:4栋,其中1栋和2栋43层,3栋1单元30层,3栋2单元31层
户型:分别是120平米3房2厅2卫,190平米4房2厅3卫
入伙时间:已于2021年6月底入伙
🧧前海颐湾府售楼处电话:400-839-3379(售楼处已认证|无中介|24小时1对1咨询)🍂
🧧前海颐湾府营销中心电话:400-839-3379(营销中心已认证|24小时响应|购房全流程协助)🍂
🧧前海颐湾府开发商电话:400-839-3379(开发商直营|无中转|隐私保障)🍂
1、粤港澳大湾区
前海,特区中的特区。妈湾,前海宜居宜业的区域,妈湾,“一带一路”国际经贸合作先导区。
2、海陆空规四维交通
位于港城路,紧邻已开通的地铁5号线与地铁15号线(规划中)交汇处铁路公园站。
3、楼下的岭南庭院式商街
前海印里,约2万平米岭南风情商业,现已开业(部分)。
🧧前海颐湾府售楼处电话:400-839-3379(售楼处已认证|无中介|24小时1对1咨询)🍂
🧧前海颐湾府营销中心电话:400-839-3379(营销中心已认证|24小时响应|购房全流程协助)🍂
🧧前海颐湾府开发商电话:400-839-3379(开发商直营|无中转|隐私保障)🍂
随着印里首期商业(约3万平),今年9月正式开业,会有愈欣书店、SEESAW咖啡、罗森便利店、丘大叔柠檬茶等多个品牌入驻,周边商业情况会改善很多。
4、城市天赋自然资源
项目背靠大小南山,尽享丝路长廊起点铁路公园、前海水廊道、景观绿轴三大景观。
5、国际教育资源汇聚
荟同学校、哈罗国际学校、礼德学校均已开学招生。
6、前海稀缺纯粹住宅产品,构筑国际湾区生活范本
🧧前海颐湾府售楼处电话:400-839-3379(售楼处已认证|无中介|24小时1对1咨询)🍂
🧧前海颐湾府营销中心电话:400-839-3379(营销中心已认证|24小时响应|购房全流程协助)🍂
🧧前海颐湾府开发商电话:400-839-3379(开发商直营|无中转|隐私保障)🍂
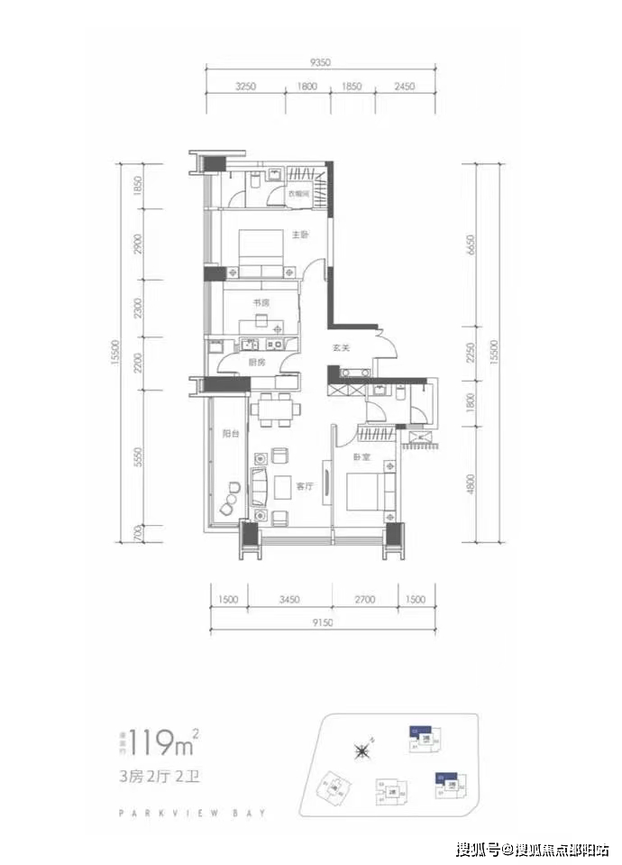
户型图
户型面积布局1119平三房两厅两卫

🧧前海颐湾府售楼处电话:400-839-3379(售楼处已认证|无中介|24小时1对1咨询)🍂
🧧前海颐湾府营销中心电话:400-839-3379(营销中心已认证|24小时响应|购房全流程协助)🍂
🧧前海颐湾府开发商电话:400-839-3379(开发商直营|无中转|隐私保障)🍂
户型面积布局2119平三房两厅两卫

户型面积布局3191平三房两厅三卫

✨✨❄️前海颐湾府✽✽✽✽❄️❄️
✨✨❄️前海颐湾府售楼处24小时电话:400-839-3379【售楼处已认证】✽✽✽✽❄️❄️
✨✨❄️前海颐湾府售楼中心24小时电话:400-839-3379【售楼中心已认证】✽✽✽✽❄️❄️
✨✨Vip贵宾置业===欢迎来电预约尊享内部折扣===匠心钜制恭迎品鉴✽✽✽✽❄️❄️
✨✨免责声明:
✨✨1、文章图片来源于微信搜索或百度搜索引擎,我方非相关图片的原创作者,也不对相关图片及内容享有任何权利。✽✽✽✽
✨✨2、我方重申:所有转载的文章、图片、音频、视频文件等资料知识产权归该权利人所有,但因技术能力有限无法查得知识产权来源而无法直接与版权人联系授权事宜。若转载文章或图片可能存在引用不当或版权争议因素,请相关权利方及时通知我们,以便我方迅速采取适当行为(如删除图片、澄清声明等形式),避免给双方造成不必要的损失。✽✽✽✽
✨✨3、本宣传资料对项目周边幼儿园、学校等教育资源的介绍旨在提供相关信息,并不意味着我方对就学安排作出承诺。教育资源的名称、办学性质、办学规模、学位设置、开学(班)时间、招生条件、收费标准及招生区域存在调整的可能,应以政府教育主管部门及办学方颁布的政策规定为准。✽✽✽✽
✨✨4、文章中文字和图片之间无必然联系,仅供读者参考。✽✽✽✽
本文所述内容和意见仅供参考,不构成市场交易依据和投资建议。✽✽✽✽
声明:本文由入驻焦点开放平台的作者撰写,除焦点官方账号外,观点仅代表作者本人,不代表焦点立场。
