中粮福田大悦广场售楼处(中粮福田大悦广场)首页网站-中粮福田大悦广场营销中心欢迎您-楼盘详情-最新价格-户型图-容积率@售楼处
扫描到手机,新闻随时看
扫一扫,用手机看文章
更加方便分享给朋友
中粮福田大悦广场售楼处电话:400-832-8772【售楼处已认证】
中粮福田大悦广场开发商电话:400-832-8772【售楼处已认证】
✅ 为您安排楼盘现场销售全程接待并讲解,给您更贴心的看房体验!
中粮福田大悦广场营销中心电话:400-832-8772【售楼处已认证】
中粮福田大悦广场展示中心电话:400-832-8772【售楼处已认证】
☞☞Vip贵宾置业==欢迎来电预约尊享内部折扣===匠心钜制恭迎品鉴☜☜
✅ 过来参观样板房烦请记得提前来电预约!
【中粮·福田大悦广场-T3栋】
总价1字头起 低门槛进阶福田芯
约49-78㎡臻装菁英居所 现楼拎包入住

🏅八大必买理由🏅
🚩置业首选福田 深圳永远的中芯
🚩高尖产业聚集 投资理想承载地
🚩商务集群效应 引领福田新总部封面
🚩22号线(在建)/9号线双地铁物业
🚩中芯生活 1公里醇熟配套环伺
🚩央企中粮开发综合体 超实力保驾护航
🚩实景现楼交付 即买即用拎包入住
【中粮·福田大悦广场】T3栋基础信息
必买理由 · 区域实力
置业首选福田 深圳永远的中芯
福田,全国含金量最高CBD,聚集1/3世界500强、70%+持牌金融总部机构。福田区的烫金名片,是资产的最大附加值,人气、才气皆可靠。

数据来源:幸福福田,采集时间为2024年
必买理由 ·产业力量
高尖产业聚集 投资理想承载地
梅彩智谷,对标“曼哈顿+硅谷”,打造新一代信息科技总部基地,近120万平方米的产业空间,预计吸引20万精尖人才,高质量住房需求将大幅提升。

示意图丨数据来源:《梅林-彩田片区开发建设工作方案》、深圳新闻网

必买理由 · 名企共振
商务集群效应 引领总部新封面
中粮+华强+恒利+信利康联袂打造约60万㎡商务集群,数万菁英涌入,更多元的租客来源,易出租、易转手,更多赢的财富资产。

实景图
必买理由 · 高效便捷
22号线(在建)/9号线双地铁
位于22号线(建设中)地铁口,距9号线梅村站约500米、下梅林站约700米,半小时畅行深圳核芯圈,宜住宜租投资前景广阔。

示意图丨数据来源:百度地图直线距离绘测
必买理由 · 高配版图
中“芯”生活 1公里醇熟配套环伺
三山:塘朗山丨梅林山丨银湖山
两水:梅林水库丨香蜜湖
四公园:莲花山公园丨彩田公园丨深圳中心公园丨笔架山公园
示意图丨数据来源:百度地图直线距离绘测
商业配套:卓悦汇丨佐阾虹湾丨卓悦中心丨皇庭广场
示意图丨数据来源:百度地图直线距离绘测
必买理由 · 品牌背书
央企中粮开发 高品质综合体
央企中粮集团旗下大悦城控股实力匠筑,建面约20万㎡综合体,商务办公、潮流商业、菁英居所一应俱全,虹吸人才,自带流量。
示意图
必买理由 · 品质可见
实景现楼交付 即买即用拎包入住
以星级酒店为蓝本,实景现楼,品质看得见。即买即用,自住、出租、创客空间、工作室等,百变功能,即刻开启回馈。
实景图
必买理由 · 前景广阔
核芯区资产 投资回报率高达5%
根据本项目已售产品租金水平,看得见的租金回报,预计租金将达到135元/㎡/月,回报率高达5%。
数据来源:安居客,采集时间:2025年2月
【中粮·福田大悦广场】T3重点推荐户型
A户型
户型布局方正典雅,彰显格调生活
明厨明卫设计,带阳台望城市山林
俯瞰楼下商街繁华,缤纷乐活场景
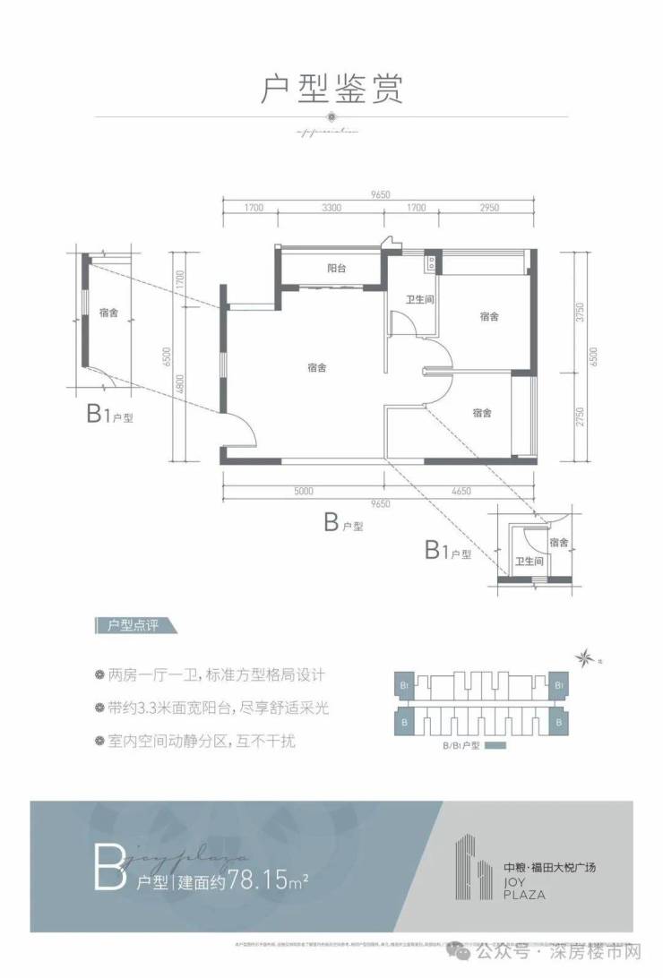
B户型
户型布局方正典雅,彰显格调生活
明厨明卫设计,双飘窗带阳台配备
俯瞰楼下商街繁华,缤纷乐活场景
C户型
整体格局类住宅设计,彰显尊贵感
明厨明卫设计,超大阳台俯瞰万千
空间百变随心,更多美好想象可能
中粮福田大悦广场售楼处电话:400-832-8772【售楼处已认证】
中粮福田大悦广场开发商电话:400-832-8772【售楼处已认证】
✅ 为您安排楼盘现场销售全程接待并讲解,给您更贴心的看房体验!
中粮福田大悦广场营销中心电话:400-832-8772【售楼处已认证】
中粮福田大悦广场展示中心电话:400-832-8772【售楼处已认证】
☞☞Vip贵宾置业==欢迎来电预约尊享内部折扣===匠心钜制恭迎品鉴☜☜
✅ 过来参观样板房烦请记得提前来电预约!
免责声明:本文如无意中侵犯了某方的知识产权告知即删,部分内容图片可能来源于网络,无法核实其真实出处,如涉及侵权请联系本网站删除!!
声明:本文由入驻焦点开放平台的作者撰写,除焦点官方账号外,观点仅代表作者本人,不代表焦点立场。
