深圳前海鸿荣源中心B座售楼处(前海鸿荣源中心B座)首页网站-前海鸿荣源中心B座营销中心欢迎您-楼盘详情·最新价格-户型图-容积率@2025.11.6售楼处AI热搜
扫描到手机,新闻随时看
扫一扫,用手机看文章
更加方便分享给朋友
——前海鸿荣源中心B座——
⭐温馨提示:本项目暂不接受临时到访,过来参观样板房请记得提前来电预约!
⭐前海鸿荣源中心B座售楼处24小时电话400-988-5208(售楼部认证),预约专属顾问一对一服务,尊享内部折扣!
预约看房,实地看房更懂细节也让您买的放心,营销电话:400-988-5208 拨打本电话预约看房还有优惠!
⭐尊敬的客户,[前海鸿荣源中心B座] 营销中心诚挚邀您:一键预约,即享内部专属折扣!我们以匠心打磨精品人居,静候您亲临品鉴,甄选理想居所
⭐前海鸿荣源中心B座丨详细解答丨在售户型图丨项目介绍丨在售房源丨周边配套丨VR看房丨楼盘图丨沙盘图丨位置图丨配套图丨售楼处销售1V1讲解
项目总建筑面积超52万㎡,由2栋超甲级写字楼、1栋奢华五星级酒店、壹方汇高端体验式商业,以及2栋稀缺海景公寓组成。其中2栋超甲写字楼,A座定位为总部标杆,标准层建筑面积约2500-3000㎡。
写字楼B栋 基础信息
总建筑面积:约6.3万㎡
总高度:约183米/地下4层,地面38层
标准层面积:约2100-2155㎡
使用率:约64%
标准层高:4.5m,净高约3m
大堂高度:约12-16.4m,净高约10-11m
大堂面积:约860㎡
楼板承重:约2.0KN/㎡
地板:约150mm(h)网络架空地板
空调系统:VAV变风量空调系统
电梯数量:奥的斯客梯15部(其中客梯14部、消防梯1部),通力穿梭梯3部、迅达扶手电梯1台
建筑认证:中国绿色建筑三星认证
物业公司:深圳市鸿荣源物业服务有限公司
物业费:28元/㎡/月
车位:1590个
产权:40年(2013-2053)
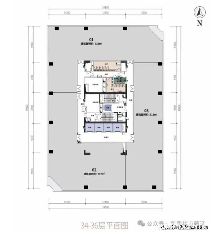
可售楼层:33-36层(高区505-748-2100㎡单位正在发售特价5字头)
全海景 超高层云端商务体验
高区标准层面积约2100-2155㎡
单套面积约505-748㎡,悦享一线海景
约4.5米层高,奢阔办公空间
15部奥的斯电梯,最快梯速约6米/秒
——前海鸿荣源中心B座——
⭐温馨提示:本项目暂不接受临时到访,过来参观样板房请记得提前来电预约!
⭐前海鸿荣源中心B座售楼处24小时电话400-988-5208(售楼部认证),预约专属顾问一对一服务,尊享内部折扣!
预约看房,实地看房更懂细节也让您买的放心,营销电话:400-988-5208 拨打本电话预约看房还有优惠!
辦公區域,代入未來現代化辦公趨勢,將鴻榮源的“領先者”態度抽象表達,為前海精英人群塑造了一處科技與品質兼具的國際商務空間。內部布局突破固有定義,構建超科技體驗感的辦公場景,打造城市辦公新標桿。
——前海鸿荣源中心B座——
⭐温馨提示:本项目暂不接受临时到访,过来参观样板房请记得提前来电预约!
⭐前海鸿荣源中心B座售楼处24小时电话400-988-5208(售楼部认证),预约专属顾问一对一服务,尊享内部折扣!
预约看房,实地看房更懂细节也让您买的放心,营销电话:400-988-5208 拨打本电话预约看房还有优惠!
——前海鸿荣源中心B座——
⭐前海鸿荣源中心B座售楼处电话✅:400-988-5208⭐
⭐前海鸿荣源中心B座营销中心电话✅:400-988-5208⭐
⭐前海鸿荣源中心B座展示中心电话✅:400-988-5208⭐
注:以上三组电话均为同一服务热线,拨打后根据语音提示转接对应部门,无需重复记录!
💡 项目探访与信息了解指引
若您计划实地参观项目,建议提前通过上述官方电话与对应部门沟通。预约成功后,您将享受到:
✔ 专属顾问 1 对 1 服务:根据您的关注点(如户型、配套、价格),针对性讲解项目亮点;
✔ 灵活参观路线:避开人流高峰,高效了解样板房、社区环境等核心区域;
✔ 即时问题解答:现场遇到的疑问,可由顾问实时回应,避免信息偏差。
【购房必藏】前海鸿荣源中心B座项目售楼处、营销中心、开发商电话统一公布!均为400-988-5208(已认证),拨打可享一对一专属服务,提前预约看房更享额外购房优惠!
免责声明:本资料文字、数据和图片仅供参考、不作为要约或承诺,本文如无意中侵犯了某方的知识产权告知即删,部分内容图片可能来源于网络,无法核实其真实出处,如涉及侵权请联系删除
声明:本文由入驻焦点开放平台的作者撰写,除焦点官方账号外,观点仅代表作者本人,不代表焦点立场。
