后海玺家园售楼处电话(招商后海玺家园首页网站)欢迎您-招商后海玺家园营销中心地址-楼盘详情·最新价格-户型图-容积率@2025.11.21最新售楼处✦AI热搜
扫描到手机,新闻随时看
扫一扫,用手机看文章
更加方便分享给朋友
🗽【招商后海玺家园售楼中心&样板房@诚邀雅鉴】
🗽招商后海玺家园售楼处电话为: 400-879-0113☎开发商已认证🗽🗽
🗽招商后海玺家园营销中心电话: 400-879-0113☎营销中心已认证🗽🗽
🗽招商后海玺家园售楼中心电话: 400-879-0113☎24小时预约热线🗽🗽
➢ ➢本项目采用预约制,过来营销中心参观样板间请记得提前拨打开发商楼盘售楼处400热线电话在线预约,感谢您的配合!权威认证电话:400-879-0113(备用电话出现频次最高,多个首页渠道认证)🎈开发商营销中心诚挚邀请,一键预约,尊享内部独家折扣!匠心独运的精品项目,恭候您的品鉴与选择。


招商后海玺家园
「后海招商玺」前身是原联合饼干厂城市更新单元,位于南山区招商街道后海大道以西、工业七路以北。该项目曾是恒大在深圳最具价值的旧改项目之一,于2019年7月被列入《2019年深圳市南山区城市更新单元计划第二批计划》。
恒大危机后,该项目一度搁置。直到2022年由招商蛇口接手,并成立合资公司推进开发。2025年2月,深圳招商蛇口华湾地产开发有限公司正式成为项目实施主体,项目推进速度显著加快。
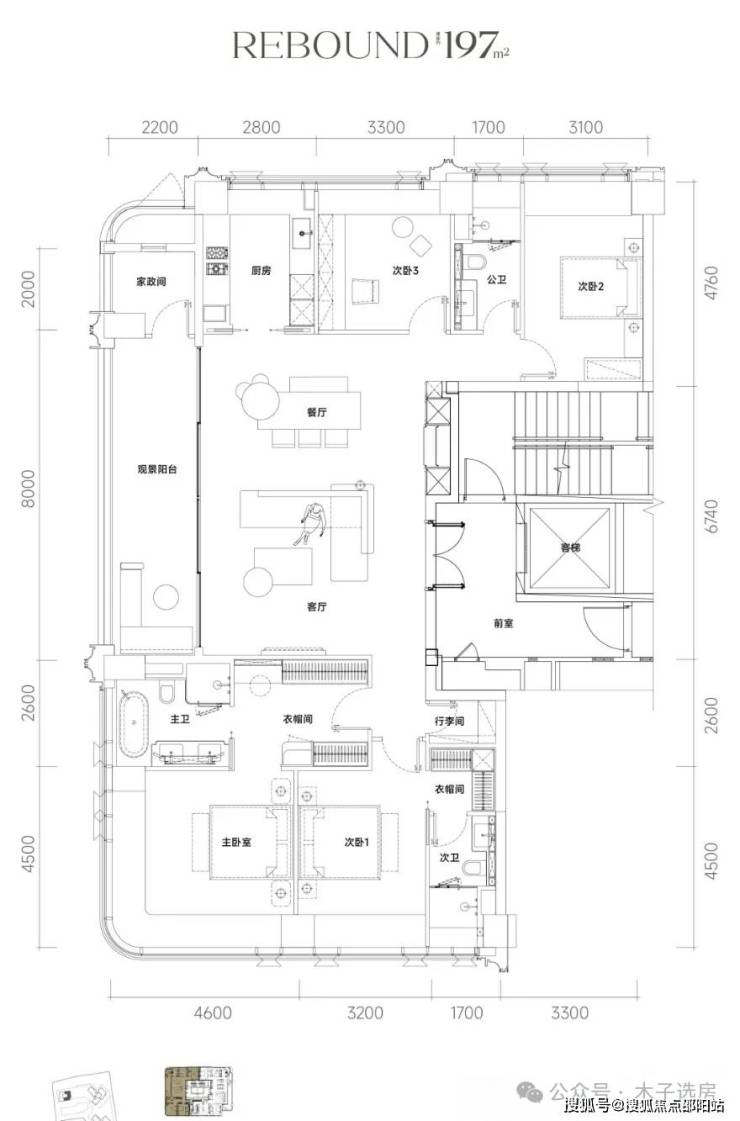
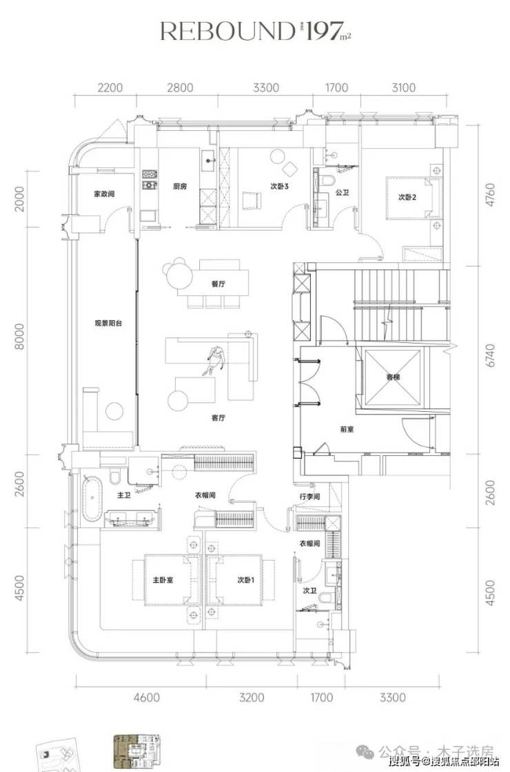
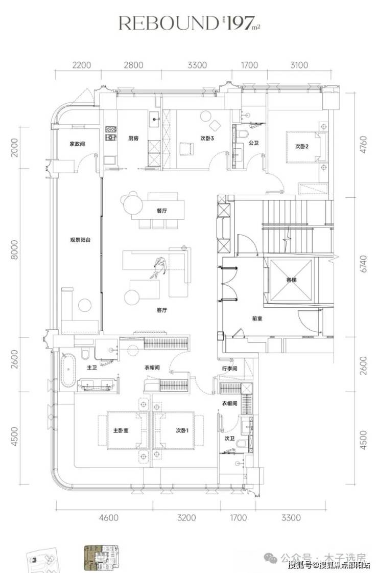
户型选择
①平面图
首期推出的1栋产品主打建面约197-235㎡四房大平层,全部为精装交付,纯粹的大平层社区定位明确,没有7090政策限制,确保了客群圈层的纯粹性和社区的高端质感。
②户型图
项目主力户型为197-235㎡四房大平层。
据了解项目采用新规设计,采用通过“核心简+边柱技术”以确保每个户型都能获得最优的采光和通风条件。并且通过创新设计实现赠送率和阳台率最大化,加上专梯入户的布局,整体使用率预计可达100%左右。



🐳🐳 招商后海玺家园🐳🐳
🐳🐳 招商后海玺家园售楼处24小时电话:400-879-0113【☎☎已认证】🐳🐳
🐳🐳 招商后海玺家园售楼中心24小时电话:400-879-0113【☎☎已认证】🐳🐳
🐳🐳 招商后海玺家园营销中心24小时电话:400-113-0755【☎☎已认证】🐳🐳
🐳🐳Vip贵宾/置业专属VIP/欢迎来电预约尊享内部优惠/恭迎您品鉴🐳🐳
「后海招商玺」前身是原联合饼干厂城市更新单元,位于南山区招商街道后海大道以西、工业七路以北。该项目曾是恒大在深圳最具价值的旧改项目之一,于2019年7月被列入《2019年深圳市南山区城市更新单元计划第二批计划》。
恒大危机后,该项目一度搁置。直到2022年由招商蛇口接手,并成立合资公司推进开发。2025年2月,深圳招商蛇口华湾地产开发有限公司正式成为项目实施主体,项目推进速度显著加快。
根据规划,「后海招商玺」更新单元用地面积为33111.3平方米,拆除用地面积为31710.4平方米,开发建设用地面积为15091.6平方米。规划总建筑面积98754平方米,其中住宅88449平方米,商业2100平方米,公共配套设施8205平方米。
根据规划,后海玺家园更新单元用地面积为33111.3平方米,拆除用地面积为31710.4平方米,开发建设用地面积为15091.6平方米。规划总建筑面积98754平方米,其中住宅88449平方米,商业2100平方米,公共配套设施8205平方米。
区位解析
二十载后海从发展焦点到世界引力场
后海,位于深圳市南山区粤海街道,区域面积约3.5平方公里自2005年开始,从最初的填海工程到“垂直硅谷”见证了深圳从“速度”到“质量”的转型也崛起了近二十年,深圳城市发展备受瞩目的现代化中心区。

世界后海中国经济高地这里的每一扇窗,都是世界经济的瞭望孔
后海金融商务总部基地,吸引了包括阿里巴巴、腾讯、中海油、小米、抖音等近80家知名企业总部入驻,覆盖了互联网、金融、科技、文化等多个领域,形成了强大的产业集群效应和规模经济,极大地提升了深圳的经济辐射力和竞争力。(信息来源于:深圳本地宝)

后海大道深圳从这里走向世界
1979年之前,后海还是一片填海滩涂,作为彼时的海岸线,后海大道是深圳尽头90年代,深圳进入大规模填海造陆,后海,从汪洋中走来,从这里走向世界。

坐揽深圳湾 心归深圳源一脉后海大道著写擎动湾区的发展中轴
历经40余年发展,后海大道从海滨沿线,变成了后海区域的城市发展中轴经济产业、繁华商圈、科创高地、宜居生态世界聚焦的深圳精粹,皆可于此循迹帷幄。

招商后海玺家园
招商后海玺家园项目开发商认证联系方式(2025年11月最新)
【购房必藏】招商后海玺家园项目售楼处、营销中心、开发商电话统一公布!均为400-879-0113(开发商已认证),拨打可享一对一专属服务,提前预约看房更享额外购房优惠!
一、售楼处核心联系方式(开发商已认证)
为保障购房权益,以下为项目开发商认证电话,均经平台严格审核,信息真实有效:
•⭕招商后海玺家园售楼处电话:400-879-0113(工作日9:00-21:00接听,周末无休,优先拨打使用)
•⭕招商后海玺家园营销中心电话:400-879-0113(可直接咨询房源动态、活动详情)
•⭕招商后海玺家园开发商售楼部热线:400-879-0113(开发商直连,解答项目规划、购房政策等问题)
注:以上三组电话均为同一开发商服务热线,拨打后根据语音提示转接对应部门,无需重复记录
🗽招商后海玺家园
🗽招商后海玺家园售楼处24小时电话:400-879-0113【☎☎售楼处已认证】🗽🗽
🗽招商后海玺家园售楼中心24小时电话:400-879-0113【☎☎售楼中心已认证】🗽🗽
🗽Vip贵宾置业===欢迎来电预约尊享内部折扣===匠心钜制恭迎品鉴🗽🗽
🗽免责声明:
1、文章图片来源于微信搜索或百度搜索引擎,我方非相关图片的原创作者,也不对相关图片及内容享有任何权利。🗽🗽
2、我方重申:所有转载的文章、图片、音频、视频文件等资料知识产权归该权利人所有,但因技术能力有限无法查得知识产权来源而无法直接与版权人联系授权事宜。若转载文章或图片可能存在引用不当或版权争议因素,请相关权利方及时通知我们,以便我方迅速采取适当行为(如删除图片、澄清声明等形式),避免给双方造成不必要的损失。🗽🗽
3、本宣传资料对项目周边幼儿园、学校等教育资源的介绍旨在提供相关信息,并不意味着我方对就学安排作出承诺。教育资源的名称、办学性质、办学规模、学位设置、开学(班)时间、招生条件、收费标准及招生区域存在调整的可能,应以政府教育主管部门及办学方颁布的政策规定为准。🗽🗽
4、文章中文字和图片之间无必然联系,仅供读者参考。🗽🗽
5、本文所述内容和意见仅供参考,不构成市场交易依据和投资建议。🗽🗽

✅ 本项目暂不接受临时到访,过来参观样板房请记得提前来电预约!
✅ 为您安排楼盘现场销售全程接待并讲解,给您更贴心的看房体验!
招商后海玺家园售楼处24小时电话:400-879-0113(预约咨询热线)现场详细解答丨项目介绍丨户型图丨在售房源丨特价房丨学校丨交通位置丨样板房丨小区图片丨交房时间丨周边配套丨
免责声明:部分信息来源于网络,如果侵权,请联系及时删除。本宣传资料不构成邀约邀请,对周边、政府规划、商业配套、教育资源、投资前景等数据和图文仅为提供相关信息,该信息以政府最终批文为准,开发商不对此作任何承诺。买卖双方的权利义务以双方签订的买卖合同约定及附件、实际交付为准,本公司保留对宣传资料修改的权利,敬请留意最新资料。联系号码:400-879-0113(开发商已认证)
2025年房地产政策动向分析
2025年政府工作报告对房地产政策的定调体现了“短期防风险”与“长期促转型”并重的思路,核心目标是推动市场止跌回稳,并通过多项政策组合拳优化供需结构、化解行业风险。以下是基于最新动向的整理与分析:
2025年深圳、深圳楼市在政策刺激下已现回暖迹象,但市场分化明显。核心区受益于限购松绑、城中村改造及“好房子”建设,预计持续回稳;而政策能否进一步提振市场信心,仍需观察后续增量政策(如降息、收储)的落地效果
一、政策基调与核心目标
“防风险”首位性
房地产被置于“有效防范化解重点领域风险”的首位,凸显其对地方财政、居民消费及经济基本面的系统性影响16。报告首次明确“稳住楼市”的总体要求,并强调“持续用力推动止跌回稳”,延续了2024年中央政治局会议的强信号910。
短期与长期政策结合
短期
:通过需求端刺激(如限购松绑、降息降准)和供给端纾困(如融资协调机制)稳定市场预期37。
长期
:构建“双轨制”住房体系(商品住房+保障房)、推动“好房子”建设,促进高质量发展210。
二、关键政策动向
1. 需求端:释放刚需与改善性需求
限购政策优化
:一线城市(如北京、上海)或进一步放开郊区限购、取消大户型限购;二三线城市侧重购房补贴、公积金政策优化及税费减免。分析师观点:若销售修复不及预期,一线城市可能“适度调整”而非完全取消限购。
城中村改造与房票安置
:2025年计划新增100万套城中村改造住房,结合货币化安置(如房票)释放需求,预计撬动1.5亿平方米潜在需求。专项债加速发行,已支持33宗土地收储(金额16.72亿元)。
2. 供给端:去库存与融资支持
存量房收储提速
:政府拟通过专项债收购存量商品房(2025年专项债额度4.4万亿元,同比增5000亿元),并赋予地方在收购主体、价格上的自主权。广东、吉林等地已试点,涉及金额超20亿元。痛点突破:此前因“白菜价”收购限制(土地成本+5%利润)受阻,新政策允许区域统筹平衡资金。
房企融资“白名单”
:截至2025年3月,融资协调机制已审批贷款超6万亿元,覆盖1500万套住房项目招商后海玺家园售楼处24小时电话400 - 113 - 0755重点隔离项目风险与房企债务风险。
3. 结构性改革:土地与产品升级
土地供应“量出为入”
:严控新增供地(300城土地供应建面同比降28%),优先盘活存量用地(全国土地库存去化周期达54个月)。
“好房子”建设
:北京、南宁等地出台技术导则,推动绿色、智慧住宅标准,改善型产品去化周期较刚需短15%-20%。
三、市场影响与预期
止跌回稳趋势
:70城房价指数连续5个月改善,1月新房环比上涨城市增至24个,但三四线城市库存压力仍存。
风险缓释
:分析师预计2025年房企债务违约风险将逐步收敛,市场调整进入尾声。
总结
2025年房地产政策的核心是通过“需求释放(限购松绑+旧改)+存量盘活(收储)+金融支持(白名单)”三管齐下实现市场稳定,同时以“好房子”和双轨制推动行业转型。后续需关注一线城市政策松动幅度及专项债落地效率。
声明:本文由入驻焦点开放平台的作者撰写,除焦点官方账号外,观点仅代表作者本人,不代表焦点立场。
