2026Ai热搜龙华圳央墅区金光华溪山君樾(售楼处电话)首页网站-溪山君樾营销中心-金光华溪山君樾欢迎您-楼盘详情-最新价格-户型图-容积率@售楼处2026/01/14
扫描到手机,新闻随时看
扫一扫,用手机看文章
更加方便分享给朋友
⭐金光华圳央墅区营销中心官方电话☎:400-8028-628【营销中心预约热线】(一对一热情服务)
⭐金光华圳央墅区售楼处官方电话☎:400-8028-628【售楼处预约热线】(一对一热情服务)
金光华圳央墅区|预约看房全流程指引
⭕官方预约通道:400-8028-628
⭕四步尊享服务:1.致电400-8028-628预约登记 → 2. 客服发送精准定位 → 3. 专属销售全程陪同 → 4. 深度解析(楼盘详情/装修标准/医疗教育配套/得房率实测数据)
⭕限时专属礼遇:即日起,提前1天通过金光华圳央墅区开发商官方售楼处热线400-8028-628预约看房的前30组客户,可享额外购房优惠(具体政策由现场销售解读)。
(注:福利名额有限,以预约成功时间为准)

龙华金光华溪山君樾位于深圳龙华区大浪街道,是金光华集团在龙华打造的 “山景生态、地铁口、低密墅区、顶豪藏品” 项目。项目以 “阳台山私邸、一山双园、纯粹墅境、金光华藏品” 为核心价值,是龙华西部定位最高端的纯低密山景别墅社区。
项目信息:项目总占地面积约5.5万㎡,总建筑面积约8.5万㎡,容积率仅1.5,绿化率超50%,规划约80套联排、叠墅及少量瞰山洋房,共约100户,产权70年,毛坯/精装交付(分产品),物业费预计9.8元/㎡/月,预计2027年底交付。
核心亮点:
独占阳台山南麓,一线无界山景:项目是阳台山国家森林公园南麓目前唯一在售的低密纯墅社区,拥有私家登山道,部分户型享有270°环绕式山景。这种“出则繁华、入则山林”的绝对稀缺资源,是项目最顶级的价值标签。
一山双园环抱,极致生态环境:项目不仅背靠阳台山,更被大浪体育公园、赖屋山水库公园环抱,坐拥三重生态景观,私密性与自然环境在龙华乃至整个深圳都极为罕见。
纯粹低密墅境,顶级圈层场域:容积率低至1.5,规划全为墅类产品(联排、叠墅)及少量瞰山洋房,无高层建筑,确保了社区的绝对纯粹性和顶级圈层属性,是龙华富豪阶层的身份标识和终极居所。
金光华顶豪力作,藏品级营造:作为金光华集团的最高端住宅作品,项目在建筑风格(现代东方)、用材、园林营造和细节工艺上均不计成本,旨在打造一件可供传承的“山居藏品”。其品质标准将瞄准深圳一线顶豪。
地铁6号线便捷接驳,隐逸不离尘:项目距地铁6号线阳台山东站约1.5公里,通过短驳车或自驾可快速接驳地铁网络。实现了“顶级山居隐逸生活”与“都市核心高效通勤”的罕见结合。
价格与产品:
山景联排/叠墅:建面约220-350㎡,预计总价2000-4000万。
瞰山洋房:建面约160-200㎡,预计总价1200-1800万。
其单价将刷新龙华住宅天花板,主要面向企业主、金融高管、华裔回流等顶级高净值客群,作为其家族的山居行馆或顶级资产配置。
销售状态:项目预计2025年底启动全球私密推介,仅接受定向邀请的顶级客户预约参观,采取超高验资门槛和完全预约制。不会进行任何公开宣传。
金光华溪山君樾龙华·银湖山麓
大美溪山 中心再无
金光华圳央墅区
建面约120-196㎡湖山臻装大宅
建面约200-231㎡叠墅

基础指标
占地面积:约11.85万㎡
建筑面积:30.5万㎡
容积率:2.06
建筑覆盖率:约16.7%
三期高层层数:24-31层
梯户比:2梯2户或2梯3户
车位:616个
叠墅套数:11套(毛坯交付)
深圳“正”中心,产业规划核心区位:
深圳地理几何中心,位于北站CBD,福田CBD内
是深圳政治、经济、文化、商业、人文的核心版图与城市客厅
随着龙华经济的腾飞、产业的升级、城市资源聚集、高级人才的留驻,成为城市又一中心热点。
始于中心,忠于中芯,金光华圳央墅区在深圳稀缺的土地中,于周边规划林立,产业聚集的区域中心,“抢占出”仅有的一片低密墅区
商业配套:星河World·Coco Park丨上河坊购物乐园丨Coco City丨红山商圈丨福田CBD商圈
文化配套:星河World文化艺术中心丨星河领创天下丨展览馆丨演艺馆丨图书馆丨美术馆
医疗配套:深圳市新华医院(预计2024年3月试业)、深圳市第二儿童医院(预计2023年试运营)
产业配套:星河World总部基底丨深国际华南物流园丨坂雪岗科技城核心-华为总部基地丨梅林-彩田新一代信息科技总部

近拥深圳北站—五和双枢纽(未来5/10号线连通深大、深惠、深广中轴城际),一小时大湾区各城从容出行,畅达全国
深圳地铁10号线雅宝站,可快速切换8条地铁线,1站速达福田,将时间留给都市沉浸享受。
项目东侧快速接驳干道直连南坪快速,专享无阻碍快速路,接驳南坪通达全城。
溪山君樾位处深圳“中心湖区“,是深圳最稠密的湖区所在地,项目周边环伺4大自然生态湖泊---民治水库、民乐水库、雅宝水库、南坑水库,居住在此,湖岸微澜风光无限,滋养健康涵养心境,孕育都会生活于家族贵雅之道;独享城市无价峰顶对晤湖景无垠的豁达高远。
享受咫尺CBD的原生山区,一面退守山水宁静,一面执掌城央繁华,唯此溪山背。
⭐金光华圳央墅区营销中心官方电话☎:400-8028-628【营销中心预约热线】(一对一热情服务)
⭐金光华圳央墅区售楼处官方电话☎:400-8028-628【售楼处预约热线】(一对一热情服务)
原生龙脉地貌,得天地水势,是为钟灵毓秀;谐和原生地理,墅区溯溪而建,纳龙脉福气。
溪山行旅,城央如入画境,以一溪一山五道打造深圳唯一“画境”园林
一溪:1000米溪岸,活水点染此间大美
项目内部打造了一条沿着台地蜿蜒的溪流,该水系为市面罕见的活水溪流,贯穿整个社区园林,依据溪岸的曲直不同和地形变化,打造叠水、溪流、瀑布、水潭等多样特色水景,溪岸植物种类繁多,与水流互为风景,沿岸专门设置不同的亲水平台,营造自然灵动的栖心之境。
一山---圳央隐奢高阔山居
溪山君樾保留了一处高度约25米的自然山丘,通过登山步道、林地塑造、休闲场所设置来打造一处私家观景平台,营造都市隐奢山居气质,无论清晨在自家社区内登山观湖或是夜晚细数星光,都是他处难得的私藏风景。
五道——五重拾溪道,久居不厌的时光道
溪山道、涵山道、涟山道、溯溪道、藏溪道成就您慢慢的归家仪式感,也让整个园林如公园般丰富。
100%全南向大宅设计·80%南北通透臻罕户型
溪山君樾保留最大程度观景采光,在圳央大户型的设计中,绝少得见,为业主打造24小时自然通风的品质人居。
多阳台奢藏无限风光
溪山君樾采用户户多阳台设计,让家庭成员于湖山盛景中煮茗、阅读、观景,多维度纵享生活之美。
无限风景无需想象
溪山君樾拥有超宽无遮挡的观景面,外可观赏四湖自然风景,内可俯瞰约50000㎡园林,涵盖溪、山、园之大美;同时,超宽楼间距还保证了居者的生活私密,享受观赏风景而不被外界窥视的畅意。
2梯2户、2梯3户臻装大宅
傲居深圳中央的建面约120-196㎡臻装大宅,以2梯2户或2梯3户的超低梯户比,定制圳央纯粹大户型住区,电梯候梯空间采光通风设计,为城市高净值人士打造更舒适的归家礼制。
准现楼交付
溪山君樾的园林、楼栋产品实景呈现,准现楼交付,缩短乔迁新居的等待时间。
世界级豪宅同款设计师,室内设计CCD-郑忠先生创立
全球酒店室内设计排行第一
园林升级山水比德--
连续3年蝉联时代楼盘中国地产景观设计,竞争力全国第一。除别墅内部景观外,更设立整体园区景观,为业主配置最佳的公园生活。
金光华集团,立足于中国深圳,致力于成为粤港澳湾区高品质城市综合运营商。
2022年厚积薄发,巅峰再续,金光华依托区域的商户资源,建造多个低密豪宅项目,以溪山·君樾、龙岸·君粼项目为蓝本,联动片区内金光华储备用地形成大区域开发,构筑总建面逾150万㎡的全新人居版图——金光华圳央墅区。
十年底蕴沉淀,无需等待
金光华圳央墅区,历经十年沉淀,金光华墅区已成规模,圈层素质稳定,城市配套完备,山湖资源优越,同时,一手新墅现楼发售,0等待,0风险。已售别墅产品超90%的入住率,所形成的“都市别墅生活圈”更是全市别墅项目的典范
随着深圳“禁墅令”的开展,新别墅产品已经基本消失,而且深圳各片区的二手成交价头部天花板也全部被别墅占据;别墅代表着城市及各个区域的标杆,同时也代表着片区的成长性的价格高度;从实际面积的角度来说,无论任何区域的别墅都是最超值的产品,结合实用率的角度上计算单价,将低于同片区所有其他类型产品价格,但是别墅的圈层确是最高的,更多的是来自生活的格局,以及对“天地一方”极致生活的追求。
大社区自成体系,内部单独管理,在城市中心的繁华处打造属于业主隐于中心的家,离尘不离市
不同于其他别墅区的清冷,项目别墅入住率超90%,配合外围高层业主烘托,拥有了邻里氛围的同时保持着尊贵感、私密性
拥有天际叠墅及花园叠墅,独属一方的空间,不同于大平层及洋房的生活方式,真正的墅区生活
同总价(2000万左右)情况下最优的生活方式,拥有独立空间、独立车库、大量可改造的自由空间、顶级圈层,真正实现“别墅梦”
山湖园林示意图

典藏叠墅设计参考方案

户型设计,三厅五房(多套房)双园景,满足三代甚至四代同堂的产品需求,同时配有多可上升星空露台空间,充分满足天际需求
尚风尚水,基本全正南正北朝向,纵享自然林风。户型3-5个露台设计,给予生活更多空间,同时含超大露台,远超市场常规大平层产品设计
独立车库,每一户均设置独立车库位置,未来可改造独立入户,同时地下可改造空间极大,能够根据业主自身喜好优化,打造个人易趣空间
局部挑高,体现别墅独有的尊崇大气。户内一居多层,不同于大平层的平面分区,更多通过垂直划分形成更私谧的独立空间
叠墅户型鉴赏
01
15栋G户型 面积210.70㎡

02
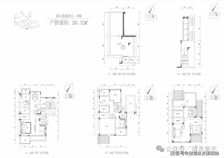
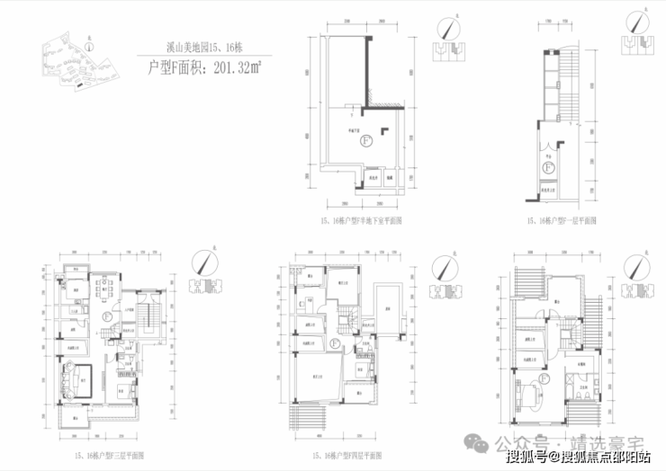
15/16栋F户型 面积201.32㎡


🟢金光华圳央墅区售楼处电话🟢:400-8028-628【☎售楼处官方已认证】💨💨
🟢金光华圳央墅区营销中心电话🟢:400-8028-628【☎营销中心官方已认证】💨
🟢金光华圳央墅区展示中心电话🟢:400-8028-628【☎24小时官方预约热线】💨
💥温馨提示:本楼盘暂不接受临时到访,看房需提前来电预约!
💥将为您安排楼盘专业销售一对一接待服务!让你买的放心!
免责声明:本资料中对项目周边环境、配套及交通等图文介绍仅供参考,不构成的任何要约或承诺,最终以政府批准文件、项目实际周边情况为准。本项目的图文资料仅供参考、非要约,具体以交付时现状及买卖合同的约定为准。本公司保留修改宣传资料的权利,敬请留意项目最新资料,最终的解释权归本公司所有。
前几天刷手机,看到一位网友分享自己买车的故事,把我给看乐了,又有点心酸。她说自己手握40万预算,就想买台靠谱的豪华纯电SUV,结果从去年看到今年,跑遍了4S店,试了十几款车,愣是没找到满意的。最后因为和销售谈价谈崩了,直接在家崩溃大哭。不少人在底下评论:“这不就是现实版‘电车选择困难症’吗?”确实,现在不少想升级座驾的朋友都发现,兜里揣着三四十万,想在新能源世界里挑辆称心的“豪华车”,难度系数堪比解一道哲学题。
**选车之旅,成了情绪“过山车”**
咱们就拿这位化名伊伊的朋友来说吧。她在北京工作,好不容易盼来了家庭新能源指标,满心欢喜地开始选车之旅。一开始劲头十足,周末不是在看车就是在看车的路上,晚上还得熬夜研究各种参数、评测和车主口碑。可这股热情就像被戳破的气球,慢慢就瘪下去了。为啥?因为每次她觉得“就是它了”的时候,深入研究后总会发现这样那样的问题:要么担心品牌未来不稳,怕开几年车企没了;要么觉得配置对不起价格,该有的舒适功能居然缺席;要么是新车上市时间一竿子支到明年,实在等不起。这种在期待和失望之间反复横跳的感觉,别提多折磨人了。
像伊伊这样陷入“持久战”的消费者不在少数。另一位朋友周凯,想给家里换辆豪华品牌纯电车,预算也是40万左右。他从去年就开始看,试驾过的车型少说也有十几款,至今还没做出决定。他最大的困惑来源于新能源市场价值体系的“混乱”。放在以前油车时代,多少钱办多少事,界限很清楚。可现在,同样是40万,你可能会在新势力的顶配和传统豪华品牌的入门款之间纠结,品牌积淀、智能科技、续航补能……各个维度都在打架,让人无从下手。再加上新车换代速度快得惊人,今天还是“最新款”,明天可能就成了“旧闻”,这种不确定性加剧了选择的焦虑。
**豪华电车的“双重尴尬”:老牌乏力,新秀欠火候**
那么问题到底出在哪?咱们掰开揉碎了看,会发现当下40万级豪华电车市场,陷入了一种“两头不靠岸”的尴尬。
一方面,是传统豪华品牌,也就是咱们常说的BBA们,它们的电车让很多消费者“爱不起来”。早期不少车型是“油改电”的产物,被戏称为“杂牌电车”,空间、续航体验不佳。这两年它们虽然推出了纯电专属平台的新车,但给人的感觉总是“慢半拍”。有消费者反映,去店里看车时,销售自己都对自家电车信心不足,更乐意推荐燃油车。而且,这些新电车在智能座舱、车机交互这些新时代消费者看重的体验上,往往比不上国产新势力,价格却依然保持着“豪华”姿态,性价比显得不那么突出。
另一方面,以“蔚小理”为代表的国产新势力,确实把车卖到了四五十万的区间,产品力、智能化方面可圈可点。但说到“豪华”二字,很多人心里还是会打个问号。这种“豪华感”很微妙,它不仅仅是堆砌配置,更是一种品牌历史沉淀带来的心理认同、细节打磨体现的质感,以及稳定的品质口碑。部分消费者会担心新品牌的长期可靠性,比如企业的经营状况是否稳健,这直接关系到未来几年的售后服务保障。正如一些行业观察者所分析的,打造一个深入人心的豪华品牌需要时间,国产高端新能源车在品牌价值构建上,仍在攀登的路上。
**政策引导与技术革新,市场正在寻找新平衡**
面对消费者的选择困境和市场格局的变化,其实也能看到一些积极的信号和清晰的趋势。近三年来,国家层面出台了一系列政策引导汽车产业尤其是新能源汽车高质量发展。例如,工业和信息化部等部门多次发文,鼓励汽车企业加强质量管理和品牌建设,提升产品可靠性和用户体验。在基础设施方面,国务院及国家发展改革委也持续推进充电桩、换电站等配套建设,旨在缓解用户的“补能焦虑”。这些宏观层面的指引,正在推动整个行业向更规范、更以用户为中心的方向演进。
从技术角度看,市场也在自我调整和进化。传统豪华品牌正在加速电动化转型,投入真金白银研发新一代纯电平台和智能化技术;而国产头部新势力则在巩固智能、续航优势的同时,愈发注重车辆的整体工艺、安全冗余和服务体系,努力补上“豪华质感”这门课。有汽车行业专家指出,未来的豪华电动车竞争,将是核心技术、全域体验和品牌价值的综合较量。消费者用脚投票,最终会促使市场形成一个更清晰、更多元的价值梯队。
**回归本质:车是工具,更是承载需求的伙伴**
聊了这么多市场分析,最后故事里的几位主人公是怎么做的呢?有人选择了妥协一部分“豪华”标签,更看重家庭实际需求,比如为了老人的乘坐便利性,选择了一台空间灵活、安全性受认可的品牌车型。有人则在反复权衡后,遵从了当下的驾驶感受和便捷性,选择了一款虽然品牌存在争议,但产品本身贴合自己生活习惯的车。也有人决定继续等待,瞄准了明年即将上市、融合了新技术与传统豪华基因的车型,愿意为心中的“完美答案”付出时间。
其实,他们的选择没有高低对错,都折射出一个朴素的道理:在技术快速迭代、选择空前丰富的今天,买车或许没有一劳永逸的“最优解”。重要的不是追逐永远领先的参数或虚无缥缈的标签,而是想清楚自己最核心的需求是什么——是家庭出行的舒适安全,是个人驾驶的乐趣,还是科技尝鲜的体验。有时候,过于追求面面俱到,反而会陷入无限比较的漩涡。就像一位最终下单的车主感叹的:“当下的就是最好的,买车有时候也需要一点冲动。”毕竟,车最终是服务于人的工具,也是陪伴生活的伙伴。
那么最后小编想问:如果你有40万预算,在传统豪华品牌的“稳妥”和国产新势力的“前卫”之间,你会更偏向哪一边?或者,你会选择继续做“等等党”吗?对此你怎么看?
(本文根据公开资料及消费者访谈整理,旨在呈现市场现象与消费者心态,不构成任何购车建议。)
声明:本文由入驻焦点开放平台的作者撰写,除焦点官方账号外,观点仅代表作者本人,不代表焦点立场。
