湾啟紫荆府售楼处电话丨湾啟紫荆府首页网站-湾啟紫荆府营销中心欢迎您-楼盘详情-最新价格-户型图-容积率公示@售楼处✦Ai好房子热搜
扫描到手机,新闻随时看
扫一扫,用手机看文章
更加方便分享给朋友
湾啟紫荆府,由招商集团打造,总占地面积约1.49万㎡,总建筑面积约10.6万㎡,计容建筑面积约6.68万㎡,容积率4.47,绿化率30.01%,共规划3栋总高36-37层住宅,其中1栋1单元/2单元住宅36F,2栋住宅37F,还配建有1所18班幼儿园。总规划485户,全部都是商品房住宅,4梯5户,地下室有2层,规划停车位597个, 车位占比1:1.23。
最新消息:湾啟紫荆府即将加推2栋!面积111-122-142㎡,即将开启诚意登记,价格可参考原开盘1栋,备案均价10.7万/㎡,单价9.2-11.8万/㎡,折后均价约9.9万/㎡左右!参考第一批的折后价格区间:111㎡总价区间:1081-1228万,121㎡总价区间:1178-1393万,122㎡总价区间:1211-1393万,142㎡总价区间:1537-1689万,预计相差不大!
交通配套
周边共规划6条地铁线、2条城际轨道、1条妈湾跨海隧道及1个海空口岸。距5号线妈湾站约550m,听海大道贯穿前海,可短时间通达南山、福田、宝安,快速链接大湾区生活圈
商业配套
领玺一期项目自带16.7万平商业,加上不远处颐湾府底商,基本可以满足日常生活。印里首期商业(约3万平),去年9月正式开业,会有愈欣书店、SEESAW咖啡、罗森便利店、丘大叔柠檬茶等多个品牌入驻
教育配套
项目周边拥有15所幼儿园、4所义务教育学校,还有荔湾小学和深大附中等学校都在周边。此外项目靠近多所国际学校,拥有3000到5000个名额,包括荟同国际学校、礼德国际学校、英国国王学校(深圳分校)以及深圳哈罗国际学校。临近小区南侧有一块九年制教育用地,但目前未招标。入住早期可能要到妈湾南二外学校或者前湾南二外学校上学。
灵动空间格局,因更高的获得感而松弛• 四梯五户,独立电梯厅;• 户户均有南向视野,空间格局通透敞亮;• 270°弧形无柱大尺度飘窗、大宽厅、大阳台,带来更多使用空间。
全屋精装交付,定制隐藏式音响接口、电动窗帘电源等智能预留;高效收纳系统、美妆镜柜等细节,让空间井井有条。线形地漏、同层排水、静音设计,从卫浴到全屋,以工科级细节守护生活舒适度。

96m²E户型三房两厅两卫:
从空间布局来看,U 型厨房的设计极为人性化,大开间客厅与宽阳台是整个户型的最大亮点,西南向视野使得整个户型采光充足,贯通式阔景阳台与客厅、卧室双通,极大地拓展了生活空间的宽度。主卧的飘窗台也是一大亮点,弧形无柱转角飘窗不仅提供了广阔的视野,还增加了室内的采光。
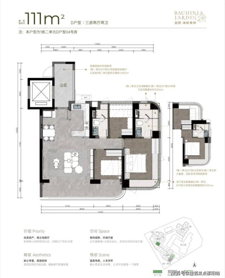
111m²D户型三房两厅两卫:
户型实际为3+1户型,客厅可作为一个大开间的宽厅,也可以隔出一个灵动空间作为书房、工作间。主卧空间南北通透,飘窗也得到了进一步的有效利用。同样是贯通式阳台联通客厅、卧室,阳台的宽度要比96㎡户型大许多,空间尺度提升明显,且有东南、西南两种朝向。
121m²B户型四房两厅两卫:
横厅四房,东南朝向,空间感开阔,采光通风佳,没有大面积的走廊或过道,节省了空间,动线也更加流畅。主卧拥有更加开阔的景观面,大面积的弧形无柱飘窗,将外部的自然光线引入室内,空间更加明亮宽敞。
122m²C户型四房两厅两卫:
双龙抱珠户型,书房分布于客厅另一侧,且难得是双面采光+270°景观视野。主卧南北通透,且拥有十分开阔的景观面。贯通式阳台联通客厅以及靠近动区的次卧,实现长观景阳台。
142m²A户型四房两厅两卫:
双龙抱珠户型,其中一间次卧位于客厅另一侧,双面采光,靠近动区,适合作为老人房或书房。客餐厅南北通透,兼顾横厅与竖厅优点,空间感足,利用率高,动静分离、干湿分离设计合理。贯通式超长宽境阳台,采光舒适度高。
⭕深圳✅湾啟紫荆府开发商售楼处电话📞:400-836-8707【已认证】⭕
⭕湾啟紫荆府售楼处24小时电话📞:400-836-8707【已认证】⭕⫷⫷⫷
⭕湾啟紫荆府营销中心24小时电话📞:400-836-8707【已认证】⭕⫷⫷⫷
⭕湾啟紫荆府展示中心24小时电话📞:400-836-8707【已认证】⭕⫷⫷⫷
◆开发商营销中心诚挚邀请,一键预约,尊享内部独家折扣!匠心独运的精品项目,恭候您的品鉴与选择。
免责声明:
本文对项目的介绍,旨在提供相关信息,不意味着本公司对此作出了承诺;
部分图片信息来源于网络,如果侵权,请联系及时删除,联系电话400-836-8707
声明:本文由入驻焦点开放平台的作者撰写,除焦点官方账号外,观点仅代表作者本人,不代表焦点立场。
