三亚国际传媒中心官方售楼处年底冲刺(三亚国际传媒中心)营销中心欢迎您三亚国际传媒中心首页网站-楼盘详情·户型图-最新价格-容积率2025.12.13售楼处AI热搜
扫描到手机,新闻随时看
扫一扫,用手机看文章
更加方便分享给朋友
【在售产品—3#楼百变空间】
C户型——66.46㎡
B户型——70.29㎡
A户型——113.17㎡
【在售产品—2#楼云端叠墅】
C户型——43.68/43.70㎡
B户型——106.12㎡
A户型——118.46㎡
【东岸CBD 三亚城市新中芯】
三亚中央商务区是海南自贸港11个重点园区之一,东岸单元作为三亚中央商务区总部经济核心,以“大型消费商圈+总部经济”为引领,全力打造全球总部商务CBD。
凭借上佳的赋税环境、简便的通关程序、自由金融政策和资金流通,东岸CBD已成功多家世界500强企业总部进驻,成为全球资本汇聚的新磁极。
【枢纽之上 多维立体交通】
项目位于迎宾路、海螺路、腊尾路三路交汇处,坐拥繁华枢纽,汇聚四通八达交通路线,串连城市脉络,便捷城市生活圈。
• 距离荔枝沟互通约3公里;
• 距离三亚湾约5公里;
• 距离三亚动车站约6公里;
• 距离凤凰机场约14公里。
【天然氧吧 毗邻千亩湿地公园】
项目毗邻东岸千亩湿地公园,享受大自然天然氧吧。繁华之中,邻水而居,景致在旁,长青乔木,应时花草,感受在城市繁华之外,动态自然中。
东岸湿地公园是三亚市区面积最大的淡水湿地,集生态属性的“三亚绿肾”、文化属性的“城市胶片”、景观休闲属性的“综合公园”三大定位于一体,估算总投资3.2亿元。
【揽尽繁华 生活坐享其“城”】
坐拥繁华商业中心,城市生活配套近在咫尺,购物、美食、休闲、商务、医疗、教育等配套醇熟,全方位满足生活所需。
项目自带6981㎡商业配套,精品主题餐厅、精品零售、生活美学、文创体验等,下楼即享都会繁华。
<繁华商业> 阳光金融广场、青春颂、金润阳光、蓝海国际、三亚免税店......
<健康医院>三亚市妇幼保健院、人民医院、农垦医院、三亚市中医院等“三甲医院”......
<文化教育>琼大双语幼儿园、荔枝沟小学、丰和学校、三亚一中、琼州学院、三亚理工学院、三亚热带海洋学院.....
<农贸市场>荔枝沟路南新农贸市场、乐天城购物中心、东岸农贸市场、鸿港批发市场......
【项目概述】
开 发 商 :三亚允达置业有限公司
占地面积:约3.3万㎡
建筑面积:约16万㎡
容 积 率 :3.6
绿 化 率 :35.65%
停 车 位 :1219个(地上200个/地下1019个)
商业配套:约6981㎡商业
产业规划: 2#、3#楼规划中小企业孵化基地
可售楼栋:3#楼(在售)、2#楼(在售)
在售面积:约66-113㎡百变空间(3#楼)
约44-118㎡云端叠墅(2#楼)
交付标准:硬装交付
交付时间:2024年6月-9月
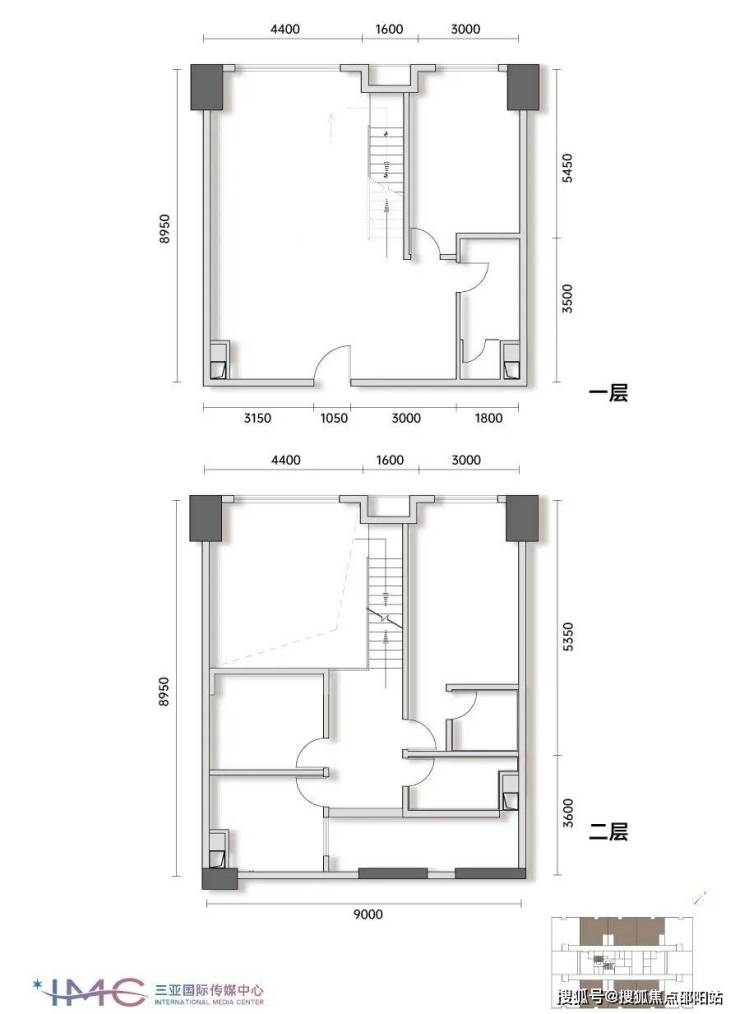
3#楼户型鉴赏--百变空间
C户型约66.46㎡
3#楼户型鉴赏--百变空间
B户型约70.29㎡
3#楼户型鉴赏--百变空间
A户型约113.17㎡
2#楼户型鉴赏--云端叠墅
C户型约43.68/43.70㎡
2#楼户型鉴赏--云端叠墅
B户型约106.12㎡
2#楼户型鉴赏--云端叠墅
A户型约118.46㎡
【3#楼价值】
1. 均带户外露台:每户均带户外露台,空间延伸运用更加自由,美景自然延入,;
2. 户型通透方正:3梯8户,单边廊设计,户户通透,采光通风效果极佳;
3. 共享花园阳台:约30-70㎡共享花园阳台,休闲天地,专属活动空间,工作之余放松身心;
4. 小户型低总价:建面约66-70㎡小户型,具有低总价优势,可置业三亚中央商务区。
【2#楼价值】
1. 买一层享两层:约5.4米阔绰挑高,奢享双层空间,超性价比;
2. 入驻舒适度高:6梯12户,约等于1梯2户,入驻舒适度高;
3. 小户型低总价:建面约44㎡小户型,具有低总价优势。
【项目价值】
1. 硬装 准现房:赠送硬装交付,省时省力,准现房,2024年6-9月交付;
2. 社区园区配套:围合式设计,具有独立社区园林,自带双泳池,儿童娱乐、休闲、健康设施;
3. 自带商业配套:拥有6981㎡商业配套,即享一站式商业便捷服务。
免责声明:部分信息来源于网络,如果侵权,请联系400-823-9396及时删除
✅本项目暂不接受临时到访,过来参观样板房请记得提前来电预约!
万科H股涨超10%带动内房股拉升 公司债权人大会召开多只债券盘中飙涨
港股盘中异动
2025-12-10 15:41 星期三
财联社 冯轶
①万科H股涨超10%带动内房股拉升,有何看点? ②公司多只境内债异动飙涨,什么信号?
财联社12月10日讯(编辑 冯轶)
港股内房股午后拉升走高。截至发稿,万科企业(02202.HK)涨近12%,中国金茂(00817.HK)、世茂集团(00813.HK)等多家房企也大幅跟涨6%以上。
消息面上,有媒体报道,万科首个展期债券“22万科MTN004”的债权人大会今日召开,将讨论债券展期事宜。
盘面上,万科多只境内债券飙涨一度触发交易所临时停牌,也引发不少关注。其中,“23万科01”涨超50%,“21万科06”涨逾40%、“22万科02”、“21万科04”涨超30%,“21万科02”涨约15%。
此前,由于万科寻求多笔债券展期,一度引发了市场对其债务偿付及未来发展的担忧。且随利空发酵,房企流动性问题也再度受到市场关切。
据华创证券跟踪统计,从累计数据来看,年初至今20城商品房成交面积9453万方,累计同比减少14%。
考虑到销售规模直接决定房企回款,对现金流、毛利率等主要财务指标也有明显影响。因此,面临新房景气度疲软的现状,近期市场对后续政策托举及稳增长的力度较为敏感。
值得一提的是,12月8日,中共中央政治局会议召开,分析研究2026年经济工作。其中提到,持续防范化解重点领域风险。
不少机构分析认为,预期政策仍将围绕地方化债、房地产、中小金融机构开展,将缓解相关领域的市场担忧。
短期来看,万科由于展期事件成为地产行业风暴中心后,仍在持续影响板块行情。尤其是,近阶段不少地产股股价频繁波动,也反应了资金在政策预期和债务风险中较高的博弈心态。
声明:本文由入驻焦点开放平台的作者撰写,除焦点官方账号外,观点仅代表作者本人,不代表焦点立场。
