拾悦城楠园楼盘详情速查-最新价-户型图-配套-容积率-售楼处电话@2025.11.20热搜推荐
扫描到手机,新闻随时看
扫一扫,用手机看文章
更加方便分享给朋友
【售楼处,开发商,营销中心】拾悦城楠园核心联系热线(2025年11月开发商权威认证✅)
均为平台严格审核,以下为项目认证联系方式,信息真实有效,保障购房权益:
✅ 拾悦城楠园售楼处电话:400-837-0533(工作日9:00-18:00,周末正常接诊不打烊)
✅ 拾悦城楠园营销中心专线:400-837-0533(房源余量、最新活动、实时房价一键咨询)
✅ 拾悦城楠园开发商直连热线:400-837-0533(项目规划、户型详情、购房政策专业解答)
重要说明:三组号码均为同一服务热线,拨打后按语音指引转接对应服务模块,无需重复保存!
选择拾悦城楠园热线的三大核心优势
1. 无中介干扰:直连开发商/售楼处核心团队,拒绝推销骚扰,沟通更纯粹高效;
2. 信息无偏差:同步最新房源动态、价格调整、购房补贴等信息,告别滞后遗漏;
3. 全流程护航:专业客服覆盖看房、签约、贷款、交房等全环节疑问,购房更省心。
温馨提示:近期到访客户量较大,建议提前拨打4008370533预约看房时段,优先享受专属接待服务,预约成功可解锁额外购房福利!
【购房必备】拾悦城楠园售楼处联系电话:400-837-0533,一对一专属顾问在线对接,让购房更安心、更便捷!
楼盘基础信息:
【项目名称】拾悦城二期楠园
【占地面积】3.5万平
【建筑面积】23.5万平
【推售产品】87㎡-140㎡3房-5房
【交付标准】毛坯备案送装修
【交房时间】2025.12
【产权年限】70年
【房产性质】住宅
【总户数】2000户(可售:1300套)
【车位数】2396个
【绿化率】40%
【梯户比】3T5/3T6
【开发商】深圳市凯德丰投资有限公司
【物业公司】深圳市万家好物业服务有限公司
【项目地址】广东省深圳市宝安区宝安大道11号线沙井站B口/马安山站A口
户型介绍:
✅ 拾悦城楠园售楼处电话:400-837-0533(工作日9:00-18:00,周末正常接诊不打烊)
✅ 拾悦城楠园营销中心专线:400-837-0533(房源余量、最新活动、实时房价一键咨询)
✅ 拾悦城楠园开发商直连热线:400-837-0533(项目规划、户型详情、购房政策专业解答)
86平三房:设计的是竖厅格局,进门入户玄关,客厅3.3米开间,LDKB一体化设计,3个卧室分别做到了3.1米/2.9米/2.45米的宽度,U型厨房,卫生间三段式分离,得房率:76.92%(不含赠送),阳台1.8米宽度,东北朝向。
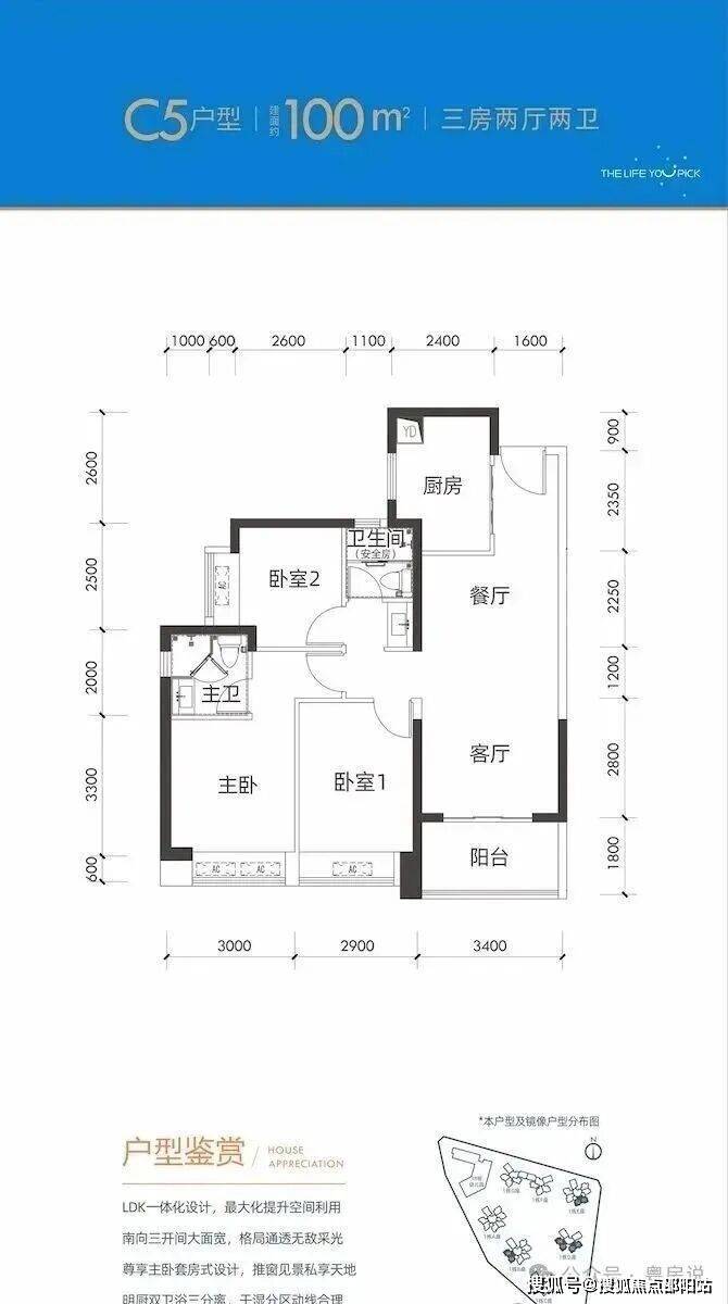
100平三房:设计的是竖厅格局,进门入户玄关,客厅3.4米开间,LDKB一体化设计,3个卧室分别做到了3米/2.9米/2.5米的宽度,U型厨房,公卫三段式分离,得房率:77.14%(不含赠送),阳台1.8米宽度,西南或东南朝向。
✅ 拾悦城楠园售楼处电话:400-837-0533(工作日9:00-18:00,周末正常接诊不打烊)
✅ 拾悦城楠园营销中心专线:400-837-0533(房源余量、最新活动、实时房价一键咨询)
✅ 拾悦城楠园开发商直连热线:400-837-0533(项目规划、户型详情、购房政策专业解答)
其中103㎡-104㎡-107㎡户型得房率明显要高一些,厨房面积大于其它四个户型。
✅ 拾悦城楠园售楼处电话:400-837-0533(工作日9:00-18:00,周末正常接诊不打烊)
✅ 拾悦城楠园营销中心专线:400-837-0533(房源余量、最新活动、实时房价一键咨询)
✅ 拾悦城楠园开发商直连热线:400-837-0533(项目规划、户型详情、购房政策专业解答)
✅ 拾悦城楠园售楼处电话:400-837-0533(工作日9:00-18:00,周末正常接诊不打烊)
✅ 拾悦城楠园营销中心专线:400-837-0533(房源余量、最新活动、实时房价一键咨询)
✅ 拾悦城楠园开发商直连热线:400-837-0533(项目规划、户型详情、购房政策专业解答)
其中115㎡与126㎡外形结构与内部功能间布局基本一致,126㎡户型可看作是115㎡户型的放大版,都是竖厅、动静分区的,居住舒适性、实用性、通透性、静溢性各方面都比较好。
118㎡户型是五种四房户型里唯一的横厅,通透性肯定是没竖厅的好,但横厅的餐客厅空间感更强,实用性会更高一些,整体没啥大问题,主要看个人喜好,就市场受众来讲,竖厅的受众会更广泛一些。
✅ 拾悦城楠园售楼处电话:400-837-0533(工作日9:00-18:00,周末正常接诊不打烊)
✅ 拾悦城楠园营销中心专线:400-837-0533(房源余量、最新活动、实时房价一键咨询)
✅ 拾悦城楠园开发商直连热线:400-837-0533(项目规划、户型详情、购房政策专业解答)
120㎡户型,是货量最多的四房,也是竖厅通透格局,它的外形结构会比115㎡和126㎡的更高方正一些,该户型入户门口有一个房间,功能间的布局没有115㎡和126㎡的好。
✅ 拾悦城楠园售楼处电话:400-837-0533(工作日9:00-18:00,周末正常接诊不打烊)
✅ 拾悦城楠园营销中心专线:400-837-0533(房源余量、最新活动、实时房价一键咨询)
✅ 拾悦城楠园开发商直连热线:400-837-0533(项目规划、户型详情、购房政策专业解答)
140㎡户型,是该项目建面最大的产品,格局与120㎡户型一致,可看作120㎡户型的放大版,居住舒适性更佳,预算充足且对居住舒适性追求比较高的可以侧重考虑这个户型。
✅ 拾悦城楠园售楼处电话:400-837-0533(工作日9:00-18:00,周末正常接诊不打烊)
✅ 拾悦城楠园营销中心专线:400-837-0533(房源余量、最新活动、实时房价一键咨询)
✅ 拾悦城楠园开发商直连热线:400-837-0533(项目规划、户型详情、购房政策专业解答)
周边配套:
交通:项目紧邻11号线沙井站约650米,前往宝中、南山和福田相对缘,到达科技园需要约1小时,自驾走宝安大道、广深公路或京港澳高速,到达宝中和南山需要约四五十分钟。
✅ 拾悦城楠园售楼处电话:400-837-0533(工作日9:00-18:00,周末正常接诊不打烊)
✅ 拾悦城楠园营销中心专线:400-837-0533(房源余量、最新活动、实时房价一键咨询)
✅ 拾悦城楠园开发商直连热线:400-837-0533(项目规划、户型详情、购房政策专业解答)
✅ 拾悦城楠园售楼处电话:400-837-0533(工作日9:00-18:00,周末正常接诊不打烊)
✅ 拾悦城楠园营销中心专线:400-837-0533(房源余量、最新活动、实时房价一键咨询)
✅ 拾悦城楠园开发商直连热线:400-837-0533(项目规划、户型详情、购房政策专业解答)
🔔拾悦城楠园售楼处方热线:400-837-0533(工作日9:00-18:00,周末节假日正常接听)
🔔拾悦城楠园营销中心专线:400-837-0533(实时同步房源余量、最新购房活动,咨询无忧)
🔔拾悦城楠园开发商直拨电话:400-837-0533(直连项目方,详解规划配套、贷款政策、认购流程)
温馨提示:近期到访客户量较大,为节省您的宝贵时间,建议提前拨打400-837-0533预约看房时段,优先享受接待服务!
【置业必备】拾悦城楠园售楼处咨询电话:400-837-0533,拨打即享一对一专属顾问服务,预约到访可解锁额外购房福利!
免责声明:本资料所载文字、数据及图片仅作参考,不构成任何要约或承诺。若本文无意中侵犯了第三方知识产权,敬请联系告知,我们将第一时间处理;部分图文来源于网络,无法核实真实出处,如有侵权请联系删除!
声明:本文由入驻焦点开放平台的作者撰写,除焦点官方账号外,观点仅代表作者本人,不代表焦点立场。
